Fórum témák
» Több friss téma |
A téma átmenetileg fagyasztva lett, hozzászólni nem tudsz!
Ha aztmondanád, te újat szeretnél , mit néznél? Kb ebben a 16 os kategóriában. 32-esben nehéz a filmbeszerzés.
Ritkán vagy, lassan mennem kell. Betojok, ha eztis te digitalizáltad... A hozzászólás módosítva: Aug 20, 2015
Újat nem találnék, mert rég nem gyártanak - még 35mm-est sem. Igazán stabil (és nehéz) gép a Terta-sound - csak fényhanggal, de a mai használati gyakoriságot figyelembe véve jó lenne a Meoclub16.
35mm -hez filmeket csak nagyon ritkán találtam, aztis szépséges áron. A többi csak trailer.
Ezt néztem ehhez. Ez sok lenne. Legtöbb film super8 -hoz van. Mesefilmek is. Ez a 16-os os is talán nagylenne. Neked sok filmed van? Szoktál mozizni? Meoclub, valami újfajta gyártmány. A hozzászólás módosítva: Aug 20, 2015
Sajnos film nekem sincs hozzá, már régen nem volt elővéve. Mikor még iskolákban volt vetítés (magánszemélyeknek akkor sem kölcsönöztek) onnan el tudtam kérni, de ennek már van 30 éve...
Az a vaterás szinte vas árban adta, de örülhet, hogy elvitték. Itt a Szimplakert nevű romkocsmává "alakított" volt szabadtéri moziban is áll egy gép, még a rectimascope optika is benne van.
Nemkelt még el.. MIndenképp filmeket szeretne cserébe. Több dolgot is árul mozizás terén. Nála filmeket is lehet vásárolni. Nem az ára a sok, hanem a berendezés, nekem itthonra... : )
A hozzászólás módosítva: Aug 21, 2015
Írja még, hogy:
"A feltekerőautomatika csak vastagabb előfeszítőanyaggal működik." Ezt mire érti? Vastagabb film? Nemértem.. 3 órsó van a képen. Abból az egyik üres. Arra lehetne csévélni. Tényleg komolyan kérdem, mennyit érhet - illetve megérhet -e ennyit. Itthon a Fite 16 -al szemezek. Szerinted melyik a "nyerőbb" ? A hozzászólás módosítva: Aug 21, 2015
A felcsévélő oldalt egy "végtelenített" rugó hajtja - mintha kör keresztmetszetű szíj lenne - ez csúszókuplung szerepet is játszik: ha megfeszül megnyúlik és a megnövekedett menetemelkedés kisebb felületet ad az erőátvitelhez.
Hogy mi mennyit ér azt sok dolog befolyásolja: lehet, hogy a hulladék-átvevő mondja a legmagasabb árat, de ha egy múzeumból, gyűjteményből hiányzik, akkor akár az eredeti árat is jóval túllépheti. Ez részben azért van, mert a mai használati értéke szinte nulla, mert senki nem akar mozit nyitni, ahol pénzt tudna keresni vele. Ettől függetlenül otthoni "használatra" inkább a 16-os képzelhető el - méret, fogyasztás,stb figyelembe vételével (gondolj bele: csak a xenon lámpa fogyasztása kW nagyságrendű ára magas, üzemórája nem sok). Egy barátom 13-ért kínálgat egy ilyet
A Jégember, hogy siettesse az ajtó kiolvadását, próbál meleget csinálni az iglujába, összerakott még egy ilyen szerkezetet:
Mintahogy Ronin is írta előttem, befejeztem a második végfokot is. Így sztereoba egész meglepően zenél. Volt egykis hibám az elsőnél is. R15 helyére véletlen egy kisebb értékű került. Így cserélve nagyobb teljesítményt mérek a kimeneten. Összességében ennyi. Mostkövetkezne a vezérlő, de sajnos a pákám végleg megadta magát. Az ónom is elfogyott. Emiatt csúszik kicsit a projekt.
A hozzászólás módosítva: Aug 30, 2015
Remélem, ha az ónod megérkezik, és páka is lesz, marad idő rendet rakni a belsejükben.
Akkor fogok sepregetni, ha asztalon működnifog minden vezérlőstől. Addíg mégcsak tesztüzemnek hívom. Ami rendetlenségnek tűnhet a csillagponton kívül, az a hangdobozcsatlakozók, illetve a bemeneti csatlakozók levegőben lógása. A alketrészlábakat sem hajlítgatom a helyükre a végleges állapot eléréséig.
( Még mindíg hiányoznak a 'normális katódkondik, és katódellenállások. )
M85, impregnált. 220V+-5% ; 2* 10V+12V+15V
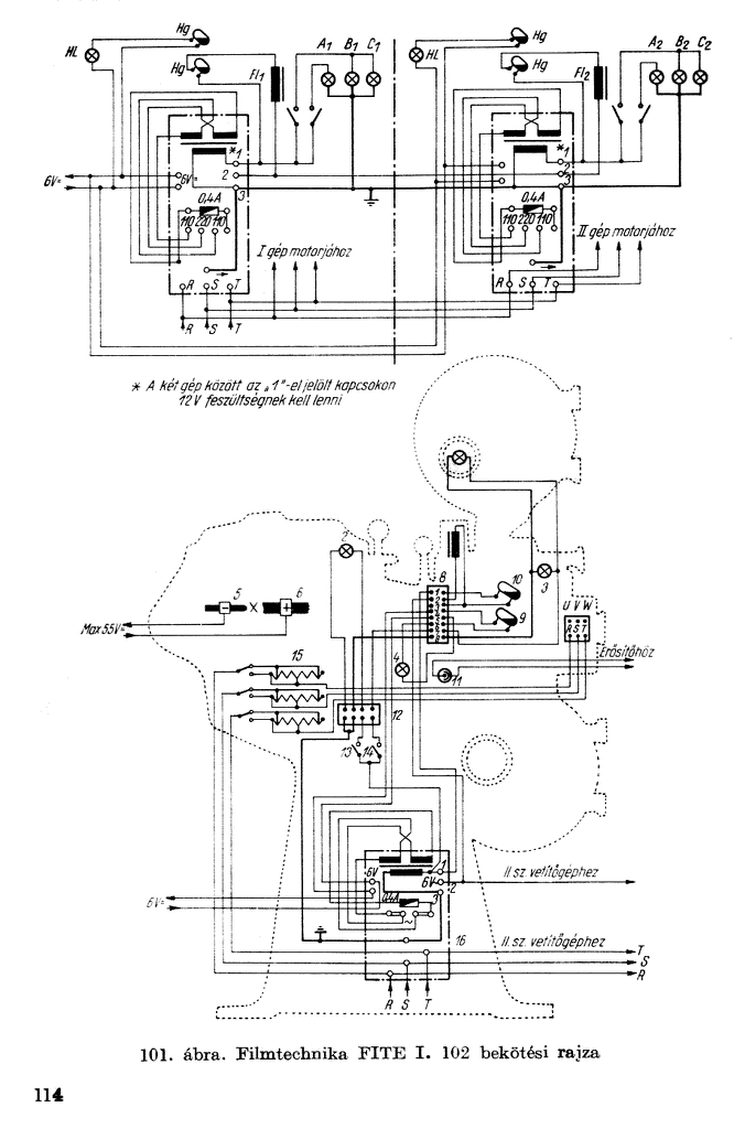
E négy lapon említik a gépet...
Vízhűtéses. Dupla izzós. Tényleg Sebi. Melyik, milyen az az SPP izzó? Googli nemdob róla semmit.
Ezek a FITE gépek ív lámpával később xenon lámpával működtek. Az SPP azaz impulzus lámpát tudomásom szerint nálunk nem használták.
Így van, ahogy újfalusi kolléga írja. Én azért sok gépet nem láttam, de - abban az időben - vidéken ívlámpás volt elterjedten használva, kéménnyel, automatikus előtolással. Láttam xenonlámpásat is, az mikor eldurrant, magával vitte a tükörkészletet is... SPP-t nem láttam - még külön sem.
Katonaként mozigépész kiképzést és xenon lámpa szerelést, vizsgát is tettünk.
Civilben sosem éltem a tudásommal...Oklevelem van a vizsgákról.
Lassan vége a tesztüzemnek. Köll hely. Space
Ezt úgyis csak teérted. Mivel már vetítők is vannak, lesznek itt - Új cím kerestetik a fórumnak! Sebi?, mozisok? Fite moziüzem? FITE mozitechnika? Ronin (szemberohanóharcos) ? Te telelehetsz ötletekkel. Fite Renew?....! A hozzászólás módosítva: Szept 2, 2015
Mozigépek és erősítők. Megfelelne?
Orbán József: én meg anno MHSZ-nél, majd a seregben stúdiósként A Zalai Moziüzemi Vállalatnál okultam...
Azért csakbetoltam mögé pártized kilowattos aktív subot. Kikerekedett az arca. Kicsi a szoba. Zártak a dobozok.
MIndjárt írok Zolinak.
Nemtudom ilyenkor szabad-e csalni ilyenekkel. Pihenésként raktam mellé. Már vége a pihiidőnek. Valami emberfeletti mijönki belőle. Leszakad a vesém. Más ez a moziüzem, mint a hifi. Hififel foglalkozzon, akinek 3 darab felmenője van.
Ez eszméletlen... ![]() Köszi a moderációt.
pjg:
Ebből kellene még kettő. Azsem baj, hacsak hangszórók leledzenek.
Halad a vezérlő továbbfejlesztése. Áramkijelző helyett, CRT visualiser.
A hozzászólás módosítva: Szept 4, 2015
Na magyarul . Ennél rövidebb olvasmányt nemtudok.
A kivezérlésjelző sem jo erre a szóra. Ez nem mérőeszköz lesz. Az a vektorszkóp. Az még messzeáll a tudásomtól.. A hozzászólás módosítva: Szept 5, 2015
Csak egy super8 -as kis vetítő. Nagyobb nincs, csak érdekel a téma.
Az "itt" a fórumra utal. : ) A hozzászólás módosítva: Szept 5, 2015
|
Bejelentkezés
Hirdetés |























