Fórum témák
» Több friss téma |
Hát ez nem egy egyszerű dolog.
A jelenlegi kéményesed 18 kW. Az új 24 kW. Így nem cserélhető - a jogszabály szigorítás miatt! Turbósat beépíthetsz, füstgázelvezetőt függőlegesen kivezetve. Ha a gázcső vezetését módosítani kell, természetesen terv és engedély köteles.
a régi parapettes,zc18. az új CIRKONOVA ZCK-24HE (ZCK-24HE) kombi turbós meg egy 100-as csőben egy 60-as ugyan annak a helyére ahol a régi parapettes jött ki .
Így megoldható, ha felfelé fordítod a füstgáz elvezetőt.
A szomszédnak nem "küldheted át" a kibocsátott füstgázt!
sztem balra mellette nem szomszéd van, hanem út, ott a mackósajt tábla
Igen út van de a kerítéstől 6m-re , akkor is működhet a felfelé fordított füst cső?
Sziasztok!
Junkers Euroline kazán vezérlő elektronika (Honeywell 45.007.351-005 Rev.A) javításához keresek segítséget! Részletek: - A kazán 3 éves, rendszeresen karbantartott, minden eleme frissen ki van tisztítva a legapróbb részletekig. - A hiba az, hogy néha hírtelen leáll és újraindul, de olyankor nem mindig adja be a lángot. - Nekem elektronikai műszerész végzettségem van, de panel leírás és tapasztalat híján nem tudom, mit mérjek rajta. Kontakt hibákat megtaláltam volna, a biztonság kedvéért relénél, tápnál frissítettem a forrasztásokat, a NYÁK tiszta. - Ez az egyetlen kazán a házban és lassan tél van, ezért csak helyben (Bp. XVII.ker.) lehet tesztelni/javítani. - Új panel ára 50e. Mivel maga az alkatrész ára elhanyagolható, így ésszerűbb a javítás. - *. Köszönöm szépen! Ez egy fórum, nem apróhirdetési portál. Hozzászólásod eszerint módosítottam. Action2K
Nekem az utca felé néz a turbó kémény,és még csak nem is kellet felfelé irányítani. Igaz 8 m-re van. A mellettem lévő telek felé nem engedélyezték sehogy, pedig még 2 telek a mienk. A szomszéd kb.200 m-re van. Ennyit a szabályokról.
Nagyon köszönöm az értékes javítást és kommentárt!
Hadd mondjam el, hogy pontosan erre a hibára hivatkozva segítséget már kértem korábban is a legnagyobb tisztelettel köszöntve mindenkit és bizony, a "segítség" szót használtam kezeimet tördelve ? ám nem kaptam választ. Hadd tájékoztassam a Tisztelt Moderátort, hogy számítástechnikában dolgozom, így igencsak tisztában vagyok az apróhírdetés fogalmával, és szigorú szavainak komoly fontolóra vétele után sem találom a fórumhoz való hozzászólásomat ilyen jellegűnek. Az egyetlen tisztességes szándékom az volt, hogy amennyiben valaki szöveges segítséget nem tud vagy nem szándékszik nyújtani akár a szakmai titok, akár más okok miatt, de kellő ismeretei megengednék, úgy javítsa meg maga, a szakmai titok megőrzésével, tisztes honorárium fejében. Szeretném továbbá felhívni a figyelmét, hogy Ön a tegező köszöntés tényével, ill. az utolsó bekezdés módosításával, melyből az derül most ki, hogy teljesen félreértem a szakmai tudást, tönkretette a bejegyzésem tiszteletteljes üzenetét. Másrészt, amennyiben Ön valóban annyira felháborítónak tartotta, hogy markáns színekkel móresre kényszerült tanítani, barátságosabb lépésként privát üzenetben kérhetett volna a bejegyzés finomítására. A fórum összes többi része és célirányzottsága becsülendő, csak így tovább! Tisztelettel: alevente
Szia! Köszönöm a válaszod..
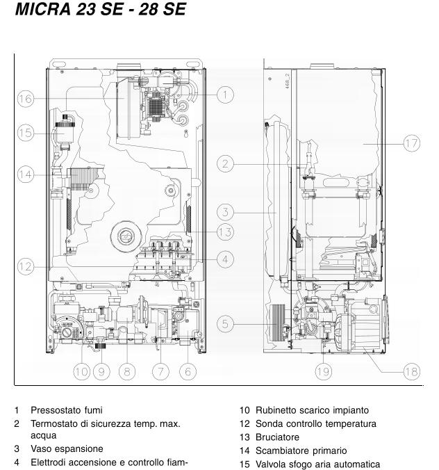
Már most elakadtam.A képen melyik a kiegyenlítő tartály? Ha lyukas lenne,nem kéne folynia? A biztonsági szelep tetején (elvileg a 15-ös) ,nincs már rajta a "szelepsapka",az baj? És hol kéne pumpálnom,illetve nyomást mérnem?
Tisztelt Köbzoli!
Ami a tegező formát illeti, sajnos valóban elfogadott forma, én mégis leginkább kerülöm, ritkán használom. Engedje meg, hogy különösen egy ilyen rideg téma mellett megmaradjak ennél. (Nyilván sok olyan apró részlete van még a folklórnak, amit egyedenként tetszőnek vagy nem tetszőnek találunk, de ez nem ide tartozik.) Amennyiben a Szabályzat azon része van itt megidézve, hogy "kereskedelmi célzattal felhasználni", úgy mostanra tán kiderült már, hogy nem erről van szó, ha mégsem, úgy inkább elnézést kérek és hagyjuk a fórumozókat hasznosabb információval gazdagodni! Természetesen láttam, hogy sokan segítségre leltek, másképp nem is "regelek" be a fórumra. Mint említettem, másképpen is fogalmaztam már sikertelenül, így kár lett volna ugyanazt ugyanúgy leírni, ezért tartottam célravezetőnek a stílusváltást. Köszönöm kedves kívánságát, legyen úgy! Üdv: alevente
A kazán fűtőkörének vízmentes állapotában mérd meg a tágulási tartály nyomását. Ha víz folyik ki a szelepen = tartály csere (kilyukadt). Ha nem, akkor pumpáld fel 0,8 - 1,0 bar nyomásra. Majd engedd rá a kazánra a víznyomást.
Szia! A 15-s az automatikus légtelenítő! A 3-s jelzéssel jelölt a tágulási tartály. A rajzon nehezen kivehető, de szerintem a 9-s a biztonsági szelep. Piros kupakkal ellátott és a nyomáshatár is fel van rajta tüntetve. A "dolog" egyszerűnek tűnik de megcsinálni .... Szerintem hívjál szerelőt és biztonságban leszel.
Üdv Mindenkinek!
Még új vagyok előre is bocs a hibákért. Szeretnék segítséget kérni,van egy Buderus U012-24 turbós fali kazánom.Nem gyújt be. 4.10.3 Gyújtáshiba LED Státusz A gyújtási folyamat indulása után 20 másodpercen belül nincs lángérzékelés. Leírás: FŰTÉSÜZEM (E) KI ÉGŐÜZEM (F) VILLOG ÉGŐZAVAR (G) BE Tudna valaki segíteni,hogy ha panel problémám van mi lehet az? Előre is köszönöm!
Kedves tenergy, tisztelt fórumozók!
Az én kazánomban jelentkező hiba kísértetiesen hasonlít ahhoz, amit itt olvastam. Igaz, nekem picit más kazánom van (ZS 23-1 KE) és mindig zöld mezőben van a nyomás. Mivel nem találok későbbi bejegyzést erről, hadd kérdezzem meg, hogy végül megoldódott-e végérvényesen a hiba? Én kontaktspray-s próbálkozáson már túl vagyok, de nem javult meg. Észrevettem, hogy lenyitott alsó résszel (szervíz üzemmódban) ritkábban produkálja a hibát. Arra gondolok, hogy összerakott állapotban valami melegedés hatására csinálja mindezt. Mi lehet? Panel? NTC? Köszönöm!
Nekem egyszer a leírtakhoz hasonlo jelenséggel volt dolgom . Abban az esetben a gáz-mágnesszelep ragadt le .Javítás: a kalapács fa nyelével óvatosan kettö koppintás azota müködik.....
A tágulásit,leüritett fütési hálozatnálkell pumpálni kb1.5re.
A 4 báros rendszernyomással valami nagyon nincs rendben,mert alnéletileg 2,5 báros a biztonságilefuvó szelep!
Köszönöm szépen, de szikra után mindig van láng, tehát gáz is. A baj inkább az, hogy a folyamatos fűtés közben egyszer csak gáz is, szivattyú is, LEDek is leállnak, majd újraindul (mintha egy pillanatra elvették volna az áramot) és akkor általában beadja a lángot, de nem mindig. Sokszor pedig csak egy hosszabb idő után adja be a lángot, amikor már teljesen hideg a rendszer.
Egy korábbi bejegyzés szerint 2-4 gyújtást engedélyez óránként az elektronika. Ha esetenként a leállások gyorsak következnek, ez megmagyarázná, hogy miért csak pörgeti a szivattyút, de nem adja be a lángot hosszabb ideig. De mi okozhatja a leállásokat?
A kazánod letiltja magát, ezt tudtam kiszűrni eddigi leírásaidból. A jelenség okát, több hibás alkatrész is okozhatja. Lehet hibás a háromjáratú szelep motorja, ilyenkor elsődleges funkcióban marad és a meleg víz termelést végzi (mivel így van gyárilag beállítva), ennek megfelelően mivel éppen nincs víz elvétel túlfűti magát és leold a túlfűtés elleni védelem.
A letiltás védelmi rendszerbe tartozik még a füstgáz érzékelő is, ennek ellenőrzése is ajánlott.
Köszönöm! A "háromjáratú szelep" az a váltószelep, igaz?
A helyzet az, hogy nem váltáskor csinálja ezt, hanem (látszólag) rendszertelenül: általában megy a fűtés jó ideig (10-20 perc, forró fűtőtestek, stb.) és akkor. Ilyenkor a vátlószelep nem dolgozik, így a motor sem. A füstgázra már gondoltam, ez is magyarázható lenne azzal, hogy a lenyitott aljával hosszabb ideig megy, de füstgáz esetén nem állna ki hibára villogva? Mégis, mivel tudnám kimérni? Egy síma szénmonoxid szonda megtenné vajon? (Egyébként családi ház külön kéménnyel, ha számít.)
Helo mindenkinek segitséget kérnék egy Saunier Duval F24 E BT tipusu turbos kombi kazánhoz.Diagnozis 5 évig hibátlan müködött és most kezdte,hogy fütésnél vizet találtam alatta ami a 3 báros bisztonsági szeleptöl jött és viszahülés után piros villogás nyomás esés végett asziszem,ha rátöltöm ugyanezt eljáca.Megnéztem a tágulási tartály szelepét nem jött levegő.Olvastam az elözö oldalakat de ugyanijet nem találtam.Lehet,hogy ecerü a baj de megakattam segitégeteket elörebis köszönöm Ákos.
Úgy értem, hátha tényleg gáz van, nem a szenzor rossz.
A szenzort ki lehet iktatni valahogy, ideiglenesen?
A "háromjáratú szelep" az a váltószelep, igaz? Igen igaz!
2 db stemco van a kazánban, egy az előre menő réz csövön egy a füstgáz elvezető deflektorán. Egyszerű ellenállás mérővel lehet őket kimérni. Próbáld meg akkor amikor éppen kiáll hibára. Amelyik szakadást jelez annál a hiba. Lehet maga az érzékelő is hibás, de okozhatja azt más is, előbb találd meg melyik az, és akkor tovább dolgozhatunk a hibakeresésben. Ideiglenesen kiiktathatod, de javaslom akkor maradj mellette, és figyeld meg helyesen működik e .
Elég baj az, hogy levegő nem jött belőle. A tágulási tartályt fel kell töltened. Olvass a fórumban; már leírtuk sokszor, hogyan kell elvégezni ezt a műveletet.
A baj egyszerű, kilyukadt a tágulási tartályod! Csere.
Ház elég nagy baj van, ha 4 bárnál sem nyit meg a rugóterhelésű biztonsági szelep! A rendszert alapból 1,0 - 1,2 bárra kel feltölteni, míg a tágulási tartályt (víz nyomása nélkül) 0,8 - 1,0 bárra!
Tisztelt Fórumozók!
Köbzoli a minap beírta, hogy szlengben írt valaki a témához. Én kérek mindenkit, gondoljon vissza általános iskolai tanulmányaira és szabatosan - magyarul - írja meg hozzá fűznivalóit. |
Bejelentkezés
Hirdetés |






