Fórum témák

» Több friss téma
Fórum » Golf IV elektronika
 
Témaindító: Tomszy, idő: Jún 28, 2008
Témakörök:
Lapozás: OK   15 / 48
(#) zolika60 válasza FZolt hozzászólására (») Júl 19, 2013 /
 
Ebben az esetben testkábel gyanús. Nézd meg ezeket. Barna színűek és a karosszérián több helyen van ilyen. Az akku mellet, a biztosíték tábla mellett, a műszerfal alatt. De legelőször az akku saruban nézd meg ahol indulnak nincs-e eloxidálódva.
(#) FZolt hozzászólása Júl 19, 2013 /
 
én is ebben reménykedem, hogy hasonló 'apróság' köszönöm!
Meló után csekkolom
(#) zolika60 válasza FZolt hozzászólására (») Júl 19, 2013 /
 
Azért, hogy félre ne fuss az akkut mérd meg, nehogy megtréfáljon.
(#) GyurikaBx hozzászólása Szept 16, 2013 /
 
Sziasztok!

Bora Varinat 2000évj 1.9pdtdi
A motor hőfok műszerrel olyan problémám van, hogy amikor elkezd melegedni a motor a műszer is elindul felfelé el is jut a mutató a műszer 1/4 ig és egyből visszaesik 0-ra. Nagyon ritka, hogy üzem meleg motornál középen álljon a mutató. Találkoztatok e már ilyen problémával?
A motornál lévő hőgombák csatlakozóit már megtisztítottam.
Üdv,
Gyuri
(#) mtomihun válasza GyurikaBx hozzászólására (») Szept 17, 2013 /
 
Helló

Ha hirtelen ugrik vissza a mutató, akkor cserélj hőmérséklet jeladót a motornál.
(#) GyurikaBx válasza mtomihun hozzászólására (») Szept 18, 2013 /
 
Szia!

Igen hirtelen ugrik vissza.
Melyiket a három közül? A motor váltóoldalánál lévő csonkban 3Db van melyiket cseréljem?
Vagy valahol máshol van külön?
Üdv,
Gyuri
(#) zolika60 válasza GyurikaBx hozzászólására (») Szept 18, 2013 /
 
Arra már nem emlékszem pontosan melyik a hőmérő jeladója, de félmeleg motornál lehúzod a csatlakozót, és amelyiknél a műszer nullára esik az az. Talán a fekete színű, de meg nem esküszöm rá.
(#) mtomihun válasza GyurikaBx hozzászólására (») Szept 21, 2013 /
 
Helló

Hát pedig csak 1db hőgomba van benne!
Szerintem amikre te gondolsz,azok izzítógyertyák. Alumínium csonkban vannak, és felfelé állnak egymás mellett?
Azok alatt abban a csonkban félig lefelé állva van a gomba, vagy fekete (ha régi típusú), vagy zöld, és 4 vezeték megy bele!
(#) GyurikaBx válasza mtomihun hozzászólására (») Szept 21, 2013 /
 
Szia!

Köszi megnézem!
(#) balazskat hozzászólása Szept 28, 2013 /
 
sziasztok!

kérdéseim ..... belsö tükörszenzor nem sötétedik fényre mi lehet az ok esetleg mi az orvosság rá:::??? a második ha rajtamarad a világitás gyujtás nélkül nem sipol v ha a benzin szint kevés akkor sem ad hangot valaki tud valami gyogy irt ezekre???
(#) roland9 hozzászólása Nov 6, 2013 /
 
Sziasztok!
Egy olyan problémám lenne, hogy adott egy 99-es évjáratú Golf 4, aminek az első ablaktörlője teljesen jól működik, a szakaszos funkciót kivéve.Ha rákapcsolom szakaszos módra, akkor egyet töröl, majd többet nem.Ha a kapcsolón lévő intervallum kapcsolót ide oda kapcsolgatom, akkor töröl, viszont akkor is csak egyet. A "nagy" relédobozt már kicseréltem újra, de a hiba ugyan úgy meg maradt. (ilyen relé van benne: 1J0955531)
Mi lehet a probléma?
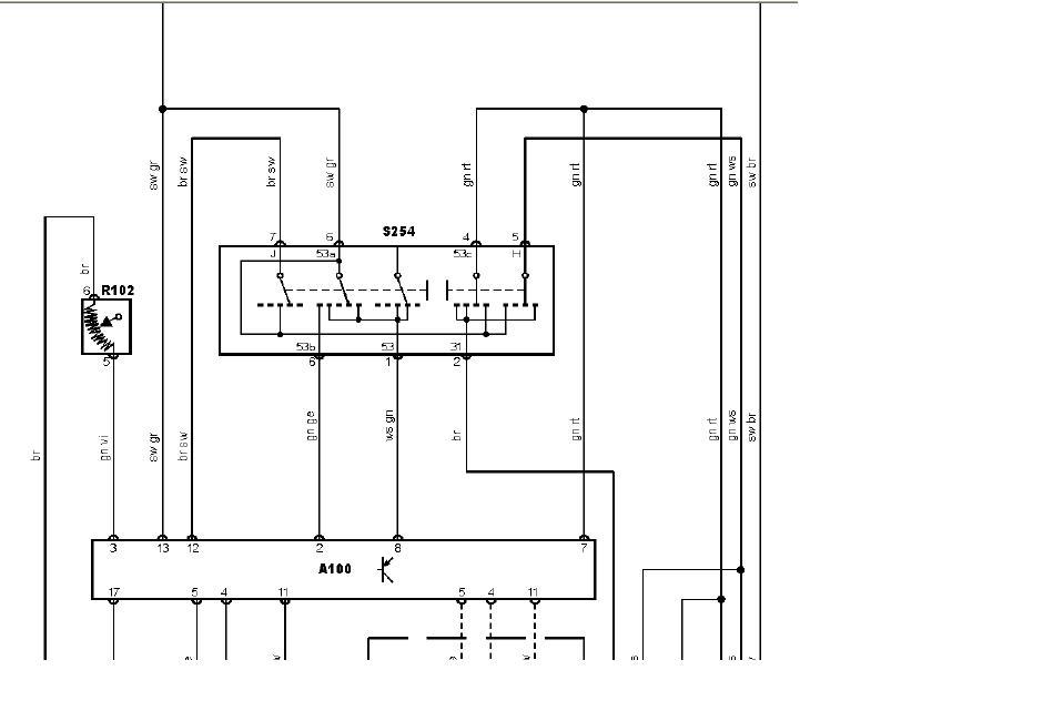
(#) VIM válasza roland9 hozzászólására (») Nov 6, 2013 /
 
Szia! Talán akkor az időzítő szabályzója lesz a hibás ami a központi relé 3. lábára megy zöld/lila vezetékkel és az időzítő másik szála barna, a testre megy. Majd holnap több időm lesz és megnézem a többit is ...
(#) roland9 válasza VIM hozzászólására (») Nov 6, 2013 /
 
Köszönöm!
Már meg mértem a potit is a karban hátha az a rossz de szépen fokozatosan kapcsol a test is meg van a +12 is szóval már nem tudok mire gondolni.
(#) dkrissz hozzászólása Nov 11, 2013 /
 
Heló! 2002-es Golf 4-em van 1.4 Edition. A kilóméter óra induláskor késve indul el és menet közben ingadozik vagy teljesen leesik 0-ra. Valakinek valami ötlet?
(#) VIM válasza roland9 hozzászólására (») Nov 12, 2013 /
 
Szia! Szóval csak azt kellene megnézni amit bejelöltem a rajzon, az időzítőt de sehol sem találok róla semmit, hogy mi ez és hol van. Minden esetre a 3. lábon testhez képest lenni kellene ellenállás értéknek ha kiveszed a központi relét. Ha nincs érték akkor az intervallum "poti" a rossz. Másik Golfban esetleg kimérni az értékét ....
(#) VIM válasza VIM hozzászólására (») Nov 12, 2013 /
 
.... most jut eszembe, hogy talán az az ellenállás benne van a törlőmotorban a lassú fordulathoz?
(#) roland9 válasza VIM hozzászólására (») Nov 12, 2013 /
 
A potit tudom mérni, ahogy kapcsolgatom úgy lesz kisebb az ellenállása, az ablaktörlő motorban csak a vég állás kapcsoló van amit kiszedtem meg tisztítottam.
(#) roland9 válasza VIM hozzászólására (») Nov 12, 2013 /
 
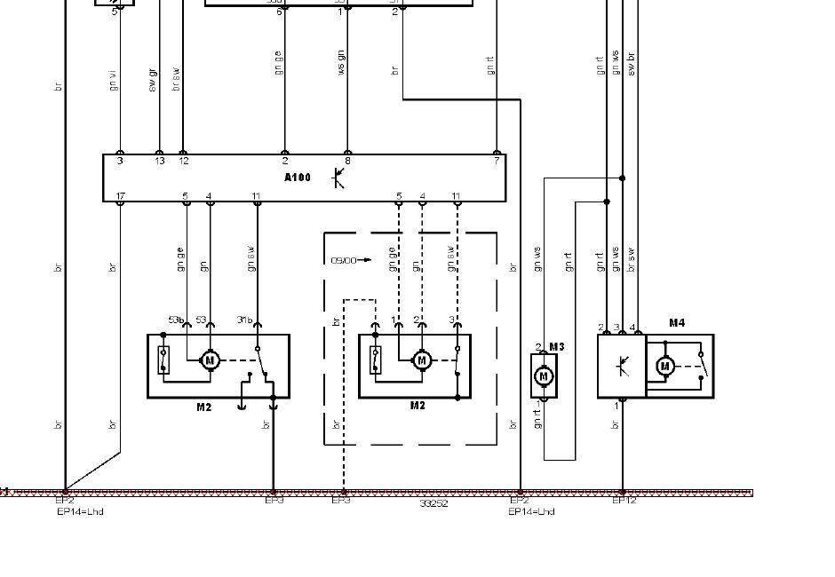
A képet nem tudnád esetleg nagyobb felbontásban feltenni mert nem tudom el olvasni?
(#) VIM válasza roland9 hozzászólására (») Nov 12, 2013 /
 
Talán így, ha neked megfelel ebben a felbontásban. Lehet nagyítani a képet de az egészet jó felbontásban nem tudom felrakni csak részletekben. A kérdéses alkatrész még mindig nem ismeretes és a holléte sem?
(#) timea60 hozzászólása Nov 12, 2013 /
 
Szia VIM! Golf 4-nél a hátsó ablaktörlőre milyen vezetékek mennek és honan? Nincs ehhez több rajzod, mert az ajtóban el voltak törve a vezetékek megjavítottam, de még van gondom vele.
(#) VIM válasza timea60 hozzászólására (») Nov 13, 2013 /
 
Szia! Most őszintén, szerinted ezek milyen rajzok amiket eddig feltettem? Egy kicsit fentebb az egész törlő-mosó rajza a Golf IV-nek és a többi részletezve, egységekre bontva éppen szem előtt.
(#) vka válasza dkrissz hozzászólására (») Nov 13, 2013 /
 
Helló! Nálam a jeladó csatlakozója volt eloxidálódva, az egyik érintkező le is tört. Egyébként a difi mellett van, hárompólusú a csatija. A peremezést felfeszegettem, az oxidos érintkezőket megtakarítottam, a hiányzó helyére egy kis darab rozsdamentes ablaktörlőrugót forrasztottam. Így meg lehet spórolni az újat.
A hozzászólás módosítva: Nov 13, 2013
(#) timea60 hozzászólása Nov 13, 2013 /
 
Szia VIM!

Köszönöm, bocsánat csak a kép aláírásokból azt hittem , hogy a hátsó felirat vonatkozik hátsó ablaktörlőre a többi az elsőre. Még egyszer elnézést.
(#) roland9 válasza VIM hozzászólására (») Nov 14, 2013 /
 
Szia!
Hát még most se teljesen világos.
Melyik programba van benne ez a kapcsolás, hátha úgy előrébb jutok??
(#) VIM válasza roland9 hozzászólására (») Nov 14, 2013 /
 
Szia! Mi melyik programban van benne? Nálam működik az "autodata" és a "vivid" is és amelyikben van infó a kocsikról azt megnézem és esetleg összehasonlítom egymással. A harmadikban "etka" néven pedig alkatrészekre bontva vannak a vw csoport autói, de az "időköz szabályozás" mint olyan alkatelemet nem találom meg beszámozva. Van ITT egy kis ismertető erről a csoport egyik autójánál, érdemes elolvasni.
(#) roland9 válasza VIM hozzászólására (») Nov 14, 2013 /
 
A képek amiket fel tettél melyik programból nézted ki? : )
Etka van nekem is de nem hajlandó elindulni amíg nem frissítem, viszont ha rámegyek hogy update akkor meg kidob egy hiba üzenetet hogy nem tud frissíteni.....
A hozzászólás módosítva: Nov 14, 2013
(#) _vl_ válasza roland9 hozzászólására (») Nov 14, 2013 / 1
 
Idézet:
„de nem hajlandó elindulni amíg nem frissítem, viszont ha rámegyek hogy update akkor meg kidob egy hiba üzenetet hogy nem tud frissíteni.....”

Tekerd vissza a dátumot abba a negyedévbe, amikori az adatbázisa.
(#) VIM válasza roland9 hozzászólására (») Nov 16, 2013 /
 
Szia! Hát tudod én meg azt nem értem, hogy mit nem értesz? EZ a kép az egész törlő-mosó rajza és lentebb részekre van bontva a jobb "olvashatóság" miatt, mert a vezetékszíneket másképpen nem tudod leolvasni. Ha a "golf törlő-mosó, 1, 2"-t kinyomtatod, kapsz egy nagy jól áttekinthető rajzot. Az előtte lévőknél nem tudtam megoldani a nagyítás mértékét egyenlően, hogy azokat kinyomtatva, összerakva ugyanúgy nézzen ki csak nagyban. Ne haragudj de ha nem tudsz rajzot olvasni, mindegy, hogy mit rakok fel ide.
(#) roland9 válasza _vl_ hozzászólására (») Nov 21, 2013 /
 
Köszi a segítséget így már működik a progi!
(#) roland9 válasza VIM hozzászólására (») Nov 21, 2013 /
 
Köszi a segítséget de az elektronikával van baj nem a kábelezéssel.
Rajzot tudok olvasni több mint 10 éve foglalkozok elektronikával.
Következő: »»   15 / 48
Bejelentkezés

Belépés

Hirdetés
XDT.hu
Az oldalon sütiket használunk a helyes működéshez. Bővebb információt az adatvédelmi szabályzatban olvashatsz. Megértettem