Fórum témák
» Több friss téma |
A mértékegységet a mérőszámtól szóközzel el kell választani!
A tulajdonnevekből képzett mértékegységek (Ohm, Volt, Amper, stb.) nagy kezdőbetűvel írandók!
egy qvarc-oszcillátorral és mögé teszel számlálot!
És valami olyan megoldás, ami egyszerű alkatrészekből építhető meg?
Használj fel egy olyan olcsó órát, amit a piacon dobnak utánad.
Elég pontos 1Hz -et állít elő a 32k -s kristályból.
Itt találsz ilyet:
http://www.freeweb.hu/bss/index.php?cat=7&db=10&from=20
mihez ?
szinusz ? vagy jo a negyszogjel is ? orakbol lehet csak illeszteni kell az impedanciat. amugy egy kvarc osczcilator mondjuk 1MHz amit leosztasz 1 millioszor.Oszto aramkorokkel , binaris szamlalokban ezek vannak .Biztos van mar direkt 1Hz generalo kapcsolas IC keszen .Amugy 6 x 10 -el kel osztani , ahany nulla anyi tizes oszto ( sazamlalo) es ha kicsi kell legyea a generator akkor baj.Van mindenfele PAL IC amiket kulombozo celokra hasznaltak TV -k ben, lehet hogy valaki ismeri es tud ajanlani egy megfelelot . amugy az ora lenne a legkezenfekvobb,egy tranzisztoral kel illeszteni a C-MOS-hoz a kulso cuccot ..voltak leirasok a radiotehnikaban mikor mindenki kicsi orabol asztali orat gyartott.
Nekem 1979 óta ez működik a Quarz órámban.Mellékletben a rajz
http://www.freeweb.hu/bss/index.php?id=267
http://www.freeweb.hu/bss/index.php?id=266 csak nézegettem az oldalt, és gondoltam belinkelem hátha jó lesz valamire... csá
Üdv
Az lenne a kérdésem hogy hogyan lehet pontosan 1Hz-es jelet létrehozni PIC nélkül? Akár kvarccal is? Hogy pontosan 1másoldpercenként jöjjön egy jelem? Nem 555-el mert az pontatlan, óraműhöz kellene. PIC-el is várnék megoldást, ahogy én okoskodtam úgy kellene hogy PIC-et egy 4Mhz-s kvarchoz kötve a PIC számolja a 4milliót és ha lejár akkor ad 1 jelet? Jól gondolom? Ez hogyan oldható meg? Tehát PIC és PIC nélkül. Kapcsrajz... Köszi
Kell egy ~32kHz-es "órakvarc" és egy bináris osztólánc. Bőséges a választék belőlük...De én kvarcórából csináltam egyet. Egy fél Hz-eset...
Medve!
Te tudod, hogy hogyan lehet egy kvarcóra stopperét elektromosan vezérelni (ki-,bekapcsolni)? Mechanikai méréseknél lenne rá szükségem. Talán másokat is érdekel ez a probléma. Üdv: Göndör
Egyszerűen. A gomb a testre (pozitívra!) köti a bemenetet, én egy PNP tranyóval csináltam...Emitter a házra, kollektor az IC be, bázist meg izgattam valamivel...régen volt...
Haliho
Mellékelem a quarc óra vezérlő rajzát, amit infra sorompó vezérel.Ha valaki halad valamir vele majd szoljon nekem is. Bővebben: Link
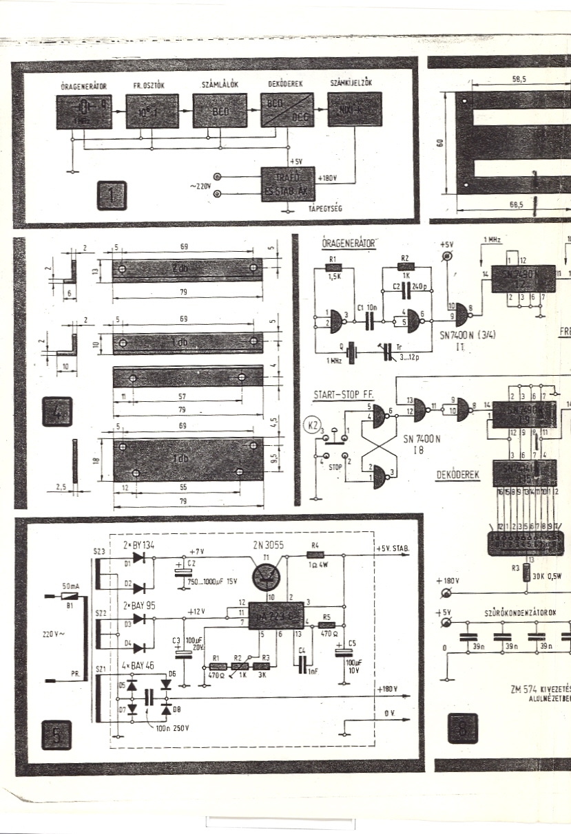
Ennek az órajel generátora a legegyszerűbb.(bal alsó sarok)
Ha piccel építed én javasolnám hogy van olyan amelyikbe két kvarcoszcillátort építettek bele ,egyik szoftveresen kikapcsolható a másik a működtető. A szoftveresen kikapcsolhatóhoz rendelhető egy belső számláló .Ezzel állítanék elő időalapot egy 32Khz (kvarcóra) kvarccal.Igaz hogy 2 másodpercenként telik meg a számláló, de szerintem ez pontosabb mint a főoszcillátorból szintén számlálóval előállított órajel. (bocs a címzést elrontottam nem neked szól)
Ezek elég drága megoldások... én nem adnék 6-700 forintot egy 1MHz es kvarcért, ott a 4.194304 MHz es vagy a 32.768 kHz es sokkal olcsobban (<30Ft)>
Köszi! Hétvégén megvizsgálom az ügyet. Ha jutok valamire, beszámolok róla. (Elnézést, hogy csak most reagálok a válaszodra, de sajnos egy kicsit dolgoznom kellett.)
Köszi a mellékletet! Külön öröm, hogy oroszul van, így van módom feleleveníteni orosz tudásom. 12 évig tanultam oroszt, a ciril szöveget folyékonyan olvasom, kár hogy nem értem. Pontosabban két mondatot tudok a sok orosz tanulás után, az 1.: "aga szkazala varona, i rak upal vadu." Jelentése: Aha, mondta a varjú, és a rák beleesett a folyóba. A 2.:"Vracsi usztanaváli, unyivó gyéckij paralics." Jelentése: Az orvos megállapította, hogy neki gyermekparalízise van. Majd ügyesen kombinálom ezeket a tudáselemeket, valószínűleg elég lesz a kvarcóra működésének megértéséhez.
Üdv: Göndör
Volt már korábban, hogy egy fali kvarcórából lehet legegyszerűbben 1Hz-et csinálni,
Kvarcórából Ha ez nem elegns, akkor pedig ez: 4060+4013 (Bosszantó, hogy az utolsó kettes osztáshoz kell egy plussz IC, belerakhatták volna a 4060-ba....)
Köszi a mellékleteket! Ebből még ki lehet sütni valami értelmeset. Ha nem én, akkor valaki más. De azért én is próbálkozni fogok. Engem igazából a stopper rész vezérlése érdekel, az 1 Hz most nem annyira fontos számomra. Lehet, hogy nem is ebbe a topikba kellett volna megkérdeznem, de talán nem esik túl messzire ez a kérdés sem a témától.
Hi,
nézelődtem ebben a topikban, és sok jó kapcsolást találtam, ami 1 Hz-et állít elő. A kérdésem az, hogy ezeknél csomó kondit, ellenállást, ilyesmit látok, amit nem értek, hogy miért vannak ott. Én CMOS digitális órát szeretnék építeni majdan, és jó volna tudnom, hogy vajon miért nem jó az, ha a kvarcoszcit simán odakötözöm (zsineggel, hö ) a CMOS áramkör bemenetére?Mitől lesz így más? Mert egyszer összeraktam valami kezdetleges számlálót kvarcoszcival, minden kütyü nélkül, és nagyon ügyesen, szépen számolt (ha jól emlékszem). Válaszotokat köszi, z
A kvarcoszcillátor önmagában viszonylag stabil jelet ad, de a kvarc kicsit elhangolható kapacitásokkal. Ezért szokott lenni mellette egy trimmerkondi, amivel pontosan belőhető a freki. Persze csak akkor, ha van pontos, sokdigites frekimérőd.
Csináltam már pár órát, de a kvarcosakat nem sikerült jól beállítani (frekimérő nélkül). Ami jól járt, az a hálózati szinkronos, meg az, aminek az órajelét egy olcsó kinai mutatós óra paneljéből csináltam.
Hi,
Hestoreon találtam 32,768 KHz-es kvarcoszcit, órába valót, az csak pontos, nem? És miért látok a kvarccal párhuzamosan valami bitangnagy ellenállást? A multiméterem csak 20 KHz-ig mér frekvenciát, alsó határt jelenleg nem tudom... Szétbombáztam egy régi digitális karórámat, hát tényleg ott virít a trimmerkondi... Az én órámat autóba tenném, +5V stabilizált táp mögé, gondolom a feszültségingadozás azért kihat a pontosságra... Apropó, pontosság, van erre valami irányszám? a ppm az mit takar? Az óra egyébként CMOS áramkörökből épülne fel, ezzel kapcsolatos (nem ebbe a topicba illő) kérdésem, hogy az ic-k kimenetén van valamilyen védődióda/kapu/fityfiritty, ami a visszajövő dolgokat kizárja? Vagy esetleg egyenirányító diódát kéne beszúrjak oda? Köszi, z
Az ellenállás a cmos kapuk munkapontjának beállítására szolgál.
A feszültségingadozás nem nagyon hat ki, az 5V-ot gondolom 7805-el csinálod, akkor az meg elég stabilan tartja a kimenetet. A ppm a part per million, vagy valami ilyesminek a rövidítése. Tehát valami olyasmi, hogy a névleg 1000000 ciklus alatt valójában mennyivel tér el a ciklusok száma. Ha a kvarcodnál az áll ott, hogy 30ppm, akkor az azt jelenti, hogy a névleg 1000000 ciklus helyett valójában 999970 és 1000030 közötti számú ciklus fut le. Ha a ppm-ben megadott pontosságot elosztod 1000-el, akkor megkapod a pontosságot ezrelékben. Az IC kimenetén nincs semmi plusz védelem. A bemeneteken van dióda mind a táp, mind a test felé. Milyen visszajövő dolgokra gondolsz? |
Bejelentkezés
Hirdetés |




Elég pontos 1Hz -et állít elő a 32k -s kristályból.







