Fórum témák
» Több friss téma |
Fórum » MIG/MAG/Co2 hegesztő készülékek házilag
Témaindító: electorkalandor, idő: Feb 19, 2009
Témakörök:
Attól függ,milyen teljesítményű gépet akarsz csinálni.
400V tápfeszültségnél akár elég is lehet,akár 150-160A-es gépnél is.
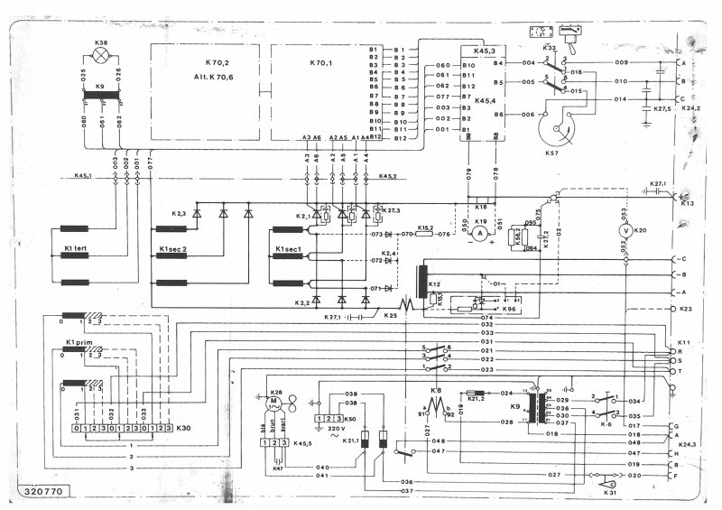
Mellékelem az LAH500 instruction manual-t, hátha segít valamit. Bár nem szervízdoksi,az sajnos nincsen, de némi angol tudással talán találsz benne információt. Egyelőre ennyi,sajnos sok munkám van (a munkahelyemen vagyok)ezért aztán most nincs időm a problémán gondolkozni.
Köszi a gyors választ , 230v ról üzemelne a gép , igy szerinted hány ampert tudna
Hogy érted a szakaszüzemet , amugy a trafó egy kétoszlopos és a szekunder oldalt 29V jön ki max és 19 volt a minimumon primer oldali csapolásokal oldom meg a szabájozást és hat fokozatal legalábis ez a terv , ja és ez a váltófeszültség
A szakaszüzem azt jelenti,hogy a gép nem dolgozhat folyamatosan az említett 120-130A terheléssel,hanem csak pl. 30% B.i.-vel. A B.i. a bekapcsolási időt jelenti. A 30%-os B.i. azt jelenti,hogy egy 10 perces időciklusnak a 30%-a lehet munkaciklus,a 70%-a szünetciklus.
Ebből az következik,hogy egy ilyen gépnek a 100%-os bekapcsolási idejéhez tartozó munkaáram a 30%-os B.i.-hez tartozó áramnak a 30%-a , azaz kb. 40-45A környékén van. Ez az az áram,amivel a gép folyamatosan terhelhető. A 19V és a 29V valószínűleg a legoptimálisabb lesz az adott huzalhoz.
Heló! Csaksikerült a primer tekercsnek is az 1,3 huzalt duplán feltekerni és épphogy elég lett a szekunder is 3 as huzalból van duplán , igy szerinted max hány ampert fog tudni a trafó és milyen bekapcsolási idővel?
A 60%-os bekapcsolási időhöz kb.115-120A áram fog tartozni,ami szerintem több mint elfogadható barkács célra. Arra viszont érdemes némi plusz pénzt költeni,hogy ne a főtrafó szolgáltassa az előtoláshoz szükséges segédfeszültséget,azaz e célból érdemes egy másik 40-63VA teljesítményű trafót beépíteni.
Erre gondoltam énis és meg is van a trafó hozzá , ami hiányzik az egy kapcsolási rajz , van egy bdw91c tipusu tranzisztorom és azzal szeretném megoldani ha lehet csak nemtudom hány voltosra csináljam meg a trafót , az elótoló motor egy ablaktörlő motor lenne
Ha jártas vagy az elektronikában, küldök neked előtoló kapcsolási rajzot. 24V szekunder feszültségű trafó megfelelő hozzá.
Azt megköszönném ha küldenél egy rajzot. Nameg nemtudom de lehet elrontotam a trafó tekercselését , mert egy progival számoltam a meneteket és a 40 cm* vasra 230 ra 205menetet számolt namármost ez lessz a legnagyobb fokozatom és ehezmég én számoltam az öt fokozatnak öszesen 120 menetet és igy az összes menet lett 325 és én ezt feleztem meg a két oszlopra , de lehet ezzel el is toltam , nemtudom hogy nem e a 205 menetet kellett volna megfeleznem , vagy ez nem anyira lényeges ?
A menetszám kiszámolásánál elvileg mindegy hogy miként tekered meg,gyakorlatilag viszont nem. Az optimális megoldás az,ha mindkét oszlopon levő primer mindkét oszlopot azonos mértékben gerjeszti. Ez csak akkor valósul meg maradéktalanul,ha megfelezed az össz- menetszámot,és a megcsapolásra szánt menetszámokat is. a fokozatkapcsolót pedig úgy kötöd be,hogy mindkét oszlopon egyidejűleg váltsa a fokozatot.
Ha ezzel a módszerrel tekered meg,akkor a szekunderek párhuzamosíthatók is,sorosíthatók is.Ha csak egyik oszlopon vannak a megcsapolások,akkor csak sorosíthatók, mivel az oszlopok gerjesztése aszimmetrikus lesz. Mellékelem a tekercselés elrendezését, ezt úgy képzeltem,hogy a legerősebb fokozatban 105-105 menet van mindkét oszlopon, és a fokozatok közti menetszámot is hasonlóképpen meg kell felezni úgy hogy a végén oszloponként kb.163-163 menet legyen összesen. A mási kmelléklet az ígért tolásszabályzó rajza.
Üdv!
Megnéztem a fojtót de nem látok rajta semmi problémát legalább is szemre. A küldött anyagot átnéztem de szerény angol tudásommal én nem tudtam kikövetkeztetni semmit belőle. Nekem is van egy rajzom az ESAB belsejéről de ez csak elvi és nem tartalmazza a tirisztorvezérlő panel kapcsolási rajzát. Azért ide teszem hátha neked vagy valakinek hasznos lesz.
A legnagyobb probléma az,hogy a rendelkezésemre álló szervizkönyvek közt nincs meg ez a típus. Emiatt aztán segíteni is körülményes. sőt,ezzel a típussal még nem is találkoztam a pályafutásom során.
Nekem mindenképp hasznos mivel éppen most tervezgetem a 3f trafó tirisztoros szabályozását . A rajzot mellékelem -- és várom a véleményeket . Hatüteműre tervezem mert meg vannak hozzá az egyforma 170A-es tirisztorok . Természetesen csak egy tirisztor vezérlését rajzoltam meg .
Van ennél lényegesen egyszerűbb megoldás is, és semmiképpen nem indokolt a hatütemű vezérlés. Hegesztőgépnél a 3 fázisú félhíd ugyanazt az eredményt adja mint a 6 ütemű.
6 ütemű vezérlést csak vontatásban, emelőműveknél szokás használni, ahol a fékezési energia visszanyerhető. Tisztán fogyasztó jellegű berendezéseknél csak 3/6fázisú gépeknél(a szekunder kettős csillag kapcsolású)szokás alkalmazni, pl. galvanizáló áramforrások.
Az egyszerűbb megoldás érdekelne ... Először én is három tirisztorral akartam de a diódák menete nem illeszkedik a tirisztorok hűtőbordáinak menetéhez pedig szeretném ha hat egyforma cucc lenne . A másik baj hogy nincs M16X1,5 mm-es menetmetszőm (ilyen menet van a hűtőbordákban ) - M18-asból viszont van menetfúróm és metszőm is . Esetleg M18-as menet fúrással-vágással tudnám a három diódát mellé illeszteni három tirisztorhoz .
Köszi szépen a kapcsolási rajzot , de arra nincs lehetőségem hogy a trafót az általad lerajzolt módon csináljam meg így azt csináltam hogy a primer az egyik oszlopra került a szekunder a másikra . remélem így jó lesz .
Milyen bordáid vannak?
Tegyél fel fényképet, hátha tudok segíteni.
Az sem rossz megoldás,bár szerintem nagy lesz a szórása a vasnak.Precíz lemezeléssel ez a probléma csökkenthető.
A hűtő tönkökből és a tirisztorokból van "bőven" , a diódából viszont három ill. a "piros"-ból csak egy van .
Úgy látom, M16x1,5-ös tönkjeid vannak. És ha segítek 3db M20x1,5-el? M18x1,5-ös is előfordulhat,hogy van.
De M16x1,5-ös is biztosan akad.Tudod, te is segítettél!
1.- a tirisztort bármikor használhatod diodaként ha sok van belőle...
az anódról 1N4001 meg 10Ohm sorba a kapura...2.Az egyenirányító híd kimenetére feltétlenül kell kötni egy visszafutó dódát (igazit) az induktivitás miatt... 3. a gyujtóköröd nincs szinkronizálva...
Szia,
nem biztatlak... ez a lehető legrosszabb megoldás...Fontos a CO2 heggesztőtrafónál a lehetséges LEGKISSEBB belső ellenálás, ettől függ a használhatóság...Ha a primér és a szekundér eggy oszlopon, egymás felett sokkal jobb volna...
1.- szerintem úgy nem jó mert a "csúcs" feszültség 26V és az 10 ohm-nál 2,6 A vezérlő áram . Az én kapcsolási rajzomon 12 V megy 47+10 ohm-os ellenálláson keresztül ami durván 200mA csak az első kis időre megy nagyobb vezérlő áram a biztos gyújtás végett míg az 1 mikrós kondenzátor fel nem töltődik . 3.-Miért nincs szinkronizálva ? Az optocsatolón keresztül menne a szinkronizáció csak a rajzomon nem fért a megfelelő helyre az "opto" résznek . Vagy nem így van ? Vannak gyári tirisztor vezérlőim is csak azok olyan bonyolultak , hogy ...
26Vnál nem fog kialakulni a 2.6A vezérlőáram mert a nullátmenet után pozitivba az áramerősség eléri a Tirisztor gyujtóáramát, az BEGYUJT és megszünteti a gyujtóáramot...
Ez csak arra jó ha diódaként használjuk a tirisztort... :yes: Különben ekkora tirisztornál rövid időre - 10-20 -mikroszekundumig simán elmegy 2-3Amperes gyujtóimpulzus... :yes: A rajzod szerint már az optocsatolón keresztül nehéz lessz szinkronizálni hogy jól is mőködjön a szabályozás...
"Ha a primér és a szekundér eggy oszlopon, egymás felett sokkal jobb volna.."
Ez csak arra az esetre igaz,ha az oszlop hossza többszöröse mint a járom hossza. Az általad preferált megoldást alkalmazza az ESAB is az egyfázisú gépeiben,de ott az oszlophossz legalább háromszorosa a járomhossznak. Ebből világos az az egyszerű tétel,hogy a lényeg az,hogy minél hosszabb tekercselést használjunk, ezzel csökken a sorok száma, és javul a csatolás.
Azt nem tudtam ill. nem gondoltam ha begyújt akkor megszűnik a vezérlő áram .
Ha tirisztort használok dióda helyett akkor nem nagyobb a veszteség rajta ?
"Ha tirisztort használok dióda helyett akkor nem nagyobb a veszteség rajta ?"
De. Bár nem túl jelentős a különbség. Egyébként is pazarlás egy vezérelhető félvezetőt ilyen mezei munkára fogni. Ha nincs elég diódád, szólj, és segítek.
Nagyon szépen köszönöm , van egy vagonnal csak vagy a menet nem jó ehhez a hűtőbordához vagy túl nagyok és csak a súlyt nyomják ,stb (még adok is el belőlük folyamatosan). A lényeg , hogy optimális megoldást keresek azokat felhasználva amik itthon vannak . Azért is görcsölök ennyit evvel a témával is mert sajnálnám ezt a régi technikát , alkatrészeket kidobni -- nekem még ez is kiváló lenne itthoni használatra és legalább tanulok is talán valamit .
|
Bejelentkezés
Hirdetés |











Ha tirisztort használok dióda helyett akkor nem nagyobb a veszteség rajta ? 



