Fórum témák

» Több friss téma
Fórum » Hangsugárzó építés, javítás - miértek, hogyanok
Lapozás: OK   198 / 735
(#) Bassmester válasza csezoli21 hozzászólására (») Okt 23, 2009 /
 
Meg ne haragudj rám, de ez a hangszóró jelen állapotában, inkább való kukába, mint bármilyen hangsugárzóba
(#) rephlex hozzászólása Okt 23, 2009 /
 
Sziasztok! A következő kérdéssel fordulok hozzátok: építettem kb 2 éve egy 80 literes zárt mélyládát ha31-el, és szeretném átalakítani reflex rendszerűvé. Milyen hangszórót ajánlotok a helyére? A meghajtást 2 darab lm3886 végzi hídban, egy 200W-os toroid társaságában, ezek a dobozban kaptak helyet.
(#) Tujmi hozzászólása Okt 23, 2009 /
 
szerintetek a mellékelt hangláda kihozná a maximumot az rcf hangszórómból?
(#) casnicasrl hozzászólása Okt 23, 2009 /
 
Sziasztok
Szeretnek epiteni egy difuzort a lada megvan egy 100cm*50cm*50cmes doboz es kette van valasztva
az egyik difuzor egy DIBEISI:Max. teljesítmény: 180W * Impedancia: 4 ohm * Érzékenység: 91dB Frekvencia: 20Hz - 4kHz * Mágnes: 30 Oz
ebbem meg lenne egy kozep es egy csipogo is de azokrol meg kepem nics
ha a doboz megfelel akkor meg valahol kelle elvalasztani......
Nagyon szepen megkerek minden kedves olvasot hogy ha tud egy erosito rajzot kuldjon hozza
ha nem tul nagy keres akko r uzenetbe kuldjetek el
(#) Bassmester válasza Tujmi hozzászólására (») Okt 24, 2009 /
 
Attól függ hogy neked mi jelenti a maximumot. Ha az alsó határfreki a fő szempont, akkor nem biztos hogy ez a legjobb láda. Az RCF hangszórókkal inkább Dynacord-féle rezonátort építenék. Ezt jól kell tervezni és hangolni, de az elkészítése sokkal egyszerűbb mint egy tölcséré, mélyebbre tud menni és a hangolási tartományban akkorát szól, hogy szinte felborít ha a közelébe merészkedsz
(#) subwoofer220 hozzászólása Okt 24, 2009 /
 
Sziasztok. Mi a vélemyényetek a SAL SBX 4060-ról? Tapasztalatok?
(#) subwoofer220 hozzászólása Okt 24, 2009 /
 
És milyen ládát kellene csinálni hozzá?
(#) Tujmi válasza Bassmester hozzászólására (») Okt 24, 2009 /
 
Nem az alsó határfrekit szeretném megcélozni mert ha jolt tudom az fölé még kell középmély is és nekem nincs olyan topládám hozzá amit letudnék ugy ereszteni! Ezért szeretnék egy tölcséres ládát ami "viszonylag" mélyre megy és nagy a hatásfoka! Több fajtát is néztem,legjobban a martin adio illetve a cerwin vega tervei tetszenek mert agész hosszu tölcsér van bene de nemtudom hogy a hangszóró hogy viselkedne nyomokamrával hisz 52mm es kilengést engedélyeznek neki csatoltam még 3 tervet
(#) Bassmester válasza Tujmi hozzászólására (») Okt 24, 2009 /
 
Az RCF LF 18N451 hasonlít a B&C 18TBX100-ra, az Xmax is kb ott van (jó nagy), szerintem az adottságait tekintve megállná a helyét abban a reflexes-nyomókamrás tölcsérben, persze megfelelő hangolással. Nem láttam és nem hallottam még ilyen ládát, de ha lehet adni arra a kis grafikonra, akkor 105dB körüli az érzékenysége és "mélységben" is elég jól ott van. Az a baj hogy ezek a ládák, szerkezetileg meglehetősen bonyolultak, csak szakavatott asztalos tudja őket normálisan megépíteni.
(#) Bassmester válasza subwoofer220 hozzászólására (») Okt 24, 2009 /
 
Elvileg 65 liter körüli zárt doboz kéne neki. Szerintem 14.000 Ft, sok egy kicsit egy gyárilag 90dB-es nek megadott hangszóróért.
(#) Ronin válasza csezoli21 hozzászólására (») Okt 24, 2009 /
 
Egyszer egy ilyesmi dobozban láttam ilyen Tesla hangszórót. (Feltéve hogy a tiéd is 20CM-es)

névtelen.JPG
    
(#) Tujmi válasza Bassmester hozzászólására (») Okt 24, 2009 /
 
Hát it sopronban nem igazán vannak jo asztalosok szerintem. Általában magam szoktam készíteni a ládáimat a pincében levő asztalos mühelyben amit használhatok,MDF ből szeretném elkészíteni de most még gondolkozok hogy milyen legyen időm az van hisz kb 3 hét mig megjönnek a hangszóróim,lehet csak egy egyszerübb konstrukciot fogok építeni amit eddig is használtam (mellékelt képen látszik)
(#) Bassmester válasza Tujmi hozzászólására (») Okt 24, 2009 /
 
Hát...ez sem egy kis darab és nem sokkal egyszerűbb. Én is már régóta áhítozom két 15"-os tölcséresre, de nem mertem belevágni, mert nem tudnám kellő pontossággal levagdosni a megadott szögű éleket. Meg aztán ha sikerülne is, egyből valami jóféle utánfutót is be kéne szereznem hozzájuk
(#) Tujmi válasza Bassmester hozzászólására (») Okt 24, 2009 /
 
Nekem van két darab üres 15" os hsz megy bele eddig azt használtam kicsit egyszerübb,a hk projektor lett lemásolva abban a tölcsér lapja teljesen egyenes. Ha érdekel irj privátot ugyis meg akarok tőlük szabadulni
amugy elég nagyot szolt sal 40100 al is!
(#) csezoli21 válasza Ronin hozzászólására (») Okt 24, 2009 /
 
Szia
Köszi a segítséget!
Hát ez sajna csak 16,5 cm
De szerintem nem fogok a tökéletességre törekedni, kicsit leveszek az oldalméretekből amit linkeltél, és szól ahogy szól,...
Köszönöm
helló
(#) Bassmester válasza Tujmi hozzászólására (») Okt 24, 2009 /
 
Dobhatnál fel képeket róluk privátban. PA 40100-am nekem is van reflexben, eddig szépen állja a sarat.
(#) Tujmi válasza Bassmester hozzászólására (») Okt 24, 2009 /
 
Holnap küldök képet csak felkell hoznom pincéből
(#) válasza csezoli21 hozzászólására (») Okt 25, 2009 /
 
Szia!

Nekem van itthon egy Tesla dobozpárom, abban mélyként(/mélyközépként) ARN 567/B hangszórók vannak. Nem tudom, hogy miben különböznek a a te 565-ösöeidtől, de azok is 4ohm/10W-osak. Az átmérőjük is egyezik a tieiddel, és ezek is gumiperemesek.
Így szerintem a doboztérfogatodnak is kb egyezni kellene az enyémmel, ami 210*330*210mm-es (szélesség*magasság*mélység) külső méretekkel rendelkezik. A fala kb 10mm lehet, de csak ezért nem szedném szét - viszont ezekből az adatokból már könnyen kiszámolható a belső térfogata.
Ja és még valami: Bővebben: Link. Itt körülnézhetsz a régebbi Tesla hangszórók között, meg lehet tudni róluk egy pár dolgot, ami dobozépítésnél igen hasznos lehet.
Egyébként az én felújított dobozaimban ARV161-es középmagas hsz van(gyári ajánlás), 2000Hz-es keresztezési frekivel(ez is gyári adat alapján). Utóbbi szerintem rendben van, de az előbbin (ARV161) viszont érdemes változtatni, mert nem megy fel elég magasra, olyan tompán, sávhatároltan szól vele a doboz.
(#) csezoli21 válasza hozzászólására (») Okt 25, 2009 /
 
Helló
Nagyon szépen köszönöm az infót
Sokat segítettél vele
És az adatlapnak is hasznát fogom venni!
Köszönöm még egyszer!
Helló
(#) válasza csezoli21 hozzászólására (») Okt 25, 2009 /
 
Hali!

Igazán nincs mit, örülök hogy tudtam segíteni

szerk.: amúgy ezek a Tesla mélyek méreteikhez képest nagyon mélyre mennek (hát igen, papírmembrán ugyebár). A HA25-ös (25cm ármérőjű) vidi mélyhangszóróm (DC2550-es dobozban) elbújhatott mellette, már amikor még megvolt.
(#) válasza hozzászólására (») Okt 25, 2009 /
 
No persze nem a papírmembrán miatt megy ilyen mélyre, de attól lesznek igazán szépek a mélyei - szerintem.
(#) Zupp87 válasza hozzászólására (») Okt 25, 2009 /
 
Nekem 17 centis, PP membrános hangszóróm van, és azért az is elég mélyre megy Bár bevallom, van nekem is egy 16 centis Tesla hangszóróm, azt hiszem ARN5608, és szerintem tényleg nem egy rossz hangszóró.. zártat szeretei, de elég mélye van.
(#) Mát906 hozzászólása Okt 25, 2009 /
 
Hali! Nekem azt mondták hogy 1 tekercset ha bekötünk 1 hangszóróra akkor leveszi a magas hangokat...kipróbáltam, le is vette....a Mélyet!!! Valaki írja le hogy kell bekötni normálisan vagy hogy van ez az egész?
(#) válasza Mát906 hozzászólására (») Okt 25, 2009 /
 
Szia!

Ha egy hangszóróval sorosan bekötsz egy tekercset, akkor az csak a mély hangokat fogja átengedni, azaz így egy elsőrendű (6dB/oktáv vágási meredekségű) szűrőhöz jutsz. Ha neked pont a mély hangok 'vesztek el', akkor a tekercsedet valószínűleg párhuzamosan kötötted be a hangszóróval, ami így a kis soros ellenállásán keresztül söntölte a hangszóród tekercsét, a mély hangokat kvázi rövidrezárva.
(#) subwoofer220 hozzászólása Okt 25, 2009 /
 
Sziasztok! Mit jelent az hogy ha, rá van írva a hangszóróra hogy FREE AIR ?
(#) szamóca válasza subwoofer220 hozzászólására (») Okt 25, 2009 /
 
Nyitott dobozba való. Merevebb a membránfelfüggesztése.
(#) subwoofer220 válasza szamóca hozzászólására (») Okt 25, 2009 /
 
Köszönöm!
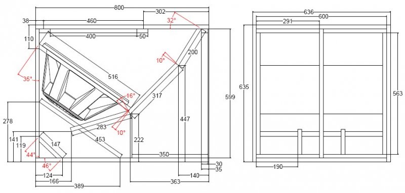
(#) Lázár Péter hozzászólása Okt 27, 2009 /
 
Üdv. Egy kis tanács kellenék. Ugyanis terveztem egy dobozt és azt kellene véleményezni. Célja mindösszesen az, hogy kisméretű hangszórómból hoznák ki többet ezzel az építéssel. Az ötlet hasonló a fúvós hangszerekhez csak fordítva működne. Minél távolabb kerülünk a hangszórótól annál mélyebb a hang, de menet közben is vannak "lecsapolások". Illetve a hangszóró teljesen a dobozban van, elkerülve az ilyen kisebb sugárzókra jellemző, nagy hangerőnél való fülsértő "sivítást". Lásd például a házimozik maroknyi műanyag dobozait. És még lényeges, hogy a mély hang szokatlanul de fölül is jelentkezne. Azok tanácsát várom akik nagyon otthon vannak a témában. A méretek egyenlőre rugalmasak, jobb ötleteket vagy jó tanácsot várok, mielőtt elkezdeném az építést

dobozterv.jpg
    
(#) Tujmi hozzászólása Okt 27, 2009 /
 
Tudja valaki hogy melyik SAL PA szol jobban ? Az újabb vagy a régi fajta? valakinek valami tapasztalata?
(#) djyuri hozzászólása Okt 27, 2009 /
 
Üdv

Kérhetek segítséget abban,hogy nagyobb átmérőjű hangolható szubcsöveket hol találok?
Min 10-13cm-től(18 lenne a legoptimálisabb) kellene az átmérő. A hossz pedig legalább 25cm-ig állítható legyen.

Köszönöm!


ui.: Ha esetleg nem találok,akkor hangminőség romlása nélkül több kisebből is össze lehet rakni a kívánt nyílást?
Következő: »»   198 / 735
Bejelentkezés

Belépés

Hirdetés
XDT.hu
Az oldalon sütiket használunk a helyes működéshez. Bővebb információt az adatvédelmi szabályzatban olvashatsz. Megértettem