Fórum témák
» Több friss téma |
Fórum » Hangsugárzó építés, javítás - miértek, hogyanok
Témaindító: csonthulye, idő: Dec 10, 2005
Témakörök:
Meg ne haragudj rám, de ez a hangszóró jelen állapotában, inkább való kukába, mint bármilyen hangsugárzóba
Sziasztok! A következő kérdéssel fordulok hozzátok: építettem kb 2 éve egy 80 literes zárt mélyládát ha31-el, és szeretném átalakítani reflex rendszerűvé. Milyen hangszórót ajánlotok a helyére? A meghajtást 2 darab lm3886 végzi hídban, egy 200W-os toroid társaságában, ezek a dobozban kaptak helyet.
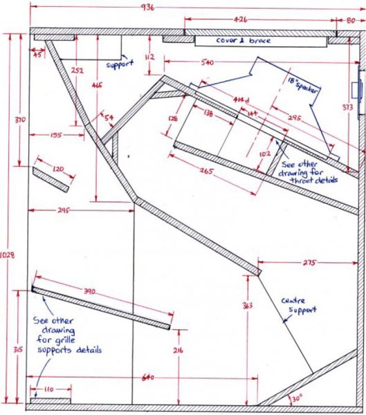
szerintetek a mellékelt hangláda kihozná a maximumot az rcf hangszórómból?
Sziasztok
Szeretnek epiteni egy difuzort a lada megvan egy 100cm*50cm*50cmes doboz es kette van valasztva az egyik difuzor egy DIBEISI:Max. teljesítmény: 180W * Impedancia: 4 ohm * Érzékenység: 91dB Frekvencia: 20Hz - 4kHz * Mágnes: 30 Oz ebbem meg lenne egy kozep es egy csipogo is de azokrol meg kepem nics ha a doboz megfelel akkor meg valahol kelle elvalasztani...... Nagyon szepen megkerek minden kedves olvasot hogy ha tud egy erosito rajzot kuldjon hozza ha nem tul nagy keres akko r uzenetbe kuldjetek el
Attól függ hogy neked mi jelenti a maximumot. Ha az alsó határfreki a fő szempont, akkor nem biztos hogy ez a legjobb láda. Az RCF hangszórókkal inkább Dynacord-féle rezonátort építenék. Ezt jól kell tervezni és hangolni, de az elkészítése sokkal egyszerűbb mint egy tölcséré, mélyebbre tud menni és a hangolási tartományban akkorát szól, hogy szinte felborít ha a közelébe merészkedsz
Sziasztok. Mi a vélemyényetek a SAL SBX 4060-ról? Tapasztalatok?
És milyen ládát kellene csinálni hozzá?
Nem az alsó határfrekit szeretném megcélozni mert ha jolt tudom az fölé még kell középmély is és nekem nincs olyan topládám hozzá amit letudnék ugy ereszteni! Ezért szeretnék egy tölcséres ládát ami "viszonylag" mélyre megy és nagy a hatásfoka! Több fajtát is néztem,legjobban a martin adio illetve a cerwin vega tervei tetszenek mert agész hosszu tölcsér van bene de nemtudom hogy a hangszóró hogy viselkedne nyomokamrával hisz 52mm es kilengést engedélyeznek neki csatoltam még 3 tervet
Az RCF LF 18N451 hasonlít a B&C 18TBX100-ra, az Xmax is kb ott van (jó nagy), szerintem az adottságait tekintve megállná a helyét abban a reflexes-nyomókamrás tölcsérben, persze megfelelő hangolással. Nem láttam és nem hallottam még ilyen ládát, de ha lehet adni arra a kis grafikonra, akkor 105dB körüli az érzékenysége és "mélységben" is elég jól ott van. Az a baj hogy ezek a ládák, szerkezetileg meglehetősen bonyolultak, csak szakavatott asztalos tudja őket normálisan megépíteni.
Elvileg 65 liter körüli zárt doboz kéne neki. Szerintem 14.000 Ft, sok egy kicsit egy gyárilag 90dB-es nek megadott hangszóróért.
Egyszer egy ilyesmi dobozban láttam ilyen Tesla hangszórót. (Feltéve hogy a tiéd is 20CM-es)
Hát it sopronban nem igazán vannak jo asztalosok szerintem. Általában magam szoktam készíteni a ládáimat a pincében levő asztalos mühelyben amit használhatok,MDF ből szeretném elkészíteni de most még gondolkozok hogy milyen legyen időm az van hisz kb 3 hét mig megjönnek a hangszóróim,lehet csak egy egyszerübb konstrukciot fogok építeni amit eddig is használtam (mellékelt képen látszik)
Hát...ez sem egy kis darab és nem sokkal egyszerűbb. Én is már régóta áhítozom két 15"-os tölcséresre, de nem mertem belevágni, mert nem tudnám kellő pontossággal levagdosni a megadott szögű éleket. Meg aztán ha sikerülne is, egyből valami jóféle utánfutót is be kéne szereznem hozzájuk
Nekem van két darab üres 15" os hsz megy bele eddig azt használtam
kicsit egyszerübb,a hk projektor lett lemásolva abban a tölcsér lapja teljesen egyenes. Ha érdekel irj privátot ugyis meg akarok tőlük szabadulni ![]() amugy elég nagyot szolt sal 40100 al is!
Szia
Köszi a segítséget! Hát ez sajna csak 16,5 cm De szerintem nem fogok a tökéletességre törekedni, kicsit leveszek az oldalméretekből amit linkeltél, és szól ahogy szól,... Köszönöm helló
Dobhatnál fel képeket róluk privátban. PA 40100-am nekem is van reflexben, eddig szépen állja a sarat.
Holnap küldök képet csak felkell hoznom pincéből
Szia!
Nekem van itthon egy Tesla dobozpárom, abban mélyként(/mélyközépként) ARN 567/B hangszórók vannak. Nem tudom, hogy miben különböznek a a te 565-ösöeidtől, de azok is 4ohm/10W-osak. Az átmérőjük is egyezik a tieiddel, és ezek is gumiperemesek. Így szerintem a doboztérfogatodnak is kb egyezni kellene az enyémmel, ami 210*330*210mm-es (szélesség*magasság*mélység) külső méretekkel rendelkezik. A fala kb 10mm lehet, de csak ezért nem szedném szét - viszont ezekből az adatokból már könnyen kiszámolható a belső térfogata. Ja és még valami: Bővebben: Link. Itt körülnézhetsz a régebbi Tesla hangszórók között, meg lehet tudni róluk egy pár dolgot, ami dobozépítésnél igen hasznos lehet. Egyébként az én felújított dobozaimban ARV161-es középmagas hsz van(gyári ajánlás), 2000Hz-es keresztezési frekivel(ez is gyári adat alapján). Utóbbi szerintem rendben van, de az előbbin (ARV161) viszont érdemes változtatni, mert nem megy fel elég magasra, olyan tompán, sávhatároltan szól vele a doboz.
Helló
Nagyon szépen köszönöm az infót ![]() Sokat segítettél vele ![]() És az adatlapnak is hasznát fogom venni! Köszönöm még egyszer! Helló
Hali!
Igazán nincs mit, örülök hogy tudtam segíteni ![]() szerk.: amúgy ezek a Tesla mélyek méreteikhez képest nagyon mélyre mennek (hát igen, papírmembrán ugyebár). A HA25-ös (25cm ármérőjű) vidi mélyhangszóróm (DC2550-es dobozban) elbújhatott mellette, már amikor még megvolt.
No persze nem a papírmembrán miatt megy ilyen mélyre, de attól lesznek igazán szépek a mélyei - szerintem.
Nekem 17 centis, PP membrános hangszóróm van, és azért az is elég mélyre megy
Bár bevallom, van nekem is egy 16 centis Tesla hangszóróm, azt hiszem ARN5608, és szerintem tényleg nem egy rossz hangszóró.. zártat szeretei, de elég mélye van.
Hali! Nekem azt mondták hogy 1 tekercset ha bekötünk 1 hangszóróra akkor leveszi a magas hangokat...kipróbáltam, le is vette....a Mélyet!!! Valaki írja le hogy kell bekötni normálisan vagy hogy van ez az egész?
Szia!
Ha egy hangszóróval sorosan bekötsz egy tekercset, akkor az csak a mély hangokat fogja átengedni, azaz így egy elsőrendű (6dB/oktáv vágási meredekségű) szűrőhöz jutsz. Ha neked pont a mély hangok 'vesztek el', akkor a tekercsedet valószínűleg párhuzamosan kötötted be a hangszóróval, ami így a kis soros ellenállásán keresztül söntölte a hangszóród tekercsét, a mély hangokat kvázi rövidrezárva.
Sziasztok! Mit jelent az hogy ha, rá van írva a hangszóróra hogy FREE AIR ?
Nyitott dobozba való. Merevebb a membránfelfüggesztése.
Köszönöm!
Üdv. Egy kis tanács kellenék. Ugyanis terveztem egy dobozt és azt kellene véleményezni. Célja mindösszesen az, hogy kisméretű hangszórómból hoznák ki többet ezzel az építéssel. Az ötlet hasonló a fúvós hangszerekhez csak fordítva működne. Minél távolabb kerülünk a hangszórótól annál mélyebb a hang, de menet közben is vannak "lecsapolások". Illetve a hangszóró teljesen a dobozban van, elkerülve az ilyen kisebb sugárzókra jellemző, nagy hangerőnél való fülsértő "sivítást". Lásd például a házimozik maroknyi műanyag dobozait. És még lényeges, hogy a mély hang szokatlanul de fölül is jelentkezne. Azok tanácsát várom akik nagyon otthon vannak a témában. A méretek egyenlőre rugalmasak, jobb ötleteket vagy jó tanácsot várok, mielőtt elkezdeném az építést
Tudja valaki hogy melyik SAL PA szol jobban ? Az újabb vagy a régi fajta? valakinek valami tapasztalata?
Üdv
Kérhetek segítséget abban,hogy nagyobb átmérőjű hangolható szubcsöveket hol találok? Min 10-13cm-től(18 lenne a legoptimálisabb) kellene az átmérő. A hossz pedig legalább 25cm-ig állítható legyen. Köszönöm! ui.: Ha esetleg nem találok,akkor hangminőség romlása nélkül több kisebből is össze lehet rakni a kívánt nyílást? |
Bejelentkezés
Hirdetés |










kicsit egyszerübb,a hk projektor lett lemásolva abban a tölcsér lapja teljesen egyenes. Ha érdekel irj privátot ugyis meg akarok tőlük szabadulni






