Fórum témák
» Több friss téma |
Szia! Nekem Junkers kazánnal volt olyan problémám, hogy nyomáskülönbség kapcsoló hibakóddal nem indult a kazán. Szerelő->csere->azzal se volt jó. (Neki volt még pár nem túl megalapozott ötlete, de egyik sem jött be.)
Szóval nekem a megfejtés az volt, hogy kiszedtem a ventilátort, és a lapátok tele voltak kosszal. Ezért nem tudod megfelelő mennyiségű levegőt szállítani. Azt óvatosan letisztogattam, kompresszorral (ezzel is óvatosan) megfújkáltam, és azóta megy. Vigyázni kell a gyárilag rajta lévő kis kiegyensúlyozó izékre, le ne essenek.
Szia!
Nos kicseréltem egy relét meg jópár kondit a vezérlő és a gyújtópanelen is. Ez nem, vagy nem sokat segített. Majd a gyújtó elektródát közelebb hajlítottam a gázrózsához, azóta sokkal jobb. De nem 100%-os. Egyelőre ennyi. Igaz közben megjavítottam a hőmérséklet érzékelőt is, így végre látom hány fokosra melegíti a vizet. Idézet: „a gyújtó elektródát közelebb hajlítottam a gázrózsához” Ha le is tisztítod az elektródát finom csiszolópapírral, lehet, hogy még jobb lesz.
Boldog Karácsonyt!
Demraddokinak hála, sikerült hőmérsékletérzékelőt beszerezni. MInden szuper volt 24.-én reggelig. Azóta se kép se hang. Kijelző sötét, üvegbiztosítékig van delej. Most megint mi a f@sz lehet vele?
Nem tudom, te voltál-e, aki küzdött korábban a biztosítékkal. Az értéke mellett a sebességnek is stimmelnie kell, lomhát (lassú) vegyél bele.
Egy érdekes hiba állt ma elő a BAXI Prime HT 240 kazánomnál:
1. A HMV változóan langyos-meleg, ha emelem a hőfokot a szabályzóval a kzánon, akkor sem emelkedik. 2. A fűtés rendben megy, a beállított vízhőfokkal. 3. A háromjáratú szelep rendben átvált, HMV vételnél a fűtés előremenő nem melegszik. 4. Ha fűtés ágban a csapokat elzárom, semmi sem változik. 5. A hőcserélőt kiszedtem, tiszta. A két ág nem ereszt át egymás között. 6. A háromjáratú szelepen levő NTK a gyári Ohm értéket adja, a vízhőmérsékletet rendben mutatja. De ez nem a kimenő HMV vízhőmérséklet. 7. A gázégőt a rendszer szabályozza, hallható a változás. 8. Reseteltem, de nem használt. Van valakinek ötlete, hol lehet a hiba?
Valószínűleg lehet egy másik NTK a melegvíz-kimenetnél is, nem?
Ha a melegvízelvételt csökkented (kevésbé nyitod meg a csapot), akkor melegebb lesz-e kissé a melegvíz?
Nincs másik NTK. A langyosság független a vízmennyiségtől, és változó a hőmérséklete az idő függvényében. Az bosszant, hogy mindent átnéztem, és nem maradt lehetőség. Hacsak a panelen a hőszabályzó áramkör nem. Na, az nem hiányzana.
Hallható, hogy ilyenkor a szivattyú megy?
Meg tudod mérni a hőcserélő primer oldalán a víz (cső) hőmérsékletet? Magyarán hozza a kb. 80 fokot a HMV-hez? Az NTK vezetéke nem sérült? Kivetted és úgy mérted forró vízben az ellenállásokat? Amivel beállítod a víz hőfokát, az visszajelzést ad?
Szia! A HMV NTC-re zöld vezetékek csatlakoznak de van a egy prioritás kapcsoló ami (szerintem) turbina lapátos megoldású, piros-fehér-világoskék vezetékek csatlakoznak rá (forog benne egy mágneses propeller) aminek a fordulata adja a modulációt. Ha ez nem forog kellően akkor nem fog teljes terheléssel indulni a HMV készítés. Ez lehet vízkőlerakódás miatt vagy egyéb szennyeződés gátolja a forgásban. Ezt kellene kitisztítani, vízkőteleníteni.
Köszönöm a válaszokat.
Délután újra nekiestem. A hőcserélőt újra kiszedtem, átmostam. Némi fekete kosz jött ki (nem darabos, nem vízkő). Átmostam a 3 járatú szelepet is, onan is némi hasonló kosz jött ki. Összeraktam, JÓ LETT. De ettől? Csodálkozok. Holnap megnézem a javasolt turbina lapátos jeladót. De ezt hol keressem? A 3 járatú szelepen nincs elektromos csatlakozás. A vízblokkon pedig csak az áramlás mérő jeladó van a felső részen.
Sziasztok!
Van egy Immergas ZEUS Superior 24 kW fali kombi kazánom. Az a baj, hogy a HMV-t túlmelegíti. Ha 38 fok van beállítva, felfűti 64 fokra, sőt beindul, ha a víz hőmérséklete 44 fokos. Kínomban most lejjebb tettem 34-re. 42-nél bekapcsol, felmelegíti 62-ig. A fűtés előremenője 55 fokra van állítva, 56 fokra melegíti, aztán keringteti. (És szerintem sűrűn bekapcsol.) Októberben volt itt egy immergas-os szakember, kipucolt, karbantartott, és a HMV hőérzékelőjét (NTC?) rábeszélésemre kicserélte (a régit is itt hagyta, mert "nem szoktak azok elromlani"), de úgy tűnik nem segített. Azt mondta, normális, hogy ennyire felfűt, mert annyira nem is meleg, és fenn a tartályban más hőmérséklet van, mint lenn. Gondoltam, biztos így volt mindig, és én nem emlékszem jól. Aztán most egy alkalommal beállítottuk a vízhőmérsékletet 50 fokra (mint tavaly fürdéskor szoktuk volt), és elkezdett csöpögni a túlnyomás-szelep. Nézem, már 79 foknál jár. Szóval szerintem ez nem jó így. Mi lehet a hiba? Panel, vagy csak valamelyik érzékelő / szelep? Előre is köszönöm!
Sziasztok! Dég Colibri kombikazán hibám van. Fűtés része rendben működik, viszont HMV készítésnél nem működik... A hiba a következő, ha megnyitom a melegvizet indul rendben a keringető szivattyú és a szellőztető ventillátor is de kb csak 10-ből 1x gyújt be... Akkor is gyorsan 80 fokra melegíti a vizet és rövid időn belül megáll és csak a keringető és a turbó venti megy. A hőfokszabályzóra nem reagál... Valakinek valami ötlete?
Sziasztok!
Újabb fejlemények DÉG Colibri KK-E ügyben. Kihívtam megint egy szerelőt, hogy javítsa meg. Nézegette, majd áthidalta a víznyomás kapcsolót. Azt mondta jó lesz. Ma délután volt kinn. Most este már nem ment, megint a piros hiba. A kérdésem az lenne, hogy ez a nyomás kapcsoló hogy kéne működjön? Alap állapotban nyitott és ha van nyomás, akkor meg zár (vezet)? Mert akkor simán kimérem egy multiméterrel, ha így van. Illetve érdeklődnék kinek lenne valami elektronikus leírása a géphez, hogy a működését vizsgálni tudjam, mert úgy tűnik a szerelőkön kifog ez a madár. Van multiméterem, lakatfogóm, oszcilloszkópom, tehát ez a rész nem akadály. Gáz részben nincs hiba szerintem sem és a szerelők szerint sem, így azokhoz nem nyúlnék. A hiba jelensége továbbra is az, hogy amikor a termosztát kapcsol, jelzi, hogy fűteni kell. A kazán el is indítja a szivattyút, majd nem sikerül/vagy valamiért nem indítja a szikráztatást. És elkezd a zöld led sűrűn villogni majd piros hibával leáll. Ha ezek után reset/off állásba teszem és újra visszakapcsolom fűtés/HMV módba, akkor néha beindul, néha nem. Van, hogy 2-3 napig hibátlanul megy a fűtés és a HMV is, van hogy fél óránként pirosba megy. Nyomás megfelelő benne. (én is néztem, illetve már két szerelő is azt monda) Alaplapot és gyújtó panelt nézegettem. (forrasztási hibát nem találtam) Cseréltem az alaplapon a gyújtásengedélyező relét és a 3db elkót. Ráforrasztottam az alaplap és a gyújtópanel közti utakra. A gyújtás panelen kicseréltem az 50V-os 47µF-os elkókat. Ezek után egy hétig ment, azt hittem sikerrel jártam, de ez csak a véletlen műve volt. Ekkor napokig mindig újra indítottuk ha leállt, és vártuk a kihívott szerelőt, aki ma volt kint és mint írtam áthidalta rövidzárral a víznyomás kapcsolót, mert szerinte az alaplap emiatt nem gyújtott be. Letesztelte 3 ki/be kapcsolással és akkor jó volt a kazán. Elment. Majd most este ugyanolyan rossz, mint eddig. Bármilyen leírást a DÉG rendszerről szívesen fogadok. Vagy, pl. mi szokott az alaplapon/gyújtó panelen meghalni, mert azt kicserélném akkor még. Bármilyen infó érdekel, mert sajnos 10 szerelőből 1 ha vállal DÉG Colibrit. De eddig ők sem jártak sikerrel. A pénzem meg fogy... ![]() Minden féle infót szívesen fogadok és előre is nagyon szépen köszönök!
Illetve még azt mondta, hogy lehet, hogy tényleg az alaplap a gond.
Ma még annyit csinált, hogy én 1,2 barra állítottam a rendszer nyomást, mert a leírásban 1-1,5 bar volt írva. A szerelő ma feltolta 1,5 bar-ig.
Ezt a kazánt nem ismerem, de a kazánok zömének az indulási sorrendje az, hogy fűtési- vagy melegvíz igény esetén indítja a ventilátort , átvált a presszosztát, majd elkezd szikráztatni, ezután nyit a gázszelep és ha minden rendben van akkor be is gyullad az égő. Persze ha nincs ventilátor, vagy őrlángos akkor ez nem így van, de a kazánodban van venti és elektronikus gyújtású, ezért írtam ezt le. Sajnos így távolról nem igen tudnám behatárolni a kazánod hibáját, mert lehet panelhiba is, meg akármelyik periféria is ami a gyújtáshoz kell, vagy a jele kellene.
van olyan kazántipus amibe a presszosztát ágában vannak a biztonsági hőkioldók, és a füst visszaáramlás-érzékelő is, akár ezek kontakthibája is okozhatja nálad a hibát! Ezeket is nézd át! Lehet segítene a vezérlőpanel mindkét oldaláról egy kép is.
Szia! Az nem lehet, hogy a ventillátor és annak nyomáskapcsolója okozza ezt a bizonytalan működést? Lehet, hogy a nyomáskapcsoló az éppen átállna de a ventillátor az indulást követően már nem szállít elég levegőt (nem hoz létre elegendő nyomáskülönbséget) és az ellenőrzéshez szükséges időn belül ki is kapcsol a nyomáskapcsolója és a kazán ezért nem is szikráztat, kiáll hibára?
Olvass ide vissza és kövesd végig a hzs-t A hozzászólás módosítva: Jan 2, 2019
Nem tudom, hogy az én problémám olyan-e mint Tudatlan01-é, mert nekem nem a 90 fok miatt tilt le, de az is igaz, hogy sokkal lejjebb van a hőmérséklet is, mint egy normál HMV. Próbáltam szétszedni az áramláskapcsolót, de nem akartam feszegetni. Nem tudom, hogy kell-e miatta vízteleníteni a kazánt.
Valakinek egy ötlete? Amennyit Tudatlan01 elszórakozott az immergasosokkal, nem tudom, én inkább csak akkor hívnám őket, ha megvan, hogy mit kell kicserélniük
Azt még nem írtad le, hogy a hőmérő mutatja melegvíz előállítás közben ezt a hőfokot, vagy ennyire fűti fel a tartályban a víz hőmérsékletét.
Szia!
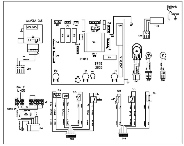
Először is nagyon szépen köszönöm a választ! Másodszor, pedig: Nekem szerintem nincs ventilátorom, az enyém nem turbós. Leírásban sem találtam semmi ventilátort. Vagy nem tudom mire gondolsz. A füst visszaáramlás érzékelőt már megmozgattam, meg a csatlakozóját lehúztam, visszadugtam. Mérni lehet ezeken valamit? Mik a jó értékek? (ellenállás, szakadás, vezetés?) Én úgy gondolom valamelyik panelen lehet a hiba, de már az is jó lenne ha az kiderülne melyiken. Van egy nagy panel (vezérlő panel), amin van a trafó is és a sok csatlakozás. Meg van egy gyújtópanel, ami kicsi keskeny és csak pár csatlakozója van. A kicsit 20E körül találtam neten, a nagyot 58E-ért (szerelő 80E-t mondott rá...). Ezért nem volna mindegy, hogy potyára cserélem e. Illetve ha lenne rá mód, akár ezek is javíthatóak lennének. Még a fólia kondikat nem cseréltem. Illetve a diódákat sem mértem, forrasztottam ki. Az a baj, hogy mivel ezzel működik a fűtés, sok időm nincs pepecselni vele. Mindig csak annyi, hogy a lakás ne hűljön nagyon ki! Konkrét képeket este tudok. De itt van pár kép -->
Szia!
Neked is köszönöm a hozzászólást! Neked is csak azt tudom mondani, hogy nem tudom milyen ventillátorról beszéltek. Lehet, hogy a lírásban máshogyan hivatkoznak rá? (kép) Nem turnbós a kazánom. Köszönöm!
Elolvastam a linkelt hozzászólásokat is.
Szomorú hogy ő sem talált szerelőt aki meg tudná javítani a kazánját. Viszont az övé FT-E, vagyis turbós. Az enyém KK-E. Nem turbós, de nincs őrlángja.
Mindkettő. Az értékeket a kis kijelző mutatja a kazánon, de ez reális lehet, mert a kezem nem bírja a vizhőmérsékletet, ami a csapon kifolyik. Ergo az tuti nem 30 fokos.
A Te kazánodnál (a gépkönyve szerint) a HMV-körben nem áramláskapcsoló, hanem NTC van.
Az áramláskapcsoló Tudatlan01-nél mikrokapcsolós kivitelű volt. A hozzászólás módosítva: Jan 3, 2019
Azóta mi van a kazánnal?
Csak mert én is azt figyeltem meg, hogy ha lehűl akkor mindig jól működik!
Köszönöm!
Sok érdekeset olvastam és van sok hasonlóság. Ráadásul pont ugyanaz a Colibri típus is.
Én úgy olvastam, hogy két hiba volt nála. 1. gyújtásprobléma - gyújtópanel csere. 2. üzem közbeni leállás - valószínűleg a füstgáztermosztát tiltott.
Így ránézésre a gyujtópanelen kidobva: kondik ( szürke x1-es v. x2-es), relék, elkó kondik, siemens fóliakondi kb. 4 ezer vs. 20 ezer. Csak vakon...
Igen, így volt.
Nekem üzem közben sosem áll le. Csak a begyújtás nem megy neki néha. Egy ilyen kondizás még szerintem belefér. Már cseréltem az elkókat meg egy relét. De ez nem segített, viszont 500Ft alatt volt a költsége.
Szia Gombszem. Csak beleolvastam a Baxi kazános témába. Lehet, hogy nem ide illik, de leírom hátha valakinek hasznára lesz: Olyan problémám volt, hogy beálltam tusolni és hol jéghideg víz folyt, vagy forró. Ez így ment napokig, gondoltam ehhez szerelő kell. Eközben egyik nap kilyukadt a tusolócső és tettem rá egy újat meg új tusolófejet. Semmi probléma nem volt ezután. Tehát és arra gondolok, hogy nem tudott a régi tusolófej elegendő vizet átereszteni és ezért volt a fenti jelenség. Ha nem idevágó téma, akkor bocs, de felületesen olvastam.
A hozzászólás módosítva: Jan 3, 2019
|
Bejelentkezés
Hirdetés |












