Fórum témák
» Több friss téma |
A gázkazánnak van egy belső termosztátja ami beállított hőfokra lekapcsol, de van még egy biztonsági érzékelő is.
Ne csinálj reteszelést, egyszerűen kapcsold ki a gázkazánt, vagy a termosztátot állítsd alacsony fokra. Nem szabad túlbonyolítani, mert meghibásodás esetén komoly következmények lehetnek.
Szia !
Ez egy Kínai termosztát, nem hosszú életű lesz ! A fém testi csavarhoz a védővezetéket az 1-3-as pontokhoz pedig a keringető sziv. vezérlését kell kötni. Abban az esetben ha a közeghőmérséklet emelkedésére kapcsoljon be pl. a beállított hőfokon pl.40C-fok.
Köszi a segítséget!
Időközben már én is rájöttem.
Szia!
Ez így nekem kinai,de ha lefoditom magyara akkor a fekete vezetéket ez a fázis bekötöm 1 pontra a szivatyú fekete vezetkét beöktöm 3 pontra, kék vezetéket pedig ez a nulla összekötöm ez így jó-e Vászat nagyon megkösznöm. Köszi az elözö választ is. Rap24!
Szia !
Jól tudod ! Fázis az 1-es (fekete) , visszamenő a szivattyúhoz 3-as (fekete) ,a szivattyúnál kösd be a nullát (kék). A csőtermosztátra (belső fémcsavarhoz) kösd a védővezetéket (sárgászöld) Üdv.:moele :felkialtas:
Szia!
Még azt szeretném megkérdezni ,hogy mind a kettő földelő vezetéket be kötöm a termosztátba. Köszi!
Szia!
Nagyon köszönöm a sgitséget, müködik. rap24
Szia !
Igen be kell kötni, ha ott viszed keresztül a védőszálat. :felkialtas:
Szia !
Ügyes vagy ! További szép napot ! Üdv.: moele
Sziasztok!
Van egy vegyes tüzelésű és egy kondenzációs kazánom. Siemens RAM-TR csőtermosztát van a vegyes tüzelésű kazán előremenő csövén, ez kapcsolja a visszatérő ágban lévő szivattyút. A csőtermosztát úgy van bekötve, h akkor kapcsolja a szivattyút ha a víz elérte a 45 °C-t. Alatta kikapcsolja. Meg lehet-e azt oldani, h a csőtermosztát másik csatlakozására rá kötöm a vezeték nélküli szobatermosztát érzékelőjének vezetékét, oly módon, h akkor záródjon ha a csőtermosztát kikapcsolt és egyben leállította a vegyes tüzelésű kazán szivattyúját? üdv.Ottó
Szia !
Meg lehet oldani, de mi az értelme, hogy a szobatermosztát is vezérelje ? Az alacsony hőfokú vizet minek keringetni tovább ? Vagy ??? Üdv.: moele
Szia!
Nem az alacsony hőmérsékletű vizet akarom keringetni, hanem így tiltanám a gázkazánt, ha véletlenül nem éri el a szobatermosztáton beállított hőmérsékletet a szoba hőmérséklete és a szobatermosztát fűtést kér a gázkazántól. Így nem dolgozna egymás ellen a gázkazán belső szivattyúja a vegyes tüzelésű kazán szivattyújával. E1 a vegyes tüzelésű kazán szivattyúja E2 a vezeték nélküli szobatermosztát vevője
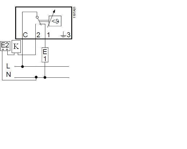
Itt akkora zárlat lesz a rajz szerinti bekötés szerint !!!
N-E2-2-C-L ez a kőr rajz szerint kikapcsolásnál ! Ez abban az estben áll fent, ha az E2 reléjéhez van kötve ! Pontosítani kellene a (táp feszültség és reléérintkezők)
Abból a körből marad ki a gázkazán a rajzon.
Az E2 a vezeték nélküli termosztát vevője, ez van a gázkazán szobatermosztát csatlakozójára kötve. Ennek az egyik vezetékét szakítanám meg a RAM-TR-rel.
Akkor, ha közbe iktava van a gázkazán az áramkör működőképes! Vigyázz 230 V~!!! :felkialtas:
sziasztok
ma vettem egy brh típusú csőtermosztátot nem tud valaki segiteni mit hova kössek csatolom a képet is.
Szia! A "C" az legyen a közös pont. Mivel nem írtad meg, hogy mit akarsz kapcsolni és hogyan (ki vagy be) a beállított hőmérséklet elérésekor, így az 1. pontra zár és a 2. pontra nyit növekvő hőmérséklet hatására. Rendszerint el szokták téveszteni a bekötését, mert nem veszik figyelembe a kapcsolási módot (növekvő vagy csökkenő hőmérséklet kapcsoljon vagy megszakítson).
Szia !
Így igaz ahogy VIM írta ! A 'C' közös és ha pl.ha 40C-foknál akarod, hogy induljon a szivattyú akkor az '1' pont és a 'C'-pont a bekötés. A nullázó vezetéket is okvetlen kösd be a 'test'-pontra. Vigyázz 230V~ ! :felkialtas: Üdv.:moele
szia
kazának a keringetöszivattyúját akarom üzemeltetni vele
Ügyes legyél és vigyázz 230V~ feszültség. A munka megkezdése előtt feszültségmentesíts !!! :felkialtas:
nem jött még össze a közös az a nullás vagy fázis egy rajzot tudnál vázolni nekem hogy áll össza mert nekem verte sorra az automatát le valamit nem jól csináltam.
Van egy rajz a 955230-as hozzászólásomnál az Neked is igaz !
visszakerestem megtaláltam ezt a bekötést és ezalapján sikerült is köszönöm mindenki segitségét.
Sziasztok!
Egy kiépített vegyestüzelésű kazán keringető szivattyúját szeretném újonnan vásárolt BRH típusú csőtermosztáttal kapcsoltatni. Eddig a keringető szivattyú dugvillán keresztül csatlakozott a konnektorba. Nem állandóan volt működtetve. Szóval azt kérném, hogy valaki aki pontosan tudja a bekötést az részletesen pontról pontra (szájbarágósan) írja le az útvonalat a konnektortól a termosztáton keresztül a szivattyúig.Nagyon megköszönném és hálás lennék neki!! Sajnos még nem láttam ilyennek a bekötését. A papírt amit kaptam hozzá fáljmellékletként mellékelem. Segítségeteket előre is köszönöm! |
Bejelentkezés
Hirdetés |




Időközben már én is rájöttem.





