Fórum témák
» Több friss téma |
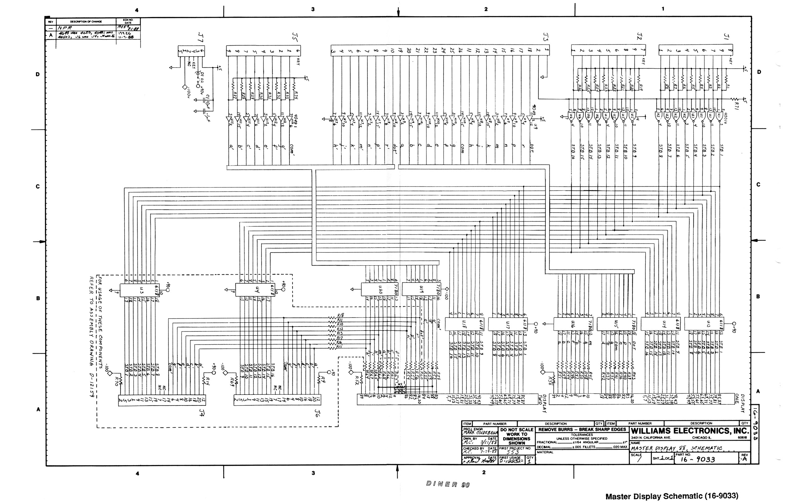
A '90-es évekből származó flipperem 100V feszültségű gázcsöves kijelzővel van szerelve. A klima védelmi szempontokat is figyelembe véve(alacsonyabb fogyasztás),de leginkább a drága és nehezen beszerezhető alkatrészek miatt segitséget kérnék egy ledes szegmenses kijelző épitéséhez..
Az első kép a modositott elem kb 40ezer forint A 3. az eredeti kapcsolás. Az uj 5v-os feszültségről üzemelne mert ez van a flipperben.. Segitségeteket köszönöm. NYÁK készitést és összeszerelést már elég jól begyakoroltam de az elmélet még gyenge lábakon áll... Aki megoldja a problémát annak 1 szombat esti flipperezéses bulit állok.A jelenlegi állapot
Elnzést itt a kép a módositott kijelzőről.
Hello!
Igazából mi is a kérdésed?
Szia!
Nem tudom, hogy az ára elfogadható-e, itt találtam helyettesítő kártyát LED-es kijelzővel. Saját építésű helyettesítésehez: 16 szegmenses + tizedespont LED kijelzőt pl. a Kingbright gyárt (pl. PSX05, PSX08, PSX12, PSX23 vagy a PDX54 - dupla) Adatlap a KB03-Displays.pdf-ben letölthető. A ledeknek sokkal nagyobb áram (szegmensenként 10-20 mA) kell, így a beépített +5V-os táp nem biztosan fedezi a szükségletet. +5V-os nagyáramú, kapcsoló üzemú tápegységet ajánlanék. A táplálás megoldható több kisebb áramú 5V-os tápegységgel is. A jelenlegi áramkör elemeinek adatlapjai: udn6118 - 74LS240 vagy 74LS244/et ajánlok helyette, udn7180 A helyettesítésnél a szegmenseket vezérlő kimenetek és a kijelző szegmens bemenetei közé árakmorlátozó ellenállásokat kell beépíteni. Mindkét megoldás üzemel a +/-100V tápegység nélkül is. Szia.
Szeretném az Udn chippeket kikerülve LED-es kijelzőt épiteni hova, milyen IC-ket kell beépiteni és kell még esetleg ellenállás is?
HP41C részben megválaszolta, de ha van esetleg javaslatod nagyon köszönöm.
Szia!
Meg kellene mérni, hogy milyen bemeneti szintnél (magas vagy alacsony) világít egy szegmens. Ki kell választani a kijelzőt. Ha ezeket már megtettük, azt kell elérni, hogy ugyanannál a szintnél világítson a led szegmense is. Kijelzőből a PSAxx títust ajánlanám, a diódák anódja van a kijelzőben közösítve. A katódokhoz kapcsolódnak az áramkorlátozó ellenállások, az ellenállások a meghajtó kimenetére. A meghajtónak alacsony szintű kimenete esetén világítana a szegmens. A két ajánlott meghajtó típust: 74LS240 invertáló és a 74LS244 nem invertáló 8 vonalas meghajtó áramkört. Ha a mostani áramkörben alacsony szintnél világít a szegmens, akkor a 74LS244 kell, ha magasnál akkor a 74LS240. (Egyébként lábkompatibilisek, ha foglalatot teszel a nyákba, akkor ki lehet próbálni melyik a jó.) A két engedélyező bemenetet (1. és 19. láb) a földre kell kötni. Szia
Köszönöm, a választ - a táp elég jó azt hiszem egy teljesitmény tranzisztor adja a feszültséget 2N6057 egy kb 10x10es (cm) hütőbordán amit egy MC1723 szabályoz, remélem jókat irtam de szerintem ez az 5v előállitó mechanizmus.
A link pont olyan amire gondolok kiválló az összehasonlitás is ez kb mire itthon van 40ezer szerintem épiteni olcsobb és szivesen foglalkozok vele. 74ls244 itt csak 7 szegmens van, hogy oldjam meg a hiányzó egyet? mekkora ellenállás kell az IC és a LED közé(320 ohm kb jó lenne?) Szirinted ujra épitsem az egészet vagy IC socket-ekkel és ribbon kábellel hozzam össze a régi és az uj NyÁKot? Mégegyszer köszi a tippet.
Elnéztem az a 74 LS244 adatlapját a lábkiosztás világos ...
Az ellenállás megfelelőlenne?
Szia!
Számoljunk (nem használtam ilyen kijelzőt - az áram értékek feltételezésen alapulnak): A led feszültsége kb 1.5-1.8V a szinétől (piros - zöld) függően. Árama legyen 20 mA. A táp 5V-os. Folyamatos üzemnél az ellenállás = (5.0-1.5)/0.02 ohm, azaz kb. 175 ohm, a teljesítménye (5.0-1.5)*0.02 azaz 70 mW. A kijelző időmultiplexeléssel működik, azaz a 16 helyiértékből mindig csak 1 világít, de olyan gyorsan cseréli a vezérlés, hogy mindet világítónak látjuk. A módszer miatt az áramot 16 szorosára kellene növelni, azaz 320 mA-t kellene az idő 1/16 -od részében a ledekre kapcsolni, azaz az ellenállás értéke kb. 10 ohm 2W. Egy kijelzőben 16 szegmens van, áramuk összesen 5.12A Ezt már nem bírja el a 74LS24x sajnos. Meg kell fejelni minden kimenetét egy-egy tranzisztorral (összesen 32 db. pl. BD139, a tranzisztoros fokozat miatt a meghajtáshoz jó a 74HC240/244 is.). A kijelzők közös anódját pegig a STBxx jelekkel vezérelve kapcsolgatni kell. Ide a legalkalmasabb a P-MOSFET pl: NTD020P06L (-5V gate feszültség mellett átfolyik rajta a 5A. A 16 darab P-MOSFET-et szintén 2 db 74HC240/244 -el lehet meghajtani. A teljes helyettesításhez két ilyen egység kell, azaz a +5V -os tápon már 10.2A folyamatos terhelés lesz... A megépítés előtt érdemes kipróbálni a következőket: - Mekkora LED áram kelt elfogadható fényerőt a látványhoz? Ennek a 16 szorosával kell majd számolni. - Mennyire terhelhető a +5V-os táp? - Deszkamodellen két helyiérték egy-két szegmensén kipróbálni az áramot. - Az eredmények alapján megtervezni a kijelzőt - két különállő egységet megépítését javaslom. - A tápáram mérése alapján dönteni a +5V előállításáról. Szia
Ezekben a flipperekben az 5 voltos táprész rendesen fogyasztott. Találkoztam olyannal ahol az egyenirányító-kocka lába "kiszáradt" a forrasztásból. Ezt már nemigen lehet terhelni. Viszont hely van bőven, lehet tápot bele rakni még.
Itt nagyon sok infó van: Pinball Database
Szia!
Ha elfér benne egy PC táp megoldhatja a +5V előállítását... Szia
igen elfér benne és van is itthon
,jelenleg a kapcsolási rajzon dolgozom ha kész akkor kérném majd a felülvizsgálatát. Diptrace layout editorral schematic készitővel csinálom. Először csak egy szegmenst mutatnék, ha szerinted jó akkor csinálom a 32szegmensest verziot. A rottendog oldalon levő képen nincs olyan sok tranzisztor és mosfet a képen, vajon ők hogy oldották meg? Van ithon egy piros 20mm-es kingbright kijelző 1,9volt-nál már szép fénye van, de láttam, hogy van sárga is és az jobban passzol az eredeti szinhez. még1x köszönöm a segitséget ha van kedved flipperezni van itthon még 2 működőképes(Győrujbarát)..meg van itthon némi pia is Szia
"A rottendog oldalon levő képen nincs olyan sok tranzisztor és mosfet a képen, vajon ők hogy oldották meg?"
Mert ULN2803-at használ
Szia!
- A kijelzőnél nem a feszültséggel, hanem az árammal történik a fényerő beállítása. - A feszültség inkább a kijelző színétől, gyártótól függ. A led-en átfolyó átam a feszültségétől exponenciálisan függ!! Azaz nagyon kicsi feszültség változásra nagyon nagy áramváltozás is létrejöhet - ezért kell az áramkorlátozó ellenállás. Köszönöm, egy kicsit messze van Győrújbarát... Szia
Szia!
A nyáktervezéshez: - A p-fet-eket hűteni kell - egyesével elszigetelten. A tO220 tokokat szigetelten aluprofilra kell szerelni. A D-packnál ez megfelelően kialakított fóliát jelen a nyákon, amihez a fet fém házát hozzá kell forrasztani. - A kijelzőnkénti amper nagyságrendű (5A-t számoltam, de a lehet, hogy kevesebb is elég lesz) áram miatt a közös kivezetést vastagra kell nyomtatni. Esetbeg a beültetéskor hosszában a vezetékre forrasztott huzallal megnövelni a keresztmetszetet... A beméréshez: - A multiplexált kijelzéshez számított árammal a véletlenül hosszabb időre bekapcsolva maradó (a panelen maradt vagy mérésnél történő véletlen rövidzár) kijelző tönkremehet... - Az áramkorlátozó ellenállásokat ne üldesd be elsőre, hanem egy - két helyre sokkal nagyobb értékű ellenállást tegyél. Nézd meg a fényerőt és azt hogy jó időben világítanak. - Ha nem jó időben világítanak, 74HC240/244 csere. - Ha kevés a fényerő, az ellenállás fokozatos csökkentése. - A nagyáramú táp (a kártyán maradt) rövidzár esetén a hozzávezetéseket elégetheti. (Kártyák közötti szalagkábeles átvezetéssel jártam meg. A távolabbi oldalon volt egy táp - föld zárlat. A táp (5V@25A) végre ki tudta adni maximális áramát, de a tápátvezető szalagkábel szálakról leolvadt a szigetelés! ) Az első méréseket ne PC táppal végezd. A nagyobb ellenállások miatt lényegesen kisebb lesz a tápáram. A későbbi PC tápos indításhoz tegyél a táp ágba biztosítékot. A végleges beépítésnél is célszerű a két egységet külön biztosítani. Szia
Szia,nagyon régota javitok flippert,adig is hogy jáchas,bátran emeld fel 100v-t 10v-al.ez segit 1,2 hónapót.
sziasztok!
Van egy Williams Big Guns tipusu flipper amin nem müködik a kijelző. Van rajta 2db alfanumerikus és 2 db numerikus kijelző.Egyiken sincs semmi kijelzés.A + - 100V megvan a tápról. leheséges az hogy mind a 4kijelző meghalt? Előre is köszi a segitséget! üdv : Tiva
Én kapcsolási rajzot és nyáktervat szeretnék kérni (lehetöleg eangles legyen).Olyan kapcsolást kérek ami az első ozászolásban van.
Elöre is koszönöm.
Sziasztok több honapi keresgetésután találtam a zacariához kijelző kapcsolást.remélem sok embernek tudok segiteni va lay os nyákterv is.
De arra kérek mindenkit hohgy ha tudtok akkor sistem11 es kijelzöt is fölrakhatnátok whirlwind-hez. További szép napot.
Ez esetleg segít: wirhlwind manual
Köszönöm a szervizkönyvet. De nekem sistem11 es kijelzőkellene. Nem a flipper tipus a lényeg hanem a kijelző tipus.
Van egy Williams Arabian Night flipper javításra nálam. Izzók tele kontakthibával stb.Pár dolgot nem tudok, nem értek kérlek segítsetek! Megvan a gyári leíráés könyv csak nincs benne minden.
-Van benne üvegfoglalatos 6,3V 0,25A izzó az stimm, meg nagyobb búrájú az mekkora? -A jimi a dzsin 6V-os izzót kiveri hamar stroboszkópos hatás közben 12V-os most bírja olyan is kell bele? -Test menübe belépve van tekercs rész is sorba lépegetve köztük nem kellene egyenként behúznia? -A flipper gomb 2 állapotú optocsatolós, és a hozzá tartozó tekercsek is két állapotúak mivel 3 kivezetéses így lenne erősebb és gyengébb ütés is? -Többi izzó is 6,3V-os fém bajonett záras kis és nagy méretű van benne. Kapcsolást megtekintve van egy 20V-os flash kör, nem sok a 6-os izzónak? -Menübe belépve lehet tesztelni fényerőt a köröknek, van 2 köröm amire írja (only on) na ezek még nem akarnak világítani még.. A hozzászólás módosítva: Szept 13, 2015
Van már pár éve, hogy flippereket javítottam, amire emlékszem:
- Elvileg a nagyobb búrájú 12 V-os, de ezt egyszerűen kipróbálhatod. Beleraksz egyet és megnézed, mennyire világít. - Villanó izzónak 12 V / 5W tökéletes. - Ha jól emlékszem, a tesztmenüben az Enter gombbal aktiválni is kell a tekercset a teszteléshez, nem elég csak "ráállni" a menüpontra. - A kartekercs duplán van tekercselve. Az erősebb a behúzáshoz, a gyengébb a benntartáshoz kell. Az újabb flippereknél csak végálláskapcsoló van, elektronikusan vált át a benntartó tekercsre. Ha ez a végálláskapcsoló nem működik, akkor a gombnyomás után bizonyos idő elteltével automatikusan átvált a benntartó tekercsre. A régebbi gépeknél ezt egy nagyobb áramú segédérintkezővel oldották meg, aminek a hibája a kartekercs leéégéséhez vezet. - A fényerőszabályzós körök többnyire a háttérvilágítások, ezek triakokról mennek. A nagyáramú panelen elvileg van öt kissebb hűtőborda (bal alsó rész), valahol ott kell lennie a fixnek is, bár a konkrét flippertípusra nem emlékszem. Ha az Enter gombbal belépsz a menübe (csak egyszer nyomod meg a gombot) és nem piszkálod, ki fogja írni, hogy szerinte mi hibás a pályán. Ez jó kiindulópont szokott lenni, még ha néha hülyeséget is beszél.
Szia! A villanó izzók GE906 12V/9W. A tekercs tesztben a kiválasztott elem folyamatosan kapja az impulzusokat, ha Enter-rel belépsz (legalábbis így emlékszem, a gépkönyvben pontosan le van írva). A flipper gomb egyik optója a kapcsoló matrixba, a másik a karvezérlőbe küld jelet. A kartekercs két részből áll, egy kevés menetű vastag behúzóból és egy vékony sokmenetű tartóból. Az átkapcsolást a kar alatt lévő "húzás vége" E.O.S. kapcsoló vezérli.
A pályavilágítás 6,3VAC-s köre a csatlakozóknál szokott megszakadni. Láthatóak az égésnyomok, mozgatásra néha beindul, kövesd végig a trafótól több is van benne. A biztije is kiég néha.
Nahát, maga flippergépekkel is foglalkozik?
Köszönöm mindkettőtöknek, meglett miért nem futott a teszt! A pénzvizsgáló ajtón van 2 nyomógomb és miközben nyitva nem ad feszt a "magas feszültségű" résznek. Most már megy a villogás teszt és a tekercs teszt is.
Az a durva hogy a menü gombokhoz meg csak nyitott ajtóval lehet hozzáférni....
Ez azért van, mert vannak tekercsek, amik már akkora feszültséggel működnek, hogy veszélyes is lehet. Ha minden igaz, a gombot ki is lehet húzni, így olyan, mintha nyomnád. ON - OFF - (ON) típusú (általában).
Igen 50V és ki tudja mennyit rúg vissza!
|
Bejelentkezés
Hirdetés |






,

Az a durva hogy a menü gombokhoz meg csak nyitott ajtóval lehet hozzáférni.... 


