Fórum témák
» Több friss téma |
Köszi a segítséget.
Hát ez a kp le van zárva Majd szerzek bele egy másik IC-t.
Hello,
Az alábbi rendszerrel kapcsolatban kérdeznék: DSC 1616-os központot (1555 kezelővel + CROW BS1 sziréna +4 db LC-100 passzív infra ) minden infra külön zóna. Most helyeztem 220 alá és a kezelőn a system sárgán világít, illetve 10 másodpercenként kettőt csippan. Mi lehet a baj? Sajna a programozás is hátra van még, de előbb erre lennék kíváncsi. Köszi! A
A meddig az időt dátumot nem állítod be addig hibát jelez de nézd meg *3 al a hibaüzenetet (melyik zóna világit a szerelői kézikönyvben keresd meg a hozzátartozó hibát
de szerintem először programozd fel élesítsd be és utána keresgélj hiba után addig nincs értelme
Ha a 3-as és 8-as világít, akkor ismerős a probléma.
Egyrészt valóbban a rendszeridőt kell beállítani. *6 _1234_1 oo pp hh nn éé (óra perc hónap nap év) Másrészt a telefon(TLM)-et kell kikapcsolni. *8_5555_015 -> 7-es gomb. Így a Led mellette nem fog világítani (azaz TLM tíltva) Ezek után elvileg nem szabadna világitani a system-nek. Ha mégis, akkor *2 és ott jelzi a hibát. ![]() Zóna fény Üzemzavar típusa 1 Szerviz szükséges. Hívja a telepítő céget. 2 Hálózati tápellátási hiba. Ilyenkor a Trouble (System) fény jelez, de a hangjelző nem csipog. 3 Telefonvonal hiba 4 Sikertelen kommunikáció 5 Zóna zárlat. (Az [5]-ös gomb lenyomásával megtudhatja melyik zóna zárlatos) 6 Zóna szakadás. (A [6]-os gomb lenyomásával megtudhatja melyik zóna zárlatos) 7 Vezeték nélküli zóna érzékelőjének telephibája. (A [7]-es gomb lenyomásával megtudhatja melyik zónáról van szó). 8 A rendszer belső órájának a hibája. A hiba törlődik a pontos dátum és idő beállításával.
Jól gondolod.
A rádiós vevőnek Kell biztosítani egy zónát, amit kulcsos kapcsolós zónára kell programozni. Ezt ugyanúgy kell értelmezni bekötés szerint, mintha infra lenne, ha ellenállásokkal le van zárva a zóna, itt is meg kell tenni. Ezután, pl. ha a 6-os zónára rátetted ezt az eszközt, akkor be kell a 6-os zónának állítani a 001-es opcióban, hogy kulcsos kapcsolós zóna legyen. Ez a 22, vagy a 23-as beállítás a zónadefinícióknál, attól függően, hogy a rádiós vevő monostabil, vagy bistabil üzemmódot tud. (visszaálló, illetve két állású) Ezután már csak a partíciót kell kiválasztani hozzá, hogy melyiket kapcsolja ki-be Ha csak egy partíció van, akkor alapból jó, ha kettő, akkor ki kell a 202-210 opciókban jelölni a neki megfelelő partíciót.
Én nem ajánlanám több érzékelő egy zónára kötését, ez nem túl szép megoldás. Riasztás esetén nem fogod tudni melyik infra riaszott. Inkább gondold meg, hogy kb.4000 forintos összegért beszerzel egy PC5108-at, és akkor 16 zónabemenettel tudsz gazdálkodni.
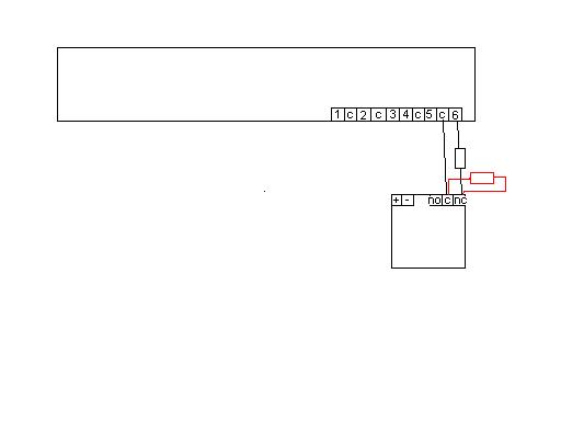
A garázsban nem jó a 05-ös típusú zóna, mert otthonmaradó módban élesítve a garázs nem lesz éles, így bárki bemehet oda. Inkább normál követőre tedd (04), és akkor minden beélesített esetben lesz riasztásod. Az ajtó kényszerített-késleltetett megoldása OK. Én egyébként maradnék az 1 partíciónál, de 2 partícióval is szépen meg lehet csinálni, kinek mi a szimpatikus. Az attribútumok között nem kell a lezárástípushoz nyúlni (EOL,DEOL), állítsd be inkább a 013.szekcióban, és az minden zónára egyformán vonatkozik. Érdemes még elgondolkodnod a szabotázsok bekötésén, mert ha EOL-t választasz akkor a rajzodon szereplő megoldás nem a legszebb. Illik ezeket felfűzni (minden infra + sziréna), és külön 24 órás zónára kötni. A szirénabekötés a rajzon nem helyes. A DSC-k a BELL+-on állandó 12V-ot adnak ki, ezt kell a sziréna +12V-jára kötni, A BELL-, a vezérlés, ez kerül a GO- -ra. Az AUX- -t kösd össze a GND-vel. A tamper OK, csak fűzd bele a PIR-ek szabotázsát. A távirányító NC kontaktusát tényleg zónabemenetre kell kötni, ugynúgy, mintha nyitásérzékelő lenne (ellenállás is kell!!!), és kulcsos kapcsoló típusra kell programozni.
A rajz a DEOL bekötést mutatja. EOL esetén a piros rész nem kell, NC esetén a fekete ellenállás helyett sima vezeték.
Köszönöm!!!
Holnap ki is próbálom!
Köszönöm!
Tudom, hogy nem túl szép megoldás a soros kötés (ráadásul van benne rengeteg megalkuvás). ... Meggondolom az ajánlott bővítést. Illetve kijavítom a garázs zóna típusát és marad az 1 partíció.
köszi. A 3-as világított, így amit leírtál a TLM kikapcsolásával kapcsolatban meg is szüntette a hibajelzést.
sziasztok PC585 RIASZTÓM LET BEKÖTVE. A GOMBOK SÍPOLÁSÁT AKARTAM MEGSZÜNTETNI ÉS SIKERÜLT IS A HANGSZÓRÓJÁNAK MEGPISZKÁLÁSÁVAL. ÁRAMTALANÍTVA VOLT A RENDSZER AZ AKSI IS KI VOLT VÉVE.VISSZAKAPCSOLÁS UTÁN NEM TUDOM BEÁLLÍTANI AZ ÓRÁT ÉS DÁTUMOT. *6 1 mesterkod ez a40, 1323 01.10.10. EZEKET BEÜTÖM ÉS UGYANUGY VISSZA JÖN A SÁRGA RENDSZER LÁMPA. TUDNA VALAKI RÉSZLETESEBBEN SEGÍTENI?
Ezt üsd be: *6 mesterkód 1 óraóra percperc hónaphónap napnap évév.
Egyébként a * gomb hosszú nyomvatartásával is le tudtad volna egyszerűen némítani.
Hbakarasés *2
1-es led : általános hiba (nyomd meg az 1-est a további listázásért) 2-es 220 nincs 3 telefonvonal hiba 4 kommunikációs hiba 5 zóna zárlat 6 zóna szakadás 7rádiós eszköz jiba 8 idővesztés Idő beállítás , *6 mesterkód 1 óópphnéé pl. *6 1234 1 1200 01 10 10 A csipogás a _ gomb hosszú nyomásával változtatható. egyre magasabb/mélyebb hangon csipog, egészen a teljes elnémulásig. piezót piszkálni és ne írj csupa nagybeűvel, az ordíbálásnak számít...
beütötem amit irtatok és semmit nem változott a sárga rendszer led mindíg világít. A *2 után lenyomtam az 1-et, és ekkor a rendszer led villog egyedül.
A sárga lámpa három esetben világíthat:
- Kiiktattál zónát a *1-ben, és jelzi a rendszer, hogy a most következő élesítés csak részleges biztonságot nyújt. Ellenőrizd *1-ben van-e kiiktatott zóna, ha van töröld a kiiktatást. - Valamilyen hiba van, amit *2-vel tudsz lekérdezni, és a kollégák előzőekben leírt táblázata alapján tudsz azonosítani. Nyomd meg a *2-t és írd le mit látsz. - Az utolsó élesítési ciklusban volt riasztásod, és a memóriában van riasztási esemény. Ha ég a zöld lámpa üsd be kétszer a kódot (élesítés-majd hatástalanítás). Ezzel törlöd a riasztási memóriát. Tehát vagy kiiktatott zóna (*1), vagy hiba (*2), vagy riasztási memória (*3). Ha megfejted, majd elhárítod, a sárga lámpa elalszik.
Amit már előttem is írtak, a system led 3 dolgot is jelenthet:
Hiba Riasztás Kiiktatás - Hiba esetén: *2 itt a hiba típust a felgyulladó zóna fény jelzi. Ha nem világít egy sem, akkor nincs rendszerhiba - Riasztási memória *3 itt a system leddel együtt villog a riasztott zóna. -Zóna kiiktatás *1 a kiiktatott zóna világít. zóna be/kikapcs: *1 zónaszám (kétjegyű) # pl- 3-as zóna kikapcs: *1 03 # Az első teljes bekapcsolás, majd kikapcsolás után a kiiktatott zónák visszakapcsolnak, kivéve a 24 órás zónák. Ezeket manuálisan kell visszakapcsolni. Ha egyik * funkción sincs zóna led kijelzés, akkor valamelyik pánik gomb lett megjomva (F A P) ennél is a legegyszerübb a kóddal bekapcsolni, majd kikapcsolni a riasztót. Ezek után el kell tűnnie a sárga lednek.
Hello,
Egy DSC 1616-os központhoz szeretnék bekötni egy beltéri szirénát: KPS-111S típúsut. 3 kábel van: fehér - negatív - közös Vörös - plusz indítás - 1 hang Sárga - plusz indítás - 2 hang Én a fehéret az panelen az AUX - ra kötöttem, a Sárgát a Bel + ra, de 220 rákapcsolása után egyből szólt. Mit csináltam rosszul? Másik kérdésem, hogy a kültéri szirénába nem lett bekötve az aksi, azt "menet közben" be lehet kötni? Köszi! A
A *2 beírásakor a 8-as led világít hiába kapcsoltam be-ki a riasztást.Akármit ütök be mindíg visszajön az üzemkész és a rendszer világítás.Sajnos nem igazán értek hozzá.Azért még próbálkozok nem adom fel.Köszi!
A DSC-nél a Bell+ -on állandó táp van, a Bell- a vezérlés. Tehát kösd be úgy, hogy a piros a Bell+ -ra, a fehér a Bell- -ra kerüljön, és nem fog állandóan szirénázni, max tápráadáskor egyet csippan.
A kültéri szirénák legtöbbjébe utólag is berakhatod az akkut, de van olyan típus is, amelyik élesedéséhez kell az akkus indítás. A tökéletes működéshez mindenképpen kell az akku!
A 8-as hiba a rendszeridő vesztés.
Írd be: *6 mesterkód 1 óraórapercperchónaphónapnapnapévév. Például: *6 1234 1 21 44 01 11 10 Ha a mesterkód beütése után hosszút sípol, nem sok rövidet, akkor rossz mesterkóddal próbálkozol. Lehet, h ez a baj.
Elég idiótának érzem magam, de még mindíg nem sikerül.Minden PC1555RK -nál 40 lenne a mesterkód? Sípolásokat nem halok csak világítanak a gombok amikor ütöm aszámokat.Létezne hogy a hangszórót mikor piszkáltam valamit elrontotam?A kézikönyvben sem találok mást mint amit ti tanácsoltatok.
Igen. A 40 a mesterkód helye.
Vagy programozói módban a 007-es szekció. *8 5555 007 1234 pl. ha a mesterkódot alapra akarod állítani. Még meg lehet egy dolgot próbálni, Belépsz telepítőibe, és beütöd, hogy 902 Ez egy modul felügyelet restart. tehát: *8 5555 902 vársz kb. fél percet. kilépsz a programozói módból. Ha hosszan nyomva a * gombot nem jön meg a csipogás, akkor valószínű, hogy a piezo végtranyóját kinyírtad.
Egy kicsit értetlen vagyok.Nem értem ezt a mester kódot. A 40-es szám maga akód, vagy még utána kell valamilyen kódszámot beütnöm?Már ha érted mit szeretnék kérdezni. A sípolás valószínűleg működik mert egy pici kerek lemezdarabot vettem ki a hangszórójábol, de mikor visszaraktam sípolt minden. Van még türelmed hozzám?
Az előző válaszom nem jelent meg, ezért mégegyszer:
Már nem emlékszem milyen központod van. A PC1616, PC1832, PC1864 szériánál már nem működik a *8 5555 007 megoldás. Ezeknél - és minden korábbi verziónál- akövetkezőt üsd be: *5 régi mesterkód 40 új mesterkód# pl *5 1234 40 9876 # Ha sikerült kibelezned a piezót, akkor valószínű cserélni kell. Ezt be tudod szerezni, de szerintem a DSC szervizében is kicserélik neked.
A riasztó tud 32 normál kódot, és még néhány speciálisat.
És ugye ott a mesterkód. A mesterkóddal tudod a többi kódot kiosztani a megfelelő helyre. A 40-es szám az a kód helyét jelöli a memóriában. Tehát, ha a 40-es memóriahelyre egy új kódot programozol, az az új mester kód lesz. Amikor kódot programozol, akkor mindig meg kell adni, hogy melyik kódhelyre adod be a kódot. pl. Legyen a mester kód:1234 az 1-es kódhelyre beviszed a 2233-as kódot, az így néz ki: *5 1234 01 2233 # ami részletesen, *5 kódok programozása mester kód, ami jelen esetben az 1234. Mester kód nélkül nem lehet kódokat sem programozni. 01 Ez a bevinni kívánt normál kód kétjegyű helye 2233 ez a bevitt kód, ami az 1-es helyre lett letárolva, ezzel csak ki és be tudod kapcsolni a riasztót, másra nem jó Mester kód változtatása 1234-ről 9988-ra *5 1234 40 9988 * ugyanez a metódus, mint az előzőnél, csak itt a 40-es helyre kell beütni a kódot, ha ezen a címen történik kód változtatás, azzal a mester kódot változtatod meg. A gyári alapérték 1234, ezt meg is kell változtatni. A tulajdonos kódját szoktuk mester kódra állítani, hogy később már ő is meg tudja változtatni a saját kódját. Ha csipog, akkor működik. Ha nem, akkor veszel egy másik piezó hangszórót, vagy egy új kezelőt.De itt a fórumon a riasztó magyar kezelési utasítását megtalálod, abban le van írva, hogyan kell használni a rendszert. A csipogás változtatásán át a kódok változtatásán keresztül, a zónák kiiktatásáig, a hibakeresésig minden benne van. De ha most sem kapok egy nyamvadt pontot, esküszöm nem fogok többet segíteni senkinek dehogynem :yes:
Köszi a választ, minden bekötés sikerült.
A
Sziasztok,
Már sok hasznos infót és segítséget kaptam itt a fórumon, de még nem tiszta minden, és már hiába nézem át ötödször a kézikönyveket nem tudom megfejteni. A rendszer egy DSC1616-os központ, rz1555LED kezelő, 4 darab infra - mindegyik külön zóna DEOL bekötéssel. A programozással kapcsolatban megnéznétek hogy jó ez az alábbi sorrend (nulláról...) és billentyű kódok: 1. lépés: *8 1234 001 01 03 03 03 00 00 ## Ez az egyes particióhoz rendeli a zónákat, 1-es zóna 30 mp késleltetés a többi azonnali. 2. lépés: *6 1234 1 2200 011210## - idő és dátum beállítása 3. lépés: *8 5555 013 2 1* DEOL lezárás miatt ezt a részt be kell kapcsolni 4. lépés: *5 5555 01 1111 02 2222## Az egyes felhasználói kódot beállítani 1111-re, a kettes felhasználói kódot beállítani 2222-re. utolsó lépés : *5 1234 40 xxxx* - mesterkód megváltoztatása Ha ez megvan, akkor szerintetek rendben van a rendszer? vagy valami fontosat kihagytam? Még egy kérdés: ha ezek a fentiek okék, akkor az élesítés/kikapcsolás hogy is kell pontosan? Felhasználói kód és *? Előre is köszi! A
Majdnem.
*8 5555 és a szekció szám. Ide az install kód kell. Ameddig benn vagy programozói módban, addig elég csak a szekció számokat megadni. a 001-es opciónál, ha nem írod végig a 16 zóna beállítást, akkor a # gomb egyszeri megnyomásával a programozói főmenüben vagy. A 013-as opcióban csak a 2-es 3-as 6-os 7-es legyen bekapcsolva, az 1-es ne. Ha nincs telefonvonalra kötve a riasztó, akkor a 015-ös szekcióban a 7-es kikapcs, a 380-as szekcióban az 1-es kikapcs. a 005 szekcióban be kell állítani a be-és kilépéési időket. 005 01 030 030 030 belépés 1, belépés 2, kilépési idő 005 09 003 sziréna idő bekapcsolni akkor tudod, ha a ready led (zöld) világít. kikapcsolni bármikor, a késleltetési idő alatt. utána megszólal a sziréna, törlés a kóddal. Csak simán beütöd a kódot, nem kell semmi utána. ha elrontottad a kód beütést, akkor a # gombot megnyomod, és újra a kód. Én így csinálom: *8 5555 001 01 03 03 03 00 00 # 005 01 030 030 030 09 003 ## *8 5555 013 2, 3, 6, 7 bekapcsolva # 015 7 kikapcs, ha nincs telefon# 380 1 kikapcs, ha nincs telefon # *6 1234 1 2307 01 12 10 *5 1234 40 új mester kód#
Nagyon szépen köszönöm a két kolegának a segitséget. Nagy nehezen el tudtam érni a telepítőmet és ő megadta a mesterkódomat, amit persze a bekötésnél elfelejtet megadni, aztán minden stimelt amit irtatok.A gombokat is le tudom némítani.Mégegyszer köszönöm! Örök hála!
|
Bejelentkezés
Hirdetés |






Ha nem, akkor veszel egy másik piezó hangszórót, vagy egy új kezelőt.