Fórum témák
» Több friss téma |
Sziasztok!
Adott 2001 suzuki swift, ismeretlen immobiliser eszközzel, és kulcsos központi zárral. Az immot szeretném kiiktatni, a kp zárat viszont távirányÍtósra csinálni. Az immo rohadt idegesÍtő gagyi távirányÍtós megoldás, fotón látszik. Ez teljesen felesleges nekem, csak körülményesebb elindulni vele... Viszont a kp zár ilyen formában, hogy nem távirányÍtós, teljesen hasztalan. A kp zárat szerintem meg tudom csinálni egy olcsó aliexpresses cuccal, vagy a másik autómbol kiszedem, még nem tudom. A problémám az, hogy az immo-t nem tudom hogyan iktathatom ki. A kormány alatt semmi kis kütyüt nem találtam. Hogyan lehetne egyszerűen kiiktatni?
Szisztok!
Nagy és sürgő segitségre volna szükségem! Egy Spal As90 - s riasztót elküldtem egy ismerősómnek akinek tönkrement a Spal AS80 riasztója., csak a taviranyitókat es a modult küldtem azzal instrukcióval hogy egy az egybe csak felkell dugnod. Most telefonált hogy az As 80 - nak 20 Tüs., . az As90- nek 18 Tüs csatlakozója van.., a két csati nem csereszabatos. Kellene egy Spal As80 es egy Spal As90 kapcsolasi rajz .., remélhetöleg a stekkerek lábkiosztása is rajta van .., vagy más valami szupermegoldás is létezik??? A Spal As 90 18 Tüs kábelkötege megvan.., csak az autó nagyon messze van innét
Szia!
Volt már itt ez téma, de nem született igazi megoldás, ami feloldotta volna a problémát. A net szerint az AS80 és az AS90 is 18 pines csatlakozóval rendelkezik. Az AS80-nál KIT-ként hivatkoznak rá, talán itt van a kutya elásva, valami agyament ötlettől vezérelve talán létezik egy másik AS80 verzió? Van egyébként néhol AS85, néhol AP85-ként hivatkozott készülék is. Ami 20 pines, az az ACJ-1-es... A hozzászólás módosítva: Júl 13, 2023
Csatoltam a küldött fénykepez a 20 illetve 18 tüs As80 illetve As 90 - s Spal riasztóról...
Lefényképezte., a kábelszinek teljesen megegyezők..., elküldtem az As90 kábelkötegét, abból megtudja majd oldani... Kõszi a segitséget! Üdv.
Ma megakartam nézni , hogy megirjam aztán...,csak arról feledkeztem hogy a köteget már elküldtem...
Üdv C
Sziasztok. Segítséget kérnék. 2007 vw caddy-be szerelek univerzális központizár vezérlőt és a zárás szál megvan de nyitni nem nyit. Hány ohm kell a nyitáshoz? Köszönöm a választ
Sziasztok!
Szeretnék bekötni egy központi zár vezérlőt egy olyan autóba, melyben gyárilag kulcsos központi van. Itt is alkalmazható a "kapcsoló vezetékek" megtalálására az a módszer, hogy próbalámpa testre köt és a végével végig éritnem a kábeleket? Köszönöm! G.
Ha testet kapcsol, akkor igen.
Nincs véletlenül utastéri kp zár nyitó/záró gomb? Ha nincs, akkor a master ajtóban kell megtalálnod a mikéntet. Gyári kulcsos kp zárnál néha vannak olyan spórolósok, hogy a bal elsőben motor sincs, csak a mikrokapcsoló...
Nincs központi zár gomb az utastérben, feltételezem azért, mert gyárilag is csak kulcsos (ez lehet butaság). Akkor mindenképpen ajtókárpitot kell bontanom?
Az ajtóból jövő csatlakozóban azt már megtaláltam, melyik a +12V. Próbalámpa vagy kárpit le, mit gondolsz? Köszönöm! G.
Ha leszeded, talán jobban meglátod, melyik vezetékek mennek a zárhoz.
Szia! Első körben megpróbálnám a testelős módszert, ha kárt nem tudok csinálni!? Ha kiveszem a kulcsot a gyújtáskapcsolóból és úgy próbálom az összedugott csatihoz érinteni a próbalámpát, az úgy oké, vagy esetleg máshogy kellene? Köszönöm! G.
Azért nem ártana ott próbálni, ahol várható eredmény. Egy mostani autóban elég sok minden megy az ajtóba, de elvileg egy izzós próbalámpával nem igazán okozhatsz kárt.
Sajnos vannak eltérő megoldások, pl. levegősnél nem 2 pontra megy impulzus, hanem egyre statikus, van pozitív triggeres is bár ritkább, aztán már vannak variálások is, ahol az egyik impulzus már nem sima test, hanem ellenállást kell kötni... Szóval ez így eléggé optimista nekiugrás.
Ha nem igazán okozhatok kárt a testeléssel (próbalámpa), akkor megnézem azzal. Modernnek nem nevezhető autóról van szó, 2004-es, ráadásul Daewoo Matiz
![]() . Köszi, holnap rápróbálok és jelentkezem! G.
Szia! Rápróbáltam, egyik vezetékre téve sem történik semmi. Fura egy valami, mert mindösszesen egy elektromos ablak és a hangszóró van az ajtóban, valamint a központi zár. Van 10 vezetékem ami kijön az ajtóból, nem értem, hogy nem reagál egyik sem. Gugliban rákeresve Matiz central lockra anyós oldali motorrol látok képet, ebből egy fehér és egy kék-sárga csíkos kábel jön ki. Ha anyós oldalon próbálok testelni - és persze negatív triggeres - zárni és nyitni kellene neki? Esetleg valami más mérés lehetséges? Ilyen hidegben nem szívesen bontanék kárpitot. Nagyon köszönöm! G.
Az anyós oldali, ha 2 vezetékes, akkor az csak sima motor (szolga), onnan nem tudsz vezérelni (neked mester kell, 5 vezetékes, ha sima váltóérintkezős).
Nem gondoltam onnan vezérelni, csak a tesztelés miatt, hogy próbalámpa mozgatja-e vajon. Azt meg lehet nézni? Közben találtam egy ilyet. Ebből megmondható, hogy negatív vagy pozitív vezérlésű? Nagyon köszi! G.
Nem, a próbalámpa nem jó arra, hogy egy központi zár motort működésbe hozz...sőt erre semmi nem jó a bekötött formájában, mert csak zárlatot tudsz okozni. Pár helyen le van írva, rajzolva, hogyan kapcsolják a relék a motorokat. Nyugalmi állapotban mindkét kivezetésük testre, vagy pluszra van húzva. Amikor működniük kell, az egyik relé behúz egy impulzusnyi időre, így az egyik motor kivezetés +12V-ot kap, míg a másik testet, így leindul. Az idő leteltével visszaáll alap helyzetre. Az egyik relé az egyik irány, a másik, a másik (nyit/zár).
A rajzod a szokásos agyrém rajz, de nagyon úgy néz ki, hogy csak 3 ajtóban van motorod (ahogy ezt már írtam) és a vezető felőliben csak a mikrokapcsoló van. Tehát tudnád vezérelni, de a bal első ajtó motor híján úgy marad... Kell egy 5 vezetékes motor a bal első ajtóba és egy vezeték nélküli vezérlő. Ha elég a távirányítóval való működtetés, akkor jó az alap. Ha kell a kulccsal is, akkor olyan kellene belőle, ami ezt is tudja (ritka), vagy kell egy sima vezetékes vezérlő is.
Szia!
Köszi az infót, értem is meg nem is . Ha a próbalámpa nem jó erre, akkor miként találtam volna meg a vezető oldali ajtóban, hogy melyik vezeték nyit és melyik zár? (Nem kötekedés, csak szeretném megérteni, hátha segít valamit a h*lye fejemen ![]() ). Szóval kell egy ötvezetékes motor, amit beszerelek a bal első ajtóba és arra csatlakozom a már megvett központi zár vezérlő egységgel. Jól értem? Köszönöm szépen! G.
Úgy, hogy nem a motort "vezérled" közvetlenül a próbalámpával, hanem a mikrokapcsoló helyett adsz neki testet, ezt "érzi" a vezérlő és indítja a motorokat. Mikrokapcsoló a mester motorokban van (5 vezetékes) a szolgában (2 vezetékes) nincs. Közvetlenül nem adhatsz semmit a motorokra ha be van kötve, mert vagy nem fog semmi történni, vagy zárlatot okozol, persze ez utóbbit nem a próbalámpával, hanem ha közvetlenül próbálnád. Mindenképpen értelmetlen.
Idézet: „Szóval kell egy ötvezetékes motor, amit beszerelek a bal első ajtóba és arra csatlakozom a már megvett központi zár vezérlő egységgel. Jól értem?” Igen. A hozzászólás módosítva: Dec 22, 2023
Viszont így elég lehet 1db 2 vezetékes is a vezető felőlibe, hiszen a mikrokapcsoló már benne van az ajtóban, még ha nem is egybe van építve.
Ha lesz benne motor, akkor már lehet mindet működtetni, anélkül, hogy a kulccsal mechanikusan neked kéne átbillenteni. Innentől már csak egy távirányítós kp zár kell, amit negatív triggerre kötsz és...na itt jön pár ha... Meg kéne találni ezt a gyári vezérlőt, ahol azt a 2 szálra kell rákötnöd, amire kulcsos nyíl mutat a rajzon (a bal oldali első mikrokapcsoló 2 szélső pontja). Ehhez úgy néz ki bontani kell, mert a szürke téglalap egy egység és csak 4 láb van (amik között ezek nincsenek) kivezetve belőle... A hozzászólás módosítva: Dec 22, 2023
Szia! Köszönöm az infót! Elsőre kicsit lefagyott nálam a software, de megpróbálom értelmezni a dolgot. Az egésszel csak talán 2-3 hét múlva tudok majd foglalkozni, lebontom a kárpitot és megnézem majd, mi van az ajtóban. Akkor már talán jobban megértem majd, ha látom a valóságban is. Jelentkezem majd, addig is nagyon köszönöm! G.
Sziasztok!
Segítséget vagy kapcsolási rajzot kérnék! Suzuki Ignis akkucsere után nem indul, ajtónyitásra vészvillogó bekapcsol. Utólag beépített Gepard CA-012 tipusú riasztóra gyanakszom. Én már ezzel vettem az autót de sosem kapcsoltam be rajta, a távirányítójára nem reagál a riasztó. Kapcsolási rajzot kérnék esetleg kikötési segítséget, h a vélhető indítás gátlást ki tudjam kötni.
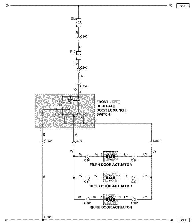
Sziasztok. Segitseget kérnék. Adott egy Daihatsu Trevis aminek a táviranyitója elveszett. Igy csak kulcsal működött a közpintizár. Igy vettem hozzà egy Carguard bicskakulcsos kőzpontizàr vezérlőt. Mivel a nezeni nincs elektromos rajz a kocsihoz igy leszedtem a vezetőajtókarpitot. 5 pólusú motor van benne a többi ajtóban 2 pólusú. Nyitott àlapotban 1-5 pólus érintkezik, zárt állapotban 1-2 pólus érintkezik. 3 + 4- nyit forditva bezàr a motor. Csatolok kèpet a központihoz kapott rajzrol. Csak a zárhoz menő 6 vezeték a nem tiszta. Kérlek segitsetek.
Ha sima váltóérintkezős vezérlés, akkor azt kellene megnézni, hogy mi van a mikrokapcsolókon. Ha test, akkor arra, ha +12 , akkor arra csíptetni egy izzós (12V) próbalámpát és hozzáérinteni az éppen nem zárt érintkezőre. Ha mozdul, akkor próba visszafelé is. Ha minden oké, akkor erre két pontra megy a kapcsolt test vagy éppen +12V, ami kiderült az elején.
Sziasztok!
Végre eljutottam odáig, hogy leszedjem a kárpitot a Matizon. Ahogy látom van benne egy két vezetékes motor (ennek korábban a kék és zöld kábelét megtaláltam elvágva a beltérben, így gondoltam, hogy valaki matekolt már vele), illetve a zár egységre megy egy négy vezetékes csatlakozó. Gondolom a két vezetékes motor nem utasítja a többit, hogy zárjon vagy nyisson, így talán ezt a négy vezetékes csatiból csinálja valamelyik kábel/kábelek. Mit tanácsoltok, hogyan tovább? Nagyon köszönöm! G.
A 2 vezetékes az szolga, csak működtet, nem vezérel.
Az "L" az lenne a kék (Light Blue)??? A többi szín stimmel...Ahhoz, hogy a bal oldalit is vigye a motor, csak párhuzamosan kell kötni a többivel jó irányba (L és W). De ettől még semmi nem oldódik meg... Ezt vezérelni kívülről nem lehet, valószínűleg a gyári kis fekete dobozban akkor benne van minden elektronika, ami gyakorlatilag egy 0,7s-es időzítő (monostabil). Mechanikusan van mozgatva az alsó sor érintkező, abból a bal oldali indítja az időzítőt, ami indítja a relét, ami zárja azt a kisebbnek rajzolt felső érintkezőt egy rövid időre. A jobb oldali kettő mindig a megfelelő irányba fog állni, és a kulcs mozgatása adja, így fog tudni, nyitni és zárni. Valószínűleg itt adták fel. ![]() Kell egy kis kiegészítés pár alkatrészből, 2 relével... Le kell kötni a gyáriról a motorokat, és átkötni a kiegészítő áramkörre, az L és a W pedig szintén ide megy, a tranzisztorokat fogja kapcsolni. Amikor +12V érkezik valamelyiken, akkor az egyik relé be fog húzni, és működteti az egyik irányba a motorokat, ha a másikon, akkor a másik irányba. Ez eddig ugyanazt tudja, mint az eredeti de már ad egy kis pluszt! Ezt a kiegészítő panelt már lehet vezérelni a távirányítós vezérlővel, akár mehet testet kapcsolva a relék "alsó" lábaira.De elsőre kéne pár dolog... A narancson van +12V, a feketén test? Ha kulccsal működteted, akkor felváltva van +12V egy rövid időre az L és W kivezetéseken? Ha igen, akkor jó lesz a rajzom. A hozzászólás módosítva: Máj 20, 2024
Hogy egyértelműbb legyen.
A piros csillaggal jelölt pontokra felváltva testet adva kívülről is működtethető. Tehát ide kell majd kötne a testet kapcsoló vezeték nélküli vezérlőt. De előbb legyen meg a kis panel a relékkel és működjön normálisan. Amire figyelni kell, hogy ha fordítva zár és nyit, akkor meg kell cserélni az L és W vezetéket a bemenetén. Elsőre a vezérlős bal elsőbe ne legyen bekötve a motor, mert fordított működés esetén ott ciriburi lesz...a többivel ellenőrizhető. Aztán már csak ezt kell jól bekötni. A vezeték nélküli (és amúgy a sima vezérlőknél is így lenne) vezérlőnél a negatív trigger szerinte kell kötni. Itt is fenn áll a fordított működés esetén a vezeték csere a csillaggal jelölt pontoknál. |
Bejelentkezés
Hirdetés |











. Ha a próbalámpa nem jó erre, akkor miként találtam volna meg a vezető oldali ajtóban, hogy melyik vezeték nyit és melyik zár? (Nem kötekedés, csak szeretném megérteni, hátha segít valamit a h*lye fejemen 







