Fórum témák

» Több friss téma
Fórum » Padlófűtés vezérlés
 
Témaindító: Hegede, idő: Dec 8, 2008
Témakörök:
Lapozás: OK   25 / 107
(#) henz válasza VIM hozzászólására (») Nov 2, 2012 /
 
a TC termosztát manuálisan állítható (nincsenek értékek rajta feltüntetve).
A leírás szerint a kazán megoldja a késleltetést... tehát nem kell + kond. és ellenállás.
... a többit még értelmezem...
Köszi
(#) henz válasza VIM hozzászólására (») Nov 2, 2012 /
 
A 16-17 pontokról IGEN direktbe van a szivattyú kötve. (Tehát az áramot is a szivattyú a kazántól kapja).
Az L-P egy olyan tél-nyár kapcsoló, mely lehetővé teszi a kazán nyári és téli üzemmódjának átkapcsolását (nem igazán értem mire a jó)
A PTTOP-ról semmit nem tudni. Úgy nézem a szobatermosztát ezen keresztül kapcsolja ki a szivattyút (De minek? Mert ha így van a kazán termosztátja a szobatermosztat ellen fog dolgozni...ha jól gondolom).
(#) henz válasza henz hozzászólására (») Nov 2, 2012 /
 
Az "SP" - az egy kapcsoló, mely lehetővé teszi, hogy a kazán nagyobb teljesítménnyel működjön (Az én rendszeremben sose fogom bekapcsolni, bőven ki tudom fűteni a kisebb teljesítménnyel is).
(#) VIM válasza henz hozzászólására (») Nov 2, 2012 /
 
Hát azt nem értem, hogy mi csinálja a késleltetést, ha egyszer a keringető szivattyú 14-17 pontjai közül a 15 pontot lekapcsolja a szobatermosztát a 19-20 pontot megbontva és a modulátort lekapcsolja. Az a fucsa, hogy a TC 1, 2, C pontjai meg vannak jelölve úgy mint más hasonló kazánok erre a célra kivezetett késleltető RC tag beépítésére. Nincs ilyen kihozva arról az érzékelőről, vagy nincs szabad bekötési pont rajta?
(#) henz válasza VIM hozzászólására (») Nov 2, 2012 /
 
Lehet, hogy nem értelek, előre is bocs.
A "C" ponthoz lehet kötni, hisz a 15-ös pont szabad.
(ui.: -a szivattyú, most nem indul késleltetve, állandóan pörög. Szobatermosztát, most le van kötve a 19-20-as összekötve)
A hozzászólás módosítva: Nov 2, 2012
(#) VIM válasza henz hozzászólására (») Nov 2, 2012 /
 
Ha a 15-ös pontra kötöd a szivattyút és kiveszed az áthidalást akkor a szivattyúnak van utókeringése? Szerintem nincs.
(#) henz válasza VIM hozzászólására (») Nov 2, 2012 /
 
Nem próbáltam. (nem tudom, hogy próbálgathatok-e, nem értek hozzá annyira, ha bátorítanak, hogy nem ronthatok el semmit, akkor megcsinálom)
Ha az áthidalás nem lenne (szerintem) nem indulna a kazán.... mert amikor a termosztat rá volt kötve (és hibát jelzett) a kazán nem indult.
Az utókeringés mit jelent?
A hozzászólás módosítva: Nov 2, 2012
(#) VIM válasza henz hozzászólására (») Nov 2, 2012 /
 
Az azt jelenti, hogy a kazán főégőtér lekapcsolása után a (rendszerbe épített szivattyúval) a helyileg túlmelegedett fűtővíz elszállításra kerüljön és a hőcserélő rész ezáltal kellő mértékben lehűljön a következő bekapcsolásra. Ez az idő 10-20 másodperc de az elektronikák általában 5-10mp-t keringetnek fél feszültséggel. Az áthidalást ha kiveszed, persze, hogy leáll a kazán, hiszen azt idézed elő, hogy a helység elérte az adott hőfokot és kikapcsol a termosztát (bontja az érintkezőket). Ha ilyenkor nem forog a szivattyú, akkor nincs ilyen kapcsolat a 15. ponton, ki kell építeni. Ha a 16 és a TC 1. pontok közé beépítesz egy R-C tagot és a szivattyú a 15 és 17 pontokról kap táplálást, akkor lenne utókeringése a szivattyúmotornak addig amíg fel nem töltődik a kondenzátor (addig folyik az áram ebben az állapotban).
(#) henz válasza VIM hozzászólására (») Nov 2, 2012 /
 
Ha jól értem a kazánunk működését, akkor az esetünkben nem "főégőtér lekapcsolása után" és nem is egy bizonyos idő után indítja a szivattyút, hanem egy bizonyos hőfok elérése után, melyet manuálisan beállíthatok a kazánon.
Már nem emlékszem (biztosan), de úgy rémlik, hogy amikor a szobatermosztát nem működött (a kazán ugye nem indult), de a szivattyú csak pörgött tovább. (lehet, hogy a holnapi nap kiveszem az áthidalást és megtudom).
Ha jól értem a 16-tól a vízmelegítő termosztátjához lehetne kötni (bojler), ami nekem nincs (ez lehet az "Indirekt fűtésű tároló"?)
A hozzászólás módosítva: Nov 2, 2012
(#) VIM válasza henz hozzászólására (») Nov 2, 2012 /
 
Az áthidalást NE vedd ki, csak próbáld ki, hogy ha kiveszed, működik-e tovább a szivattyú egy kis ideig.
Idézet:
„Ha jól értem a kazánunk működését, akkor az esetünkben nem "főégőtér lekapcsolása után" és nem is egy bizonyos idő után indítja a szivattyút, hanem egy bizonyos hőfok elérése után, melyet manuálisan beállíthatok a kazánon.”
Ez az amit nem tudni, hogy a szivattyú termosztátja most hogyan kapcsol a 15. ponton? A 16-on folyamatosan megy, míg a főkapcsolót ki nem kapcsolod.
(#) henz válasza VIM hozzászólására (») Nov 2, 2012 /
 
Eddig csak úgy nyúltam bele ha kikapcsoltam és áramtalanítottam a kazán. Ezek szerint bátran működés közben vegyem ki az áthidalást egy ideig?
(az utolsó mondatod után "pontot" . raktál helyesen, mert ezt tapasztaltam)
A hozzászólás módosítva: Nov 2, 2012
(#) henz válasza VIM hozzászólására (») Nov 3, 2012 /
 
Az áthidalást működés közben (tehát, a kazán nem fűtött, de a szivattyú pörgött) megszakítottam... a szivattyú továbbra is pörgött, működött.

u.i.: lehet, hogy volt egy félreértésünk (nem fogalmaztam pontosan) a Pé , 20:06-os hozzászólásomban:
Idézet:
„... mert amikor a termosztat rá volt kötve (és hibát jelzett) a kazán nem indult.”
itt a szobatermosztátra gondoltam és nem a kazánon lévő (szivattyú) termosztátra.
(#) DkGrinder válasza VIM hozzászólására (») Nov 3, 2012 /
 
Ebben a a kazánban nincs elektronika, itt az utókerningtetést a szabályzó termosztát érintkezőjével valósítják meg, úgy mint anno a TERMO ÖV kazánokban. Nem időre, hanem hőfokra megy.
(#) henz hozzászólása Nov 3, 2012 /
 
Az eddigieket végigolvasva, arra jutottam, hogy mivel nem értek hozzá ezért lehet, hogy nem fogalmaztam pontosan, vagy félreérthetően fogalmaztam:
A gázkazánon van egy termosztát, mely segítségével a víz (a főégőtér vize) hőmérsékletét állíthatom, melynek beállítása után tudok ellenőrizni a kazánon lévő hőmérőn. Ugyanakkor van még egy termosztát szerűség a kazánon, melyen beállíthatok egy értéket (nem tudom, hogy mit), amit a kazán termosztátjának, vagy a szivattyú termosztátjának neveztem korábban. Ez is zavaró lehetett.
Tehát az egyiken beállítom a hőfokot, melyet el kell érnie a kazánnak és ha a víz elérte a hőfokot, akkor indul a szivattyú. A szivattyú termosztaton tehát (gondolom) azt lehet beállítani, hogy milyen hőfokon álljon meg a szivattyú (?).
Mivel az esetemben egy erősen lebutított hiányos kombinált radiátoros és padlófűtésrendszerünk van -vezérlés nélkül (+tágulási tartály van közvetlenül a gázkazán után)- ezért kérdéses, hogy jó dolog-e az ha a szivattyú leáll. Szerintem a padlófűtés körei nem fognak bírni felmelegedni, nem beszélve arról, hogy az áramlás a padlókörökben (így is a szivattyúval) nagyon kicsi.
A hozzászólás módosítva: Nov 3, 2012
(#) VIM válasza DkGrinder hozzászólására (») Nov 3, 2012 / 1
 
Persze, igazad van! Én értem. Ő a "szomszédban" lakik és próbáljuk tisztázni az általa elmondottakat mert én nem tudok csehül, vagy szlovákul. Nem mindegy, hogy "megoldott az utókeringés" vagy "meg kell oldani az utókeringést" ennél a kazánnál.
(#) DkGrinder válasza VIM hozzászólására (») Nov 3, 2012 / 1
 
(#) TheBartucz hozzászólása Nov 5, 2012 /
 
Üdv!

Egy elektromos infra fűtés vezérlését kellene megoldanom. A fűtő fólia a laminált burkolat alá került ide kellene egy szenzor ami egy adott hőmérsékletnél ki be kapcsolna, mert a folyamatos működéstől túlmelegedhet a fólia, tehát ki-be kapcsolgatással redukálná a hőmérsékletét. Valami egyszerű kisméretű érzékelő kellene, amit pár méterre ki lehetne vezetékezni.
(#) elektroton válasza TheBartucz hozzászólására (») Nov 5, 2012 /
 
Kb 10.000,-ért kapható egy jól programozható hőfokszabályozó kb 5mm átmérőjü érzékelővel melynek akár meg is hosszabítható a vezetéke. Típus "AKO 12123".
(#) TheBartucz válasza elektroton hozzászólására (») Nov 5, 2012 /
 
Köszönöm! Konkrétan az infra fóliához is van hasonló programozható termosztát, de a teljes költséget figyelembe véve nem láttam értelmét venni valami komolyabb vezérlést. Csak valami egyszerű kapcsolást gondoltam összedobni. Azt hiszem egy DS1821-el fogom megoldani valami tokozással és pasztával rögzítem a fóliához. Mondjuk ennél konkrétan nem tudom mennyire szabad távolra helyezni az érzékelőt de max 5m-re kell vinnem azt is csak az esztétikus elvezetés miatt. Gondolom ha árnyékolt a kábel, nem probléma. Még egyszer köszönöm! Üdv!
(#) TNPsoft hozzászólása Nov 22, 2012 /
 
Üdv mindenkinek!

Nagy a bánatom. Itt ez a megvakósult gépészkapcsolás.
A kazán 30kW, a puffertartály hőcserélője (csőkígyója) 48kW, 2,2négyzetméter.
Már ott kezdődik a bibi, hogy valamiért nem melegszik eléggé a tartály, és hamar megrottyan a kazán. Most mi van, ki és hol hibázik?

Előre is kösz, bárki ért hozzá...
(#) DkGrinder válasza TNPsoft hozzászólására (») Nov 22, 2012 /
 
Szia!

Pedig hibátlan.
Dobj egy tartály típust.

US 11 nincs beragadva, US 18 iránya megfelelő? Gondolom 14/ 17 nyitva.US 11 tömegáram megfelelő?
Amit már láttam sokszor elszúrva, hogy elkötik a csőkígyókat, sok tartályban elég idióták a csőpárok.
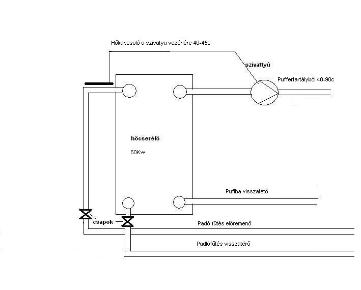
(#) pacal76 hozzászólása Nov 22, 2012 /
 
Sziasztok.
Padlófűtés vezérlésén gondolkodom. mégpedig úgy hogy egy hőcserélő (60kw) kilépő vízhőmérsékletét figyelném egy termosztáttal a szekunder oldalon. Ami a primer oldalon lévő keringtető szivattyút (28w) vezérelné, megy nem megy üzem módban, és ezzel beállítva 30-45 fokos vizet. Amúgy 6kör 80nm a ház.
Érdekelne hogy életképes megoldás lenne ez vagy felejtős.
(#) TNPsoft válasza DkGrinder hozzászólására (») Nov 22, 2012 /
 
Szia!

Minden helyes van bent (gyengébbek kedvéért még rajz is van a kazánvédő keverőszelep oldalán).
Begyújtás után 60°C-os kazánbelsőnél elindul a kazánszivattyú.
Kazán előremenő 85°c pislákoló lángnál, visszatérő 55°c (miért nem 60°c, mert olyan a kazánvédő), de a csőkígyó visszatérője is 50°c, mintha nem adna le elég hőt. Előkaparom a tartálytipust valahonnan.
(#) JZoli válasza TNPsoft hozzászólására (») Nov 22, 2012 /
 
Miért lett leválasztva a vegyestüzelésű kazán azzal a csőkígyóval? Szerintem egyszerűbb lett volna ha a puffer vize közvetlenül menne a vegyeskazánra. A leírásodból az derül ki, hogy nincs elég hőátadás a csőkígyón keresztül, ezért nem melegszik a puffertartály vize és ezért forr fel a víz a vegyeskazánba. Szerencsésebb lett volna fordítva kötni, és a fűtés felé tenni azt a leválasztásnak szánt csöves hőcserélőt. Meg kellene nézni, hogy a mostani felállás szerint mekkora a hőlépcső a vegyeskazán előremenő és visszatérő ága között. Ha ez nincs lagalább 15C-fok akkor bizon kicsi a hőcserélő teljesítménye. Nekem az a tapasztalatom, hogy normál körülmények között a legtöbb hőcserélő a ráírt teljesítmény felét-kétharmadát tudja csak, igaz ez legtöbbször lemezes kivitelü, de itt is ilyesféle probléma lesz!
(#) pacal76 hozzászólása Nov 22, 2012 /
 
Valami ilyesmire gondoltam:

CSÖVES.jpg
    
(#) DkGrinder válasza pacal76 hozzászólására (») Nov 22, 2012 /
 
Ez nem igazán fog működni :-S
(#) DkGrinder válasza TNPsoft hozzászólására (») Nov 22, 2012 /
 
A kazánvédő fix vagy állítható? Milyen márka? Ha minden helyesen van bekötve akkor vagy a hőcserélő kicsi, vagy a kazánvédő nem működik rendesen. A múlt héten mi is kínlódtunk egy ESBE szeleppel :-S
(#) pacal76 válasza DkGrinder hozzászólására (») Nov 22, 2012 /
 
Miért is?
(#) pacal76 válasza DkGrinder hozzászólására (») Nov 22, 2012 /
 
A hő kapcsoló lomhasága miatt vagy a szivattyú nem díjazná a ki be kapcsolgatást?A kapcsolást termisztorral oldanám meg a hozzá való elektronikával a szivattyú esetleg kaphat egy lágyindítót de ez már tényleg túlzás.
(#) Kovabe válasza pacal76 hozzászólására (») Nov 22, 2012 /
 
Egy keveröszelep csodákra képes
Következő: »»   25 / 107
Bejelentkezés

Belépés

Hirdetés
XDT.hu
Az oldalon sütiket használunk a helyes működéshez. Bővebb információt az adatvédelmi szabályzatban olvashatsz. Megértettem