Fórum témák
» Több friss téma |
Fórum » Westen 240 Fi gázkazán hiba
Nagyon szépen köszönöm.....a két poti az előlapon sem reagál már régóta, állandó teljes gőzzel fűt..... És a meleg víz... Szintén..... Ettől lehet az a hiba is?
nem.. Ha teljes gőzzel fűt, akkor vagy a lángmoduláció nem megy, mondjuk felakadt moduláló szelep hibából, elektronika hibából adódóan, vagy pedig az NTC hibás, ami az előremenő víz hőmérsékletét méri.. Amikor indul a fűtés, akkor sem modulál? begyújt, teljes gőzzel ég, majd picit visszavesz, megint rátol, majd beáll... ez a normális működés. Amikor beindul, azonnal teljes gőzzel megy? nem változik, nincs változó sípoló hang?
Nem így működik.... teljesen tolja neki.... köszi szépen....
Nagyon szèpen köszönöm
AZ NTC értéke már vásárláskor is feltünt, jelentősen eltért a gyárilag berakottal. Most már tudom mi a helyes érték, szobahőmérsékleten 10 kiloohm. Az új, májusi, az annyi.
A probléma az, hogy májusban ki -be kapcsolt mind a melegviz és a fütés is, ezért szerelő cserélte a Ventillátor melletti nyomásérzékelőt, és jó is lett, melegviz hibátlanul, akadozás nélkül ment egész nyáron, a fütést is kipróbálta még májusban a szerelő, az is ment. Szeptember elején ahogy ráengedtem a próbafütést, 3 napig jól ment minden, fütés is , melegviz is. Majd negyedik nap a fütésnél elindult az égőtér néhány másodpercig és utána folyamatos piros lámpa, a melegviz meg 2-3x ki be kapcsol aztán megy. A melegviznél mindkét mikrokapcsoló tüske kijön, a fütésnél csak a váltószelepnél, ahogy ugye irtad ez igy helyes. A mikrokapcsolókat az alaplapon kimértem jók. Ha fütésnél manuálisan bekapcsolom az "ufon" a mikrokapcsolót, akkor a fütés is elndul. Ez ugye azért érdekes, mert elvbe az UFO-n fütésnél nem kell a tüskének kijönnie és most nem is jön ki. Eredmény a piros lámpa. Viszont igy ha meghúzom a mikrokapcsolót akkor meg füt. Akkor lett rossz minden amikor a fütést kipróbáltam. tt mi a logika?? Elektronika???? a jobbra fent a ventilátor mellett, az égőtér felett lévő a ventilátor nyomáskülönbségét figyelő membrán. Az lett cserélve, illetve vele együtt a venturi cső is ami ugye a nyomáskülönbséget előállitja. Ez figyeli hogy a ventilátor megfelelő levegő hozammal rendelkezik. A szerelő szerint határeset volt a levegő hozam mennyisége, ezért hol elinditotta, hol leállitotta a cirkó müködését. íettől volt a ki- be kapcsolgatás. Csere után minden müködött, illetve mivel május volt, a fütés már hosszabb távon már nem, de ki lett próbálva és akkor jó volt. Sajnos én a szakszavakat nem ismerem, elnézést ha egy kicsit bonyolult vagyok.
Sziasztok.... most jobban megnéztem a kazánt...a fűtés oldali reakció az okê..kikapcsol magától, viszont a "Csap"melegvíz része nem,es a potik sem reagalnanak, hogy alacsonyabb hőfokon "muzsikáljanak"ez valószínűleg NTC hiba??Ésnha az, akkor mennyi van benne,hol,es melyik ami a meleg vízhez szolgál...??? köszi a segítséget mégegyszer
Sziasztok! Tudom nem ide tartozik de tudna valaki segíteni computherm Q7 programozásában?
Sziasztok Mesterek!!!
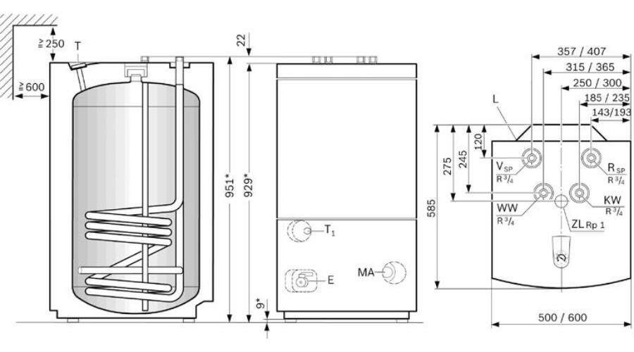
Volna egy ,azaz kettő kérdésem,ami nem igazán ide való,de nem találtam jobb helyet,kérek nézzétek el nekem. Első kérdés. Mitől van,hogy a visszatérő kör nem melegszik fel? Második. A mellékelt képen lévő feliratok értelmezésében kellene segítség,mert nem vagyok biztos magamban. A Vsp a csőkígyó visszatérője? Rsp az előremenő? A WW a felmelegített víz kimenője? A KW meg a hideg víz csatlakozás? Na de mi a ZL,és az E ,meg az MA?
Westen Energy 240fi
Akit érint, szívesen megosztom a ventilátor nyomáskapcsolóját vezérlő relé bekötését. RL3 A helyettesitő relé nem lábkompatibilis. ezért egy kis ügyeskedésre szüség van. A képeken remélem jól látható mit hova kell kötni, a szinek segitenek. relé tipusa: 1-1393204-4 Relé, SPDT, 18V DC, 7A / 250V AC, 7A / 24V DC Hestore és HQ-nál kapható Sok köszönet VIM-nek A hozzászólás módosítva: Szept 27, 2022
A relé cserélése után, hogy a hiba ne legyen egyke, az alaplap ki be kapcsolgatta a gázt az égéstérben, az egész készüléket nem, a sárga lámpa továbbra is világitott. Gondoltam , hogy a gázszabályzás körül lesz a hiba. Ugyis lett. Az áramkörben van egy 1 mikrós 400v-os kondi. Totál süket volt, és még ráadásul lötyögöt a forrasztása is. 3,3 mikro 400 v-ra cserélve , tökéletesen megy.(Képen a konditól balra lévő csatlakozó a gázszabályzó és a gyujtóra menő csatlakozó)
A hozzászólás módosítva: Szept 28, 2022
Tisztelt hozzáértők,
hogyan tudom ellenőrizni, hogy a Westen 240 FI-m megfelelően modulál-e? Az az elképzelésem, hogy optimalizálom a fogyasztást, azzal, hogy csökkentem a vízhőmérsékletet. Azonban nem szeretném, hogy ezt csak sűrű ki-be kapcsolással végezze. Sajnos eddig nem foglalkoztam ezzel, hogyan szabályozza a teljesítményt a kazán? Mi alapján? Ezért jött képbe tulajdonképpen, hogy ellenőrizném, hogy megfelelően modulál-e? Köszönöm segítő szándékotokat!
Jó estét mindenkinek!
A probléma egy Westen Energy 1.240 Fi kazánnál áll fenn: 1.) Az eddigi (elvileg fázishelyes) bekötésnél az alsó (zöld) LED lassan villog, fölötte a piros vele azonos ütemben. A kazán nem gyújt, illetve nem csinál semmit. 2.) Fordítva bedugva a dugvillát (a fázis nem a biztosítékon van, hanem a mellette lévő kék vezetéken) a zöld LED folyamatosan világít, a kazán elindul, szellőztet, begyújt, de a szikráztatás nem áll le (mintha nem érzékelné a lángot) és végül tiltja magát. Néha ebben az állásban "leveri a FI-relét". A láng érzékelő elektróda cserélve lett, de így sem érzékel. Furcsa módon jónak tűnik ezzel a bekötéssel az indulása, de mégsem az... Néhány kérdésem lenne: - a zöld LED villogása mit jelez? (nincs a hibakódok között és a gépkönyv se utal rá) - hogyan érzékeli a fázishelyességet a kazán?... illetve mi történik fordított bekötéskor? - a fenti leírás alapján hol keressem a hibát (ha javítható egyáltalán)? Mellékeltem néhány képet a panelről, amin a típus/azonosító is látható. Ha valaki tud hozzá kapcsolási/bekötési rajzot, annak nagyon örülnék! Minden segítséget, véleményt köszönök és szívesen fogadok!
Üdv mindenkinek!
Westen Novadens 280 tipusú gázkazánnál azt tapasztaltam, hogy az indító idom kéménycsővel való találkozásánál víz szivárog. (Előtte 20perccel esett az eső) Lehetséges, hogy az esővíz ott megjelenhet? Esetleg a rendszerből lehet ott valami hiba folytán víz? Nyomáscsökkenést nem tapasztaltam. Köszönöm a válaszokat.
Üdv Mindenkinek!
Nekem van egy Baxi 240i kombi cirkó kazánom, ami jelenleg nagyon nehezen ad melegvizet. Nem elég a víznyomás, és ezért nem kapcsol be, ha megnyitom a csapot. Volt kint egy szerelő, de azt mondta, hogy a komplett váltószelepet kellene cserélni, amit már nem lehet kapni. Megoldásként a teljes kazán cserét javasolta. Megmutatta, hogy a kis kijövő pöcök (nem jön ki) nem kapcsolja a mikrokapcsolót. Sajnos az látszik, hogy szépen lassan egyre nehezebben kapcsolja be a melegvíz, már két csap megnyitása szükséges. Nem szeretném ezt a tényt elfogadni, ezért várnék visszajelzést, hogy mennyire van igaza, illetve, hogy tényleg csak a komplett egység cseréje oldja meg a problémát? Ha van esetleg valakinek Budapesten affinitása a megjavításhoz szívesen vennék privátban ajánlatot is!
Szia! Jobb lett volna ha megadod a kazán fantázianevét (luna, eco, nuvola stb.), úgy könnyebb lenne megadni a még fellelhető alkatrészek beszerzési lehetőségét. Itt és itt még fellehető ezekhez a kazánokhoz alkatrész. Ha han a kazánban HMV hőcserélő akkor annak a vízcsapház membránjától kezdve a tömszelencéig a háromutú szelep javító készlet is kapható (nem kell az egyész házzal együtt megvenni). A javítást, felújítást ne odázd el, addig is fújjál a tömszelencéhez egy kis kenőanyagot, hogy könnyebben tudja mozgatni a nagy membrán a tolórudat. Bővebben: Link
Szia! Ha ezt a kapcsolási rajzot megfigyeled akkor lehet látni ezt a fázishelyes csatlakozási megoldást és a láng detektálást amit az olasz kazánoknál is hasonlóképpen alkalmazhatnak. Ez nem a szóban forgó kazán rajza. Az ionáram érzékelő elektródától visszakövetve az áramkört az oda csatlakozó alkatrészek kimérésével kellene ellenőrizni. Az is előfordulhat, hogy a tápegység szűrő kondenzátora sem megfelelő értékű már ennyi idő után.
Szia!
Köszi a választ. BAXI ECO 1.240i a pontos típus. 2005-ös gyártású. Esetleg tudsz javasolni valakit, aki tud segíteni kicserélni a szükséges alkatrészt?
Bővebben: Link
Bővebben: Link Bővebben: Link Bővebben: Link Ezeket kellene megnézni, hogy közülük melyik szorul cserére a kazánban. A szerelők ezerrel dolgoznak, én is de, nem ez a szakmám csak hobbiból próbálok segíteni ezekkel az információkkal.
Sziasztok!
Elnézést új vagyok itt és nem tudom jó helyre írok. Hátha itt valaki tud segíteni nekem. Van egy Westen Star Master 240 Fi kombi gázkazánom. Most vásároltunk egy Ariston Lydos Hybrid hőlégszivattyús bojlert. A bojler melegvíz kimenetét bekötöttem a kazán használati víz bemenetére. A célom az lenne, hogy ha a bojler vize mégsem lenne elég meleg, és azonnal kell átfolyó melegvíz, akkor a kombi kazán csak a már előmelegített vizet melegíti tovább. Ha viszont a bojlerből jövő víz magasabb mint a kazánon beállított érték, akkor a kazán be sem kapcsolna. Elvileg a kazán átfolyó víz hőmérsékletét beállítottam 39 C fokra mind Comfort mind pedig ECO módban. Az Aristonból kijövő víz pedig 52 C fok. ( Ez amit a hőszivattyú tud, a fűtőszál használata nélkül ) De annak ellenére, hogy a kazánba bejövő víz 52 C fokos, a kombi kazán bekapcsol. Nem tudom, hogy ez vajon az áramlásérzékelő miatt van, és keringeti csak a vizet, vagy fűti is. Hogyan lehetne elérni azt, hogy ha a bejövő használati víz melegebb mint 39 C fok, akkor a kazán használati vizet melegítő része ne kapcsoljon be? ( Arra gondoltam, hogy egy csőtermosztátot rakok a vezetékre és ha a bejövő víz hőmérséklete magasabb mint 39 C fok, akkor a kazánt lekapcsolja. Ez még nyáron jó is lehetne, de télen a fűtés miatt ez még sem jó megoldás. ) Jelenleg manuálisan kapcsolom be a gázkazán használati vizes részét amikor a bojler nem tud elég meleg vizet adni. Köszönöm, ha valaki tud segíteni.
Szia!
Csőtermosztát, és 3 járatú motoros váltószelep. Ha meleg a bojler, a csap nem engedi a kazán fele, közvetlen megy a csapokhoz a HMV. Ha meg hidegebb, akkor átvált, megy a kazánba, és az meg ráfűt. A cirkó azért kapcsol be, mert az áramlásérzékelő azt veszi észre, hogy nyitva a csap. Azt is csinálhatod, hogy az áramlásérzéklőt tiltod a csőtermosztáttal. Elektromosan. Akkor csak akkor fog menni, ha a csőtermosztát engedi. Ezzel az a baj, hogy nem tudom milyen logikával dolgozik, ha a fűtés üzem is aktív. Abból esetleg lehet galiba.. Bár elvileg a HMV csak a hőcserélőn megy keresztül, vagyis... De meg kellene nézni a rajzot, a star master hogy is működik...
Nagyon szépen köszönöm a tippet!
Szia! Az nem jó ha csőtermosztát tiltaná le a kazán vízáramlás kapcsolóját, mert az hallos, három vezetékes nem sima záró érintkezős megoldású. Azt esetleg nem lehetne megpróbálni, hogy egy kapillárcsöves termoszelepet beépíteni a kazán HMV kimenetébe és a távadót a bojler felől jövő csőre a lehető legközelebb bojlerhez, hogy minél előbb érzékeljen és zárjon ha onnan melegvíz jön?
A hozzászólás módosítva: Okt 5, 2022
Szia! A hall cellásat is lehet tiltani.. Táp, GND, kimenet. Kimenetet leválasztod, nem érzékel semmit az elektronika.. Esetleg egy 10K a GND fele ilyenkor, hogy ne lebegjen a bemenete a uC-nek.
Sziasztok!
Az első verziót tovább gondolva az alábbi, a képen látható megoldásra gondoltam. A jelenlegi rendszert az alábbiak szerint változtatnám. A bojler melegvíz kimenetére rákötnék egy termosztatikus váltószelepet. Találtam olyat ami 20-40 fok között az egyik irányba enged ( jelen esetben ez menne a kazánba ), 40 fok fölött pedig a másik irányba ( ez menne a melegvíz hálózatba ) A visszafolyások, azaz a keringési irányokat ( bojler->kazán->melegvíz felhasználás, illetve bojler->melegvíz felhasználás ) visszacsapószelepekkel szabályoznám ( már ha jól néztem a megnevezésüket. Olyan szelepet keresek ami az egyik irányból átanged, de vissza felé nem ) Így tulajdonképpen a termosztatikus szelep vezérli a folyamatot a bojlerből kijövő hőmérséklet függvényében. Szerintetek ez így működhet?
Szia! Ez nem keverő szelep? Szerintem ezek nem azonnal, és "digitálisan" kapcsolnak át..
Szia!
Ezt írják a szelep adatlapján: "Az Esbe Vtd300 háromjáratú váltószelep, a bejövő folyadékot névleges váltási hőmérséklet alatt B csonk felé, felette A csonk felé engedi tovább. A Szelep fix hőmérsékletű termosztátot tartalmaz, mely a bejövő folyadék hőmérsékletére reagál és annak megfelelően változtatja az áramlási irányt A vagy B csonk felé Az átváltás+-,2-3°C hiszterézissel történik. Négy különböző névleges hőmérsékletű szelep rendelhető:45°C,50°C,60°C70°C-os. A szelep működése beépítési helyzettől független." https://www.futesuzlethaz.hu/shop/esbev-termosztatikus-valtoszelepe...1.html
Én ezzel a szeleppel oldanám meg, mert ez is van annyira gyors mint az ESBE és ez lezár nem kever, nyitva hagyva résnyire a hideg köri átmenetét. Ha csőtermosztátot alkalmaznánk erre a célra annak is van némi késedelme főleg ha nem kapillárcsöves és bele kellene kötni a kazán elektronika vízáramlás kapcsoló stekkerbe, mert az nincs külön kihozva mint bekötési pont (meg kell keresni a panelen). Ha digitális csőtermosztátot használnál és annak az érintkezőjével kapcsolnál egy viszonylag gyors működésű zónaszelepet az is megoldásként jöhet szóba csak egy kicsit többe kerül.
A hozzászólás módosítva: Okt 6, 2022
|
Bejelentkezés
Hirdetés |
























