Fórum témák
» Több friss téma |
Szia!
Hasonló hibám volt Technics RS-B565-el. A motor hibásodott meg. Pontosabban a szénkefe és a kommutátor kapcsolata nem volt megfelelő. Szétszedtem. Kicsit hajlítottam a szénkefe rugóján, és azóta megy. Kopp-kopp. (Jótanács: mielőtt szétszeded a motort, gondold végig, hogy fogod összerakni?)
Szia!
Majdnem stimmel az előző, csak általában nem szén-, hanem bronztű kefe van ezekben a pici motorokban. Hajlítás helyett én a szétszedés, forgórész fúrógépbe befogás, P1500-P2000 polírpapírral felpolírozás, majd alkoholos tisztítás, szeletek közt fogkefés kiseprés folyamatot javaslom, így közelebb lesz a gyárihoz az állapota. Illetve ha már szét van szedve, akkor a tengelyt, bronzperselyeket is érdemes kitakarítani, utána egy nagyon apró csepp műszerolajjal lekezelni. Esetleg ha a szétszedéstől ódzkodnál, akkor kiszerelve, üresben alaposan felpörgetve (külső tápról), irányváltogatással (ez lényeges, akkor van nagy áramlökés, amikor irányt vált és a másik irányba gyorsít nagy fordulatra) nagy eséllyel kiégethető az elakadást okozó szennyeződés. Utóbbi módszer CD-fejmozgató motorok esetében bizonyított, azok már annyira picik, hogy nem vállaltam a szétbontását. Egyébként igazad van, a kétmotoros gépekben jellemzően nem mechanikus kuplung, hanem a csévélőmotor áram- és ezáltal nyomatékkorlátozása felel a szalaghúzó erő beállításáért. (És pont ezért is tud ilyen hibát produkálni, mert az alacsony fordulat miatt nem megy át lendületből a kommutátor felületi sérülésen, oxidáción.) A hozzászólás módosítva: Jún 19, 2024
elektrorudi, Tomi94: Először is köszönöm az infókat.
Fiatalabb koromban szedtem szét már valami 6/12V DC motort, ami szintén magnóból származott, de az annyira régen volt, hogy megkoptak az emlékeim. Ha jól emlékszem (és tippelem), akkor a motorház oldalán lévő bevágásnál lehetne a hátuljában lévő "korongot" kinyomni és hátrafelé kihúzni a forgó részt. Jelenleg azt látom, hogy a fém-korong alatt, vele egyszintben műanyag elem van, így nem tudok alányúlni hegyes csipesszel/csavarhúzóval, hogy kifeszítsem a fém-korongot. Így kellene szétszedni ezt a motort is? A motor paramétereiről nem sikerült adatokat szereznem. (msn5d073ak) Ez milyen feszültséggel működik? illetve hogyan történik itt a fordulatszám szabályozás? PWM-es motor lehet? Idézet: „"És pont ezért is tud ilyen hibát produkálni, mert az alacsony fordulat miatt nem megy át lendületből a kommutátor felületi sérülésen, oxidáción."” Igen, nekem is volt egy olyan gondolatom, hogy a sebesség lassulásával nem fordul át azon a ponton, ahol kontakt probléma van és "beragad". Sajnos megfigyelni nem sikerült a motort abban az 1mp-ben, amikor leáll a felcsévélés, de még nem kapcsol le a mechanika. Emiatt csak elmélet maradt. A hozzászólás módosítva: Jún 19, 2024
Közben az lett, hogy egy ismerősnek odaígértem inkább. Küzdjön vele tovább Ő
![]() Amúgy sem igazán szerettem a hangját. Szóval, köszönöm, de akkor ezt most nem teszem rendbe. Viszont az ide-oda váltás a reel-motornál jó ötlet, megjegyeztem.
Van pár darab kazettás magnódeckem (csak hobbi célra és nem is valami komoly darabok) amelyeket használok is alkalomszerűen.
Kicsit leépítem a készletet és próbálom szelektálni miket hagyjak meg. (Egy barátom rákapott a magnózásra, neki adogatok oda pár darabot, amikkel nincs gond vagy ha igen, rendbe tudja hozni magának.) Ezért a napokban két magnómnál mértem pár értéket (fordulatszám, freki menet, etc) és feltűnt valami... Két "tesztszalagom" van, természetesen fulltrack, gyári darabok. (Teac, Basf) Mindegyiken van 10kHz azimuth beállításra. Azonban azt vettem észre, hogy a két szalagon nem ugyanolyan az azimuth. Vagyis, ha az egyikre beállítom a fejet, akkor a másikkal nézve a szkópon fáziseltolódás van a két csatorna között. És vica versa. Három magnóban is megnéztem, hátha valami szalagvezetési gond van, de ugyanezt tapasztalom. Ergo minimum az egyik szalag hibás (vagy mindegyik). Van valami ötlet hogyan lehetne kideríteni melyikkel van a gond? (Egyelőre annyit csináltam, hogy választottam egyet és arra állítottam be mindegyik magnót)
Én valamikor régen a szalagos magnóval a következőt alkalmaztam:
Elindítottam egy olyan szalagot, amit ugyanezzel a magnóval vettem fel "újabb" korában, vagyis amikor még nagy eséllyel nem nyúltam a fejegységhez, és még nem is kophatott nagyon aszimmetrikusan. Ezután átkapcsoltam a végfokot (nem a magnót!) monó állásba. Ha rosszul van beállítva a fej, ilyenkor van egy jellegzetes hangja. Ha jól van beállítva, akkor a magas hangok is teljesen megmaradnak. A "jónak gondolt" tartomány közepére állítottam a fejet. (Volt egy beállító-szalagom, amit a Magyar Rádióban vett fel nekem egy ismerős, de sajnos a szalag fizikailag nem volt elég jó a magnómhoz [na jó, a magnóm volt túl brutális a szalaghoz... ZK246], és nemsokára használhatatlanná nyúlt... és szkópom sem volt.)A módszer lényege, hogy bár előfordulhat, hogy nem tökéletes a beállítása, de a saját korábbi felvételeimhez optimális. Ha van olyan zenéd, amin hosszabban van egyedül egy hangszer hangja, jellemzően elektronikus zenék esetén, az jó lehet. A két beállító-szalag hibája: 1. Előveszel egy olyan magnót (ha jól értettem, van több is...), amihez még biztosan nem nyúlt senki, és azon megnézed a két tesztszalagot, és az alapján talán el tudod dönteni, hogy melyik jó. 2. Vagy beállítod a legjobb zenédhez a magnót, és ahhoz viszonyítod a két tesztszalagot. Lehet, hogy az egyik jó, de ha nem tudod eldönteni, akkor én a helyedben arra tippelnék, hogy mindkettő hibás. Előfordulhat, hogy mindkettő "ugyanarra" rossz, de talán nagyobb az esélye annak, hogy két különböző irányba. Én úgy állítanám be, hogy a "kettő közé". Az egyik szalagnál az egyik, a másik szalagnál a másik csatorna siet, de kb. ugyanannyit. Ekkor bár egyik sem pontos, de mindkettőhöz képest a legkisebb a hiba...
Igen, az a "monósítás" pont ugyanazt csinálja, amit én szkóppal figyeltem meg.
Minél nagyobb a fáziseltolódás, annál jobban kioltja a két jel egymást. Annyi, hogy ezt most szkóppal látom, nem csak hallom. Így pontosabb és az esetleges azimuth ingadozás is követhető. (például kiderült, hogy az egyik magnón eléggé látható és nagyjából a görgő fordulatának felel meg a ritmusa, így azt rendbe kell tennem) Sajnos egyik magnó sem eredeti beállítású, mindegyik hibásan került hozzám és magam tettem rendbe őket. Alapvetően csak ilyen "gépeim" vannak. Kicsit a szerelgetés+hallgatás lett a hobbi így egyben, ezért ilyen a "gyűjtemény". Valami gyári rögzítésű szalag referenciának, jó ötlet és lehet ez lenne a megoldás. viszont jelenleg kazettám sincs olyan, amit egy gyári beállítással vettem volna fel. Ami szalagom van ezekhez, azokhoz mind használtan jutottam és nem tudom mivel és hogyan készült felvételek. Jellemzően törölném is őket és sajátot rögzítenék rájuk. Így alapvetően szabadkezem van, nincsenek régi felvételeim, amikhez kötném magam. Ezért is akadtam el a dologgal. Nincs referencia, ami alapján ki tudnám találni melyik tesztszalagom lehet jó. Felmerült bennem, hogy a helyi "bolhapiacon" vásárolnék valami műsoros kazettát, de anno szintén voltak garázs cégek, hamisítványok, amelyek szintén nem biztos, hogy megfelelőek referenciának. Illetve arra, hogy eldöntsem melyik beállítószalagom lehet megfelelő. Pedig az alapján beállítanám a legjobb hangzást, majd megfigyelném a tesztszalagok közül melyik áll a legközelebb ehhez és azt használnám akkor pontosabb beállításra. Persze, ha nem nyúlott már az a bolhapiacos szalag is eleve. ![]() Van esetleg olyan kazetta kiadó, aki nagyon korrekt volt anno? Akkor azt a kiadót keresném a vásárban. (Pepita, Hungaroton vagy valami hasonló) Tudom lehet vásárolni új tesztszalagot is, de nem biztos, hogy kazetta+szállítás+vám ér annyit.
"B" tervként ötlet: A nyitóleveledben említetted, hogy egy barátodnak adtál / adsz át magnó(ka)t. Esetleg tőle tudsz kérni általa jónak minősített kazettát? Akkor legalább "egymással kompatibilisek" lesztek...
Noigen, a referencia kérdése... alig van ma már hitelesen használható tesztkazetta erre. A 30 éves szerviz-eszköz egyáltalán nem biztos, hogy jó még.. anno is volt előírás rá, hogy mennyi lejátszás után kell selejtezni. És akkor még csak a használat közbeni nyúlás miatt volt ilyen szempont, mára meg a tok vetemedése, filc öregedése is belejátszhat a képbe. Én személy szerint inkább a japán tesztkazettának hinnék, a korabeli nyugat-európai tokok általában véve rosszabbul öregedtek mára, hiába voltak akkoriban egyenrangúak. De ez sem méréstechnikai törvény, csak megérzés.
Amit esetleg tehetsz: többszöri felvétel-visszajátszás mérés magas frekvencián (15 kHz vagy akár fölötte, -20 dB-n), eltérő fejállásokkal. Esetleg teljes frekvenciamenet-mérés (van már rá PC-s eszköz). Akkor kezd el legmagasabb határnál esni a frekvenciamenet, ha a fejrés a lehető legpárhuzamosabb a szalaggal, minden más esetben hamarabb kezdődik a "lejtős" szakasz. Ebből lehet mérőszalag nélkül is kiindulni, vagy legalább a kettő között igazságot tenni. (És ez is lenne a mélyebb oka annak, hogy nem elég csak "valaki más felvételéhez" beállítani a fejet, mert az, hogy egy adott idegen felvétel hol szól legjobban, és hogy a magnó hol tudja igazán kifutni magát saját felvétellel, nem feltétlen esik egybe, ha az idegen felvétel sem tökéletesen beállított gépen készült.) A hozzászólás módosítva: Júl 10, 2024
Lehet vásárolni új készítésű referencia szalagokat, amiket full-track (vagy arra átépített) studio gépeken rögzítenek. (pl. Studer)
Viszont ezek jellemzően EU-n kívüli források és nem igazán érné meg 1-2 készülék miatt beszereznem. Ezért ezt most kihagytam. (egyelőre) Próbáltam a magasabb (15kHz-20kHz között) frekin történő felvétel/lejátszás dolgot, amit említettél. Feltételezem ez a technika a fejrés méretére alapoz, miszerint a 90° azimuth-tól való eltérés esetén a fejrésbe jó esetben a fáziscsúcsoknál belecsúszik előtte-utána egy kis felmenő-lemenő szinusz is és azok kioltanák egymást. (már, ha jól okoskodom) Ez elméletben valóban jó lehet, de talán a magnóim állapota, a szalag minősége vagy a nagyon szűk fejrés miatt nem hozta meg a várt hatást. A freq növelésével eljutottam oda, hogy a szalagra rögzített jel amplitudója (-20dB/0VU a biztonság kedvéért, de próbáltam -20dB/DIN szinttel is) elkezdett annyira ingadozni, hogy gyakorlatilag nem volt értelme figyelni a dölésszög változás alatt bekövetkező amplitudó csökkenést. Összességében a tippemet én magam a BASF referencia felé tettem volna. Az ok az, hogy pár éve ahhoz teljesen új, bontatlan szalagként jutottam hozzá, amit nekem kellett kazettaházba tennem. (egy Maxell UR házba került) A TEAC kazetta (Philips szalag) használtan került hozzám. Ezen a szalagon (BASF) egy 60sec 10kHz rész van amit használni tudnék. Pár készüléken próbából állítottam is, viszont az egyik magnóval (Technics RS-BX707) fura dolgot produkált. Vagy a 10kHz amplitudója volt megfelelően magas, de tompa vagy alacsonyabb szintű, de kalibrált. Egyértelműen szalagvezetési gondja volt, de ami a legfurább, kizárólag ezzel a szalaggal. A TEAC beállító szalaggal (-20dB/DIN 315Hz, 3150Hz, 10kHz) jól be lehetett állítani, illetve egyéb szalagok lejátszása is problémamentes. Összesítve: - lehet, hogy elméletben a BASF lenne a megfelelő, de nem tudom ezzel beállítani mindegyik magnómat - végső soron annyira kicsi az eltérés a két szalag között, hogy inkább elméleti, mint gyakorlati a különbség - mivel saját rögzítésű felvételeket fogok használni, talán fontosabb a magnóim azonos azimuth beállítása, mint a referenciához történő ragaszkodás, ami jelen helyzetemben leginkább új szalag vásárlásával volna elérhető Így végül a TEAC szalag lett a befutó ![]() Köszönöm az ötleteket, segítséget. Talán egyszer benevezek egy referencia szalagra, de nem most. Az árából inkább megpróbálnék valahonnan szerezni egy CPU-t (M50941-354SP) a Sony TC-K620 magnómba, mert hibásan működik. Sorry, ez kicsit hosszúra sikerült. A hozzászólás módosítva: Júl 12, 2024
Én elindítottam olyan tartalmat, amit jól ismerek, a fej állító csavarját óvatosan tekertem, míg a legtisztábban nem szólt. Nem tudom, hogy te mennyire akarnád "profi" szintre beállítani, de nálam egy autórádiónál működött a primitív megoldásom ("DTK D90" kazettát használtam).
Köszönöm, de "profibban"szeretném, ahogy nevezed. Hiszen ez mára csak hobbi, akkor már legyen annyira jó, amennyire csak sikerül.
Például igen tanulságos volt számomra, hogy egy azimuth, sebesség, frekimenet, bias-kalibráció és kivezérlésjelző beállítás, szalagpálya tisztítás és mechanikai kenés után egy lerobbant Pio CT-777 mennyire jó lett, élettel teli és szép felvételt készít és játszik vissza. Leginkább referencia közeli beállítás a cél, de most megelégedtem azzal amit az eszközeim lehetővé tettek. Szkóppal nézve is rendben van a két csatorna egymáshoz viszonyítva 10kHz-en. Legközelebb akkor nézem át újra a gépeket, ha lesz új referencia szalagom. A hozzászólás módosítva: Júl 12, 2024
Az a baj, hogy papírtigrissel harcolsz. Bármit csinálsz, nem lesz jó. Nekem is TEAC kazettám van azimuth és szint állításhaz (IEC PRAGUE 1981) (MTT-255C), de hiába voltam boldog, hogy no ezzel aztán tökéletes lesz, sajnos gyakorlatilag nem találtam olyan gyári műsoros kazettát, aminek a fej beállítása olyan lett volna, mint a referencia kazettáé. ("gyári" alatt azt értem, hogy nem piaci másolt, hanem boltból való, legálisan másolt és vásárolt műsoros kazetta) Természetesen, az évek alatt saját magam által, ilyen-olyan magnókkal felvett anyagok hasonló szórást mutatnak. Szóval hiába lesz (lenne) egy szuperül beállított magnód, a legtöbb felvétel sz@rul szólna rajta.
Értem az álláspontodat, hasonlóan gondolkodunk a hobbiról, meg a tökéletesre törekvésről, de ez a "lehetetlen" kategória. Szerintem az új beállítókazetta sem hozná meg a várt eredményt, mert az azimuth beállításnál mindegy milyen régi a kazetta. A szint beállításnál lehet, hogy már vesztett a felvétel valamennyit a szintjéből, de most nem ez a probléma.
Személyes vélemény csak, nem szentírás, de saját tapasztalatból a "gyári műsoros" kazettát, mint minőségi hangforrást, pláne mint referenciát, el kell felejteni. Gyorsmásolással készültek, többnyire olcsó szalagra és tokozásba, sokszor piszkosul túlvezérelve, gyárilag "ledolbyzva" - sose a hifisek voltak a célközönség (azoknak akkoriban előbb az LP, később a CD volt a fő műsorforrás, és esetleg ezt átvették jobb szalagra is), hanem a széles közönség, sokszor olcsó hordozható gépekkel, autós magnókkal. Ha minőségi hangot akarsz kazettáról, magadnak kell felvenni márkás üres kazettára. Úgy azért egész jól csereszabatosak és jók lesznek már évek óta a felvételeim.
Azt már csak adalékként szoktam elmesélni, hogy anno, 2000 körül, amikor még nem feltétlen csak hobbi-jellegű használatban voltak kazettás magnók, szintén rosszabb tapasztalataim voltak a korabeli hazai műsoros kazettákkal. Sokáig a magnók hibájára gyanakodtunk, amiért egyik-másik idővel rendszeresen begyűrődött, hullámossá vált a szalag széle, nyávogni kezdett oldalvégen - aztán ahogy átszoktam a deckkel felvételre, ezek a hibák fura módon megszűntek.. A végletekig leegyszerűsített, olcsó műanyag ház, melegre vetemedő orsók megtették hatásukat, a "műsorosak" rövid idő után elkezdtek szorulni, miközben a korabeli olcsó Maxell UR-ek a mai napig jók. A rendszerváltás előtti éra Hungaroton/Pepita kazettái e szempontból sokkal jobbak, a tokozás és aránylag a szalag is minőségi, tartós, viszont ott is megesik, hogy a két oldal más-más azimuttal szól(na) a legjobban..Az egy teljesen más kérdés, hogy itthon anno a többség hitt abban, hogy a gyári műsoros az etalon - mert hát a hazai gépparknál, amit csak a vasfüggönyön innen is elérhető alkatrészkészlettel próbáltunk úgy-ahogy életben tartani, az átlagos állapotú készüléken a saját felvétel sem sikerült feltétlenül jobban, ill. a csereszabatosságuk ugyanúgy kérdőjeles volt. Ma, 20-25 évvel a gyártás leállása után is gyakorlatilag jobbak az esélyek egy decket gyári specifikációra visszahozni, mint akkoriban, amikor nem volt "N.O.S." meg utángyártott alkatrész a netről szinte bármihez, ami nem extrém ritkaság. A hozzászólás módosítva: Júl 15, 2024
No igen, ezt mondom én is. Szó sincs arról hogy bármelyik műsoros kazetta "etalon" legyen. Épp ellenkezőleg. Ezért fog rosszul szólni egy-egy régi felvétel, a "tökéletesen beállított" készüléken. Akkor meg miért is kellene pontosan beállítani a fejet merőlegesre?
Fel kell tenni a kérdést, hogy mi a cél? Ha csak annyi, hogy a tökéletességre törekvés okán valaki meg akarja határozni az ABSZOLUT merőleges felállást, akkor az gyakorlatilag lehetetlen. Pláne nem mérőkazettákkal, aminél kell, hogy legyen egy tűréshatár, hogy +/- hány fok eltéréssel merőleges fejjel lett felvéve a beállító kazetta referencia hanganyaga? Szóval elvileg és gyakorlatilag, az sem lehet pontosan merőleges felvétel. A gyári műsoros kazetták sokszorosító gépei is be lettek állítva valamihez. De vajon mihez? Aki beruházott ilyen másoló gépekre (vagy gyártója volt), az nyilván rászánta azt a fél órát, a lehető legtökéletesebb beállításra. Függetlenül attól, hogy csak autórádió-magnókba szánták a másolt kazettákat. Ennyi igényesség tutti, hogy volt bennük. De ők sem tudták mihez viszonyítsanak. Ha valakinek az a "dilije", hogy nagyon jó minőségű analóg felvételeket csináljon saját maga, saját magának, az nem egy kazettás magnót fog erre használni. De, ha még ezt megtetézi azzal, hogy márpedig a saját magának készített felvételeket kazettás magnóval készti, akkor meg nem mindegy, hogy áll a fej?
Ezért sokkal nagyob rend volt akkor az magnoiparban.
A gyárban bizony rendszeresen be voltak állitva a sokszorozo magnok, és a meröszalagokon ez a rész ( gyakran a többi is) olyan géppel volt rögzitve ami egyszerre mágnesezi a szalag egész szélességét, azaz a beállitando magnon egy jelet olvas a fej, és azt a maximumra vagy fázisba állitani sztereo fej esetén. Ami a kazettás magnok nagyobbik baja volt a fej állása a YZ sikban ( ha a szalag sikját XZ siknak vesszük). Erre gyakran beállitási lehetöség sem volt mindig, igy bizni kellett a gyártoban, hogy a fej beszerelése ezt a sikot betartja. A legkisebb hibának is elöbb utobb az lett a következménye, hogy a szalag fel vagy le vándorolt a fejen. Abban igazad van, ha csak egy magnoja van az illetönek, akkor majdnem mindegy milyen a fej azimutja, de azért illik odafigyelni ilyesmire, mert azért fej meg a magno sem örök életü igy elöbb utobb komoly gondba kerül, mert akkor már véglegesen nincs mihez beállitani a rendszert. Nem kellene neked itt a fokokat emlegetni, mert valoban nem fokokban mérik. A beállito kazetta fö jellemzöje a szélessávu felvétel azaz a kazetta megforditva is ugyanugy viselkedik. Ez garantálja fej pontos beállitását s nem a fok vagy mi. A hozzászólás módosítva: Júl 15, 2024
Hát azért tul sok gyorsmásolo mifelénk nem volt, sokkal inkább voltak másolok, ahol akár 100 mezei magno ( rendszerint egyforma) volt, igy egyszerre tudtak 100 kazettát másolni. Ez olcsobb volt mint a gyorsmásolo, nem is beszélve az igazi profi másolo rendszerröl, ahol egyszerre játszották fel a szalag mindkét oldalát, majd utánna töltötték a szalagot a kazettába. S miután a magnok egyformák voltak és elvben egyszerre koptak el, nem igen volt igény az utánállitásra, illetve, ha már arra lett igény, olcsobb volt uj magnot szerezni, mint egy beteget piszkálni.
Idézet: „A végletekig leegyszerűsített, olcsó műanyag ház, melegre vetemedő orsók megtették hatásukat, a "műsorosak" rövid idő után elkezdtek szorulni, miközben a korabeli olcsó Maxell UR-ek a mai napig jók. A rendszerváltás előtti éra Hungaroton/Pepita kazettái e szempontból sokkal jobbak, a tokozás és aránylag a szalag is minőségi, tartós, viszont ott is megesik, hogy a két oldal más-más azimuttal szól(na) a legjobban..” 1. Nagyon sok műsoros kazettatestből hiányzik a 2 darab forgó terelőgörgő, helyette egy műanyag rúd van ![]() 2. A szabványos, felvételrekre gyártott kazettatok két félből van összecsavarozva, ezek nagyon nem adnak jó azimuth-ot. A műanyagból készült két félben lévő szalagterelők A és B oldali síkjai nem esnek egy vonalba, így a szalag a tok miatt is félremegy. Jobb gyártóknál a drágább tipusok már precizebb, komolyabb tokot/terelőket kaptak (TDK, Maxell, Sony), azok használhatók voltak igényesebb felvételre is. A Luxman gyártott olyan kazettát, ahol excenteres csavarokkal állitható volt az oldalankénti azimuth. ![]() TJ.
Nemcsak az szokott hiányozni a kazettákbol hanem a surolodást csökkentö foliák a szalag meg a kazettaház között.
A másik gond volt elsösorban az europai meg a távolkeleti kazetták között, az utobbiak háta egy matt csuszásgátlo réteggel volt ellátva amit az europai gyárak simán kihagytak (BASF, AGFA stb). Ez föleg a dual capstanos gépeken okozott problémát, meg sok automagnoban. Az utobbiban a kazetták elsö 5-10 perce szokott tönkre menni. Azokban a rázkodások miatt feszesebben probálták tartani a szalagot ( fékezve a bal spulnit) amire a matt réteget mellözö szalagok megnyulással reagáltak.
Idézet: Eddig olyan kazettát még nem láttam, amiből hiányzott volna a fólia. Ugyanis az többek között azért is felelős, hogy ne szabaduljanak le a menetek az orsókról. Találkoztam már olyan selejt kazettával, amiből hiányzott az egyik fólia és szépen be is ette a szalagot a hély és az egyik orsó közé! „Nemcsak az szokott hiányozni a kazettákbol hanem a surolodást csökkentö foliák a szalag meg a kazettaház között.”
Pedig elég sok volt. Az egyik sokszorozoban elöfordult, hogy egy teherautonyi ilyen “olcso” kazettát vett a fönök aztán jöttek a bajok - már a sokszorozoban. És akkor szedtük szét a kazettát és láttuk mi is hiányzik belöle. Jo nagy balhé lett akkor belöle, mert még nem lehetett visszaküldeni sem ( vámok, obstrukciot stb. ezt alig tették lehetövé, a hivatalos ut meg évekig tartott.
Fentebb említettem, hogy nincsen műsoros kazettám. (illetve van 1-2 darab, de azok olyan állapotúak, hogy a kidobásukon gondolkodom)
Csak egy futó gondolat volt, az arra történő beállítás. Amúgy azt is csak fülre tudnám, ami eleve nem pontos. A kazettáimon meglévő, felvett anyagok sem sajátok, a használt kazetták így kerültek hozzám. Ezeket majd saját felvételre felhasználom. Mindez annyiban érdekes, hogy semmi nem köt 1-1 azimuth beállításhoz. Éppen ezért szeretném egy referencia álláshoz közeli értékre állítani és aztán úgy használni mindegyik magnómat. Így 1-1 készülékem között is megfelelő lesz az átjárás. Két srácról tudok, aki készít megfelelő referencia szalagot még. Az egyik Maxell szalagra csinálja egy Revox B215-re fulltrack fejjel. A másik BASF Reference szalagra, Otari-val, szintén fulltrack fejjel. Ezek elméletileg lézerrel merőlegesre állított fejjel készülnek és nagy pontos szintezéssel. Szóval szerintem igen pontos szalagok lehetnek ezek azért. Alapvetően jó is lenne nekem, de most nem költenék erre annyit, amennyit kérnek. Így jelenleg az egyetlen szalagom a TEAC, amit használni tudok referenciaként. A BASF valamiért csúszik az egyik magnó capstan-on. (Massawa tag fenti leírása alapján, simán lehet, hogy akkor erről is hiányzik a megfelelő réteg és ezért) A vicc az, hogy új, puha, gyári görgője van annak a magnónak, amiben csúszik, amit alig használtam még. Ismétlem az előző hozzászólásom részletét: Idézet: „"Így végül a TEAC szalag lett a befutó"” Erre állítottam be mindent, most egész tűrhető a helyzet. Más: Van egy nagyon problémás magnóm. Sony TC-K620. Úgy fest, hogy a benne lévő CPU megadta magát. Bizonyos részei működnek, de hozzám már úgy került, hogy valaki diódával "hekkelte" a LevelMeter lábakat. Gondolom nem jött rá, hogy az 5V ágat az IR szenzor vágta haza és ezért volt "katyvasz" a kijelzőn. Eltávolítva az IR-t helyreállt az a tápkör is. Ami viszont probléma, hogy nem működik az ajtónyitás és a lejátszásnál a felcsévélés. A reel-motor nem indul be ilyenkor. Viszont beindul pörgetéskor. Az M50941-354SP cpu a 14-15 lábakon nem ad ki ilyenkor 5V ref. feszültséget valamiért. Viszont kiad pörgetéskor. Manuálisan ráadva a feszültséget a megfelelő lábra például nyitja/zárja az ajtót. Rossz lehet a cpu? Neten nézelődve ugyanehez a készülékhez néha a M50941-483SP cpu-t írják. Ezek között mi a különbség? Bármelyik jó lehet hozzá? A hozzászólás módosítva: Júl 17, 2024
Elöször azt kellene tisztázni, hogy teljesül-e minden feltétel ahhoz, hogy müködjön az ajto meg a csévélés. Sajnos szervizkönyv nélkül ez nehéz lesz. Ott szokott lenni egy táblázat, mikor melyik lábon milyen szintnek kell lennie ilyenkor. Ha már valaki belekotorászott még nehezebb lesz. A CPU ugy ritkán szokott elromlani, hogy csak egy része megy. Az még elöfordulhat, hogy valami,valaki kinyirta a kimeneti tranyot, föleg ugy, ahogy te is büvészkedtél, hogy a lábra vezetett 5 V kinyitja az ajtot. Ami rendben van, de egyben megölheti a proci kimenetét.
Ha viszont a láb él, akkor inkább a bemeneteken kell keresni a hibát.
A mikrokontroller cserével az a nehézség itt, hogy a benne levő programnak is egyeznie kell, amit általában eleve rátöltenek a gyártás után. Lehet, hogy a kötőjel utáni rész pont erre vonatkozik. És még ha ki is derítenéd, hogyan, mivel kell felprogramozni...
Mivel az eszköz 30 éves alsó hangon, a gyárnak sincs meg már a forráskód valószínűleg, de ha megvan, akkor is valahol learchiválva, amit nem fognak előszedni és odaadni csak úgy szívességből. Vagy pontosan egyező rendelési számú procit sikerül találni, vagy donor panelt. Utóbbi szerintem esélyesebb. Viszont olyan MCU hiba nincs, hogy néha ki tud adni egy lábon 5V-ot, néha meg nem. A kimeneti fokozat vagy fixen meghalt, vagy ép - ha bizonyos állapotban ki tud adni magas szintet, akkor nem azzal van a hiba. A hozzászólás módosítva: Júl 17, 2024
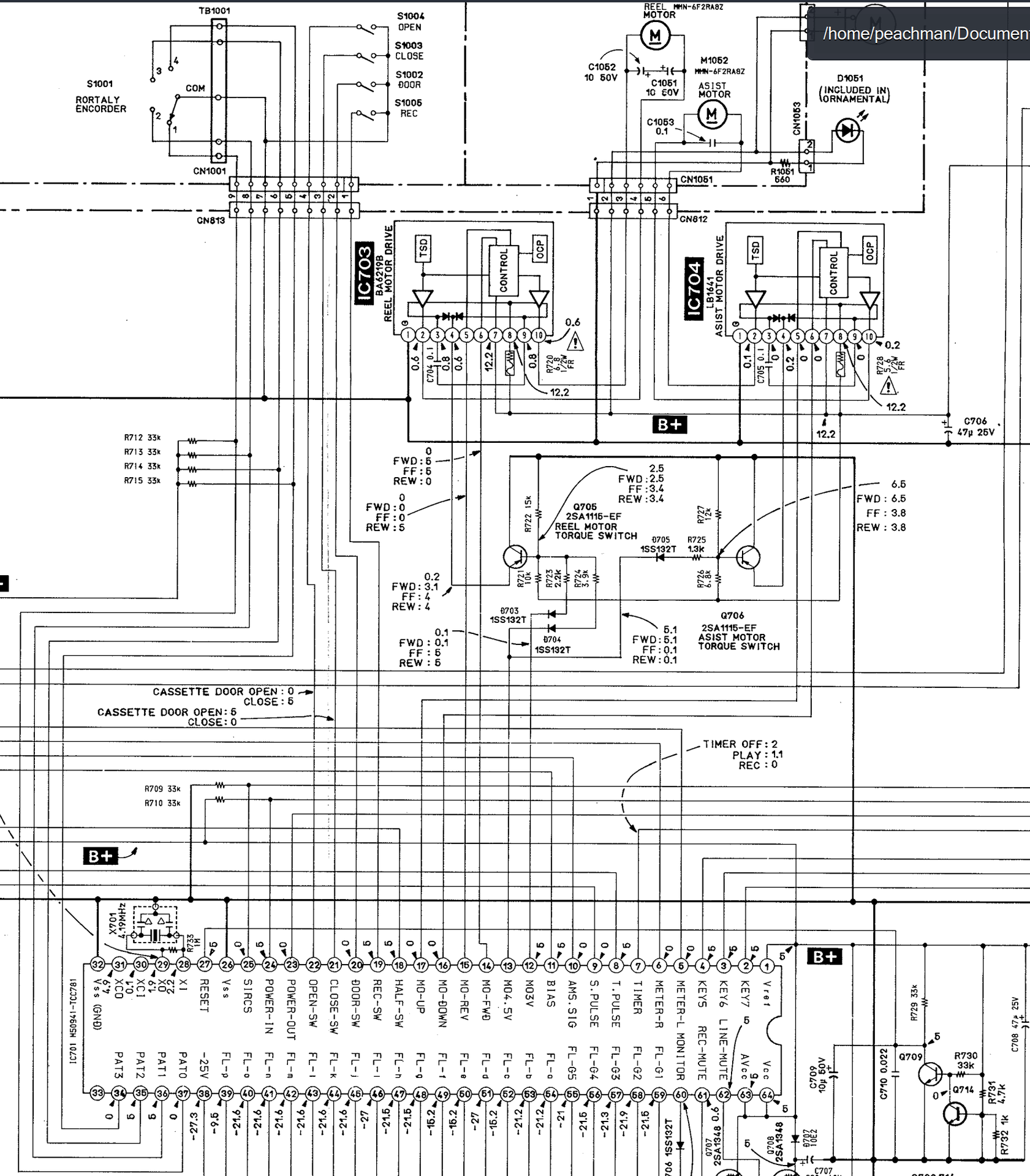
Idézet: „... a lábra vezetett 5 V kinyitja az ajtot” Pontosan azért, hogy letesztelhessem, nem esetleg a motorvezérlő (IC703) bemenete húzza le valamilyen helyzetben a cpu 14, 15 lábát, úgy vizsgáltam, hogy ezekről a lábakról elszívtam a forraszanyagot, nem volt a cpu a motorvezérlővel összekötve. A motorvezérlő bemenetére adtam az 5V-ot és úgy működött. Tehát egyértelmű, hogy a cpu nem adja ki a megfelelő referencia feszültséget. A cpu bemenete rendben van, mert érzékeli a play és ajtónyitás funkciókat, ezeket a kijelzőn jelzi is. Illetve a cpu az assist-motor-t is jól kezeli (pins 16, 17), a megfelelő pozícióba forgatja a mechanikát és megemeli a fejet is. Tehát az a része rendben van. Nekem is kissé fura, hogy mindeközben a pörgetés jól működik. Tehát fizikailag a cpu kimenete működőképes és a reel-motor is működik. Elképzelhetőnek tartom, hogy a firmware sérült meg a cpu-ban. Bárhogy is legyen, gyakorlatilag így "nem használható" kategória lett. Ezért is érdeklődtem, hogy esetleg a két verzió (-354SP, -483SP) között mi a különbség? Maga a firmware? Esetleg az órajel? Régebben a HQ a 483SP-t árulta ehhez a magnóhoz: Bővebben: Link Tomi94: Nekem is van egy olyan tippem, hogy a kötőjel utáni rész lehet a firmware kód. Nem tudom mi lesz végül a megoldás, de lehet valóban egy donor lenne a megoldás. Egyelőre szerintem foglalatosra megcsinálom a cpu-t aztán próbálok szerezni valami csere megoldást. Amúgy egy másik elborult megoldás, hogy a motorvezérlést mikrokontrollerrel helyettesíteni. szerintem technikailag kivitelezhető lenne, mert feszültség értékeket leolvasva a cpu megfelelő lábairól lehet tudni éppen milyen "funkcióban" van. Van itthon egy halom stm32, azokkal menne is illesztés (3.3V-5V) után. De ez már inkább csak szórakozás, mint magnójavítás lenne A hozzászólás módosítva: Júl 17, 2024
Valami nem stimmel. Az ajtonyitogatást a 20,21, meg a 22 láb végzi, a 14 meg a 15 a két csévélö motort kezeli. A 16, 17 a fejhidat mozgatja. Lehet, hogy azon van valamilyen kontaktus vagy szenzor, ami jelzi a fejhid állapotát és annak a függvénye az ajtonyitás.
Ha követni tudom a mondokádat, akkor az ajtonyitás kijelzése megjelenik a displayen, az ajtonyitogato motor ezek szerint nem kap jelet. Nézd meg a 21 , 22 lábakat ott ellenkezö feszültségeknek kell lenni nyilt meg zárt állapotban. Valoszinü, hogy azokat valamilyen kontaktustol kapja. Most hogyan nyitod ki a kazetta ajtot? A hozzászólás módosítva: Júl 17, 2024
Nem-nem, félreérted.
A pin 21, 22 a kazettaajtó mechanikájában 1-1 végállás mikrokapcsoló, amiket bezárt vagy kinyitott állapotában kapcsol. Ebből tudja, hogy éppen nyitva vagy zárva az ajtó. A pin 20 (door sw) pedig szintén egy mikrokapcsoló, ami akkor érdekes, ha nyitva van a kazettaajtó, de kézzel kezded becsukni. Ekkor azon érzékel és a motor becsukja. A reel-motor végzi a kazettaajtó nyitást/zárást is. Annyi történik, hogy ilyenkor az assist-motor a neki megfelelő állásba fordít egy tárcsát, aminek az aktuális állapotát egy a tengelyén lévő encoder érzékeli. Ennek 4 állása van és a cpu 34, 35, 36, 37 megfelelő lábain jelenik meg. Mechanikailag annyi történik ajtónyitáskor, hogy az assist motor a mechanikát úgy állítja, reel-motor az orsók helyett a kazettaajtó mechanikának ad fogaskerekes hajtást és attól függően, hogy melyik irányba teker a reel-motor (fwd/rew), zárja vagy nyitja az ajtót, amit az előbb említett végálláskapcsolók jeleznek. Szóval, ajtónyitáskor rendben átkapcsolja a tárcsát az assist-motor megfelelő állásba, a kijelzőn megjelenik az "Open" felirat. Viszont nem indul be a reel-motor. Ennek a vezérlőjének adtam ilyenkor 5V jelet, amire beindult és kinyitotta az ajtót. Végállásban eltűnt az "Open" felirat a kijelzőről, tehát érzekelte a teljesen kinyitott állapotot is. Az asist-motor is visszaengedi a tárcsát "üresbe" és így elveszi a reel-motor fogaskerekes áttételt a kazettajtó mechanikától. Gondolom itt kellene lekapcsolnia az 5V jelet (amit most manuálisan adtam neki) és akkor ezzel leállna a reel-motor is. Ami ugye be sem kapcsol most, mert nem ad kezdetben sem 5V jelet. Szóval, valahogy így.
Meg kellene nézni azokat a mikrokapcsolokat, mert valoszinü a Door SW meg a Door Open switch valmilyen viszonyban van egymással.
Ellenőriztem őket újra, szerintem úgy működnek, ahogy kell és ahogyan a szervizkönyv jelzi. (14. oldal)
A 20, 21, 22 (door-sw, close-sw, open-sw) lábakon akkor esik le a feszültség, amikor a neki megfelelő mikrokapcsoló kapcsol. Nyitott kazettaajtóval a 22 lábon esik, ami az open-sw. Zárt kazettaajtóval a 21 lábon esik, ami a close-sw. Nyitott kazettaajtóval, amikor félig kézzel bezárom az ajtót, akkor a 20 lábon esik, ami a door-sw. De amúgy, ha ez nem lenne rendben, akkor nem engedné play/ff/rew funkciókba kapcsolni. Én azt mondanám, minden érzékelő rendben van. Például lejátszás módba rakva pár másodperc után vissza leengedi a fejet, mert nem megy a felcsévélő orsó. Látszik a szalagtípus is és csak nem törlésvédett szalagnál engedi rec módba kapcsolni. Update: Kozben egy dolog beugrott... Ugye az ajtonyitas/zaras es a lejatszas is velhetoen lassabb motorfordulat mellett mukodne, mint a porgetes. A porgetes megy is, de a lassabb fordulatu dolgok nem. Teny hogy a cpu megfelelo labain nem jelenik meg az 5V, de mintha lenne valami 4.5V es 3V resz is az abrakon, de azon nem sikerul kiigazodnom, hogy mikent mukodik. A hozzászólás módosítva: Júl 17, 2024
Több dolgot nem látok ( nem ismerem a konkrét magnot). A rajzon csak 1 reel motor van. Ahhor kell még valami, higy a kezettát mindkét irányba tudja csévélni, csak az irányváltás nem elég. Vagy 2 ilyen moror van, vagy valamilyen mechanikus megoldás, ahhoz is kell valamilyen motor, ha az Assist motor csak a fejhidat mozgatja az nem elég.
Ráadásul nem látom pontosan, honnan tudja, hogy a kazetta ajtot kell mozgatnia. Ha a reel motor állandoan forog ( hol van a capstan motor? ) akkor a két tranyobol a bal oldalinak érzékelnie kell, hogy a motoron megnövekedett a terhelés és lehet, hogy annak kellene elinditania a Reel motort. ( torque szintek). Érdekes modon sehol nincs feltüntetve az az állapot amikor az ajtot kellene mozgatnia. Szerintem a proci rendben lesz, itt kellene még mérecsgélned, meg probáld kideriteni, mi oldja meg a csevélés irányváltását, mert azt 1 motorral mechanika nélkül nem igen lehet kivitelezni. A rajzon csak az elektromos irányváltás világos. |
Bejelentkezés
Hirdetés |






és szkópom sem volt.)









