Fórum témák
» Több friss téma |
Fórum » Skoda Octavia elektromos probléma
Sziasztok !
Renault Thalia 1,4 16v. Időnként nem akar indulni. Önindító megy, üzemanyagszivattyút is hallani a gyújtás ráadáskor. Korábban néztem a gyújtást veszi le. Meg tudná valaki mondani, hogy az indításgátló hol avatkozik be a motorba. (esetleg rajz) Az indításgátló reléje kattan. Van úgy, hogy egy kis idő múlva simán beindul. Előre is köszi.
Amit hallasz (kattanás) az az AC reléje. A fordulatszám jeladó (holtponti jeladó) váltó és a motor illesztésnél felűl szokott ilyen tüneteket produkálni. Kisebb gond, ha csak a csatlakozó, nagyobb (anyagilag) ha a jeladó hiba miatt rakoncátlankodik. Nézzed meg a csatlakozó véget, abban a csúszóvégeket, kicsit nyomkodd össze (óvatosan) tisztítsd ki, ls dugd vissza. Ha nem változik semmi, akkor a jeladó gyengélkedik. Azért lényeges az is, hogy melegen, vay hidegen jön elő az indítási probléma. A Renault - k elég macerás típusok elektromosan.
Jól elküldted 2009 -s utolsó hozzászólású fórumba.
Bocsi, nem figyeltem a dátumot, csak gondoltam, ott a "Rönósok" jobban tudnak segíteni.
Köszi mindenkinek a központizáras ötleteket...A hétvégén lehet megpróbálom orvosolni! Köszi
Ok.
Várjuk beszámolódat.
Nekem már kb. 2 hónapja megy ezzel a megoldással, az Octaviam( 1,6l AEE) ,mert sajna egyenlőre nem találtam más megoldást. Cseréltem már hőfokjeladót (mert ilyen hibát írt egyedül a VAG-COM), többször kipucoltam a fojtószelepet, a MAF szenzort, és
az alapjárati motort is megnéztem. Itt mondjuk érdekes volt, hogy a két kis rézlemezecske, (aminek nem tudom pontosan mi a szerepe) nem fedte egymást, hanem el volt csúszva.
Sziasztok !
Skoda Octavia II.2005-ös autóm van,50000km van benne,motorkódja:BCA. 2010. július 9.-én megjelent egy hibaüzenet a kijelzőn, miszerint motorelektronikai meghibásodás van. Elmentünk egy autóteszelőhöz, aki a fedélzeti számítógépre csatlakozva, megállapította, hogy a lambdaszonda fűtő áramköre meghibásodott. Elmondta, hogy nem feltétlenül lambdaszonda hibáról van szó, lehet érintkezési hiba is. Ezután kiütötte a hibakódot. Másnap vidékre mentünk, kb. 100km megtétele után, újból megjelent a hibakód. Ma 2010.július 12.én, felkerestük, a szerelőt, de sajnos egész héten szabadságon van. Ezután elmentünk néhány szerelőhöz, mindegyikük azzal kezdte, hogy "lambdaszondacsere". Én nem vagyok benne biztos, hogy az kell, mert a motor teljesítményén, fogyasztásán, semmilyen hibát nem vettem észre.(régebben olvastam is,hogy nem biztos a csere,lehet csak érintkezési hiba)Az utoljára felkeresett autóvillamossági szerelő is lambdaszonda cserét javasolt. Felhívtam a Skoda boltot,s kérdezték, első vagy hátsó lambdaszonda kell? Felhívtam a szerelőt, aki azt mondta, hogy az Octaviaban csak egy van a katalizátor előtt. Én isa utána néztem, kettő van. Ezek után nem tudom mit tegyek, mert félek, hogy "le akarnak húzni". MInden szerelő úgy vállalná a cserét, hogy otthagyom az autót, tehát nem tudom, hogy valóban kicserélték-e vagy nem?!Tanácsot kérek, hogy mit tegyek. Köszönettel: Újpesti
Szia!
Én tudok neked segíteni! EU4-től már két szonda van mindenhol. Az első az a keverékképzéshez kell, a másik a katalizátort ellenőrzi. Nekik 300 C-fok kell a működéshez. A kipufogó ezt simán eléri, de csak sokára. A villamos fűtés addig kell, amíg hideg a motor, tehát ez neked max indítási problémákat okozhat. Természetesen lehet a hiba a vezetékekben, és egyébb helyeken is, viszont ha a fűtőszál ment ki a szondában, akkor az csere, bár ez 50.000 Km-nél nem jellemző, hogy tönkremenjen. Vw szervizes vagyok, van diagnosztikám is, és egy egész nap elég hogy kiderítsük. Viszont vidéki vagyok, és csak hétvégén érek rá. Sima hibakód törléssel nem fog megjavulni. Nézd meg a biztiket, és a vezetékeket, hogy nincsenek elszakadva, stb. Ha nem látsz semmi extrát, akkor ki kell mérni a kört, és a szondát.
Vegyük szépen sorjába az egész esetet. Ez a gyártmány nem összetévesztendő a francia autókkal azok jellegzetes hibáival (érintkezési hiba stb...). Mivel kitörölték a hibát és nem jelentkezett újból rövid időn belűl, feltételezhető, hogy csak időszakos problémáról van szó (intermitten). Megtettél 100km-t és úgy villant fel a hibaüzenet amikor a fűtésszálnak már semmi köze a műlödéshez. Ha csak városi forgalomban használod az autót amely használat a lamdaszondák és a katalizátorol legnagyobb ellensége, néha ki kell "égetni'a rendszert,hogy az említett alkatrészek le ill kitisztuljanak.
Sziasztok!
Úgynéz ki megoldódott a világítás-pulzálás, ill fesz-ingadozás-hibakód beírás az autómon (BKY). Az akksi negatív testkábele az akkusaruba bele van gyárilag préselve. Na, itt volt a kontakthiba, gondolom amikor nem érintkezett jól, az akksi nem tudta megfelelően ellátni a puffer szerepét. Kicseréltem a sarut, az már csavaros, azóta nem jelentkezett a hiba, remélem nem is fog. Szerencsére, semelyik vezérlőegység nem károsodott. És egyúttal megköszönném a Duna Autó Zrt-nek, hogy feleslegesen kifizethettem egy fesz-szabályzót+cserét, plusz hogy ők ezt nem találták meg. Ha valakinek is hasonló hibajelensége van, érdemes ezzel az ellenőrzéssel kezdeni a szerviz helyett. Üdv: Zoli
Sajnos ezek a préselt saruk ilyenek. Nem csak skodán okoz ez problémát.
Sziasztok.
Most vagyok itt előszőr, de gondolom nem utoljára. Van egy Skoda Octáviám 1,6 SR 74 kw. AKL motorkódú, 2000-es évjárat SLX. A kocsival nagyon megvagyok elégedve, de sajnos 10 éves korára elég sok probléma van vele. Én nem igazán értek hozzá, de az a tapasztalatom , hogy sok szervíz is csak találgat. nem rég előjött a műszerfal meghibásodási probléma, melyre több helyen is azt mondták hogy motorvezérlő elektronikát kell cserélnem ami használtan, testvérek között is 40-50 000 Ft. - ba került volna és a hiba akkor sem múlt volna el. Még jó hogy itt olvastam, a műszerfal meghibásodásáról és igy megtudtam csináltatni. Most viszont más hiba van, ha tud valaki segíteni megköszönném. Indításkor sokszor elő fordúl hogy nehezen indúl, teljesen mindegy hogy hideg vagy meleg a motor. Van amikor nehezen indúl, és indítás után megemelkedik az alapjárat kb. 2000-ig utánna pedig hullámzik. Előfordult már hogy ilyenkor menet közben önmagától felment a fordulatmérő 4-5000-ig gáz pedál nyomás nélkül, olyan volt mintha tempomat lenne az autóban és belett volna valamire állítva. indításkor a magas alapjárati fordulat számot megtudom fogni és utána be is áll, úgy hogy beteszem egyesbe, rálépek a fékre és ovatosan engedem a kuplungot, ilyenkor van amikor be áll az alapjárat és működik normálisan. Mostanában fordult elő, hogy teljen mindegy volt hideg vagy meleg motor , alig akkart beindulni, indítani kellet vagy ötször , hatszor. Ezekhez még hozzá tartozik hogy indítás után olyan mintha nem menne minden henger de ez csak egy pár pillanat, és amikor beáll akkor egy gáz nyomás után olyan mint egy kémény nagyon füstől, de ez egy rövid idő után elmúlik. Itt a forumot olvasva a légtömegmérőre gyanakszom de nam vagyok benne biztos. Ha légtömegmérő baja van akkor azt lehet e tisztina, vagy cserélni kell. Bocs hogy ilyen sokat írtam , de hátha jobban tudtok segíteni több infó alapján. előre is köszönöm
Szia pompi
A régebbi hozzászólásokban láthatod, hasonló problémákkal küszködtem én is. Első körben a szervízt felejtsd el lehetőleg mert csak "lehúznak". 1. Szedd szét a pillangószelepet (az elektronikához ne nyúlj) és alaposan tisztítsd ki. Én féktisztító sprével csináltam. Alapos tisztítás, szemrevételezés után szereld vissza. 2. Ha a gyertyapipán rajta vannak a fémburkolatok, dobáld le nyugodtan. (egy fogóval megoldható) 3. Nézd alaposan végig a gyertyakábeleket és a gyertyákat tisztítsd meg. 3. Esetleg az üzemanyagszűrőt cseréld le. (gondolom mégaz eredeti van rajta, ergo egyébként is megérett a cserére. A tankoló nyílás alatti részen keresd, a kocsi alján. Kb 2500 ft) 4. Vákuumcsövek tömítettségét ellenőrizd. (Nekem be voltak repedezve, kicseréltem vastagfalú gumicsőre mert a gyári qva drága. 5. A pillangószelep alatti vákuumcsövet feltétlen ellenőrizd! Nekem ezek után megjavult, és a mai napig gond nélkül megy. (Octavia AEE) Remélem tudtam segíteni valamicskét. Szia jó munkát.
Szia Csibai.
Köszönöm gyors válaszod. A pillango szelepet a multkor kitakarítottam ugy ahogyan azt te is javasoltad. Takarítás után egy ideig magas volt az alapjárat ( kb. egy hónapig ) de utána beállt. Viszont hogy említetted a vákum csövet van egy sejtésem. A múltkor amikor nagy " szakértelemmel" néztem a motort működés közben, sziszegést halottam a gumicsőnél, ami a levegőszőrő vastag harmónika csövét és a motort köti össze. Lehet hogy ez a baj. De köszönöm a többi lehetséges hibára való figyelem felhívást is, ellenőrzöm azokat is , főleg az üzemanyag szűrőt, mert azt valószínű hogy én fogom cserélni elsőnek. Ha lezek után is bajom lesz akkor még zavarni foglak egy párszor. Mégegyszer nagyon köszi. Üdv pompi
Helló! Az a sziszegő cső a Kartergáz csöve, semmi köze a te problémádhoz. Ha vákum csövet cserélsz, feltételenül ugyan oylan belső átmérőjű és hosszú csövet rakj a helyére!! Én az alapjárati motor környékén keresném a hibát először. Üdv!
Sziasztok!
Kérdésem a következő lenne (octavia 1 1,6 AEE ) megnőt az olajfogyasztásom , erősebb gázadásnál látni is a kék füstöt ez kopott motort jelent vagy van valami más magyarázat is rá? Egyébként nem érzem gyengébnek a motort. 189000 km van benne családi autoként használom.Ötleteteiket előre is köszönöm . Tisztelettel : Taxis148
űdv .mindenkinek tudna segitteni valaki egy 2-es octaviá-rol lenne szo a visszapillanto tűkőrben az izzo cserét kellene megoldani... de mi a szétszrdési procedura? előre kőszőnőm nektek !!!
Érdemes a gyertyákat is cserélni, mivel a hirtelen füstölést okozhatja, ha nem szikrázik, mert a porcelán el van törve.
Elosztófedélt sem árt megnézni, meg a rotort. A hozzászólásokból "ez talán kimaradt".
Ha megnő az olajfogyasztás azt vagy a motorból kifolyó olajat látod mert valamelyik tömítés tönkrement, vagy ha megméred a CO-t akkor ott fog jelentkezni, mert akkor a hengerbe kerül és a motor megpróbálja elégetni.
Ha nem látsz olajfolyást és a kilóméter sem kevés elképzelhető a kopottság. Azt kéne figyelned, hogy ha állni hagyod az autót és utána indítod (pl bemész a postára és vársz kb 10 percet), akkor indulás után lő-e egy kis pamacsot. Ha igen akkor szelepszárszimering nagy százalékban, ha nem akkor a gyűrűk kopottak. Egy kompresszióvizsgálat is kimutathatja, mert a gyűrűk már nem tömítenek teljes mértékben, mint előtte, és az olajlehúzó gyűrű nem húzza le a "felesleges" olajat, amit a motor eléget. Ilyenkor a CO vizsgálón is lehet látni, mert nem azokat az éertékeket adja az autó, amit kell. Ha van rá lehetőség a VAG-COM elég sokmindent tud mutatni, de van más is ami jó, hogy élőadatokban nézelődj.
Üdvözlök minden kedves kollégát!
Írjátok le, hogy a pillangószelep pucolás milyen formában történik nálatok. Lehet, hogy a szakszerűtlenűl végzett tisztítással okozzátok magatoknak a problémát. Sokallom, a tisztítás utáni egy hónapig tartó magas alapjáratot. Az AKL motorkódú Octavian a hengefej olajleválasztó csöve (ami belemegy a szívócsőbe - amiről írtál) kiszokott szakadni a szívócsőből. Ez okozhat alapjárati problémát (fals levegő) de indításit nem. A légtömegmérő hibája esetén is beindul a motor csak gázadákor és alapjárton is durrogó hangot ad. Egy kiigazítás, ne keressél gyújtáselosztót, mert ebben a motorban nincs csak tarfó az oljszűrő (hűtőház) felett. Javaslat, amikor nem indúl kérjél valakitől segítséget, hogy indítózzon és Te pedig indítózás közben a légszűrőbe finoman permetezzél féktisztító sprayt. Ha erre elindúl a motor, akkor üzemanyag ellátási probléma van, ha erre sem akkor gyújtás.
Ritka eset, hogy a hengerfal sérűlt azaz kopott a motor. Előfordúlt már a pacienturámban 800 Skodából 1. Az is azért, mert gyárilag nem volt rendesen kiderékszögelve. Annál inkább típushiba a dugattyúgyűrűk beégnek a horonyba ergó beragadnak és nem tömítenek rendesen. Minimum gyűrűcsere és a Km függvényében a hengerfej ráncbaszedése is javasolt, ha nagyon füstöl és eszi az olajat.
Kedves Szamara.
Csak érdeklődök. Ha a motor nem kopik meg kb 200.000 km alatt, akkor miért kellett a friss motorba 50.000 km nél újragyűrűzni? Gyűrűzés után megszűnt az olajfogyasztás, érezhetően erősebb lett. Ja és a gyűrűk el voltak kopva. Ha rosszul lett volna a hajtókar, akkor csak az az egy hengernél ment volna tönkre, vagy a blokk főtengelyfúrása az meg megint kopást eredményezett volna, de a gyűrűzés után "tökéletes" lett. Másik: Nem néztem meg, hogy a motorhoz van-e gyújtáselosztó, de a leírás gyanút adott gyújtáskimaradásra, és nem elvetendő ilyenkor ezt is számbavenni. Ha meg az a jófajta trafó van, ami gyertyák fölött van imbuszcsavaral rögzítve, akkor annak ne örüljön a gazdi. Én már cseréltem kb 3 autóban is (háromból hármat). Nem olcsó, és nem javítható, csak cserével. U.i.: a sérülés nem egyenlő a kopással, bár a sérüléstől lehet kopás. (remélem érted mire gondolok)
Szia!
Van az a fajta hiba amit úgy ismerünk típushiba. A Skoda Octaviak esetében, mivel 'alulméretezett' - vékony dugattyúgyűrűk vannak beépítve,azok beégnek a horonyba - beragadnak és ezáltal nem tömítenek csak kopnak. A másik hiba okozója a gyűrű szempontjából emberi hibára vezethető. Ha a vezető állandóan a kuplungon tartja a lábát, vagy folyamatosan városi forgalomban használt autó (taxi) állandó erőhatást fejt ki a főtengely támcsapágyaira (ami a főtengely axiális mozgását hézagolja) így azok megkopnak és a főtengely oldalirányba igen komolyan mozog, ezáltal a hajtókarokat a dugattyúkkal egyirányba 'feltolja' a hengerfalra. Természetesen ebben az esetben is elöbb a dugattyúgyűrűk kopnak, azonban ha ezt nem veszik időben észre rövid időn belűl a hengerfal sérűl, kiöblösödik és a motorblokk azon része is megkopik, ahol a támcsapágy felfekszik. Ez a jelenség így teljesen hasonlatos a rosszúl derékszögelt motor tulajdonságaival. Természetesen értem mire gondoltál, azonban nem szabad elfelejteni, hogy a hengerfal csak az emberi szemmel nézve síma felület. A sérülés nem csak arra értendő ami szemmel látható mély karc a hengerfalon, hanem az is aminek okozója egy egy hibás alkatrész esetünkben a dugattyúgyűrű. Csak az emberi köznyelv egyszerűsítí kopásnak amit egyébként lehetne úgy is nevezni, hogy karistolás. Rövidre zárva én is kopásnak mondom "tévesen".
Akkor mindketten egyről beszélünk.
Az olaj ott marad a hengerfalon és elégeti a motor ERGO fogyasztja az olajat. E szerint nem jártam messze az igazságtól.
Sziasztok Fórumtársak!
Eőször is köszönöm Samarának és Sufni-tuningnak a korrekt magyarázatot sokat segítenek az octisokon szerintem mondhatom nyugodtan mások nevében is. Jövőhét folyamán szétszedjük a gépet reméljük "olcsón" meguszom Tisztelettel : Taxis 148
Sziasztok.
Köszönöm mindenkinek a segítséget. Volna még egy kérdésem. Az octáviám mostanában elég sok olajat eszik. Durván ezer km. mentem olajcsere után és már kb. 7 decit utána kellet pótólnom. A szlepszár szimeringeket kicseréltük, de ez nem oldott meg semmit. Elvoltak használódva de az olaj fogyasztás nem állt meg. A szerelő srác azt mondta, nem biztos hogy csak gyűrűt kell cserélni mert lehet hogy hengert is kell fúratni. Mert hiába teszünk bele új gyűrűt lehet rosszabbat teszünk mivel a henger is megvan kopva, és még olyan tömítetsége sem lessz mint most. Azt szeretném kérdezni tőletek, mennyi annak az esélye hogy elegendő lesz a gyűrű csere. Mennyibe kerűl, és mennyi ideig tart egy ilyen munka. Ez azért érdekel mert munkához kell az autó, és szinte minden nap. AKL motorkódú, és 255000 km. van benne. Előre is köszi a válaszokat. Üdv mindenkinek
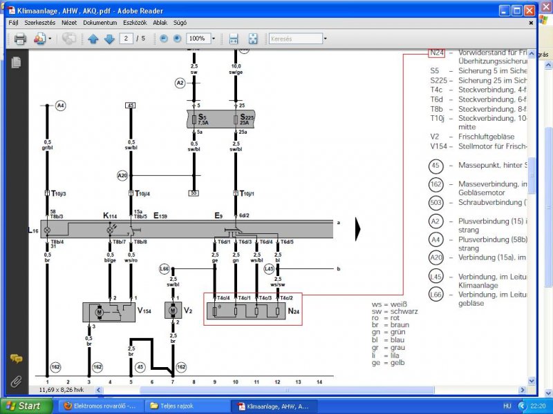
Sziasztok!
Volna egy kis klíma gondom. A múltkor már említettem, hogy nem működi, mert az olajleválasztótól jövő flexibis cső kilyukadt és javításra vár(-t). Megcsinálták. Csak az a gond, hogy az előző szétszereléskor, mikor is a műszerfalat is ki kellett venni az előző hiba megoldásához, a stekkereket valószínű nem jól rakták vissza a klíma vezérlő gombjaira, mert még a belső keringetés sem ment a próba alkalmával. A klíma szerelők feltalálták magukat és ideiglenesen átkötöttek két pontot a mellékelt rajzon (az egyik az kőnyomatos a másit progis) lévő túlfűtési ellenállásokon, ami tartalmazza a beltéri hőfokérzékelőt is. A kérdésem az volna, hogy a kesztyűtartó alatt lévő egységről volna-e szó és mit tartalmaz a panel, és ha tudja valaki, hogy milyen rendelési számon lehet ezt felkutatni a neten? (..sajnos nem én vittem el a szervizbe, mert nem értem rá, és "nap" formájú torx kulcsom sincs 6-s, hogy megnéztem volna a panelocskát mit is tartalmaz.)
Sajnos, lehet igaza, mivel a hengerek nem körkörösen kopnak. Az, hogy mennyi idő, az a helytől, s a szerelő kialakult kapcsolatrendszerétől függ. Legideálisabb esetben 2-3 nap, ahol rosszak a viszonyok, ott lényegesen több is lehet. Az árat pedig a szerelőtől kellene kérdezned, aki csinálni fogja. Viszont, ha már a generál mellett döntesz, a csapágysort is ki kellene cseréltetni. Utána megnő az erő, s a régi, kopott csapágyak nem húzzák már sokáig. Így egy munkadíjal lesz egy tuti motorod, és nem pár hét-hónap múlva kifizeted megint szinte ugyanazt.
|
Bejelentkezés
Hirdetés |






