Fórum témák
» Több friss téma |
Fórum » Skoda Octavia elektromos probléma
Szia!
köszönöm szépen a segětséget, és szerinted miért nem mérhet az óra.
Nos levettük a kormány-szervó biztosítóját, de a jelenség ugyanaz. (13,7 és 14,3V között mozog alapjáraton.
Ezek szerint nem a szervó alaphelyzet hibája........ Megpróbálok holnap egy tároló szkóppal mérni az akkumulátoron még egyszer, hátha kiderül még valami. Továbbá megmértem egy tárolós multiméterrel indításkor a fesz. beesik 9,7V-ra - lehet az akku magas belső ellenállása/ öregedése is? ( 4 éves gyári 44Ah)
Szia! A "zolika60" jóra gondolt csak rosszat írt, mert a gyújtáselosztóban van a jeladó s nem a trafóról jön a fordulat jel. Ez a leírás tisztán csak ez a motorvezérlő és az ahhoz csatlakozó érzékelők és jeladók kerülnek bemutatásra (5. oldal).
...persze "hibbantpasinak" teljesen igaza van, mert a műszerfalnak az ECM adja a jelet egy külön szálon. A baloldali csatlakozót kellene megvizslatni a műszer egység hátulján, kontakthibát keresve.
A feltett kérdésre a választ nem tudom, de ha a rajz segít azt mellékelem.
Nagyon szépen köszönöm a segítséged!
Ez már nagy segítség,meg is nézem a csatikat és a vezetéket.
Sziasztok!
Most regisztráltam a fórumra és szeretném a segítségeteket kérni. A probléma tárgya:'99-es Octavia 1.6 SLX Combi AKL-es motorkóddal. A napokban egyszer csak a műszerfalon a műszerek meggondolták magukat és nem mutattak semmit. ![]() (ford.szám mérő,sebességmérő,üzemanyag és hőfokmérő) Az összes többi visszajelző,kijelző stb.működik rendesen. Az érdekes az,hogy induláskor pár pillanatig mindig működnek aztán "standby"üzemmód. ![]() Nem, tudtam még végigolvasni a fórumot ,mert elég hosszadalmas lenne de amennyiben nem nagy kérés és valaki találkozott már hasonló problémával az legyen szíves ossza meg velem,hogy mit kell tennem,hol keressem a hibát. Gondolom,hogy valami érintkezési hiba,mert különben nem működne semmikor a cucc.Feleslegesen meg nem szeretném szétbontani a műszerfalat. A segítséget előre is köszönöm! Üdv! Hari
Bővebben: Link
A lap utolsó hozzászólása. Szerintem érdemes megnézni. Elképzelhető neked is ez a problémád.
Nagyon szépen köszönöm a gyors választ és a segítséget.
Nagy valószínűséggel nálam is ez lesz a gond. Esetleg a műszerfal szétkapásához nincs valakinek valami segédlet? Még egyszer köszi!Az eredményről beszámolok majd. Üdv! Hari
Szia! Inkább ez a válasz lesz a megoldás a problémádra és a hozzátartozó többi kép is segíteni fog.
Ugyanaz a kettő, csak te pontosabb voltál.
Nem igazán nagy dolog, a keretre vigyázz a plexit elején mert könnyen eltörheted. A többi adja magát.
Sziasztok!
Hétvégén kiszedtem a vészvillogót a kocsiból, szétszedtem, amennyire lehetett, de nem látok rajta problémás alkatrészt. (hozzáteszem, a nyomtatott áramkör aljához nem fértem hozzá) Visszatettem, kontakt tisztítóval is megfújkáltam, de ugyanúgy rendellenes a működése. Le lehet valahogy tesztelni hogy jó-e? (gondoltam arra is, hogy nem vele van a hiba, hanem hibás jelet kap valahonnan...)
Szerintem inkább a kormánykapcsoló lehet hibás.
Sziasztok!
Abs-el vannak gondjaim egy seat toledo 99-s még a régi/kocka/ szerintem hasonló lehet mint a skoda ![]() Álló helyzetben az abs lámpa felvillan, pl amikor a pirosnál állok, ha leállítom az autót majd pár perc múlva beindítom gurulok vele 50 métert és kialszik, majd pár piros lámpa és kezdődik előröl . Laptopot rádugtam jobb hátsó jeladót írja, de volt hogy az abs szivattyút írta! esetleg valakinek valami ötlete???? köszönöm előre is!!!
Először a jeladót vizsgáld meg, az gyakrabban romlik el. Persze meghibásodhatott a szivattyú is nem új a jármű. Főleg ha sosem volt cserélve a fékolaj.
Szia megmértem a jeladókat 1114 ohm mindkét hátsó jeladó ellenállása elvileg az jó akkor, esetleg ha kicserélem a fékolajat megjavulhat, nem tudom mikor cserélték a fékolajat mert csak 2 hónapja vettem!
Igen, erre én is gondoltam, ezért is feltételeztem a másik eshetőséget, miszerint hibás jelet kap. (pl. az index kapcsolótól) Hogyan lehetne egyiket vagy másikat letesztelni, hogy szűkítsem a lehetőségeket?
Sziasztok,
Tom-ee problémájával megegyező jelenség nálam is fennáll, a kocsi a vásárlás óta ezt csinálja. Random elkezd kattogni és pár másodpercig intenzíven kattog...többször is egymás után. Hibát keresni nem volt időm és elektrotechnikai képzettségem sincs. Igazából már megbékültem vele, de ha könnyen javítható akkor érdekelne mi lehet a hiba. Ha valakinek van ötlete, azt szívesen venném én is! Előre is köszi!
Nem akarlak vakvágyányra vinni de elenőrizd az eddig leirtakon kivül a testelési pontokat. Az akku alatt szokott a kasztnihoz csatlakoztatva és az is okozhat ilyen problémát, ill maga az elektronika csatlakozási pont, Szivattyu vezetéke, legrosszabb esetben maga az elekronika belső csatlakozása a kerámia hordozora . /javitottam már ilyen hibával./ Szerintem a fékolaj probléma a szivattyu hibát nem befolyásolo tényező , inkább a fejszelepek müködését befolyásolja. A lényegen nem véltoztat eme hozzáfüzés.
Más ötletem nincs, mint kiszerelni és szemrevételezni.
Ma átnézem! köszönöm szépen a tipeket, ha maga az abs belsejében van a hiba akkor az csere vagy lehet javítani??
köszi üdv.
Szia! Ez a típus "B" jelzéssel a kárpitos, vonóhorog nélküli kocsikhoz való. Az "E" és "H" jelzésűek ugyanezzel a számsorral, a vonóhorgos típusokhoz valók. Ebből kifolyólag (vonóhorog), lehetne megnézni a csatlási ajzatot, nem-e szennyeződés van benne, vagy "sóvirág" a tél elmúltával.
Az egész kapcsoló szerkezet kb. 4000Ft nagyságrendben kapható. Talán meg lehetne vizsgálni az elakadás jelző rész is működés szempontjából, hogy hibátlanul működik-e.
Üdvözlet a fórumozó társaknak!
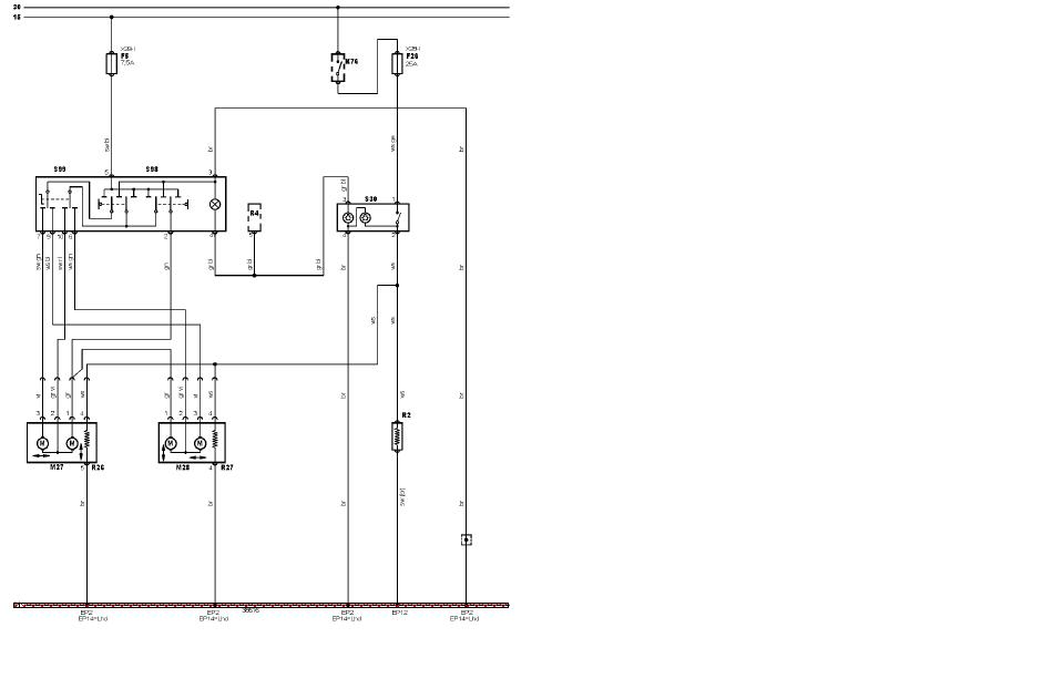
octavi aee motorkód, hol találom a hátsó ablakfűtés reléjét (ha van egyáltalán, mert a kapcsolójával hiába kapcsolom ki ugyanúgy fűt. (Lehet a műszerfal alatt valahol?) Most lehúzom a csatlakozót de ez nem megoldás. Válaszaitokat köszönöm.
Köszönöm szépen a választ!
Sajnos még csak alapszinten sem értek az elektrotechnikához, de ha adódik lehetőség, megnézetem hozzáértővel. Még tegnap utána olvastam angol nyelvű fórumokon is. Többen panaszkodtak a problémára és az index kormánykapcsoló volt az oka az esetek túlnyomó részében. Lehet próbálkozni egy tisztítással, de volt akinek csak a csere oldotta meg a dolgot. Nem akarok senkit sem félrevezetni, nekem ezt sikerült kihámoznom. Gondoltam, hátha segít valamennyire, hol kell a hibát esetleg keresni. Magam nem merek nekiesni és szétkapni a kocsit
Szia! Nincs relézve a rajzok szerint, csak a kapcsolója és a biztosítója hatástalanítja a működést. A 26 biztosítékról kap áramot.
Ahol szoktam nézni az alkatrészeket ott nem mutat, csak ablaktörlős kormánykapcsolót, de ha ITT rendeled meg és futár hozza ki a terméket még úgy is jó árban lehet megkapni.
Köszönöm szépen a gyors segítséget.
A kapcsolója működik rendesen, (tehát ha kiveszem és multiméterrel mérem, akkor kapcsol rendesen). Akkor mi a fenéért nem kapcsol ki? Érdekes. Minden esetre megnézem a biztosítéktól a vezetékezést. Még egyszer köszönöm.
Sziasztok!
Látom, kicsit felpörgött a téma. VIM kollégának köszönöm a rajzot, ez alapján már el lehet indulni, látszik, mi hova megy. A nagyobb gond az, hogy nem folyamatos a hibajelenség, így szétszedés és szemrevételezés után max. kontakt tisztítót tudok alkalmazni. A kérdésem az, hogy előfordulhat-e, hogy ez a hiba bekerül a fedélzeti számítógépbe, ahol esetleg hibakód formájában is megjelenik? |
Bejelentkezés
Hirdetés |












