Fórum témák
» Több friss téma |
Fórum » Autóelektronika
Témaindító: sufni-tunning, idő: Ápr 19, 2008
Témakörök:
Próbáld ki úgy betolni a kulcsot, hogy ne nyomd tövig. Maradjon néhány tized a zár és a kulcs válla között. Legtöbb esetben a váll kopik jobban, ezért beljebb engedi a kulcsot. Ha ez a gond az könnyen orvosolható.
Próbálgattam, de nem segít rajta, ha nem tolom be teljesen...
Akkor megpróbálok rendelni hozzá egy gyári, új kulcsot, ahogy Antikzsolt tanácsolta, remélem nem lesz drága, aztán bízom benne, hogy az megoldja a dolgot...
Ha nem immobiliser-es akkor elég egy kulcsmásoló kb. 1000ft. Első körben megfelelőnek látszik. Ha nem megy akkor márkakereskedés és akkor mélyen a zsebedbe kell nyúlnod. Esetleg nyerkulcsot kérsz a márkakereskedésben. És azt maratod ki ha csippes.
A hozzászólás módosítva: Szept 11, 2014
Sziasztok! Egy Opel vectra A 1.7 dizelről lenne szó. Ki volt cserélve valaki által a gyújtáskapcsoló. És az autórádió csak akkor kap áramot, ha kontakton van, vagy ha be van gyújtva az autó, de az előtt ha 1x volt tekerve a kulcs akkor ment a rádió és szeretném ha tudnátok adni valami bekötési rajzot vagy valamit, hogy megtudjam javítani.
Ha jól tudom van olyan kapcsoló, amiben nincs benne ez a plusz kivezetés. Lehetséges, hogy ilyen lett belerakva az eredeti helyett és azért nem megy.
De ha ilyen van berakva akkor látszana hogy elvan vágva valami nem?
Nem. Ha jól emlékszem, akkor van 4 és 5 kivezetéses kapcsolóbetét. Az 5-ös az, ami neked kellene és most 4-es van elvileg.
De ha tegyük fel 4 kivezetéses,akkor az egyik huzal ami a rádióba megy nincs bekötve? Vagy ez úgy van megoldva gyárilag hogy a rádiótól jövő +12V elvan osztva 2 be, és egyik megy a pluszban levő kivezetésre, és a másik meg arra ami csak kontaktkor ad áramot? Az meglehet hogy az illető csak rosszul kötötte be az újat? Nincs valakinek egy rajza a bekötésről?
A hozzászólás módosítva: Szept 11, 2014
Üdv! Ez a nappali fény amiről írtam, utólag lett beépítve ebbe az autóba, és aki beépítette, nem tudta, hogy honnan táplálja meg, ezért egy szál vezetékkel egy lengőbiztosítékon keresztül rákötötte a bikázó csatlakozóra. Akkumulátor lemerülése után kért meg a kollégám, nem -e nézném meg mi a baj. Én sajnos nem ismerem az autót, ezért kértem segítséget, hogy a motortérben honnan lehet gyújtáskapcsoló utáni 12V-ot találni. Tisztelettel: Jani.
Immós a kocsi... ezek szerint sokba lesz a gyári kulcs :/
Lenne még kérdésem Swifttel kapcsolatban (2002 1.3 GLX) ezekben van olyan "komfort" szál valahol, mint mondjuk az Opelben, hogyha azt földre húzod, akkor elkezdi felhúzni az ablakokat? Illetve marhára zavaró, hogy indításnál állandóan leáll a rádió (ezzel együtt a kihangosító is szétkapcsol, aztán mikor már jár a motor, újra csipog össze vissza, mire magára talál), arra gondoltam, elvágom a kapcsolt pozitívat, teszek bele egy izmosabb diódát, ami mögé teszek egy nagyobb elkót, így indításkor arra az 1-2másodpercre nem menne el a vezérlőfeszültség a rádiótól, meg a parrot kihangosítótól. Ez szerintetek jó megoldás, vagy van valami egyszerűbb? Illetve, még egy dolog, merre találom a műszerfal alatt alatt azt az átkozott dobozt, ami ezt az égetlen csipogást rendezi, ha a kulcsot bedugom? Roppan idegesítő... de olyan buta frekin sípol, hogy hiába hallgatózok, nem tudom, hol keressem.
Az is lehet, hogy direkt olyan a gyújtáskapcsoló, hogy amikor indítózol, akkor megszakítja a többi cucc áramellátását, és nem az indítás miatti feszültségesés miatt indul újra a rádió, hanem teljesen áram nélkül marad. Első körben rákötném próbára a rádió áramellátását direktben a 12V-ra, és ha úgy nem indul írja, akkor csak annyi a dolgod, hogy olyan helyre kösd be, ahol nem szakad meg indítózáskor az áram.
Biztos nem a feszültségesés miatt van, új az aksi benne. Akkor a gyújtáskapcsolón kell keressek egy olyan pontot, amin folyton van fesz, ha a kulcs benne van.
Nem a folyamatos táppal van baj, azt kapja, azzal nincs gond. A kapcsolt táp elvétele miatt indul újra az egész. Ha direktbe kötöm azt is, akkor kapcsolgatni kell külön a rádiót... Bár, nem szakad le a kezem... még gondolkozom rajta. A "komfort zárással" és ezzel a sípoló nyavalyával kapcsolatban, tudtok valamit?
Amúgy is ott kell majd matatnom, köszi
Kösd azt a pontot oda, amit nem szakít meg a gyújtáskapcsoló indítózáskor. Pl. a motorvezérlő áramellátását értelemszerűen nem szakíthatja meg, oda nyugodtan kötheted.
Biztos van ott egy relé/biztosíték tábla. Ott egy pillanat alatt meg lehet keresni egy szál próbalámpával...
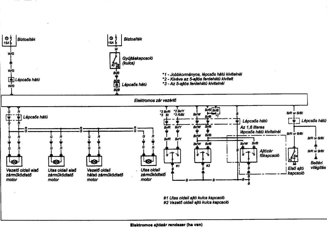
Na, ez jó ötlet, köszönöm! Valakinek esetleg nincs rajza ehhez a típushoz?
Szia! Melyikre gondolsz?
Én úgy tudom, hogy az egység az a vezoldali bal lábnál van a kárpit alatt. A hozzászólás módosítva: Szept 12, 2014
Köszönöm a rajzot!
Valakinek van valami tippje, milyen vezetékkel lehetne helyettesíteni az ajtóátvezetőben állandóan elszakadó vezetékeket? Én gumikábelre gondoltam, az szerintetek jobban bírná?
Igen de a gumiszigetelésűből is az ónozott erezetűt, vagy a szilikon szigetelésűt. Mindenképpen hidegtűrőbb szigetelő anyagú legyen a vezeték. A bontókban biztosan találni jobb vezetékeket mint amit ebbe típusba beépítenek. Én a kritikus szakaszt szilikon csőbe húztam és úgy van az ajtó átvezetőben a harmonika gumiban. Régen csináltam.
A hozzászólás módosítva: Szept 13, 2014
Nyers kulcsot kérjél a márkaszerviztől. Akkor olcsón megúszhatod. De ezt egy viszonylag régi autós posztból olvastam kb 3-4 éves. Talán járható út még. De érdeklőd meg. Kérdezni nem kerül semmibe a márkaszervizben.
Szia
Nem akarlak elkeseríteni, de olyan ~60e ft-ba lesz. Haver a 20 éves tigráét hagyta el, s pár hónapja járta be ezt az utat. Két opció van: -cseréled az ecu-t s az összes zárat a kocsiba, ha tudsz bontóból keríteni ua. olyat. -bemész a márka szervizbe , s az alvásszám alapján lekérik az adatit a gépsasnak, és kapsz/csinálnak hozzá 1 kulcsot. Igen 1db Ez a történet kerül 60 pénzbe az Opelnál. Nem kell mondanom hogy ezután ~ 8e másoltatott belőle egyet A hozzászólás módosítva: Szept 13, 2014
Sziasztok, köszönöm mindenkinek a hozzászólásokat! Akkor kerítek gumiszigetelésűt és húzok rá szilikon csövet. A kulcs kérdést meg rövidre zárom akkor valami házi megoldással, ez nevetséges, hogy ennyi pénzbe kerül!?!?? Nem új autót akarok kérni, csak egy kulcsot...
Azért megkérdem, mibe van ez a mutatvány Suzukinál.
Üdv! Valakinek van Deca FL 2213d akkumlátortöltőhöz kapcsolási rajza. Vagy valami hasonló a 6V töltéshez nem ragaszkodom, de a többi funkció jó lenne. Köszi!
Manapság melyik nem az? 90-es évek közepétől már mindegyikben van.
Üdv! Nem olvastam végig, de sejtem a gond forrását. Nekem a Citroennel volt(ak) gondjaim és miután megvolt a kulcskód 600e helyett a 32ért rakták rendbe a 3 comutert a kocsiba. A váci Peugeot szalon területén van egy független autóvillamosságis aki ezeket az immobis, kulcsos dolgokat naggyon vágja.
Szia! Mivel Te is szeretsz barkácsolni és az indítókulcsod chipje nem a kulcsszárban van, hanem a fejrészben, szerintem sima kulcsmásolás és a fejrész adaptálása a másolt fejbe megoldaná a problémát. Végül is az a lényeg, hogy a chip ott legyen az olvasótekercs közelében és olvasható legyen a vezérlő számára.
|
Bejelentkezés
Hirdetés |




Akkor megpróbálok rendelni hozzá egy gyári, új kulcsot, ahogy Antikzsolt tanácsolta, remélem nem lesz drága, aztán bízom benne, hogy az megoldja a dolgot...

Én úgy tudom, hogy az egység az a vezoldali bal lábnál van a kárpit alatt. 

