Fórum témák
» Több friss téma |
Azért köszi. Ha nem mondod meg nem tudom melyiket kell keresni.
Köszönöm mindkettőtöknek.
(Olvastad? 20% akusztikai hatásfok! )
Több mint 20. Mekkorát szólhat
1-2w elektromos teljesítménnyel ajánlják lakószobába. Nekem kell két ilyen. Rutse-t biztos veri vagy 5ször pedig az is nagyot szól.
Gondolkodok hogy lecserélem a két 117l-es Pioneer reflexemet egy ilyenre.
Irdatlan egy monstrum, rengeteg anyagot zabál fel. De milyen h.sz kellene beletenni? Kíváncsi lennék shalala véleményére.
Helló nekem van egy ilyen tölcséres hangfalam 40 cm-es hangszóróval mélynyomóként müködik a szobámban ,mindössze egy tda 2030 cal épített erősítő hajtja és annak ellenére hogy a hangszóró(SAL SR4050)rossz hatásfokú nem ell max hangerőre vennem hogy remegjen szinte az összes ablak a házban.
Kép van róla az apróhírdetéseknél
A tiéd az azért kicsit másabb. Kicsit?!! Sokkal másabb.
Kíváncsi lennék egy 40centis mélyel ládánként mit működne vagy ládánként két 30centissel. Amúgy az a baj ezzel a ládával h akkora mint egy szekrény.
Az enyém nem megy le 20hz-ig de nekem az a tapasztalatom hogy ilyen hangfalakat nem érdemes szobában hallgatni ,nem odavalók.
Az én kétajtósom kisebb
De azt irja felezhető hosszában, és elfektetve heverőnek is jó. (tudod, herver ő heverő ) De tényleg igaz, 1869l a bruttója!
Nincs valakinek körübelül ilyen hatásfokkal dolgozó ládája csak barátibb méretekkel?
Jobb hatásfokú hangszóróhoz kisseb doboz is elég
Erre azért ne esküdj meg. Vannak akik berakják a szobába, és esküsznek rá. :yes:
Ezek nem mélyhangú tölcsérek egyébként ha kiszámolod elvileg mondom elvileg 20hz-hez 22méter hosszú tölcsér kellene
Tudom. Gondolj bele h egy jó hatásfokú hangszóró egy ilyen ládába mit művelhet.
Tévedsz, ez a kétutas tölcsér teljes sávú. picike
Amúgy, 1 lambdás hullámhoszra nem méreteznek tölcsért. + a hatásfok egy dolog. És a frekiátvitel megint más.
Azért kíváncsi lennék hogy 4 hangszóró hogy tud egyetlen teljesen merev membránként viselkedni.
A tölcséreknél ennek külön kihangsúlyozzák a jelentőségét.Szóval ha volna 74000dollárom hangfalra én akkor se venném meg ezt .Egyébként a hatásfok és a frekvenciaátvitel együtt számit nem külön-külön.
Félreértel! Én azért mondtam ezt mert azt irtad,
Idézet: „Jobb hatásfokú hangszóróhoz kisseb doboz is elég” Igen adott hangnyomás eléréséhez valóban. De ennek a tölcsérnek a nagysága (levegőhöz való illeszkedése) beleszól a frekiátvitelbe.
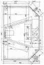
Megnéztem én is az RT1981 19.oldalán lévő hangtölcsért ha ezt valaki tényleg megépíti az feltétlenül küldjön róla képet.Egyébként ez mekkora mert az én képemen nem látszik rendesen.
Utóirat(szamócának) a tölcsérek fizikájába kár belemenni mert ha valaki ilyet épít akkor úgyis valamilyen terv alapján csinálja(nem maga méretezi).
Erről a mélyládáról tud valaki infót vagy pontos tervet? Csatolok én is egy tervet lehet ez lesz az.
Szia!
IGEN!!!!! Valaki hallott már ilyet szólni??? Üdv KN
Hello.
Látom sikerült felkeltenem az érdeklődést ![]() Az évszám pontatlansága miatt elnézést kérek, de már nem emlékeztem pontosan. Nekem egy az egyben (mint írtam) ki van szerkesztve. 25-ös rétegelt lemez lett volna az alapanyag. A haver bútoripari KTSZ-ben (azok a régi szép idők) dolgozott. Sajnos sosem valósult meg. A tervben szerepelt az is, hogy 3-as rétegelt lemezből gőzöléssel íveket hajtunk, hogy a hang "simábbanm közlekedjen a "kanyarokban" ![]() A hangszórót kiválasztani nem egyszerű. Akkoriban még nem volt tuc-tuc zene. Így, mi egy lágy felfüggesztésű JBL 350 mm -es hangszóró mellett döntöttünk. Persze koncertekre inkább a kemény felfüggesztés javasolt. A rajz nem szól arról, hogy érdemes-e elválasztani a hanszórókat külön kamrába. Ezen el kell gondolkodni. Lehet így is úgy is. Függ sok dologtól! Remélem valaki beszámól majd az élményről, ha hallott ilyet szólni! Üdv KN
Igen nehanyan mar csinaltak nehany peldanyt.
Jomagam elkeszitettem a megfelelo kiviteli rajzot.amin minden meret rajta van. illetve az anyagkiiras is.Sajnos az iden sem volt idom megcsinalni de ami kesik nem mulik.Egyszer fiatalabb koromban mar keszitetem egyet de akkor nem volt penz hangszorora es az anyagat felhasznaltuk de egy probat megelt es dobbenetes ereje van nyugodtan csinald meg. Udv Mrex
Azért megjegyezném ez nem kis falat.
Sem anyagi, sem kivitelezési szempontból.
Egy kérdés:
Nekem a gyári rajzón úgy tűnik, hgy nincs "megfelezve"! Jól látom? By KN
Sajnos nem. Főleg az anyagi. A gépparkom még csak-csak rendelkezésre áll a munkához, de sajna a pénz egyelőre nem!
Van mire spórolni! Talán a házbontásból behozza az árát! ps: "Azért egy pacemaker-es ne álljon szerintem egy méteren belül. "
Annyira nem nagy baleset elkesziteni.Ha este lesz idom megcsinalom az anyagszuksegleti kiirast es a szabasterkepet is. ehhez natur pozdorja(faforgacslap) megfelelo alapanyag laminallt lap is megfelel de akkor vigyazni kell a dekorra csak macera bar a Radotechnika evkonyvben irva vagyon hogy a 400mm szeles kivitel lefektetve egy matracmeretu heverovazat helyettesit. tehat agykent is funkcionalhat. az MDF mint anyag sokkal nehezebb surubb viszont az elek csiszolhatok es a vagasi hibak glettelessel javithatok a faforgacslapnal hasznaljatok edzheto autogittet. Es hat le kell fujni valamilyen szinre.De nem tudok elkepzelni olyan hazat ahol erre 5-10w nal tobbet szabadna raereszteni kisebb tolcserrajzaim is vannak amik inkabb valok lakasba mint ez. Estere felteszem oket. Mindet megcsinaltam es biztosan allithatom amirol van rajzom az jo is.
Az ekezet nelkuli iras a nemet windows miatt van udv Mrex
en ket 400 mm szeles bol gondolkoztam mar csak a sulya miatt is elvileg barmilyen szelesben meg lehet csinalni mert az exponencialis karakterisztikarol a keresztmetszet gondoskodik a szelessegnel az eredeti meghajto feluletenek aranyat kell tartani az uj meghajto feluletehez pl 3-4xes szelessegben is megepitheto de ki emelgetne
Mrex |
Bejelentkezés
Hirdetés |




)
1-2w elektromos teljesítménnyel ajánlják lakószobába. Nekem kell két ilyen.
Rutse-t biztos veri vagy 5ször pedig az is nagyot szól.
(tudod, herver ő heverő
) De tényleg igaz, 1869l a bruttója! 



