Fórum témák
» Több friss téma |
Sziasztok! A képen látható IC-ről sajnos nem találtam semmit a neten. A képen egy hordozható lcd tv táp részének néhány alkatrésze látható. Sajnos a 4-es kivezetésén nincs jel. Szerintetek kiváltható más IC-vel? Arról hozzávetőleg sincs fogalmam, milyen frekvenciájú és kitöltési tényezőjű jelnek kellene lennie ezen a lábon. Mind az IC, mind a trafó +12 V-ot kap egy különálló tápegységről. Köszönöm.
Nem tudod lefényképezni a panelt?
Az IC valószínűleg egy NJM2368 "Switching Regulator Control IC for FLYBACK". Megpróbálod beszerezni vagy keresel egy hasonló tulajdonságokkal bíró IC-t és megpróbálod, hátha jó. Adatlapja megtalálható itt: Bővebben: Link
Ahogy vizor is írta, az IC egy NJM2368-as 8 lábú jószág. Néztem magyarországi alkatrészboltokat, de nem találtam sehol sem. Meg kellene nézni az IC környékén lévő alkatrészeket, nem-e azok közül valamelyik hibás?! Ha mégis az IC a bűnös, akkor adatlapban meg kellene keresni az üzemi frekvenciára utaló képletet, melybe az alkatrészértékeket behelyettesítve megkapjuk, mekkora frekvencián üzemelt a cucc. Ezek után viszonylag könnyedén méretezhetünk hozzá áramkört TL494, vagy SG3524 IC-vel...
Ha a tranzisztor jó maradt Én a tápra csatlakozó 100 ohm meg kondi párost vizsgálnám meg.Utána a szekunder oldali kondikat, diódákat,nem e zárlatosak.
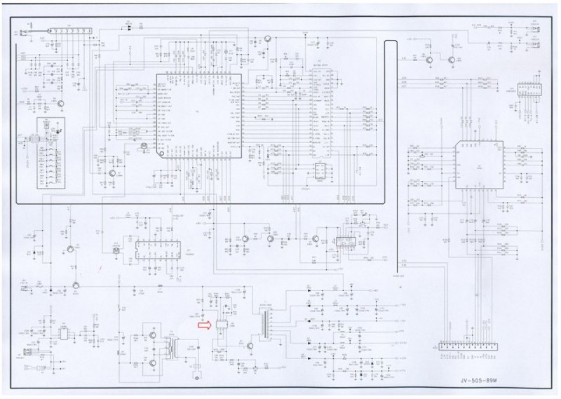
Köszönöm az értékes hozzászólásokat.Teszek fel képet az egész panelról és rajzot is, nyíllal jelöltem azt a bizonyos IC-t. Már próbáltam pár dolgot cserélni, illetve lekötni a szekunder oldalon is, még nem találtam hibát, de keresgélek tovább. A 4-es lábat lekötve sem kapok rajta jelet. AZ IC cserét végső megoldásnak gondoltam, köszi, hogy segítettetek a típusában.
Szia!
A TA1204 ic mi az a fekete folt?
Szia! Most jobban megnézve a fényképet, valóban látszik az általad említett IC-n egy folt. Azonban a fényképet a netről vettem, nem a birtokomban lévő készüléket fotóztam le. Persze az enyém ugyanígy néz ki, igaz folt nélkül
Mindenesetre elismerésem a sasszemedért, üdv! |
Bejelentkezés
Hirdetés |







Mindenesetre elismerésem a sasszemedért, üdv! 




