Fórum témák
» Több friss téma |
Fórum » Villanymotor bekötése
És azt se felejtsük el,hogy megfelelő terhelhetőségű hálózat áll rendelkezésre a motor táplálására.Nem akarnak 3x16A-es automatáról 5,5Kw-os motort indítani és üzemeltetni.Egy ilyen motor névleges árama 11A körül van. Ehhez illik 20A-es automatát használni.
Nekem 3x16A van! Ne idegesíts, hogy most meg ez kevés!
16A-nál mennyi a max kW? Kezdek begolyózni...
Az egyfázisúnál nincs gond, legfeljebb fordítva jár. A háromfázisú már neccesebb. Erre a célra van egy mérőbőröndöm.
Bekötöd csillagba és bekapcsolod rövid időre. Ha lemegy az automata, vagy ronda hangja van, akkor nem jó.
Lehetőség: 1 fázisról 2 tekerccsel csillagban elindítod kondival, majd leveszed a kondit. A 3 tekercs feszültségviszonyait méred. Elég jó aránnyal beáll a 3 fázis. Ha valamelyik érték nagyon eltér, azt a tekercset megfordítod. Ha szerencséd van, nem a meghajtó lesz az.
Ha csillag/deltába indítod,akkor elméletileg elég.Milyen az automata karakterisztikája?Ha terheléssel indul a motor,és hosszú a felfutása, akkor lehet hogy kevés.A motorodnak látom 12A a névleges árama.Hát próba szerencse.
3x16A-nál ellenállás terhelésnél ~11 KW a maximum (fűtés). Amit 10-25%-kal akár meg is lehet haladni.
Motoroknál ez jóval kevesebb, mert az üzemi áram a névleges teljesítményhez tartozó értéknél több a hatásfok és a cosFi miatt, az indulási áram meg kiviteltől és fordulatszámtól függően akár 6-10-szerese is lehet. Pl. 960-1450 fordulatú motorok könnyebben indulnak, míg 2880-as motoroknál már a 3 KW is leverheti a 16-os automatákat. Rendszeresen használok 5,5 KW-os 1450 fordulatú motort 16A-ről. Természetesen csillag-deltában indul, de már kisebb túlterhelésre is csapkod.
Közben otthon a biztonság kedvéért benéztem a kapcsolószekrénybe, és szomorúan láttam, hogy tényleg van 16A-ünk, de csak egyik fázison, a másik kettő 10 A-es.
Így gondolom inkább 4 kW-ig érdemes elmennem, illetve akkor már megkérdezem, hogy mennyi A jár alanyi jogon, és kell-e fizetni a szerelőn kívül bárkinek, hogy nagyobb biztosítékokat tegyen be?Mondjuk annyiból is jobb lenne a 4 kW-os moci, hogy annak a tengelye is 28-as, így a hasítófej belsejét nem kéne újra esztergáltatni és maratni, és valószínüleg a 4 kWos delta moci sokkal erősebb lenne a mostani 2 kWos csillagomnál... Ígérem igyekszem mihamarabb megoldani ezt a problémámat és nem zavarlak titeket a hülyeségeimmel...
32A jár a népnek manapság, nálad ez jelenleg 36A. A plusz 2x6A úgy tudom, 4000HUF/A árban lenne (igen 50 E!), valamint bővítéskor szabványossági felülvizsgálat is végzendő (akol a mérőhelyed valószínűleg "elvérzik", átalakítás szabványosra) tehát a 3X16A így már 100.000HUF feletti összeget igényel, valószínűleg (persze, hivatalosan).
10A a 4kW-ost még szépen indítja, de az lesz, amit Erbe is mesélt az 5,5kW-os kapcsán, megszoruláskor csapkodás.
Szerintem...felezd a fordulatot így lesz dupla nyomaték, ami tuti nem szorul bele semmibe...
Igen, hosszabb távon ez a terv, csak ahhoz keresnem kell olcsó megoldást, mondjuk egy kész lassító hajtóművet, mert új tengelyt meg tárcsákat esztergáltatni nem olcsó, és sajna nem csak fizikailag lapos a bankkártyám... Elvileg a szomszéd városban (Szigetvár) van egy lerakat, ahol mindenféle vasárút, új és használt villanymotorokat, meg rengeteg egyéb holmit kapni aránylag olcsón. Holnap előbb végzek, úgyhogy azt tervezem benézek. Majd elmesélem mi volt!
Köszi mindenkinek, gondoltam hogy nem egyszerü dolog, föleg egy hobbistának!
Sziasztok,
Pár hete kérdezgettem arról, hogy 4kW motoromat mekkora biztosítékról lehet elindítani. Volt aki segített - ezt most is köszönöm - de tegnap tűnt fel, hogy senki sem kérdezte meg, hogy mekkora a motororm fordulatszáma. Ez nem kellene hozzá? Mert én úgy okoskodtam, hogy az aszinkron gépben a forgó és állórész fordulatszám különbségégtől függ az áramfelvétel (mondjuk elég durván összefoglalva . Márpedig a 3000-es motor állórészének a tere kétszer olyan gyorsan kezd forogni a forgórészhez képest, mint az 1500-asé. Így aztán majdnem olyan a helyzet, mintha az 1500-as másik irányba pörögne 1500-zal, és úgy indítanánk, kb. olyannak látnám a 3000-es motor indítását. Vagy ez csak az áramlökés lefolyásásnak hosszát befolyásolja, a nagyságát nem? Erről mit tudtok? Honey
Annyit, hogy valóban némiképpen nagyobb az áramlökése a nagyobb fordulatú motornak, de ez - szerencsére - nem arányos a fordulatszámmal.
Azt kell figyelembe venni, hogy e motorok fordulattartó típusúak, az üres-járási, és a teljes terheléskori fordulatuk között csak pár % van. Így már kis lassulások is az áram rohamos növekedését váltják ki.
Köszi, Imi.
Hétvégén kísérletezetem, leírom, mert más is kérdezte: 4kW 220/380, 1420f/min motor terheletlenül elindult 3x16 amperról, viszont éppen hogy. az egyik kismeszakító régi volt, 15 amperes, azt néha levágta, amikor erről levettünk kb. 10 mA terhelést, attól javult a helyzet! (többször indítottam), de a 16-os új, rajta 2 hűtővel biztosan indította. hogy a hűtők éppen mentek-e, azt nem tudom
Sziasztok!
Lenne egy 3 fázisú 1,1 kW-os motorom, amit egy fázisról szeretnék üzemeltetni.Mekkora indító, illetve üzemi kondenzátort kell rátennem? Próbáltam boltban érdeklődni, de ott a szaki elhajtott, hogy esélytelen, kizárt dolog, hogy jó legyen a szerkezet (amúgy egy cirkula lenne, apró fák darabolására).Válaszokat előre is köszi! Üdv.:BadMojo
Szia,
Olvass vissza 3 oldalt, minden le van írva, rajzokkal. Röviden : 30 mikroF/kW, de a teljesítménye harmada lesz, így körfűrésznek nem lesz alkalmas. Honey
Sziasztok,
nincs valakinek véletlenül egy Stihl E220 láncfűrész kapcsolási rajza, vagy tippje, hogy egy triakos lágyindítót és egy 0,1µF kondit (ez volt benne, csak nem én szedtem szét) hogyan kell bekötni? Nem működik a lágyindítás. Előre is köszönöm...
Üvözlök mindenkit.van e táblázat P/C. motor inditó ill üzemi kondiról
Üdv. mindenkinek. olyanféle segítségkéréssel fordulok a közösséghez, hogy vattem egy asztali körfűrészt ami gyári, tehát nem barkácsolt valami. Csakohogy 3 fázisú a motorja.. felhívtam pár villanyszerelőt, hogy átlehet-e kötni azt mondták elvielg igen csaka teljesítmény lesz kisebb, ami nembaj hiszen így a 2800W ból kb 1600-1700 lesz ami nekem bútrolaphoz elegendő lenne. Na mikor a motor bekötését néztük volt kisebb meglepetés mert 6 kivezetés helyett 4 volt amit a gép adatai közül kinéztem a 3 fázis és egy pedig a hővédelem. megpróbálom mellékelni a képet. Segítséget szeretnék kérni, hogy ezt a féle motort kondenzátorokkal el lehet-e i ndítani 230V -ról vagy esélytelen a dolog? És ha el lehet indítani akkor milyen kondik kellenének üzeminek és indítónak egyaránt. A motor adatai 400V 2800W, 2800 1/perc. 5,3A Segítséget előre is köszönöm.
Szia!
Ezt nem lehet átkötni 230V-ra, mert nincs az összes tekercsvég kihozva a kapocslécre.
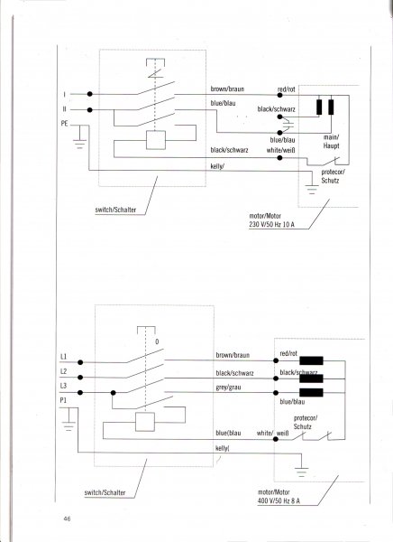
sziasztok ha van egy motorom csillag/ delta van rá írva én úgy tudom hogy előbb csillagba majd deltába kell kötni ha jól tudom csak nincs hozzá rajzom ebbe kérnek segítséget hogyan kezdjek neki
Szia!
Hány kilowattos? Esetleg nem 220/380V-os?
Akkor csak csillagban használhatod három fázison.
Üdv!
Ez a motor három fázison( 3×400V) csak csillagban használható! Be nem kösd deltába, leég!! A csatolt képen a felső rajz a csillag.
Sziasztok! Becsületesen végigolvastam a topicot , ezután tenném fel kérdésem mert nem találtam rá konkrét választ. Nem bántam meg hogy végigmentem, csomó érdekes dolgot megtudtam. Szóval arról van szó, hogy leégett a körfűrészem 1,1 kw-os motorja. Sikerült szereznem egy 2,2 kw-os 380/220-as motort, ezt építeném be, 1 fázisról üzemeltetve. Mekkora legyen az indító és az üzemi kondi értéke? Az üzemi értéke mitől függ, hogy kell kikísérletezni a megfelelő értéket? Az indítókondit nyomógombbal vagy indítórelével kapcsoljam? Valamint, 1fázisról használva elbírja a 20 amperes B kismegszakító? Köszike.
Sziasztok.
Régen vásárolt esztergagépemet próbálom bekötni, és ehhez kellene némi segítség. Az adattáblán csak 380 V van feltüntetve, és nincs utána sem delta, sem csillag jelzés, csak évjárat és sebesség. A kábelvégek megvannak mind a három, mindegy melyiket hova kötöm? Mellékletként lefotóztam. Előre is köszi!!
Hello
Ilyen esetben a 380V csillagra vonatkozik. Az alsó 3kapocsra kötöd a 3 fázist, és már megy is a motor. Üdv: Zoltán
Szia
Mivel egyik mester sem írt választ a kérdésedre, ezért megpróbálkozok én, amit ne vegyél 100%-ra, mert értek a témához, de van még mit tanulnom.Az "ökölszabály" szerint 1 kW-os motornak kell 60µF-os ÜZEMI kondi,tehát ha nem tévedek neked 120 környéke lesz a jó. Indító csak akkor kell,ha nem indul. ... mert az üzemi is azért kell,hogy rendesen pörögjön(és induljon) a moci leállás nélkül 220-ról,de az folyamatos üzemre van tervezve, az indító pedig csakis pár másodperces indításra készült. Indító értékét nem tudom,sőt azt se,hogy mi a működési elve, hogyan indul tőle "jobban" a motor. Annyit tudok,hogy párhuzamosan kapcsolódik az üzemire,de pár másodpercre. Az üzemi kondi értékét addig növeld még magától meg nem indul a motor.(szóval elsőnek ne vegyél rögtön 120µF-at,mert lehet 100µF-val is minden baj nélkül indul)TERMÉSZETESEN úgy,hogy már rajta van a körfűrész tárcsa. Elméletileg lehetne relét is használni,de azt halottam/láttam itt a fórumon,hogy az nem a legjobb,mert állandóan kapcsolna,és beéghetnek az érintkezők,ha faaprítás közben lefogná a motort a fa,és ilyenkor mindig kapcsolna a relé.(ha olyan gyenge a motor,mertha erős,akkor jelentős áramfelvétel növekedés nélkül aprítja a fát,és nem érzékeli a relé,így nem kapcsolgatná az indítókondit.) Szóval nem tudom ez esetben mit mondjak neked. ...viszont nyomógombos indításnál állandóan melette kellene állnod. A legjobb szerintem az lenne,ha olyan erős lenne az a 2,2 kW-os moci,hogy jelentős lelassulás nélkül elvágná a fát(nem tudom mekkora fa) és elég lenne,ha fa vágása után segítség nélkül érné el a névleges fordulatot. Ez esetben nem lenne szükség indító kondenzátorra. Ha pedig számításaim igazak,akkor I(áramfelvétel) = P(teljesítmény)/(feszültség)U. ? =2200 / 220 = 10 amper. Így ha minden igaz "bőven" nem verné le a 20 amperes kismegszakítót. Remélem tudtam segíteni,de azért kérdezz meg mást is ![]() Üdv.Tomi |
Bejelentkezés
Hirdetés |




Így gondolom inkább 4 kW-ig érdemes elmennem, illetve akkor már megkérdezem, hogy mennyi A jár alanyi jogon, és kell-e fizetni a szerelőn kívül bárkinek, hogy nagyobb biztosítékokat tegyen be?
. Márpedig a 3000-es motor állórészének a tere kétszer olyan gyorsan kezd forogni a forgórészhez képest, mint az 1500-asé. Így aztán majdnem olyan a helyzet, mintha az 1500-as másik irányba pörögne 1500-zal, és úgy indítanánk, kb. olyannak látnám a 3000-es motor indítását.



