Fórum témák
» Több friss téma |
Nagyon szépen köszönöm a segítséget!
Már csak egyetlen kérdésem lenne. Van egy DSC LC100-PI mozgásérzékelőm és valaki tudna nekem ebben, hogy hogyan kellene bekötnöm? Előre is nagyon szépen köszönöm a választ!
Bővebben: Link
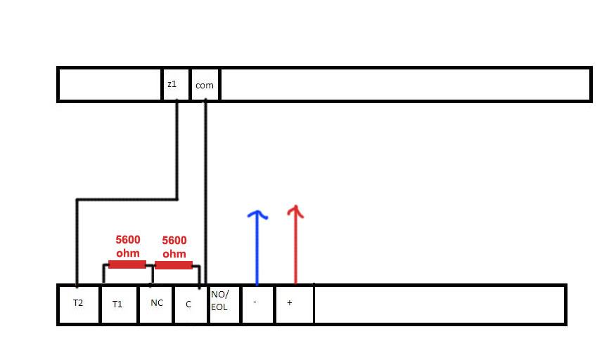
Értelemszerűen a többi érzékelőt is ugyanígy, a z és a com közé. a +/- az aux + aux- A hozzászólás módosítva: Dec 3, 2016
Az gáz, hogy ha én a sárgát NC-re kötöm?
Sziasztok !
Tudom, hogy ez DSC topik, de hátha tud valaki segíteni. Satel Versa 10-hez keresek programozó kábelt. A gyári "USB-RS" ára elég húzós. Esetleg ha tudtok akár az ebay-ről vagy máshonnan belinkelni valamit, ami biztosan jó lesz. Előre is köszönöm !
Sziasztok,
Egy PC1616-ra van kötve a PS128A sziréna. Először normálisan villogott rajta a két led, csináltam egy próba riasztást, ment is, után viszont az izzó villog két rövidet (a ledek nem), és nem hagyja abba. Ez valami hibát jelez, vagy csak jelzi hogy riasztás volt?
Emlékeim szerint az akkumulátor töltöttséget jelzi de nem vagyok biztos benne, a google sok pdf-et dob el kéne olvasgatni hogy kiderüljön de nekem erre most nincs időm.
Üdv Srácok.
Szüleim lakásában döglődik a dsc riasztó egyik/ emeleti/ kezelője. Gondoltam meglepem őket egy újjal karácsonyra. Gondom csak az hogy a mostani, igaz csak kép alapján de úgy tűnik hogy kifutott modell. 1555RKZ. Vagy legalábbis pont úgy néz ki. Szakértő véleményetek szerint 1404RKZ-vel kiváltható volna? Előre is köszönöm
Igen, már kifutott, de még elérhető néhány helyen, így felhasználhatóak a meglévő furatok. Ha Power series a központ akkor menni fog a 1404. Van sárga és fehér háttérvilágítás is belőle. Üdv
szép napot volna egy kérdésem a trafom megdoglot van egy 19 voltosom .
a kérdés a koszpontmenyire rugalmas elbirja vagy kifustolne tole? mivel a konyvekbe azt irja hogy 16.5 voltos kell.
Elvileg 7812 317 van a régiekben és azok kaár az eggyen 30-at is birják, az ujjabb kp-ban nem néztem mi van.
Szia, 24el próbáltam, 1606-ot.
to220as feszstab van rajta, elbírja fűteni. A hozzászólás módosítva: Dec 18, 2016
1565-2p koszpontom van, szoval probajam ki és meglátom mi lesz
![]() ebe a hidegbe hutése van mert a paláson van
Köszönöm a válaszod.
Úgy tűnik valami csellel csak ki kell nyissam a központ dobozt hogy beazonosítsam a panelt
Ha tudod melyik a szabotázs zóna akkor *1 (két digittel)szabotázszóna és kettöskereszt. Így már elvileg nem szabad riogatni ha nyitod a dobozt.
3db ws4945 vezetéknélküli nyitásérzékelőt "kötöttem" a power 832-es központra kb fél éve. Eddig kifogástalanul működött. Pár hete hajnali 4-5 óra között a tasztatura elkezd csipogni /kb. két másodpercenként két gyors/ és ha megnézem a kijelzőt az egyik vezetéknélküli nyitásérzékelőnél nyitott zónát jelez (mintha megszakadt volna a kapcsolat a központtal), ha megnyomom a #-et a csipogás elmúlik, és egy idő után a zóna ismét "záródik". Néha a csipogás ismétlődik pár óra múlva, néha nem. Napközben a probléma nem fordul elő. A központ hibát nem jelez, és élesíteni is lehet a rendszert. Az elemmel nem hiszem, hogy gond lenne, mivel max. 1 éve telepítettem, és nem sokszor nyitjuk csukjuk.Mi lehet a probléma?
Köszönöm.
Az elem attól függetlenül lehet rossz hogy nincs egy éves a rendszer. meg kéne nézni hogy milyen hiba van, sárgalámpa volt? Az RF jam ki van kapcsolva?
Az RF zavar érzékelés és mulasztás hiba engedélyezve van, de RF zavart érzékelő zónának a 32.-est adtam meg, így nem a 32-es zónát kéne kiírnia a kijelzőnek RF zavar esetén?
A helyzetet bonyolítja, hogy ma hajnalban egy másik vezetéknélküli zónánál is ugyanezt csinálta.
Hát valóban kicsit zavaros a dolog, első körben ki kéne olvasni az esemény memoriát, ott választ kéne kapni a hibára. Nem tudom milyen RF zavar zónát programoztál de én ki szoktam kapcsolni mert jelvesztésnél amúgy is jelez illetve a környezeti rádió jelek nagyon sok problémát szoktak generálni.
Az esemény memóriát ki lehet olvasni "tasztaturán" keresztül?
A tasztaturám 5501z, és ezzel úgy látom nem tudom kiolvasni az eseménymemóriát, vagy esetleg van rá mód?
Ennek hamarosan utánna nézek, addig is itt a kezelő leírása, ajánlom figyelmedbe a 10. oldal környékét:Bővebben: Link
Köszönöm szépen , de a leírásból úgy látom ezzel a tasztatúrával nem tudok eseménymemóriát kiolvasni, (de ha tudsz megoldást azt örömmel veszem), úgyhogy jobbhíján először megpróbálom az elemcserét , majd RF érzékelés kikapcsolása. Majd megírom, hogy ezekkel volt-e a probléma. Köszönöm szépen, és BÚÉK.
Valaki tudna segíteni abban, hogy a 2.2 kohm-os ellenállást felhasználva, hogyan tudom megfelelően bekötni a ragasztható nyitásérzékelőt a központ fémdobozába ?? Fontos lenne!
Miért is a 2,2-es ellenállást akarod felhasználni? Minden zónát 5,6k-val kell lezárni.
Valahol azt olvastam, hogy azt kell felhasználni! De ha 5.6kohmos ellenallast használnám fel, akkor a PC1616os packba miért van benne a 2.2es? Van benne egy 1kohmos is, de ugyebár az a szirénakimenet lezárásához kell!
5. oldal a megfejtés
Bővebben: Link
A 2.2k az a füstérzékelőkhöz kell, ha a PGM kimenetet használod fel és nem a zónákat. Azért is van egy darab a csomagban, mert csak egy füst hurkot tud a DSC. Az 1k pedig hivatalosan a szirénakör lezárására való. De jó oda az 5.6k is. Tapasztalat.
Őőőő a "valahol azt olvastam..." az nem opció, inkább a központ mellé adott dokumentációnak higgy. Bizonyos tűréshatáron tud dolgozni a rendszer, de a lezárt és a nyitott értékek 15%-on belül kell, hogy legyenek. Láttam már kényszerű okok miatt 2db. 4,7k ellenállással lezárt zónát, ami működött, de nem életbiztosítás a vakriasztások ellen.
Köszönöm szépen a választ!
Még egy kis segítséget kérhetnék? Vettem egy "Mobilcontrol mobilarm-1"-ot, és az lenne a kérdésem, hogy a PC1616-os központhoz hogyan tudnám bekötni? A SIM kártyán való programozása egyszerűnek tűnik, de, hogy mit, hova kössek, azzal sajnos nem vagyok teljesen tisztába! A 15V és a 0V az világos, de az IN1-IN2-illetve a feketét hova kell kötni a központon belül? Előre is köszönöm szépen! Fontos lenne! A hozzászólás módosítva: Jan 18, 2017
Sziasztok ! Van egy DSC PC1565 2P központom egy PC1555RKZ billentyűzettel és azt szeretném kérdezni hogy hogyan lehet a zónákat beállíttani? Odáig eljutottam hogy factory reseteltem (használt működő központ) nekem csak arra kell hogy 8nyomógomb 8nc zóna és a CID engedélyezve legyen 1234 es telefonszámmal 1234 es ügyfélszámmal csak kommunikátor tesztelésre kellene ha valaki lenne olyan kedves és leírná hogyan és mit pötyögjek be azt megköszönném mert a telepítési leírásban nem igazodok el előre is köszönöm
|
Bejelentkezés
Hirdetés |













