Fórum témák

» Több friss téma
Fórum » Kültéri hangosítás (hangládatervek és erősítők)
  1. Az esetek többségében nagyon helytelenül, egyesek hangfalnak hívnak minden hangsugárzót, ha nem olyan kialakítású akkor is.
  2. A hangszóró, az elektromos hangfrekvenciás jelből mechanikus rezgést előállító alapeleme egy hangsugárzónak.
  3. Hangsugárzó alatt értjük azt a komplexumot, ami tartalmazza a hangszórót, és a hanglesugárzás javító eszközt, ill. adott esettől függően más kiegészítő elemeket is. (váltó, belső huzalozás, csatlakozók, stb)
  4. A hanglesugárzást javító eszköz lehet többek közt un. hangfal, ami "valamekkora tetszőleges geometriájú lap". Hangdoboz, vagy méretéből adódóan hangláda, illetve egyéb formájú test.
Lapozás: OK   28 / 74
(#) DJ_Tacee válasza pl13 hozzászólására (») Szept 15, 2009 /
 
Alsó határfrekvenciának 50Hz-el kibékülnék. Ezt azért saccolom így, mert a végfokjaimon van egy felüláteresztő szűrő, kapcsolhatóan 30 és 50Hz. Az 50Hz-es állapotban is teljesen jól szól a cucc, ott is szoktam hagyni a hangszórók kímélése céljából. No igen, rávilágítottál a súly/méret párosra is. Szeretném személyautóval szállítani Pont azért készülne, hogy a nagy dögöket ne kelljen mozgatni ha nem muszáj, de egy kis plusz mélyalap legyen a kompaktok alatt. 300W-ot fog kapni, a végfokpanel már adott.
(#) kemenygolya hozzászólása Szept 15, 2009 /
 
közbe kérdeznék én is.
Tudtok esetleg valamilyen végfok típust (kapcsi rajzot) javasolni ami a következőket tudja.
Fűzhető 2 ohm-ig
2ohm-os teljesítmény 3kW (2*1500W)
gyári végfokba nem gondolkozok, max dyna rendszerben, az viszont mocskosul drága
(#) DJ_Tacee válasza kemenygolya hozzászólására (») Szept 15, 2009 /
 
Hát egy 2ohm stabil végfok nem olcsó, és gyakorlatilag erősáramú szerelési technikát kíván egyes helyein, gondolj csak bele mekkora áramok folyhatnak... Házilag biztos nem állnék neki. Érdemes szaglászni Phonic XP sorozat környékén, azok 2ohm stabilak. Nemem a MAX sorozatból van kettő, arra is ráírták régen, mostani katalúgusban min. 4ohm-ot adnak meg. Érdekes, mert hídra meg odaírják a 4ohm-ot hogy is van ez? Az akkor effektíve 2ohmra jön ki per csatorna... Szóval van itt is zűrzavar.
(#) kemenygolya válasza DJ_Tacee hozzászólására (») Szept 15, 2009 /
 
dolgoztam már phonic típusú végfokkal, de ha már végfokot akarok venni akkor tuti nem phonic-ot veszek, hanem féldigitálisat. 5-10 rugóval drágább viszont jobb is.
Az a baj hogy én inkább házilag építeném a végfokot
(#) kemenygolya hozzászólása Szept 15, 2009 /
 
Ígértem nektek a Dyna hangfalak rajzát
Nos
Dynacord F12CWH
Dynacord F17 PWH (sub)

nem teljesen a gyári, viszont hangzásra olyan
lehet látni az egyik rajzon hogy a doboz sarka meg van törve. Ezt teljesen felesleges megcsinálni, mert ha normális hangfalat akarsz csinálni, akkor sarokvédőt használsz.
(#) szabi83 válasza DJ_Tacee hozzászólására (») Szept 15, 2009 /
 
Szia!

Kanizsán, a KISO van.. Bővebben: Link

Üdv
(#) sound.man válasza kemenygolya hozzászólására (») Szept 15, 2009 /
 
A toppot utánépítetted már? Ha igen akkor milyen lett?
(#) karpi válasza kemenygolya hozzászólására (») Szept 16, 2009 /
 
A vegerosito meg elmegy ahogy a kolega emlitette , szepen nagyaramu szempontbol " huzalozni" es sokmindennel meg lehet epiteni.

De mi fogja taplalni ?.A tap a legfontosabb ennelkul nem er semmit a akarhany kilowattos erosito. Ide kene 2 x 2KW-os tap ami allandoan tudja a teljes erot ha kulteren bombolteted.
3KW-on felul mar problema maga a halozati csatlakozas /aramellatas is .
(#) kemenygolya hozzászólása Szept 16, 2009 /
 
Igen, a TOP ládát megcsináltam
A rajz szerint 15-ös anyagból kell csinálni, de ebbe az a vicc h ilyen meg nem létezik
sima natúr bútorlapból megcsinálod, annak az anyagvastagsága 18mm

másik hozzászólásra...
akkor milyen erölködőt javasoltok építés szempontjából?
am. meg a tápot meg lehet oldani toroiddal
(#) sound.man válasza kemenygolya hozzászólására (») Szept 16, 2009 /
 
Hangra milyen lett? Valamennyire hasonlít a dynacord-ra?
(#) kemenygolya válasza sound.man hozzászólására (») Szept 16, 2009 /
 
hát 1 db TOP-hoz kellett 2 db F17 PWH sub
annyi, hogy 2 dnyacod gyári hangváltóból csináltam egyet
rendszerprocit kölcsön kaptam, így 90%-ra hasonlít a gyárihoz hangzásilag
(#) kemenygolya hozzászólása Szept 16, 2009 /
 
Vannak EV (electroVoice) lábmonitorok
Nem tudtok tervet véletlenül?
annyi kikőtésem lenne hogy lábmonitor legyen és ne fekvő legyen (ha esetleg nem EV terv az se gond, bár én ezekkel dolgoztam sokáig és meg vagyok velük elégedve
(#) sound.man válasza kemenygolya hozzászólására (») Szept 17, 2009 /
 
Nah és az F18-ast utánépítetted már?
(#) kemenygolya válasza sound.man hozzászólására (») Szept 17, 2009 /
 
szia
nah hát igen..
még folyamatban van
mert ami van terv, az nem adja le szépen a hangot, szóval módosítgatok rajta picit.
Viszont ha lábmonitor rajzot tudnál adni, azt megköszönném
(#) sound.man válasza kemenygolya hozzászólására (») Szept 17, 2009 /
 
Valami ilyesmire gondoltál? (csatoltam) Amúgy én hallottam F17-et gyárit. Szépen szólt, amilyen "kicsi" ahhoz képest nagyot is, de én inkább tölcséres párti vagyok. Hiába nagyobb, viszont kettő szól úgy mint 4 darab F17. Viszont a top... Az nagyon tetszett. Annyira szépen szólt meg hangosan.. fúú az tényleg szuper volt.
(#) kemenygolya válasza sound.man hozzászólására (») Szept 17, 2009 /
 
hát
ilyenem nekem is van
ez fekvő monitor
nekem láb monitor kéne
hasonló mint egy sima hangfal, csak az egyik oldala szögbe van vágva és hátra kell billenteni
dyna 17-est énis hallottam már szólni, illetve az nekem van készen is
viszont 1 TOP ládához kell 2 db 17pwh mert olyat szól
(#) highand hozzászólása Szept 17, 2009 /
 
Az F-16 utánépítése a legnagyobb kihívás...
(#) kemenygolya válasza highand hozzászólására (») Szept 17, 2009 /
 
milyen F16?
(#) highand válasza kemenygolya hozzászólására (») Szept 17, 2009 /
 
Amelyiken két gázturbina van...
(#) sound.man válasza kemenygolya hozzászólására (») Szept 17, 2009 /
 
Biztos elírta. Amúgy az F18 akkor nem is olyan jó? Pedig gondolkoztam rajta, hogy megépítem, de akkor inkább mégse. A hangszóró mögötti részt azt amúgy behangoltad?
(#) kemenygolya válasza sound.man hozzászólására (») Szept 18, 2009 /
 
jó az F18, mivel 1 db tudása felér 4 db 17-essel.
Viszont én még nem építettem meg csak dolgoztam vele.
Szerintem a hétvégén nekiállok és meglátjuk milesz.
Hogy értetted a hangolást?
(#) sound.man válasza kemenygolya hozzászólására (») Szept 18, 2009 /
 
Ahol van a hangszóró, azt a ládát be kell hangolni mint egy bassrefit, olyan 40hz környékére. A tervel én gondba voltam sokáig, viszont a külső méretei fent vannak a dynacord oldalán a lap ami meg a hangszórót tarjta az egyik fórumon megtaláltam. Az mondod érdemes megépíteni? Rutse-t szerinted hangnyomásba leveri?
(#) kemenygolya válasza sound.man hozzászólására (») Szept 18, 2009 /
 
hát sztem igen
azért egy Dynacord rendszerrel bárki mellé nyugodtan ki merek állni
(#) sound.man hozzászólása Szept 28, 2009 /
 
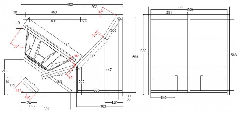
Ez a láda szerintetek milyen? Mert van a sima rutse 15"-os félébe amit ismer mindenki csak abba van hiba... Szerintetek ez jobb lehet? Ránézésre jobb mert nem szükül sehol nem úgy mint a másik rutse.
(#) DJ_Tacee válasza sound.man hozzászólására (») Szept 28, 2009 /
 
Szép "kis" dobozka egy negyvenes hsznek Ha valakinek van tapasztalata, én is várom!
(#) sound.man válasza DJ_Tacee hozzászólására (») Szept 28, 2009 /
 
Úgy érzem, hogy nekem nemsokára lesz vele tapasztalatom.
(#) kemenygolya válasza sound.man hozzászólására (») Szept 30, 2009 /
 
hát
hasonlít a 186 HORN ládára nagyon is
bár én akkor is maradok a Dyna rendszernél
(#) Andreas89 hozzászólása Okt 9, 2009 /
 
Helló
Erről a ládáról van valakinek tapasztalata/élménye? esetleg egy 15"megvalósítva milyen lehetne?

X1 Sub
(#) kemenygolya válasza Andreas89 hozzászólására (») Okt 9, 2009 /
 
szia
rendszerbe elég szépen szól.
Rendszer alatt azt értem, hogy a hozzá tartozó szélessávú ládák, vmint egy DPS proci se árt.
külön viszont nem a legjobb, vannak az RH-nak sub ládái, amilyen kicsik, olyan jók. 400/800-as hangszóróval szerelve.
(#) Tujmi hozzászólása Nov 14, 2009 /
 
Sziasztok!

Mult héten megérkezett a két RCF LF18451 tipusu hangszóróm amit a képen is láthattok.

Kérdésem hogy milyen ládába tegyem bele hogy kihozzam belőle a maximumot?

két tervet is mellékeltem vajon melyikben lenne a legjobb ?
Következő: »»   28 / 74
Bejelentkezés

Belépés

Hirdetés
XDT.hu
Az oldalon sütiket használunk a helyes működéshez. Bővebb információt az adatvédelmi szabályzatban olvashatsz. Megértettem