Fórum témák
» Több friss téma |
Üdv Zoltán majdnem olyan jó a géped mint az enyém
![]() ![]() .Félre téve a tréfát, gratulálok nagyon szépen működik az enyém is olyan jól adja a cukrot hogy szinte 1 Méteröl is lehet folyamatosan szedni a vattát!!. Te mivel hajtatod a fejet milyen megoldással arról is rakhac fel képet mint hogy én tetem .Íme az én általam készített gép fejéröl a rajz remélem tudok másoknak evvel segíteni A hozzászólás módosítva: Nov 19, 2012
Helo.Azt szeretném kérdezni ,hogy a felső kupak rögzités hogy kell?Kösz.
Mindezeket csak esztergán lehet megoldani? A hozzászólás módosítva: Nov 19, 2012
HEHE... jó vicc
![]() Köszönöm szépen! Én is gratulálok a gépedhez, jól meg lett csinálva! ![]() Egyébként kedves Gyula... a kis propeller lapátokat nem az én gépemről láttad el? De őszintén! ![]() Csak azért gondolom, mert mikor én legelőször feltettem a gépem azután írtál nem sokkal, hogy na te is összerakod a géped. Aztán tettél fel egy videót is amihez oda írtad, hogy fejlesztés alatt és ott még nem volt rajta. Na mind1...Igazából ez a fej amelyik a videón is látható, ez az 1. konstrukció. Már kifejlesztettem két másik fejet amelyik sokkal jobban adja a vattát. Ezzel a fejjel ami a videón is van kb 1 perc míg megcsinál egy méretes vattát, de a két új fejjel kb 15-20 másodperc kb 300/óra a teljesítménye. Ezzel a fejjel kb 2 méterről lehet még tekerni a vattát, de a két új fejjel volt már, hogy 5 méterre is elmentem és szépen jött a vatta. Nekem egy 2850 fordulatú centrifuga motor hajtja a fejet és a fej közvetlen a motor tengelyére van fogatva. De az új gépemen már autó fűtőmotor hajtja áttétellel.
Sziasztok!
Itt vannak a szakrajzok az 1. cukortálról, ez is nagyon jól működik, de a másik kettő termelékenyebb, csak azok még nincsenek lerajzolva, de majd ha le rajzolom őket fel töltöm azokat is. A feltöltött videómon is ez a fej van. Elnézést a sötét kép miatt, este fotóztam, csak most volt rá időm, de majd töltök fel jobbat. Aztán a maszatos szakrajz miatt is bocs, csak e-rajzokról gyártottam a műhelyben a cukortálat és kicsit össze piszkoltam. Az 1. - 2. képeken a fedél van. A 3. - 4. képeken maga a cukortál. Az 5. képen pedig a távtartó látható. Ha valakinek valami kérdése van nyugodtan írjon. Sok sikert!
Szia.Azt szeretném kérdezni,hogy azokat a réseket maga a távtartó ill.a ház külömbsége adja meg?-azok a rések amik az előző hsz. láthatoak-
Köszönöm.
Heló!
Ez úgy van, hogy a fedél és a cukortál között teljesen körbe van egy kis rés, mivel a fedél átmérője 89.4 mm, a cukortál felső részének a belső átmérője (A TETEJÉNÉL) 91 mm. A távtartók pedig értelemszerűen azért kellenek, hogy azokra fekszik fel a fedél. A távtartók hossza pont akkora, hogy amikor összerakod akkor a fedél éppen annyira esik bele a cukortálba, hogy a felülete pontosan egy síkban van a tál oldalának a tetejével. Itt közben észrevettem, hogy a tegnap este feltöltött képeimen nem egészítettem ki egy két méretet, de majd ma javítom. Ugyan is miután kész lett a tál még volt rajta egy apró módosítás és az a rajzon nincs feltüntetve. De gyorsan le is írom. Az 1. képen két méret van a fedél átmérőjénél, a 89,4 mm a helyes. A 3. képen pedig oda szerkesztettem a tál felső részéhez, hogy a fal vastagság 1 mm, azt rosszul írtam, mert 1.5 mm a falvastagság, de csak a tetejénél, Lentebb a rádiusz felett már 2 mm (de ezt a rajzra is oda írtam), így lesz kúpos a fal belülről. Tehát, ha összerakod a tálat, akkor 0.8 mm -es rés lesz körbe a fedél és a tál között. Amúgy nem tudom te melyik résekre gondoltál, mivel a rajzon sehol nincs berajzolva semmilyen rés. A hozzászólás módosítva: Nov 20, 2012
SZia.Megértettem és kösz.Az ezelőtti h.sz. v-ki talán réseknek irja azokat a bevágásokat ahol a vatta elhagyja atálat.Erre utaltam én is,mivel a rajzokon nem láttam ilyen bevágásokat ill. réseket.
"Egyébként kedves Gyula... a kis propeller lapátokat nem az én gépemről láttad el? "
Ne haragudj barátom de sajnos nem a tiedről láttam a a kis lapátokat, hanem minden profi gépen van . Íme pl: egy kép és a linkMint ez . Viszont várom ill várjuk azt a igazán jól működő fejről a képet ha nem titkos ![]() Nem emlékszem hogy valahol is láttuk volna a gép belsejéről készült képeket már mint a lehajtásroll. Evel nem igazán ékeskedtél ,mert szerintem sokat érdekelne Én raktam fel róla képet és ha valakinek kel még valami részletes természetesen újra teszek fel és segítek mindenben mindenkinek. Hát nem erről szól ez a kis fórum, hogy meg osszunk minden tapasztalatot egymással. Remélem nem sértettem meg senkit ha igen ősszinte elnézést A hozzászólás módosítva: Nov 20, 2012
Én tudom, hogy te milyen résekről beszélsz... nem vagyok hülye! De te ezt írtad arra a hozzászólásomra amelyikhez feltettem a rajzokat. (idézem) --> "-azok a rések amik az előző hsz. láthatoak-" ezt úgy lehet érteni, hogy te a rajzokon valahol látsz kis réseket! Azért írtam azt amit!
Értelmesebben kellene írni.
Értelek!
De egy "profi" géphez nem feltétlen kell, hogy legyen rajta ilyen kis lapát. Mondtam, hogy a másik 2 profi fejet még nem rajzoltam le, csak vázlatosan magamnak, hogy le tudjam gyártani. De ezek már tényleg annyira jól működnek, hogy aranyat érnek. Annyit elmondok, hogy mind 2 spéci fejből 2-2 féle konstrukció van legyártva. Az egyik fajtát lánggal lehet melegíteni (úgy mint amelyikről a képeket is feltettem) a másikat viszont nem lánggal, sem fűtőszállal, hanem... mással! ![]() De már le írtam, hogy ezen a gépemen ami a videón van, egy 2850 fordulatú centrifuga motor van és a cukortál közvetlen a motor tengelyéhez van rögzítve. Az új gépemen (ami most épül) azon egy autó fűtő motorja van és ékszíjtárcsával, áttétellel van meghajtva a cukortál tengelye. Ezeket még nem fotóztam le, de ha ráérek lefotózom és felteszem. Csak a te kedvedért. De szerintem a gépnek ezt a részét a legegyszerűbb kitalálni és kivitelezni (mármint a meghajtást) és szerintem aki ennyit nem tud magától kitalálni és megcsinálni az hozzá se kezdjen a gép építéséhez! De próba szerencse... a remény hal meg utoljára!
Francis hogy haladsz a gépel és te köbzoli ?????
Nem meséltek semmit csak be néztek az oldalra!
Szia én bevallom még sehogy.
Köbi nem tud válaszolni, mert csupa cukorragacs a keze és bajca...
Halót (pihen)* az oldal gyerekek ezt nem hiszem el hogy senkinek semmi mondani valója nincsen ?
*Szerkesztve. A hozzászólás módosítva: Dec 4, 2012
Heló mindenkinek!
Már egy jó ideje tervezem, hogy én is összehozom a magam kis vattacukor gépét... Most hogy végig olvastam az összes hsz-t és nagyjából letisztult az egész, el is kezdem. Először szeretném beszerezni a motort, de már ezzel kapcsolatban is lenne pár kérdésem. Autó ventilátor motort vennék. Bármelyik jó amit találok vagy az is lehet hogy rossz vételbe futok? (igazából a ford.szám. miatt aggódok mert netes hirdetésekben írják hogy miből van kiszedve de ilyen adatot senki sem tud mondani ) Megérné elmenni inkább egy bontóba? Áttét nélkül szeretném megoldani potis ford.szám. szabályozással. Előre is köszönöm a válaszokat! Ja és az elkészült gépekhez gratula, mert amikről videót láttam azok gyári szinten üzemelnek!
Heló!
Arra a ventilátor motorra gondolsz ami a vízhűtőn van rajta? Mert ha igen, akkor mondok egy jobbat! --> autó léghűtő-fűtő motorja, de azt csak áttétellel lehet megcsinálni, mivel ezek a motorok kb 1400-1500 ford/min a vattacukor géphez pedig kb 3000 ford/min szükséges. De a ventilátor motor is jó, de azt is csak áttétellel lehet megoldani. Sok sikert a géphez!
Tyson05, nem tudom hogy jól értelmeztem-e a rajzaidat, de a te cukorszóró fejed magassága az aljától a tetejéig (nem a lángvédő palást aljától, hanem a melegítendő rész aljától) 1,4 cm? Azért kérdezem mert az enyém arányit szeretném egy már bizonyított cukorszóróéhoz igazítani.
![]() Ja igen, és már annyiban haladtam, hogy szereztem egy motort (230V,100W,5000 1/min), hozzávaló fordulatszám szabályzót és kapcsolókat. A melegítés képe is kezd összeállni. Egy ilyen rothenberger lágyforrasztót szedek szét annyira, hogy egy csővel a fejét a megfelelő helyre tudjam irányítani. Csak azzal van gond, hogy egy kicsit féltem a csövet mert megolvadhat. Ezzel valakinek van már tapasztalata? A hozzászólás módosítva: Dec 8, 2012
Igen, így van. De az lehet nagyobb is csak túl nagy ne legyen.
Milyen motort használsz? Nem tudom pontosan milyen lángforrasztóra gondolsz... a kis kézi gázlámpára vagy a komolyabb láng hegesztőre? Mitől is félsz, hogy milyen cső olvad meg?? Ne gumicsővel vezesd el a fejet a cukortál alá, hanem réz vagy alucsővel.
Ez a motor egy laborcentrifugából volt kiszerelve. Még nem kaptam kézhez, lehet nem is jó, de persze akkor nem veszem meg. Egy ilyesmi gázégőt fogok használni, bár az enyémnek egy kicsit más a felépítése. A legvégső fém elemeket szereltem be, és így a palackra szerelt része és a "lángszórófej" közé tennék egy csövet, hogy be tudjam vezetni a a cukorszóró alá. Ez még annyiban nem biztos, hogy jövőhéten hozzájuthatok egy másik gázégő fejhez, ami nem erre való ugyan, de egy csőre rá lehet szerelni, és azon már van az égőfej előtt egy rézcső ami megoldja a problémát.
remélem sikerült megérteni, a kissé problémás magyarázat ellenére...
Bocsi, de ezt még hadd osszam meg Veletek!
Hátha valakinek ez az ötlet is bejön. De vajon mivel fűti az öreg? Mert hogy nem villannyal és nem gázzal az tuti! Még a végén kedvet kapok én is a nyalakodáshoz
Értelek!
![]() Ilyen gázégőkből érdemes csinálni, mint amilyet mutattál. Csak ezekből is van sok fajta és érdemes azt a fajtát választani amelyiket a legkönnyebb átalakítani. Ha leszereled az égőfejet a gázlámpáról és elég kreatív vagy, meg lehet oldani, hogy rászerelj egy kis réz vagy alu csövet, ami elég hosszú ahhoz, hogy már olyan távolságra legyen a lángtól, hogy mehet rá a gumicső.
Üdv barátom a fórumon ...
Igen elég találékony ez a kis vattacukorgép amit be linkeltél az oldalra ,de ez még nagyon messze ál a tökéletesen működő géphez .Rengeteg befolyásoló tényezője van egy komplett gépnek pl: a fordulat és a hőfok összehangolása a fejen a megfelelő rés eltalálása .a fej tökéletes kifejlesztése ,a gáz palack és a fej közti összekötés az egész váz szerkezet legyártása kapcsolók ,a melegítő fej begyjutása szóval rengeteg ,,, Szóval sók sikert a gép építéséhez ,én úgy gondolom hogy aki összerakót egy működő gépet az tudja igazán hogy mennyi időt és energiát és nem utolsó sorban kreativitás hozzá sokszor már kiborító .
Tyson hogy haladsz az új fejel amit ígértél hogy le rajzolod és fel rakod???
A hozzászólás módosítva: Dec 9, 2012
Aktival én helyedbe olyan gáz lámpát vásárolnék ami nem piezzos csak sima mert ha ilyet vásárolsz az eleve drágább és nagyon valószínű hogy úgyse tudod a szikráztatóját beszerelni normálisan mert olyan mint egy öngyújtóé.Jobban jársz hogy-ha elektromos gyújtást akarsz akor külön vásárolsz egy gyújtót ,vagy egy széjjel buherált konvektorból szereled ki .
Nekem egy ilyen van beszerelve ami begyújtja a lángot.Ahogy Thaysonak is ilyen van tökéletesen működik
Ezt szerencsére nem kellett beszerezni, mert volt itthon, és nincs benne piezo. Csak sajna nem tudtam pont erről a modellről képet találni. Majd ha már legalább a fűtő rész összeszerelésével meg vagyok, akkor lehet lövök róla pár képet, hátha jól jön valakinek.
![]() Ja viszont konvektorom nincs de azért megpróbálok nézni valahonnan egy piezot, mert semmi kedvem öngyújtóval begyújtani.
Miért nem használtok elektronikus gázgyújtót? Egy baby elemmel évekig elmegy, indukciós elven működik, kényelmesen kezelhető ha a nyomógombját kihozod valahová a kezed ügyébe. Sok gázboylerben is ilyen gyújt.
Na, lassan megjön a motor a postán, viszont addig szeretném megcsinálni a cukorszóró fejet.
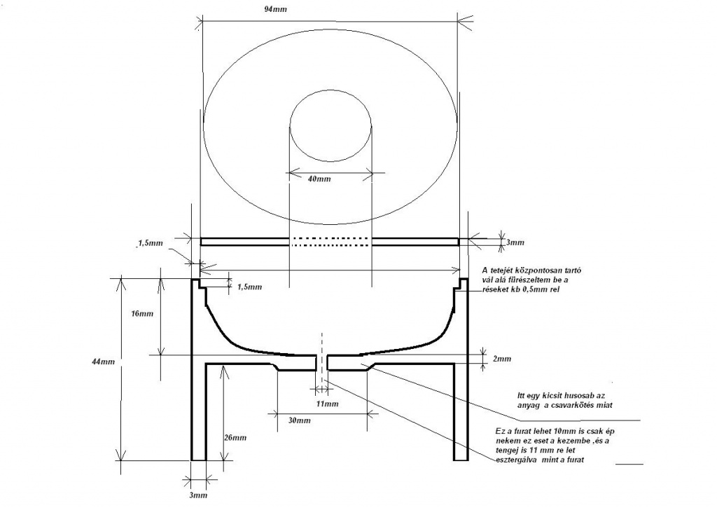
Szeretném ha elsőre jó lenne, ezért lerajzoltam, hogy véleményt mondjatok róla. Kicsit egyszerű, de a lényeg hogy működjön. Azt még hozzátenném, hogy megpróbálok minél többet kész cuccokból összehozni, ezért az átmérőjén nem tudok változtatni. De így is kb. 0,8 dl fér bele (úgy hogy a réseknél nincsen). Az egyetlen amit nem tudok hogy ki tudja-e dobni a cukrot vagy sem. (a szélesség-magasság arányt az oldalon tatált működő fejek átlagához viszonyítottam.) A motorom max 5000 1/min-t bír de majd állítható lesz.
Szia
![]() Az én véleményem és tapasztalatom , mondom ez az enyém ,mindenki úgy csinálja ahogy alkarja. Úgy látom hogy a fej cukortároló magossága 23 mm er eböl lefele fűrészelnél 5 mm ami elég sok nekem ,itt meg kérdezem hogy milyen szélesek lesznek a befűrészelt rések ????? És maradna a cukornak 18 mm ,de minek akkora 0.8 centes majdnem egy deci cukor én kb 3 centes pálinkás pohárral öntök bele és elég nagy vattacukrot csinál így is .Egy gyermeknek bőven elég meg ha olyan magos a fej annál nagyobb láng vagyis hőfok kell hogy a kicsapódó résznél pont jó legyen a fok .Persze nem tudom milyen anyagból akarod a fejet meg csinálni .Kiszaladok csinálok is egy vattacukrot ... itt is vagyok A hozzászólás módosítva: Dec 11, 2012
|
Bejelentkezés
Hirdetés |





.



Na mind1...





) Megérné elmenni inkább egy bontóba? Áttét nélkül szeretném megoldani potis ford.szám. szabályozással. Előre is köszönöm a válaszokat! Ja és az elkészült gépekhez gratula, mert amikről videót láttam azok gyári szinten üzemelnek!





