Fórum témák
» Több friss téma |
Mielőtt kérdezel, a következő két dolgot ellenőrizd!
I. A helyes tápfeszültségek megléte.
II. A kimeneten van-e egyenfeszültség.
Élesztés.
Helyes a megfigyelésed, a végfok nagyjelű erősítőjének topológiáján múlik a szóban forgó ellenállás és a hozzá kapcsolódó kondenzátor szükségessége.
Letöltöttem. Paintba oda írom majd az eredményeket és vissza töltöm fel
Elég ha a pozíciószám alapján jelzed a durva hibát, addig ne ássunk mélyebbre.
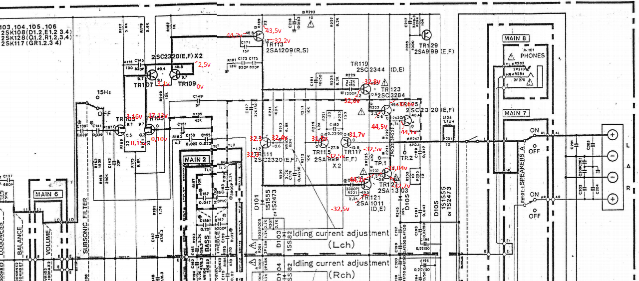
ez az oldal pont müködik a rossz oldal a t114,tr108,tr110. de lényegtelen megjelölöm a rajzon végülis tükörképpe a másik.tr 108-110. nem az ami a rajzon van.Gyárilag más van ott.2sc2320van hanem. valam (603 45r) jelzésü kis tranyó.
A másik csatornának hiányos a rajza, így a tükörképnél kell maradjunk.
A tranzisztorok helyén állhatnak helyettesítő típusok, nem zavaró.
itt a foto a mérések biztos jók. és pozicio helyesek is (műszer comja gnd re kötve .)
Remek! A TR113-nak megfelelő pozícióban lévő tranzisztor hibás, vagy rosszul ültetted be ha cserélted, vagy szakadás van pont a kollektor ágában.
megcseréltem a 2 tranzisztort. a jó oldalból a rosszba. akkor lecsökkent a feszkó a kimeneten 18v. ra. de az égő neki kezdett világítani. jelzem. 2 új tranyom is van mind a 2 -vel úgyan azt csinálja .lehet rossz az új tranyó ?
Nézd meg a tranzisztorokat diódavizsgálóval! Ha a cserétől változást tapasztaltál akkor valamelyik bizonyára nem jó, vagy a lábkiosztásuk más beültetési módot követelt volna meg.
Bővebben: Link
máskép nem tudod beűltetni bordás tranzisztor értékre úgyan azt mutatja ,mint a másik tranyonál. de valami mégsem kerek...
Akkor nézzük, milyen típusú amit pótlásnak vettél?
Szerk.: Mi az hogy bordás tranzisztor? TO-92-es nem? A hozzászólás módosítva: Nov 11, 2015
Hogy ércsd is . Hűtő bordára kell fogatni igy kozárva hogy forditva űltesem be. Igen to-92
Attól még lehet CBE, EBC vagy ECB lábkiosztása a toknak a lapoláshoz képest, szóval milyen tranyóval pótolsz?
Üdv, új felhasználó vagyok. Egy olyan erősítőre lenne szükségem ami egy mobil telefon mikrofonból, egy pótméterrel állítható erősítőből és egy hangszóróból áll. egy nagyon halk sípoló hangot kellene felhangosítani, ami egy kb: 2mm lukon jön ki. Sürgős lenne. Köszönök minden segítséget.
Akkor ez TO-126 és hővezető pasztával szerelve van esély, hogy túléli a tartósan negatívra billent kimenetet. Minden esetre a multiméteres tranzisztorvizsgálatot ne mulaszd el, mert a mérésed szerinti 0,7V bázis-emitter feszültség mellett nem lehetne ennyire lezárt állapotban.
A TR105 mérési eredményinél hiányolom, hogy a kimeneten tapasztalt negatív feszültség nem jelenik meg gate lábán. Ebben fóliaszakadás vagy C147 (a gyakorlatban C148) hibája játszik közre. Az utóbbi a kondi alacsony feszültségtűrése miatt különösen gyanús, egyben megmagyarázza a cserélt tranzisztorral mért 18V kimeneti feszültséget. A VR108-at tekerd el R214 felé, az élesztés ezen szakaszában legyen minimális a nyugalmi áram!
Szia! Látom vándorolsz a kérdéssel, ez el is tart addig, míg el nem jutsz a PWM erősítő témába. A leírtak alapján az IC kevés eséllyel élte túl a gate zárlatot, minden esetre áramkorlátos táppal rá kell indítani és szkóppal követni az eseményeket.
Szkópom az nincsen. Az IC1B-re gondolsz? Kicseréltem a két Fet-et plusz az elégett ellenállást és 6.8v van a kimenetén.
Ez is erősítős téma nem?? A hozzászólás módosítva: Nov 11, 2015
Apróka gond, hogy a mikrofonból nem jön ki semmi. Az az bizonyos luk, az a mikrofon iránykarakterisztikáját állítja be. A maroktelefonon a hangszóró a telefon másik végén van, és annak a lukja nem is olyan kicsi.
Ha készítesz egy elektret mikrofonnal, előerősítővel, végerősítővel egy kis készüléket, azzal meghajthatod a hangszóródat. De jobban járnál, ha a fejhallgató kimenetét használnád erre a célra, arra csak egy integrált végfokot kellene rákötnöd, ami meghajtja a hangszóródat. ilyet jónéhányat találsz itt az oldal HEStore -jában, a kívánt teljesítménynek megfelelőt. A kiválasztott monolit erősítő adatlapján a szükséges infókat, és kapcsolást is megtalálod. A hangerő szabályzást vagy a telefonnal, vagy egy potméterrel megoldhatod, mindjárt a végfok IC előtt. A hozzászólás módosítva: Nov 11, 2015
Valami olyasmi, sajnos elég homályosak a feliratok. A témájában talán tudnak segíteni a kollégák.
Rendbe átnézem a pontokqt és megprobálom hátha találok valamit.és köszönöm a segitséget
Köszönöm a választ, de nekem nem mobíltelefonhoz kellene hanem egy csekkoló ami sípol ha indítja a járőrt és az nagyon halk. Ezért kellene valahogy felhangosítani. A mobíltelefon mikrofonjára azért gondoltam mert az elég kicsi ahhoz, hogy azon a kis lukon kijövő sípszót felerősítse.
Hozzáértő segítséget szeretnék kérni egy házimozi javításával kapcsolatban.
Philips HTB9245 2.1 házimozi, nincs a magas sugárzókban hang. A hiba leírása: Bekapcsoláskor megjelenik a philips felirat ezután mindig egy pukkanó hangot ad ki a két front hangszóró majd elhallgat. Ezután bármilyen eszközről vagy bemenetről próbálok hangot kierőltetni a rendszeren, csak a mélyen keresztül jön megfelelő hang, a magasokból semmilyen zaj vagy hang nem szűrődik ki. Minden egyéb funkció működik, kép tökéletesen tiszta. Wifi, Lan, BT, USB működik. Az interneten talált javítási manual szerint a tápfeszültségek mindenhol megvannak . Két IC állítja elő a hangot TAS5538 és TAS5612. Minden mérőponton megfelelő a feszültség szintek. Sajnos nem tudom hol kellene folytatni a mérést. Lehet hogy a digit erősítő meghalt ? vagy az azt megelőző fokozat ? Vagy csak valamelyik passzív alkatrész zárlatos? Rendeltem minkdét IC-ből végső esetben kicserélem, viszont ha nem szükséges ezeket a TSSOP tokokat nem szívesen bántanám. Hogyan lehetne pontosan detektálni a hibát ? Segítséget előre is köszönöm!
Hali!
Már tuti járt itt párszor ez a kapcsolás de jelenleg nincs időm végigolvasni mind az 1814 oldalt... A kérdésem az lenne, hogy ez a kapcsolás hány W os?
100W 8Ohm, és Quad 405 a neve.
Sziasztok! Ha tudtok ötleteket adni a következő problémára az jól jönne!
Akai AM U310 erősítőm jobb oldala csak nagyon halkan szól. Ha a hangerőt a maximumra teszem akkor a kivezérlés jelzőn is tud mutatni valamit de kisebb hangerőnél semmit. A készülék most került hozzám, így ha van valakinek kapcsolási rajza azt is megköszönném.
Szia! Khm... google találatok ötödik sora
![]() Bemenetválasztó, hangerőpoti, végfok, így ebben a sorrendben kövesd a bemenetre adott jelet. A hozzászólás módosítva: Nov 13, 2015
A balance-ot tekerd középre!
Igen az megvan, de arról nem tudtam beazonosítani a tranzisztorok pontos típusát. Bár ahogy belenéztem a masinába talán leolvasható még a felirat róluk.
A bemenetválasztók azok gombok. Nézzem meg hogy mindegyiknél előfordul-e a hiba jelenség? A hangerő potméter működik ,nem serceg, nem recseg, a hangerőt tökéletesen szabályozza. A balansz potméter mindkét oldalra kitekerve működik, ez sem serceg és nem is recseg. Jobbra állítva a bal oldal néma, csak a jobb oldal szól max hangerőn is csak meglehetősen halkan és talán kissé torzabban. Bal oldalra állítva bal oldal szépen szól, jobb oldal néma. Egyenlőre ennyit tudok, holnap megnézem hogy a végfok melyik lábára kell hogy menjen jel, bár szerintem eljut oda ahova kell csak valamiért kevesebb mint amennyi kéne. A hozzászólás módosítva: Nov 13, 2015
|
Bejelentkezés
Hirdetés |










