Fórum témák
» Több friss téma |
Fórum » Transzformátor készítés, méretezés
Ha kérdésed van, az alábbiak segítenek a hatékony választ megadni:
Mag típusa: M, EI, UU/LL esetleg I-kből összerakott, tekercselt, toroid. Lehetőség szerint képpel.
Méretek: magkeresztmetszet a*b (amit a tekercs körbeölel) ablakméret, lánc és toroidnál, belső-külső méretek.
Primer-szekunder feszültség(ek), teljesítmény igény.
Helló!
Húúú....jó kérdés! Amire nekem kellene, ahhoz általában egy mikrohullámú sütő transzformátorát alkallmazzák (szerintem kicsit veszélyes ez) - sajna én így fejből nem tudom, milyen Hz szám van alapból. Ez az adat egy amcsi modellról van (Allanson 2721 modell 620) és ehhez hasonló közelítő modellt keresek idehaza. Életvédelmi szempontok elsődlegesek, ezért is nem akarok egy fapados verziót. Pl ilyet tutira nem akarok! házilagos készítés üdv: mityku
A mikro trafó kimenő oldala 2500 V 50Hz. Mivel "sima" hálózati trafó, a hálózat elvileg 250 V 50Hz, ezt tízszerezi. (ingadozás lehet, sőt van de amihez kell gondolom nincs jelentősége) Valóban veszélyes, de attól tartok hiába ötleteltem feljebb, ami elég teljesítményt tud az nagyobb frekvencián sem biztonságos. (Mondjuk egy nagyobbacska TV trafó ZVS meghajtással pl.) Azaz meg tud vágni rendesen az is, csak ha jól tudom az 50 Hz közeli érték különösen veszélyes a szívre, emiatt talán jobb a nagyobb frekvencia. De ha ilyesmiben töröd a fejed az biztos, hogy nagyon észnél kell lenni. Ahogy nézegettem meg is vizezik a fát, szóval bárhol lehet áram a munkadarabban. Mikro trafóm van nekem is, meg sokan hirdetnek. Az olcsó és egyszerű. De veszélyes, ez tény, légy óvatos!
Szia!
Nekem az a véleményem, hogy tekercseltess egy trafót inkább, mert a mikró-trafó kicsit gyenge is és alapban sokat is fogyaszt. A tekercselés kivitele sem valami világi a te szempontodból. Kicsit vékonyabb primerrel és legalább 20 %-kal több menettel kellene újratekerni, a szekundert szintén és normális sor-és oldalszigeteléssel ( margin ). Így a teljesítmény tuti elég lenne az általad mutatott amerikai trafóhoz viszonyítva. Annál is csak a kivezetés az, ami nagyon megfogott téged, persze a "bele" is valszín beöntött lehet. Ugyanezt te is, ill. egy tekercselő szakember meg tudná oldani. Az az érzésem különben, hogy nagyon leállsz csak a trafónál életvédelmi szempontból, holott a kezelésen legalább annyi múlik: a munkaasztal elszigetelése a földtől, ill. a munkaterület alapjától, az "elektródák" mozgatása se akármi. Ha már a primer rész biztonságos, ezeken még ugyanúgy el tudsz hasalni, ha a szekundered hozzávezetése, vagy a kezelés trehány. Ahogy a videón elnézem, egy puha nagyfesz kábel ugyanúgy lényeges, mint a többi részlet, a megfogásról, elektróda vezetésről nem is beszélve. Odafigyelés nélkül bármilyen készülék is meg tud vágni, akár gyári, akár "fapados".
Sziasztok!
Köszönöm a hozzászólásokat! vargalaszlo0405 : amivel bekenik a fát, az szodabikarbóna és víz keveréke Ez jobban elősegíti a elvileg a "minta" kialakulását" aa fa felületén, ez azért kell. ferci: szigetelés szempontjából olyanra gondoltam, hogy adott egy faasztal és azon csinálnám majd (akár egy vastagabb gumilapot tenni a "megmunkáladó" falap alá - nem tudom ez így számítana-e). Magát az elektródákat normál módon rácsiptetni a falap két tetszóleges pontjára vagy volt olyan videó is, amin a falapba 2 szeget ütöttek be és arra csíptették az elektródákat. (maga a folyamat közben nincs hozzányúlkálás, csak áramtalanítás után) Ezt még talán be is vállalnám - érintésvédelmi szempotból! "picit" biztonságosabbnak tűnő verzió Erről véleményetek? mityku
A trafó " becsomagolása" nem is lehet kérdés. Azt hittem, a kinézetén akadsz fel. Nyilván egy asztalra dobva nagyon fapados.
Amin pedig a tömeg fennakad: hiába írod, hogy működés közben nincs nyúlkálás. Az előző videódon igencsak mozgatták az elektródákat. Az fő gondot egyébként ott látom, nem nagyon látod, mivel állsz szemben - utalva pl. arra a kérdésedre, hogy a " Hz szám"-mal se vagy tisztában... A hozzászólás módosítva: Márc 24, 2017
A videó magáért beszél, a képen meg is jelöltem hogy a mikró trafója ebben a formában miért nem jó. A főágak mentén ahova piros nyilakat tettem konkrétan szénné ég a fa, ami annak a jele hogy ott nagyon nagy áram folyik. Ugye kellene hozzá 10kV-on 23mA, a mikró meg nyomja 2,5kV-on ami a csövön kifér. Nekem nem egyértelmű a videóból hogy tesz-e a szekunder körbe valami áramkorlátot (ellenállást) vagy sem.
Szóval lehet hogy a mikrótrafó is jó lenne egy az egyben, csak korlátozni kellene az áramát, meg vagy többet, vagy kevesebbet kellene rákenni a fára abból a lötyiből. De most adtak nekem egy jó ötletet előlapok készítésére, hangsugárzókon egész jól mutatna ha gondosan van megcsinálva, és valami jóféle lakkal vagy páccal van utána lekenve. A fickó helyében én azt is kipróbáltam volna hogy nem egy pontban csatolom a fára a nagyfeszt hanem egy nagyobb felületen, és akkor lehet hogy nincsenek ezek a szénné égett középső ágak...
Sziasztok!
Elkezdtem szétszedni egy Krank Revolution erődítő leégett hálózati trafóját. Nincs csévetest, és egy fadarabbal volt kiékelve. Ez egy megszokott módszer?
Nem jellemző, de láttunk már hasonlókat.
![]() Nyilván péntek délután készült, a műszak vége előtt pár perccel. Üdv!
Az oroszok készítettek előszeretettel cséve nélküli trafókat, hogy még a csévével is spóroljanak.
Volt egy vastagabb karton vagy műanyag borítás a magon, vagy csak néhányszor körbetekert prespán, és arra tekerték a huzalt. A végén pedig kiöntötték az egészet lakkban, meg festékben.
Régen az ORION is ilyen cséve test nélküli trafókat készített, és lakkal sem volt kiöntve. Volt egy kollégám aki az orionban dolgozott, cséve és sorvezető nélkül tekerte a trafókat, csak néztünk. Igen ők még igazi szakik voltak.
Sziasztok!
Tudna-e valaki segíteni nekem egy trafó beazonosításában? Semmi nincs ráírva egy számsoron kívül, 1-442-154-12 illetve hogy Made in Japan. A kivehető teljesítményre lennék kíváncsi.
Szétszedtem, és megnéztem a huzal átmérőket.
Az anód: 0.3 mm és 2* 360(kb) V volt Bias: 0,25 mm elvileg 50 V Fűtés: 1,3 mm duplán 6,3V. A reléknek, + egyéb: 0,7 mm 12V. Találtam egy trafót. Ezzel hejettesíthetem? http://www.uraltone.com/power-transformer-ta3250-6-194va.html Az 5881 csőnek 0,9 A kell a fűtésnek. A 4 db 12ax7 1,2 A-t igényel Össz 4,8A Ez egy Krank Revolution erősítő 4x5881 + 4x12ax7 csővel. A hozzászólás módosítva: Márc 25, 2017
Szia!
Egy fénykép a trafóról sokkal többet mondana,mint ez a számsor.Ha lehetséges,mérd le a vaskeresztmetszetet.Abból már lehet a teljesítményre számolni.Az sem melléke,hogy milyen gépből való a trafó. István
Szia! Jelenleg nincs lehetőségem megmérni, de azt tudom, hogy egy Sony STR7025-ből származik.
Helló!
Igen sajna nem vagyok az elektronikában jártas. ![]() Nekem maga a technika (fára égetés ezen módszere) tetszett meg és elkezdtem utánaolvasni illetve a véleményeteket szerettem volna kikérni. Ge Lee: szerintem rohadt jól mutat mindenen! Én egy nagyobb deszkát szeretnék a falra felrakni ilyen mintával.
Szia! Akkor mi az a 160W jelölés a burkolaton?
Hát ha ilyen kicsike a transzformátor, akkor nem lesz belőle erősítő.
Üdv,
Itthon tudtok olyan gyártót vagy forgalmazót, ahol lehet hiperszil magotkat kapni?
SE130a körüli méret kellene és több darab egyforma (10-12db).
http://hangfaljavitas.hu/transz.html Köszi,
Ettől nagyobbak vannak, de nincs is belőlük több db, mindegyikből egy vagy kettő.
Szia!
A szódabikarbóna gyakorlatilag azt a célt szolgálja amit más só is, a víz vezetőképességét fokozza mivel ion forrás, -elektrolit-. A mikro trafó mindenképp veszélyes, komoly teljesítménye van. De jó lehet, csak nagyon fontos betartani minden óvintézkedést. Ha mozgatni, ide-oda kell tenni az érintkezőket menet közben azt meg tudod oldani ha egy hosszabb 40-50 cm es pvc csőre szereled a kivezetést és azzal "nyúlkálsz". Így tuti elég messze leszel a nagyfesztől. A fa szárazon sem elég biztonságos szigetelő anyag! Nem tudhatod mennyi a belső víztartalma. (sohasem nulla) Tehát ha tudod a trafót műanyag tartályba tedd és ha megoldható olajjal töltsd fel. Az asztal amin dolgozol sem mindegy miből van, mivel érintkezik. Ha pl. veled, akkor "megkínálhat" és esetleg ott maradsz... Szóval a gumilap jó ötlet, de valami vastagabb kell. És ha szivárog a folyadék amivel megkened, az szintén remekül vezeti az áramot. Tehát légy roppant körültekintő. Esetleg meg lehetne próbálni a TV trafót ZVS meghajtással. Találsz itt kapcsolást hozzá: "nagyfeszültség előállítása tv sorkimenő trafóval" azt hiszem ez a topik cím...Ott kisebb a teljesítmény, de nagyobb a feszültség kb 10-20kV. Talán kevésbé veszélyes de az sem játék! Ferci megállapítása jogos, ne vedd rossz néven, érdemes tisztába kerülni azzal mivel fogsz dolgozni, hogy tudd miért és mire vigyázz. Ha ezzel megvagy nagyban javulnak az életben maradás esélyei És a sikeré is természetesen. Üdv: Laci
Lefényképeztem egy ilyesmi trafómat, a szekunder kivezetések szigetelésének vastagságát sem árt megfigyelni, olyan mint a gépjárművek gyertyáinál.....
A hozzászólás módosítva: Márc 28, 2017
Jogos! Azt is meg kell valahogy "kulturáltan" csinálni mert ami gyárilag a mikró trafón szekunder kivezetésein van szigetelés, az nem elégséges ha ilyesmit akar a kolléga építeni/csinálni.
Üdv!
Van egy nagy toroid fojtótekercsem. 1,3mH 35A-es. Méretei: 15,5cm átmérő 6,5-7cm belső átmérő 5,5-cm magasság (ezek nem teljesen pontos méretek) Mekkora teljesítményű trafó tekercselhető belőle? (500W-ra lenne szükségem.) Előre is köszi!
Szia!
Itt vannak trafó kész méretek, ezek alapján ki tudod következtetni kb. mekkora teljesítményű lehet... Üdv, L
Köszönöm!
Kerestem ilyeneket, de sehol nem találtam!
Sziasztok!
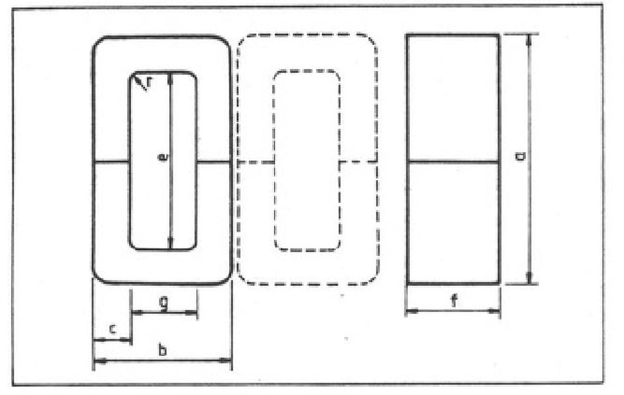
Van egy „hiperszil” trafóm és próbálom megállapítani a teljesítményét. Találtam katalógusadatokat, de ezt a magot (trafót) nem tudtam beazonosítani (egy régi Orion számítógép terminálba volt). Ezért a teljesítmény meghatározásánál a vasmagkeresztmetszetet vettem alapul, ami 11,4 cm2. Kialakítását tekintve SU szerkezetű és az SU102a típusú vasmagkeresztmetszete közelíti legjobban a kérdéses magot, de a mag mechanikai adatai köszönő viszonyban sincsenek a katalógus adataival. Ebből próbáltam meg visszavezetni a teljesítményét, amit 590W-ra ad meg. A trafómag adatai a katalógusban használt betűjelölésekre hivatkozva a következők: a = 123 mm b = 73 mm c = 19 mm e = 86 mm f = 60 mm g = 35 mm A kérdésem az lenne, hogy lehet ez a trafó minimum 590W ? További anomáliákat szül, hogy a trafómon a szekunder voltonkénti menetszám 6,3-ra jön ki méréssel, szemben a katalógusban megadott 2,6-el. Köszönöm! A hozzászólás módosítva: Ápr 4, 2017
Párszor le lett már írva, hogy nem a vaskeresztmetszetből számolunk teljesítményt. Az más dolog hogy közvetve az is meghatározza, mert adott az ablak, nem fér bele több huzal. Sacc/kb. 6-700VA körül lehet, mert majdnem pont akkora mint a régi orosz színes TV trafója, csak más a mag formája.
Ha 6,3-as voltonkénti menetszám jön ki méréssel akkor vagy rosszul mértél valamit, vagy durván alul van gerjesztve, vagy a 230V-osnál nagyobb menetszámú tekercset kötöttél a hálózatra. Ennek még 1T gerjesztéssel is 4 menetre kellene kijönni, de ezek akár 1,6T-ig is gerjeszthetők, és ott már közelítéssel jó is a voltonkénti 2,6 menet. |
Bejelentkezés
Hirdetés |
























