Fórum témák

» Több friss téma
Fórum » FIAT elektromos hiba
 
Témaindító: Peti.Janka, idő: Máj 11, 2007
Témakörök:
Lapozás: OK   55 / 66
(#) bbb válasza FordPrefect hozzászólására (») Szept 3, 2017 /
 
Csak halkan jegyzem meg, hogy nem csak itthon ennyi, vagy több a szervízajánlat erre a hibára...
Ők nem fogják neked szétszedni és javítgatni, hanem komplett cserélik a motort, s annak ilyen díja van (emlékeim szerint a bontott 60000-es ár se volt ritka!).
(#) tomcat1976 hozzászólása Szept 4, 2017 /
 
Sziasztok!Vettem egy 92-es 1400-as Tipo-t,de nem működik a hátsó ablaktörlője.Valakinek esetleg van a biztosítéktábla kiosztásáról rajza,vagy esetleg tudja,melyik biztosítékról megy?Amúgy központi záras az autó,de a csomagteret nem zárja, a régi tulaj szerint pedig zárta azt is valamikor.Lehet,hogy a csomagtér ajtóba menő köteg a hibás?Ha valaki vezeték-színekben tudna segíteni,nagyon megköszönném!
(#) FordPrefect válasza bbb hozzászólására (») Szept 4, 2017 /
 
Nem ez a gondom, a szervizek szolgáltatásaiból élnek inkább a márkakereskedések, nem az autóeladásból. Ez akár normális is lehet, normális árakon. A gondom inkább az, hogy diagnózis nélkül, 1 mondat után a szemedbe vágják, mi a hiba, és ez mennyibe kerül.
Hogy ez sok vagy kevés, mindenki döntse el maga. Pesti NEM MÁRKA szervizek 25E körüli árat jósoltak, ha TÉNYLEG le kell bontani a kormányoszlopot. Ehhez képest a 130E kissé sok. És nem is kell lebontani a kormányoszlopot az esetek nagy részében, esetemben sem kellet.
(#) Igazsagoszto hozzászólása Szept 18, 2017 /
 
Sziasztok !
Segítsetek légyszíves ha tudtok.
Fiat Punto I 1.2 16V hibák:
- ingadozó alapjárat olyannyira, hogy néha menet közben gázelvételkor leáll ( fojtószelep ház tisztítást már megcsináltam a helyzet változatlan)
- magas CO érték
- vizhőfok mérő negyednél följebb nem megy ( hőgombát már cseréltem)
- üzemanyag szint mutató ingadozik
- km/h mutató menet közben néha felcsap 200-ig majd leesik 40-re és ott ragad ( ha bal kézzel beleverek a kijelző üvegére akkor helyre rázódik , )

A leírt hibák közül az alapjárat a leglényegesebb, annak megoldásában ha tudtok segíteni nagyon megköszönöm. A többi azért írtam le mert nem tudom, hogy van-e köztük összefüggés, hátha segít a diagnózis felállításában.
(#) FordPrefect hozzászólása Szept 18, 2017 1 /
 
Elektromos kontakt hiba valahol a műszerfalban. Nehéz lesz azonosítani. A biztosítékok is a környéken vannak.
(#) elektrorudi válasza Igazsagoszto hozzászólására (») Szept 18, 2017 /
 
Szia!
Hasonló hibám volt Temprával. Nem tudom mennyire hasonlít a két motor egymásra, de nekem az volt a hiba, hogy a porlasztó és szívócsonk közötti gumilap átégett, a motor falsot szívott. A gumilap kb. 1cm vastag, és csak szétszedés után volt a hiba látható. Ezt a hibát, (látatlanban) egy FIAT specialista autószerelő diagnosztizálta, telefonos segítségnyújtás formájában. Magamtól, az életben nem jöttem volna rá.
(#) Igazsagoszto válasza elektrorudi hozzászólására (») Szept 19, 2017 /
 
Köszönöm a segítséget!

A Tempránál nem lehetett hallani, hogy falsot szív?
Azért kérdezem, mert a Puntónál én nem hallok semmi ilyesmit. A vízhőfok neked is alacsony volt?
(#) elektrorudi válasza Igazsagoszto hozzászólására (») Szept 20, 2017 /
 
Nem lehetett hallani. A motorzaj teljesen elnyomta. Ne arra gondolj, hogy centi széles résen ömlött be a levegő, ami közben sípolt, dübörgött, szürcsögött! A szétszedés után alig lehetett látni, hogy hol lehetett a probléma.
Víz hőfok problémára nem emlékszem.
(#) krisztian0729 hozzászólása Nov 4, 2017 /
 
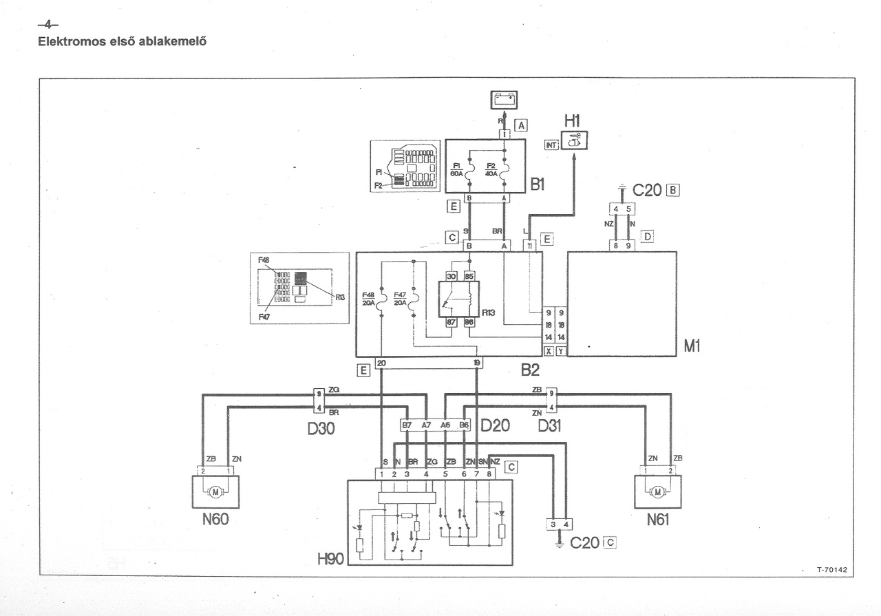
Sziasztok! Valaki tudna segíteni abban hogy egy punto 2 (1.2 16v) jobb oldali elektromos ablak résnyire lelett húzva attól kezdve se fel- se le nem megy! Az emelőmotornál nincs feszültség ,a biztosíték jó!
Előre is köszönöm a segítséget!
(#) gyula166 válasza krisztian0729 hozzászólására (») Nov 4, 2017 /
 
Üdv! Talán ez segít.

K04.jpg
    
(#) krisztian0729 válasza gyula166 hozzászólására (») Nov 9, 2017 /
 
Köszönöm szépen!
(#) Theomo721 hozzászólása Nov 29, 2017 /
 
Sziasztok,
Van egy Stilo 1.4-esem, amin az önindito nyögvenyelösen teker hideg idöben. Az akksi uj, töltesem rendben van. Azt vettem eszre, hogy ha meg inditozas közben lekapcsolom a gyujtast, majd egyböl ujra inditozok, sokkal könnyebben tekeri a motort. Mi lehet a baj? Szenkefe csere+felszabalyozas megoldja? Köszi a valaszokat
(#) VIM válasza Theomo721 hozzászólására (») Nov 30, 2017 /
 
Szia! A fő kábeleket kellene átvizsgálni és azok fémtiszta kontaktusát a csatlakozási pontokon. Tehát a pozitív és negatív ágat az akkutól az önindítóig, ott pedig a test kábel és a motor test kapcsolatát. Az önindító csatlakozó felülete is fontos, hogy fémesen érintkezzen a motorházzal, vagy készíteni kell egy testelő átkötést, hogy ez biztosítva legyen.
(#) Lezli46 hozzászólása Dec 12, 2017 /
 
Fiat Albea 1.2 16V 2004 nem indul!

Az auto gyakorlatilag megfelel a Punto 2. 1.2 16V tipusnak!.

Öninditó intenziven hajt, biztositékok jók, immo LED tartosan ,folyamatosan ég., kulcsok profi kulcsos szerint jók.,Motorvezérlõvel nem leher kommunikálni., Autocom, fiatecuscan.., minden müködik., kivéve az inditåst.

Köszönök minden segitséget.
(#) VIM válasza Lezli46 hozzászólására (») Dec 12, 2017 /
 
Szia! Ezt az írást mindenek előtt érdemes elolvasni.
(#) Lezli46 válasza VIM hozzászólására (») Dec 12, 2017 /
 
Szia!

Még nem tudom mi lesz a vége..,de egy nagyon hasonló,és hasonlóan nagyon hihetetlen eset megtörtént velünk.,csak irásod után ugrott be..,:Tehát az ominozus Punton sokféle javitás volt.., vezérmüszijtól, trafó cserétől a gyertya cseréig bezárólag..,Javitás után ez történt kb : elvitték az autót és bizonyos idő után egyszerüen leállt a motor, és sehogysem indult el., csak ha kiszálltál és levetted az akkusarut és visszatetted., ezt a folyamatot ismételgette végtelenségig.., leállt a motor X idő után ,sarut le és vissza., és pöccre már indult is...,Az elöbbiek miatt, már felvettük a kapcsolatot egy ECU javitóval elküldés céljából..,
Nagyon korrektül mondta hogy Ok.,de elötte keressük meg a kicserélt ,használt gyertyákat és mielött elküldjük az ECU-t., probáljuk ki a régi gyertyákkal!!! Valami spec-ellenállásos gyertyák valók ebbe a motorba!!! Mellesleg két uj gartnitura gyertyával is probáltuk., ráadásul nagy márkákkal.,nem egyforma gyártmányuakkal.,de egyikkel se volt jó., csak ezzel a "R"-es jelölésűfajtával...,Az autó azóta is hibátlanul üzemel..,noha kb jó két éve történt., alig jutott már eszembe ez a rémtörténet..
üdv
(#) VIM válasza Lezli46 hozzászólására (») Dec 12, 2017 /
 
Az "R"jelölés az ugye ellenállást jelölne a gyertya számjelölésében és ebben a parazita gyújtásos megoldásban fontos, hogy az áram értékek ellenőrizhetőek legyenek a motorvezérlő számára. Akkor talán feltehetően meg lesz oldva a probléma?
(#) Lezli46 válasza VIM hozzászólására (») Dec 13, 2017 /
 
A Probléma meglett oldava...,néhány furcsa mellékzöngével...,kiváncsi vagyok hihetőnek találjátok-e..,mert annyira hihetlennek tünik elsőre.., de csodák vannak mint tudjuk..
Kiindulási állapot : Fiat Albea 1.2 16V 2000., (Kb F.Punto mk2-nek felel meg)..,tréleren érkezik.,öninditó hajt,de se szikra,se befecskendezés,F.Code immo lámpa folyamatosan ég, motorral nem lehet kommunikálni,biztik jók,minden egyébb müködik., Obd2- ben CanH és CanL közt megohmnyi ellenállás mérhető...,ABS-en , Bsi-n, és Motor Ecu Can vezetékein ugyanennyi.., CanH-n nyugalmi és forgalmazás helyzetben is mindig ugyanakkora kb 4.8V.., CanL ugyanezekben a helyzetekben mindenhol-mindig "0" V!
.
Motor ECU-n hiányzott a fix 12V egy piros vezetékről.., feltehetőleg a motortéri bizt.dobozban akadhatott el..,de az kedvezőtlen utcai körülmények ,stb miatt nem keresgéltem konkrétan..,akkuról megtápláltam..és már el is tudtam inditani., minden kontroll , immo is rögtön elaludt..., de abszolult nem reagált a gázadásra (E-gázpedálos) csak egy sima ,normál alapjárat volt mindig.,többszöri ujraindiás után is stb.., rátettem a diagnosztikát .,ami ezuttal már müködött., a "U1602" can kommunikációs hiba jött elő..., töröltem sikeresen.., és anélkül hogy bármit csináltam volna a következő inditástól kezdve tökéletesen veszi a gázt!!!!
Érdekesség kedvéért megismételtem a Can-es méréseket most hogy minden tökéletesere javult : Ugyanazokat a mérési eredményeket produkálta mint korábban...,
(#) latyakosa válasza Lezli46 hozzászólására (») Dec 13, 2017 /
 
Elárulod mivel hw-rel kommunikálsz a PC és a kocsi között ?
(#) Lezli46 válasza latyakosa hozzászólására (») Dec 13, 2017 /
 
Nem tudom jól értelmezem a kérdésed.., ha a hw a diagnosztikai interface-re vonatkozik : akkor ELM 327 USB kábel., multiecuscan progival
(#) latyakosa válasza Lezli46 hozzászólására (») Dec 13, 2017 /
 
Igen, köszönöm, erre vonatkozott. A közelemben van pár Fiat gyártmány és néha nem ártana olvasni a komputer nyűgjeit.
(#) Lezli46 válasza latyakosa hozzászólására (») Dec 14, 2017 /
 
Én ezt a SZINÜT ajánlanám , az én tapasztalatim alapján, 2 db más szinű ., hazánkbeli forgalmazótól származó ., már uj korában sem müködő verzió vásárlása után...,aminek a "feljavitására" ellenállás+ Kondi lánc cserével bőséges leirása van a neten..., persze lehet jól müködő más szinü is..,és nem feltétlenül csak ettől a forgalmazótól!!! ,
Ezenkivül ha minden vezérlőt el akarsz érni akkor kell egy , Zöld,Sárga, Piros Adapter is az Obd2 csatihoz.
(#) latyakosa válasza Lezli46 hozzászólására (») Dec 14, 2017 /
 
Köszönöm még egyszer!
(#) bbb válasza Lezli46 hozzászólására (») Dec 14, 2017 /
 
Én kínából vettem aludobozost, az első perctől kezdve gyönyörűen működött. Annyit tuningoltam rajta, hogy kapott egy eredeti ELM327 chipet kanadából, így az akkor legújabb, 2.0 szoftveres lett.
(#) kt hozzászólása Dec 15, 2017 /
 
Sziasztok.
Van egy 2000 res Fiat puntom, és 2 hónapja megjelent egy légzsák hibaüzenet.
1 hónapja a szervó se működik, és mostanában néha véletlenszerűen elkezd dudálni, a műszerfalon a lámpa ikon hol világit hól nem, pedig fel van kapcsolva a lámpa.
A CITY gombot ha megnyomom van amikor a műszerfalon van hogy rendesen ki be kapcsolgatja a CITY feliratot, de van hogy egyszerűen csak úgy marad. Plusz van olyan hogy ha balra indexelek akkor gyorsan kattog mintha ki lenne égve egy izzó, pedig nincs , megnéztem.
Hol lenne érdemes elkezdenem a hibát keresni ?
A segítséget előre is köszönöm.
(#) Lezli46 válasza bbb hozzászólására (») Dec 17, 2017 /
 
Azt olvastam anno hogy a kanadai az eredeti stb.., de gyakorlatban van valami felhasználói elöny is a klonozott ferdeszemüekkel szemben??? Az én kinaim is tökéletesen mükszik minden elképzelhető -létező Elm327 re irt programmal..,vagy valami más elöny--szempont is felmerülhet???

CAN tudosók hozzászolhatnának a jelenséghez:
:
CAN H és CAN L közt ellenállás megohm nagyságrendü
CAN H kb 4.8V nyugalomban és forgalom alatt is
CAN L-n Zéro feszültség mindig.

Obd2-n és minden egyébb vezérlő , Can vezetékén mérve is ugyanaz.
Egy Punto 1.2 16V 2004-s benzines autó a delikvens.
(#) bbb válasza Lezli46 hozzászólására (») Dec 17, 2017 /
 
Van. Olvasgasd el az ELM327 adatlapját és nézd meg az 1.2 és a későbbiek közti különbségeket (91. oldal). A kínaiakban az 1.2-es verzió van, azt sikerült ellopniuk. Élőadat monitorozásakor jobban produkált az eredeti, mint a kínai koppintás.
(#) Lezli46 válasza bbb hozzászólására (») Dec 18, 2017 /
 
Köszi a Válaszod.., sajnos az adatlap korrekt értelmezése tulmutat a tudásomon...,de a gyakorlat szempontjából---eltekintve esetleges stabilitás stb szempontoktól...,pl "live data" megjelenitésben mi a különbség??? Több adatot mutatna esetleg.,bár ezek megjelenitése .,ugy tudom ez autófüggő inkább..,lehet hogy nem jól tettem fel a kérdést????
(#) bbb válasza Lezli46 hozzászólására (») Dec 18, 2017 /
 
Nekem az volt a szempont, hogy amikor megpróbáltam az autóval beszélgetni (monitorozni első sorban), akkor mi történt. Ehhez az kellett, hogy elindítsak egy terminál programot (YAT kiváló terminál program), majd pár parancsot kiadjak az ELM327-nek. A kínai koppintással a válaszok során rendre lehalt a kommunikáció, buffer túlcsordulás miatt, hiába is állítottam fel a tempót neki 500k-ra. Ez a gyári 2.0 változattal sose fordult elő utána.

A normál használat során nem fogsz igazából nagy különbségeket tapasztalni. A ScanELM, MultiECUScan, ScanXL, ... programok mind mentek a kínaival is.
(#) Lezli46 válasza bbb hozzászólására (») Dec 18, 2017 /
 
Köszönöm a tájékoztatást.., értem..,valóban a gyakorlatban, mint irtam rengeteg programmal akadás nélkül müködött az élő adatolvasás..,
Következő: »»   55 / 66
Bejelentkezés

Belépés

Hirdetés
XDT.hu
Az oldalon sütiket használunk a helyes működéshez. Bővebb információt az adatvédelmi szabályzatban olvashatsz. Megértettem