Fórum témák
» Több friss téma |
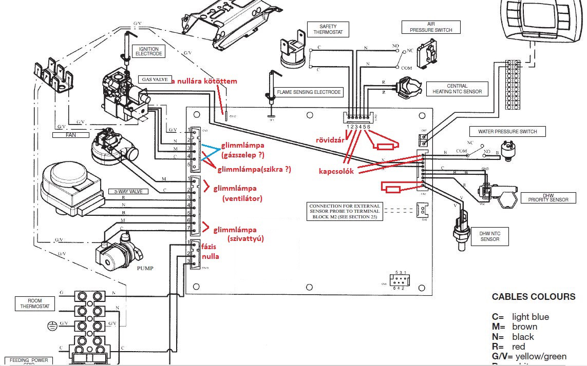
Sziasztok! Hoztak hozzám egy LUNA 3 COMFORT gázkazán vezérlőpanelt a kazán elejébe szerelhető/kivehető vezérlővel együtt. Állítólag hibásak, gázszerelő 160eFt-ért cserélte mindkettőt most ősszel. Össze kéne kötnöm a kettőt, hogy rápróbáljak, ha egyáltalán lehet. Állítólag a kijelzés működött, a kazán mégsem indult. Egyszerűen tavasszal áramtalanították az előtte lévő kismegszakítóval, ősszel már nem volt jó. Töltöttem le adatlapot, csatoltam belőle részletet. A két sárgával jelölt panel van nálam, de a rajz szerint van köztük még egy panel(pirossal jelöltem). Anélkül nem tudom összekötni. Azon is lehet elektronika vagy csak vezetősávok a csatik között? Össze tudom kötni anélkül a kettőt, ha kiderülne, melyik két szál kell? Valaki szerelt már ilyen kazánt? Megjegyzem, hogy a kazánt nem láttam, pontos típust, hibát sem tudok, csak a két panelt hozták.
Nekem gyanús, hogy mindkettő vagy akár az egyik is hibás lenne, de nem tudom. Előre is köszi, ha valaki tud segíteni! A hozzászólás módosítva: Dec 30, 2018
Én szétnéznék a lángőr elektróda körül a panelen.
Tomi 111 a szivattyút is nézesd meg először nincs e meg szorulva a tengely.
Oké, ott átnézem a panelt. Tesztelni gondolom így nem nagyon tudom. Sajnos azt sem tudom, mit csinált pontosan a kazán, mikor nem indult, a tulaj nem ért annyira hozzá.
A szivattyút már nem tudom megnézni, hisz működik a kazán, de nem tudom a szerelő mit csinált még rajta. A két panelt tuti cserélte, az új panelek csomagolásában hozták a kivett paneleket.
A piros az csak egy kiegészítő relé modul, ha több zónát kell vezérelni. 2 verzió van.
1. A távvezérlő közvetlen a panelra is csatlakoztatható, ez a gyakoribb 2. Kell a relémodul a távvezérlő csatlakoztatásához, de az is a főpanelra van rárögzítve.
Szia! Na csinálok két fotót, hogy mi van nálam. Addig is köszi!
Szia! Na fotóztam. Ezeket hozták, de össze tudom kötni így direkt a kettőt? Próbára? Bár gondolom sokra nem megyek vele, a ventilátort nem, tudom valószínű helyettesíteni. A vezérlő a kazántól távol termosztátként volt felszerelve, azt mondták.
Na most nézem, az előző rajzon nem is ilyen panel van. Jól megnéztem előbb... A hozzászólás módosítva: Jan 1, 2019
Na találtam ehhez való bekötést. Csatoltam. Már csak azt nem tudom, hogy a két vezeték, ami összeköti a két panelt, az felcserélhető? Erről nem találtam leírást. És a rajzon a DHW Piority Senzor mit tartalmaz? Tudom helyettesíteni? Látom GND, Vcc és in bekötése van. Valami poti vagy elektronika is van benne?
A DHW Piority Senzor egy áramlásérzékelő a HMV-hez. Ebből is 2 fajta van.
1. Mikrokapcsolós (jellemzően 2 vezetékes) 2. Hall elemes (mennyiséget is figyeli) A ventilátorral csak kimeneti szinten kell foglalkozni. A ventillátor nyomást a pressostát ellenőrzi. A hozzászólás módosítva: Jan 2, 2019
Köszi! Átmérem a panelt, amit lehet, aztán összekötöm és meglátom mit csinál.
Új tagként szeretnék tanácsot kérni egy Baxi Nuvola 240 fi kazánnal kapcsolatban. A fűtést és a használati melegvizet is ez biztosítja nálam.
Az utóbbi egy hónapban már harmadszor fordul elő, hogy hallom, hogy a kazán begyúltaná a lángot, de az belobbanás után rögtön elalszik. Közben felvillan a 80 °C piros dióda és alatta egy lángot szimbolizáló sárga dióda is egyszerre és ez ismétlődik. Resetelés megoldja a problémát, de ez a másik gond, hogy többször kell próbálnom resetelni, mert általában a gomb elforgatásával nem történik semmi, olyan, mintha nem fogadná el a resetet. Aztán többszöri próbálkozás után egyszer csak elfogadja és utána újra működik kb. egy hétig. Akkor újra ugyanez a procedúra és megint egy hét múlva hallom, hogy nem tud begyulladni a láng. Csináltam egy videót is róla. Ezen a videón is próbáltam resetelni, de nem reagál rá. Rendszeresen van karbantartva, de ezzel a jelenséggel kezdenem kell valamit, mert félek, hogy egyszer olyankor fordul elő, amikor elutazunk. Szerelő is nézte, utoljára Karácsony első napján állt meg (még szép!), de mire másnap kijött, addigra a resetelés után működött. Átnézte és azt mondta, hogy minden tökéketesen működik, ha újra előjön a hiba, akkor indítsam újra. Ez nekem nem túl megnyugtató, mert mi van ha nem vagyok itthon. Tudnátok tanácsot adni, hogy mi lehet a baja? Esetleg van itt valaki Szegedről, aki megnézné?
Sziasztok. Pár napja a Thermotop vu kazánomazt játsza,hogy pár percig megy a keringető,majd pár perc szünet és kezdi előről.Semmi hibaüzenet nincs.Ha felhúzom a termosztátot fűt rendesen,majd a hőfokot elérve elkezdi játszani a sziv. indul-megáll játékot.Mi lehet a gondja?
Köszi az ötleteket.
Szia! Próbáltam a panelt asztalon. A levegőnyomás és víznyomás-érzékelők helyére kapcsolót tettem, a kimenetekre glimmlámpát( szivattyú, ventilátor, gázszelep, szikráztató trafó). A két NTC helyére fix ellenállást tettem. Biztonsági termosztátot rövidre zártam.
Így indítva semmi hiba, majd bekapcsol a szivattyú lámpája, ekkor be kell kapcsolnom a víznyomás érzékelő kapcsolóját. Utána kapcsol a ventilátor, ekkor bekapcsolom a levegőnyomás kapcsolóját( ha a kapcsolókat nem kapcsolom időben, akkor hibára megy). Utána bekapcsolja az gázszelep és szikra kimenetét egyszerre, majd vár, többször próbálja, majd E1 hiba, ami gázhiányt jelez. Ez normális, hisz a láng érzékelőt nem kötöttem sehova. Azt hogy tudnám szimulálni, tesztelni? A panel föld pontját a nullára kötöttem és leválasztó trafóról próbáltam az egészet. Mikor szikráztatna próbáltam a földre kötni a lángérzékelőt, de semmi, tilt. Nem jól csinálom?
Szia!
1N400x, 1N4148-as dióda, vagy ami éppen akad. Kösd be egy kapcsolóval sorosan az érzékelő elektróda bemenete és a védőföld közé. (A katód a védőföld felé, de ebben nem vagyok biztos.) A "szikra" indítása után zárd a kapcsolót. A fázis/nulla bekötésre is ügyelj, mert a legtöbb készülék érzékeny rá. Fordított bekötésnél nem működik a lángőr sem.
Szia! Köszi, megpróbálom, de már csak holnap.
Szia! Próbáltam diódát az érzékelő helyére, tökéletes. Rákötve a kijelzőn is jelzi a lángot és a szikráztatás is leáll. Jónak tűnik a panel. Rendesen gyújt, hőérzékelőt melegítve gázt elzár, majd a ventilátor is, később a szivattyú is leáll. (asztalon bekötve) Egyedül a gázszelep modulációs vezérlését nem teszteltem. Azt hogy tudom próbálni? kis 24V-os izzó? Ha az esetleg rossz, akkor nem is ad gázt a kazán vagy működik, csak kis lángon?
Szia!
Nem ismerem a konkrét típust, ha 24 V-os a gázszelep tekercse, akkor elvileg lehet 24 V-os izzó is, de jobb lenne egy teljesítmény ellenállás, aminek kb. ugyanannyi az ellenállása, mint a tekercsnek. Az izzó hideg ellenállása sokkal kevesebb, minta az üzemi, emiatt bekapcsoláskor esetleg túlterhelheti a vezérlést. Ezenkívül, nem biztos, hogy egy multiméterrel tudod ellenőrizni a moduláció működését, mert ha pl. PWM jellel történik, akkor szinte folyamatosan ugyanakkora feszültséget fogsz mérni. A hozzászólás módosítva: Jan 8, 2019
Szia! Próbáltam a panelt. Szerintem hibátlan. Kis 26V 0,1A-es izzót tettem a gázszelep moduláló tekercs helyére. Szépen változik a fénye. Gondolom pwm-el állítja. Nem is az értékre voltam kíváncsi, hanem szabályoz-e.
Üdv a fórumozóknak.Adva van egy 12 éves Baxi fűtő turbós kazán.Indításkor ventilátor indul szivattyú szintén...De utána gyújtás helyett piros led világit ,Ezen a készüléken még nincs hiba kód jelzés.Tud valaki segíteni?
Ventilátor indítás után a presszosztátnak át kellene váltani és indulna a gyújtás és a gázszelep. Ha ezek nem indulnak, nagy valószínűséggel a preszosztáttal, vagy a csöveivel lehet baj.
Köszönöm tanácsod JZoli ott volt a bibi.
Nagyon tetszik, ahogy kialakítottad ezt a kis tesztkörnyezetet.
Üdv a fórumozóknak,Egy használt 10 éves Laing szolár 2000(szolár i 20 se)turbós combi kazánt vettem.Tud valaki róla műszaki leírást?Kösz előre is.
És nem értem ezt a szolár módot.
Hát eléggé gányolás volt, de így sikerült kipróbálni, működik-e a panel. A relék kapcsolásával szinkronban kellett a kapcsolókat és a lángérzékelőt kapcsolni, egyébként hibára fut.
Sziasztok! A segítségeteket szeretném kérni.
Van egy Vaillant VC196 2/C kondenzációs gázkazánunk. HMV-nél és fűtésnél is, ha eléri a beállított hőmérsékletet, a keringető szivattyú továbbra is folyamatosan megy, és nem áll le. Mi lehet a probléma? Köszönöm a segítségeket/ötleteket!
Üdv mindenkinek!
Tudna valaki segíteni? Buderus logamax uo 12/24 kazán, csak fűtésre volt használva. Hasonló jelenség, mint valaki régebben írta, gyújt a kazán, de azonnal el is veszi a lángot. Pár másodpercre begyújtja a gázt, majd lekapcsol. Hiba jelet nem mutat. Volt kint gázos, aki szerint a panel rossz, de a panel próbapadon tökéletesen működik, annak baja nincs. Vissza szereltem, de a jelenség továbbra is megvan, csak eddig ment kb 20 másodpercig utána kapcsolt le, most meg 1-2 másodperc után. A csatlakozásokat megmozgattam, újra csatlakoztattam, de semmi nem változott. dugvilla bekötését is megcseréltem, de az sem segített. A tűztér ki lett takarítva amikor a gázos kint volt. Van valami ötlete valakinek? Köszi előre is.
ÜDV A CSAPATNAK.
C-24-es gázkazánomban nem müködik az EGYperces elő és utókeringetés. A keringető szivattyú nem reagál a szobatermosztátra, a gázlángtól függetlenül folyamatosan működik. Előzetes jelenség: a BT136 triac kipukkant. Kicseréltem. Mi okozhatja a számláló hibáját? Választ köszönöm.
Szia! Melyik vezérlő van ebben kazánban, MiF 011/A-03?
|
Bejelentkezés
Hirdetés |


















