Fórum témák
» Több friss téma |
Fórum » Vegyestüzelésű kazán hibák
Témaindító: szucsjanos, idő: Jan 4, 2009
Témakörök:
Szia! Egy jól megkreált és biztonságos rendszer az valahogy így nézne ki. Ha a visszacsapó szelepek (rugós és békanyelves) jól és jó helyre vannak beépítve, akkor a meglévő rendszerben a keringés biztosított marad. A nyitott rendszer sok oldott oxigént tartalmaz ami a csöveket oxidálja aminek vasiszap lerakódás lesz a vége a lassan áramló részekben.
Szia
Becsatlakoznák a hibakeresésbe! Tehát kezdjük az elején! Ha a vegyes kazán feletti szivattyút valószínű hogy nem szállít megfelelő tömegáramú fűtővizet! Ennek okai lehetnek: kondi kiszáradt, lapátok megkoptak,netán a rendszerben eliszaposodás van! Amúgy már megérett a szivattyú a cserére! Másik probléma a kazán legtávolabbi pontján lévő radiátor nem megfelelő üzeme! Ezt szinte mindig orvosolható megfelelő fűtés beszabályzással! Eléggé sok időt vehet igénybe,de megéri! A radiátoros új bekötése hibás! Ez van mikor a szakinak vagy nincs,vagy lusta elvinni a hegesztő palackokat! Valószínű a gázkazánod nincs megfelelően beállítva,túl kicsi a láng! Mikor volt takarítva a hőcserélő,és a égőd? Nem porszívózásra gondoltam!
Sziasztok!
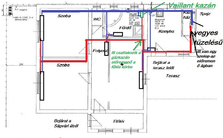
Nemrég vettünk egy családi házat, ami jól van szigetelve, illetve a fűtés Vaillant kondenzációs kazánnal történik, de van mellette egy Kovosmalt filakovo barnaszenes kazán is, viszont az előző tulaj fával pakolta. Mivel az előző tulaj nem sokat mondott el a kazán üzemeltetéséről és én városi gyerekként abszolút nem tüzeltem még kazánnal, így a segítségeteket kérném. Hogy érdemes begyújtani, fűteni az ilyen kazánnal? Olvastam már primer meg szekunder levegő adagolásáról is, de ezen csak alul van egy szellőző kb 5mm réssel, fölötte egy ajtó, ami csak nyitható és zárható. Nincs rajta láncos huzatszabályzó sem és a tüzelőanyag adagolás fentről történik. A kémény felől van egy kar még (gondolom az is valami huzatszabályzó.) Van kettő darab lefújó szelep (1.5bar Egy az előremenő egy a visszatérő ágban.) és zárt rendszerű. Hogy érdemes fűteni az ilyen kazánnal? Mert nem szeretném elpukkantani és így nem tudom hogy lehet szabályozni az égést és a vízhőfokot. Igazából magát a kazánt csak egy esetleges áramszünet esetére akarom, mint vésztartalék. Amit még tudok róla gravitációs keringetésű, 2 colos csővel van, majd a radiátorokra 1 colos csővel megy le. A kazán kb fél méterrel a radiátorok bemenő csöve alatt van. A szobákba nagy (2 méter hosszú) öntvénykazánok vannak. Illetve hogy fér meg a kondenzációs és a kazán egy körön? A kondenzációs kazánnak nincs külön elzáró csapja. Az is a kétcolos gerinccsőbe csatlakozik bele pár méterrel odébb. Esetleg aki használ kondenzációs kazánt, mennyire szokta/érdemes beállítani az előremenő víz hőmérsékletét? A kazán eleje így néz ki. klikk kazán A linkelt képekért elnézést, csak annyira szűk a kazánház, hogy nem tudom egybe szemből lefényképezni. Köszönöm előre is a válaszokat
Hát, azt nem tudom, hogyan férnek meg egymással, mert a vegyestüzelésű kazánt nem szabad 60 fok alá engedni, mert hamar tönkremegy úgy, -a kondenzációs pedig nem tudom, mekkora vízhőfokkal működik.
Mindenesetre ez ránézésre egy kétaknás kazán, az alábbi képen látható, hogyan működtesd. A szabályzó az állítható légcsappantyú és a tapasztalat együttese.
Köszönöm a segítséget, 2008-ban került beépítésre a gázkazán, az öreg néha használta a vegyeset, de akkor a gázról levette a hőfokot a szobatermosztáton. A gázkazánon állítható a vízhőmérséklet egészen széles skálán 30-80°között. Jelenleg 65°C az előremenő, és a vegyes kazánban is megfordul a víz, hogy a visszatérő ágon hidegebb víz menjen vissza a gázkazánba. Igen a kazán két aknás.
" a vegyes kazánban is megfordul a víz, hogy a visszatérő ágon hidegebb víz menjen vissza a gázkazánba."
Ezt a lehető leggyorsabban szüntesd meg, ez egy pazarlóan marhaság hisz a vegyeskazán is mint egy radiátor benne van körbe és ami melegvizet kap a kazántest az a kéményen azonnal ki is megy. Ha esetleg mindenáron fűtenéd az utcát és sok pénzed van gázszámlára akkor természetesen hagyhatod így. Két golyóscsap vagy 2 visszacsapó kell, a gravitációs üzem miatt vagy nyelves visszacsapó, vagy a legjobb megoldás egy elzáró csap amit cirkó használata esetén lezársz, és ugyanígy visszafelé is ki kéne zárni a cirkót amikor a vegyessel fűtesz, ha modernebb készülék akkor meg tud hülyülni a vezérlése, igaza is van hisz nem is fűt és 60-70 fokos a víz benne. A vegyes használata az ki fog alakulni pár nap alatt, rá fogsz érezni hogyan kell, ezt így távolról nem lehet konkrétan megmondani. A hozzászólás módosítva: Jan 27, 2020
Mindenképpen elzárom a csapot, köszönöm a jó tanácsokat. Bár az előző tulajnak gondolom a fűtésszerelő mondta, hogy így érdemes, hogy a kondenzációsba minél hidegebb víz menjen vissza. Vagy szimplán lusták voltak elzárni?! Lényeg, hogy nem sok szó esett a fűtésről, csak a lényeges dolgokat mondta el ezzel kapcsolatban. A vegyes kazánon csak egy csap van, az előre menő ágban, csak ezt tudom elzárni. A visszatérőbe nincs csap. Arról nem szólt, hogy meghülyült volna a kazán a vegyes tüzelés miatt. Annyit mondott amikor a vegyesbe gyújtott be, akkor a gázról a szobatermosztáton levette a hőmérsékletet 15 fokra, amikor a szoba felmelegedett, visszaállította normál üzemre, így amikor a vegyes kazán kialudt és a szoba lehűlt, akkor a gáz átvette a fűtés szerepet. Ezt a megoldást 2007 óta használta így. Mellékeltem egy képet a fűtésről. (A vastag piros 2"-os a vékony piros 1"-os cső).
Idézet: Jogos az észrevétel. Inkább csak az irányra voltam kíváncsi, merre induljak, mire érdemes figyelni, mert ezen a téren abszolút nulla még a tapasztalatom és biztonságosabbnak éreztem ha kérdezhetek. „A vegyes használata az ki fog alakulni pár nap alatt, rá fogsz érezni hogyan kell, ezt így távolról nem lehet konkrétan megmondani.” A hozzászólás módosítva: Jan 28, 2020
Idézet: Ez így jó, bár a folyamatot nem ártana automatizálni. Ugyanis, ha zárt csapnál begyújtasz a vegyestüzelésűbe, szélsőséges esetben fel is robbanhat. „Mindenképpen elzárom a csapot...”
Ha emberi mulasztáson robbanás is múlhat, akkor nem ilyen biztonsági szelepet szoktak beépíteni? Az automatizmus is elromolhat, de a biztonsági szelepek azért eléggé megbízhatóan nyitnak és leeresztik a gőzt. Csak nehogy valaki alatta álljon éppen!
Létezik több biztonsági eszköz, érdemes kombinálni. A kézzel elzárom, kinyitom, viszont a lehető legrosszabb megoldás.
A hozzászólás módosítva: Jan 28, 2020
Hála a szerelőnek, csak egy csapot szerelt be. Így kicsi az esélye a robbanásnak.
A biztonsági szelep semmit sem ér, ha a kazánt két csappal lezárta még valamikor és jól befűt. És a 2 collos acélcsöves etázsrendszer sem az otthoni barkács-fűtésszerelés kategória, sajnos.
A csapot tudom, hogy meg kell nyitni. Munkaidőben hegesztési varratok nagynyomású nyomáspróbáját végezzük (100+Bar), így tudom, hogy minden csapot ellenőrizni kell kezdés előtt. Sőt annyira belém van rögződve már, hogy sokszor más csövekre is kényszeresen ránézek, hogy nem-e ereszt
. Tehát ezzel (remélhetőleg) nem lesz gond. Maga a kazán üzemeltetése érdekel, hogy érdemes üzemeltetni, hogy ne hajtsam túl vagy éppen ne hajtsam üzemi értékek alatt. A körbe az előremenőben és a visszatérőben is van lefújó szelep 1.5Bar nyitási értékkel. Illetve ezt a kazánt csak vésztartaléknak akarom, de ha bármilyen ok miatt kiesne a gázkazán, akkor tudjam indítani, és ne az utolsó pillanatban kelljen találgatnom, hogy hogyan is működik. De így is rengeteg infót kaptam, amit köszönök szépen.
Szerintem ha a véleményed helytálló, akkor minden emberi tevékenységet fel kellene függeszteni mert az ember a legkritikusabb tényező.
14 évig használtam vegyes/cirkó kombót, szinte napi rendszerességű váltással, automatika nélkül. Soha nem felejtettem el kinyini a csapot. Ezen az alapon be kéne tiltani az autózást hisz a balesetek 99%-a emberi mulasztás miatt van, vagy a főzést mert égve hagyhatod a gázt a kaja alatt. Nagyon egyszerű automatizálni, kell 2 darab visszacsapó szelep. Mivel a kollégának kb. 50-80 centirevan a kazán teteje és a hőleadók felső része, itt lehet hogy a nyelves visszacsapó is túl nagy ellenállású lesz, ergo marad a golyóscsap vagy más mechanikus elzáró. Vagy feláldozza a kényelem oltárán a csap nyitogatást de ahhoz kell még egy keringető szivattyú, a maga minden előnyével és hátrányával (drága, elromolhat, segédenergiát igényel, áramszünetnél megáll, szünetmentesíteni kell, vezérlést kell hozzá kiépíteni stb.) Így meg csap nyit, kazánba begyújt és ennyi, segédenergia és csőhegesztgetés, költségek nélkül. Egy gravitációs fűtés adott esetben túlélést jelent. A hozzászólás módosítva: Jan 29, 2020
Szia
Tegyük tisztába a dolgokat! A vegyes kazánodon előremenő ágba a rugóterhelésű biztonsági szeleped nem jó helyen van beépítve! Ugyanis a 2"-os szelep elé kell kell elhelyezni!. De ide egy termikus elfolyó szelep sem ártana! Az ugyanis nem nyomásra,hanem kb. 95 fokos fűtő víznél nyit! A visszatérőn lévő biztonsági szeleped nem sokat számít! A másik amiben sokan tévhitben vannak hogy az előremenő szelep zárt állapotban marad begyújtáskor,akkor a visszatérőn elmegy a nyomás! Valamennyi elmegy de az kevés,ugyanis a kazán legmagasabb pontján lévő gőzös víz(később gőz) nem tudd hova tágulni,mert mindig a legmagasabb pontra kényszerül! 1 liter víz ha felforralásakor zárt térben az kb.1700- ra tágul a térfogata! Ezt ugye mindenki eltudja képzelni! Az acél szétnyomja simán,az öntvény sem ellenfél neki! Ergo ha zárni akarod a vegyest a gázkazán üzeme miatt,a vegyes kazán begyújtásakor kétszer is ellenőrizd le a szelepet,hogy nyitva van! Vagy hagyod nyitva a szelepet mindig,és akkor fűtöd a gázkazánnal a vegyest! Kérdés mennyi pénzt akarsz erre áldozni,mert még vannak technológiák ennek a kiküszöbölésére!
Sziasztok,
Van egy Vinyisztó kazánunk, amely már nagyon ritkán van használva, jellemzően csak Karácsonykor, amikor sokat otthon tartózkodunk egyhuzamban. Éppen ma takarítottam ki, de észrevettem, hogy belül nagyon sok helyen meg vannak maródva a fém tagok. Valószínűleg tavaly vizes fával gyújtottunk be, és ez megtette a hatását utólag, az állás közben. Ezen már nem sokat tudunk utólag segíteni, nem is ez ügyben kérek tanácsot. Milyen vastagok egy ilyen kazánnak a tagjai? Aggodalomra ad okot, ha olyan lett a tagok belső felülete, mint egy nagyon durva reszelő? Köszi! A hozzászólás módosítva: Dec 12, 2020
Ha jól tudom, az öntvény kazán. Kis túlzással örök élet és egy nap, igaz, nem akkor, ha hagyod rozsdásodni. Ettől függetlenül én használnám nyugodtan.
Ha ki is lyukadnak kazánok, azt szivárgással szokták kezdeni, nem hirtelen árasztással.
Igen, öntvénykazán. Nagyon szeretem, mert ránézésre is igazán robusztus felépítésű.
Kb. 50 éves a házunk, a kazán akkor kerülhetett bele. Természetesen gravitációs a rendszer, 2" csövekkel van bekötve. Akkoriban elkövette azt a hibát az építtető, hogy csak a meleg ágba épített be elzárócsapot, a hideg ágban nincs. Így ha el is kezdene szivárogni a rendszer, akkor egyszerűen ki sem tudjuk iktatni a kazánt. Azért bízom benne, hogy legalább 4-5mm vastag fala van az öntvénynek.
Az öntvénykazánok mindig is vastag falúak voltak. 9:20 környékén látszik egy másik típus falvastagsága (szétlövik a kazánt amerikai módra...), 7-8 mm-nek tűnik:YouTube.
|
Bejelentkezés
Hirdetés |









. Tehát ezzel (remélhetőleg) nem lesz gond. Maga a kazán üzemeltetése érdekel, hogy érdemes üzemeltetni, hogy ne hajtsam túl vagy éppen ne hajtsam üzemi értékek alatt. A körbe az előremenőben és a visszatérőben is van lefújó szelep 1.5Bar nyitási értékkel. Illetve ezt a kazánt csak vésztartaléknak akarom, de ha bármilyen ok miatt kiesne a gázkazán, akkor tudjam indítani, és ne az utolsó pillanatban kelljen találgatnom, hogy hogyan is működik. De így is rengeteg infót kaptam, amit köszönök szépen.
Ez innentől még sok idő. Addig meg próbálj szárazabb fával fűteni, és a visszatérő ágat ne nagyon engedd 45 °C alá, az megint csak a korróziót gyorsítja. 