Fórum témák
» Több friss téma |
1. Multiméterrel bármit lehet mérni. Sőt az ellenkezőjét is.
![]() 2. Mérj analóg mérőműszerrel. 3. Valamelyik kondi kiszáradt és a nagy búgófeszültség (szűretlenség) miatt rosszul átlagol a műszer. Tanulság: Vedd a 2-es pontot. Vagy gyere el hozzám, adok jó tápot.
Sziasztok!
Vettem egy kollégámtól corsair wx550W-os tápot! 40 ezret adtam a tápért, a lapért, 4Gb memóriáért és a prociért! Mivel nem azt a procit adta, amit igért, adott mellé használ merevlemezt is! Mivel az utóbbi hangos volt és az optikai meghajtóm is haldoklott gondoltam lecserélem ezeket az ide-cuccokat! Vettem SSD-t, sikerült is telepíteni rá, de az optikai meghajtót csak 2 nap múlva vettem! Az utóbbit doboz nélkül kaptam, és félek, ez a probléma okozója! A tápom 1 nap múlva nem kapcsolt be!Mi történhetett? HA budapesti valaki akkor rá tudna nézni a tápomra? Milyen tápot érdemes venni?
Először : üresen nem mérem a tápot.
2: Amíg az 5V nincs leterhelve megfelelően ,a többi feszültség annyi amennyi. 3: Ha le van terhelve akkor a többi feszültség annyi amennyi.A táp csak az 5V -ot szabályozza (max a 3,3V-ot is ) Két kimenőfeszültség között nem hiszem hogy sok értelme van mérni. A digitműszer ,ha nem ismered könnyen erdőbe vezet (bár szerintem itt nem ez történik) kapcsolóüzemű dolgoknál.
Vettem egy Mercury (M-Tech) tápot, ezt szeretném megcsinálni.
Ez van az oldalán: DC output: +3,3V MAX 24A, MIN 0,3A +5V MAX 33A, MIN 0,3A +12V MAX 16A, MIN 1,0A Az lenne a kérdésem, hogy mennyi terhelést "kötelező" rátenni? Elég, ha pl. beteszem a videón ajánlott 5Ohm 10W ellenállást az 5V-ra, vagy terheljem a 12V-t is? Vagy az a legjobb, ha a +3,3V-t +5V-t és a +12V-t is terhelem úgy, hogy a MIN áramok mindhárom feszültségen meglegyenek?
Helló!
Megszaladt a tápom, /nem Vargáné/ a sárga vezetéknél 7,58 V a piros 6,53 V. Szerencsére nem vitt magával semmit. Merre keresgéljek? Az egyik aluminium hűtőbordára szerelt háromlábú alkatrész ellenállásmérővel mérve az egyik lábon szakadást mutat, a többinél mindnél kitér a mutató. Fogalmam sincs hogy ez milyen alkatrész, és elnézést, de nincs hosszú i a billentyűzeten. A másik táp is gyakran leállt, cseréltem két pufferkondit, igaz hogy nem újakat mert épen nem volt kéznél és vidékről körűlményes bemenni a városba újat venni, ha egyáltalán az a baja. Na szóval azóta be sem indúl, csak éppen megmoccan a ventillátor. Új tápra pillanatnyilag nincs pénzem pedig nem egy nagy összeg, de ez van. Van valami tippetek? Szükség esetén tudok róla képet küldeni. Egyébként analóg műszerrel mérek. A hozzászólás módosítva: Máj 20, 2013
hello(felkiáltójel)
van 1 atx 300W tápom aminek a 12 V os(Voltos) kimenetét szeretném használni(pont) fentebb olvastam h(hó, hő, hú, vagy hogy lenne) az 5 V os(Voltos) ágát le kell terhelni, de nem tudok beszerezni nagy teljesitményü(í és ű létezik az ABC-ben én láttam) ellenállást, a sima ellenállások meg tudtommal csak max 0,5 W osak v még kevesebbek(pont) Mi mással tudnám leterhelni az 5 V os(Voltos) ágat? Pl. villanykörtével van itthon 12 V 21 W és 12V 40 W os(Wattos) ezek jók lennének v. hülyeség ? pirossal kiemelve a dedó szint, valamin nagyon változtatnod kell! -moderátor- A hozzászólás módosítva: Szept 21, 2013
Hello.
Először is: Hány ampert akarsz leszedni róla, ha nem sokat akkor nem kell leterhelni, megy anélkül is Nekem úgy ment a tápom sokáig. Én +12 és a -12 voltot szedtem le, erősítő ment volna róla, ha sikerült volna megcsinálni úgy, hogy működjön (saját tervezésű erősítő, kevés alkatrésszel). De például időrelés kapcsoló is ment róla.
két karbonszálas ülésfűtést szeretnék róla üzemeltetni(pont) nem nagy méretüek 20x30 cm a másik 40x40 cm(pont) nincs rajtuk semmi adat de csak 38 fokig melegitenek(vessző) szóval nem lehetnek nagy teljesítményüek(mondat vége jel)
amugy kipróbáltam táp terhelés nélkül(vessző) és megyen csak lehet h hosszab távon tönkreteszi a tápot v nem. nem tudom nincs tapasztalatom e terén(pont) A hozzászólás módosítva: Szept 21, 2013
0.5Wattos ellenállással lehet terhelni de csak 800-900mA-ig
Adatok: U=5V P=0.5W Ohm törvény: U=I*R I=U/R R=U/I P=U*I vagy P=U^2/R 0.5=5^2/R ; 0.5=25/R ; 25/0.5=50 Ohm a minimum ha félwattos ellenállásból egyet használsz. Ha van több is akkor x párhuzamos kapcsolás és akár 10 wattost is lehet csinálni. (x db ellenállás) 4 ellenállásból 2W, 6 ellenállás 3W, 8 ellenállás 4W.... ha kevesebb Ohmos ellenállásod van akkor sorba rakd őket és add össze az értéküket. A hozzászólás módosítva: Szept 19, 2013
Ha 0.25Wattos van, akkor 100 Ohm fölött kell lenni-e az értéknek.
honnan tudom h hány wattos a színkód alapján nem lehet megállapítani v igen ?
A hozzászólás módosítva: Szept 21, 2013
hol van itt a teljesítmény jelölés ?
A hozzászólás módosítva: Szept 21, 2013
Este van már nekem. :| Igaza van, nincs ott, elnéztem. vegyük úgy mintha 0.25W-os lenne. Párhuzamos 12db 100 Ohmos ellenállással (12,6Ohm, ha jól számoltam) 3Watt abból 1.9841W és biztonságosan is megy.
Szia!
12 db 100 ohmos ellenállás párhuzamos kapcsolásának eredője 8,33 ohm ( 100/12 ). Üdv.: Feri
kösz a segítséget(felkiáltójel)
A hozzászólás módosítva: Szept 21, 2013
még nem fogtam nozzá nem volt időm(mondat vége)
amúgy mék 5 V -s ágat kell leterhelni amelyik a főcsatlakozón van v. a kiscsatlakozón levőket amelyek a meghajtókra mennek meg a kúlerekre vagy az mindegy? Annyira trehányul írsz, hogy az már félelmetes! Költői kérdések: Nem érzel valami késztetést arra, hogy amit leírsz azt meg is értsék? Nem érzed gagyinak az idétlen rövidítéseket egy műszaki oldalon? Nem vetted még észre, hogy itt szinte mindenki igyekszik kulturált formában társalogni? Változtatnod kell, mert legközelebb nem javítom ki... -moderátor- A hozzászólás módosítva: Szept 21, 2013
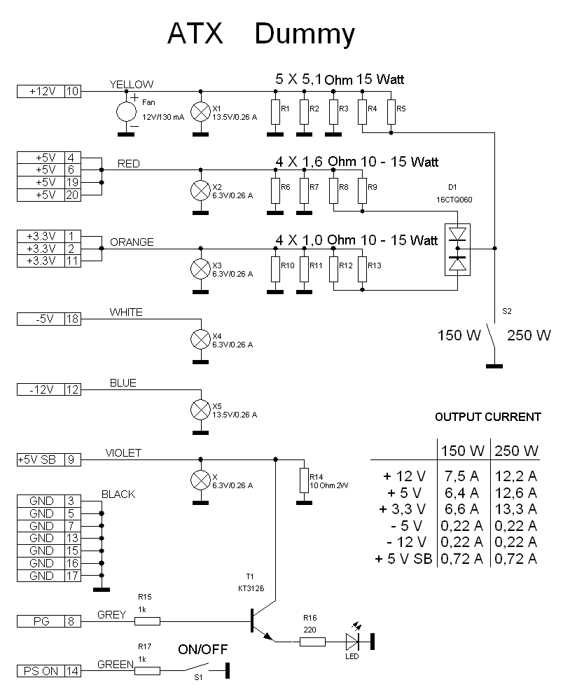
ATX táp tesztelő!
Van anyagigénye, de érdemes megcsinálni. Terhel mindent feszt!
A főcsatlakozón lévő lévőt jobb terhelni, bár ugyanoda van kötve bekötve az eleje. Most olvastam utána, hogy 2-3A-al szokták sokan terhelni. Most lenne egy olyan kérdésem, hogy a két karbonszálas ülésfűtésnek mekkora az ellenállása? Ha csak 5-10A kell akkor elég neki 1-1.5A terhelés az 5V-os ágon. Ha viszont több kell akkor 2-3A-el kell. Van egy megoldás 250-400mA-al terheled és rákötöd a két karbonszálas ülésfűtést és voltmérővel megnézed mennyire esik le a feszültség. ha 10-11V alá esik akkor jobban kell terhelni.
Végül egy 21 Wattos villanykörtével terheltem a főcsatlakozón lévő 5 Voltos ágat. A kisebbiken 1,5 Ampert, a nagyobbikon 1,9 Ampert mértem. A feszültség 12,2 Voltról 11,8 Voltra esik vissza.
Terhelés nélkül viszont alapból csak 11,8 Voltot mértem. Még egyszer köszönöm a segítséget.
Nincs mit. Szeretek az elektronikával foglalkozni.
Tud valaki segíteni?
Van egy számítógép házam és abban egy ATX tápegység. De nincs benne alaplap. A számítógép házon van két kapcsoló, egy „bekapcsolás” és egy” reset”, de ezek csak nyomógombok. Olyan kapcsolás kellene, hogy ezzel a két nyomógombbal tudjam bekapcsolni és kikapcsolni az ATX tápegységet. A BEKAPCSOLÁS gomb csak bekapcsolná a RESET gomb csak kikapcsolná. És persze nyomógombok, tehát nem kapcsolók, tehát gombnyomásra kellene üzemelni a mókának. Szimpatikus volt ez a rajz, de CD 4069 inverterrel megcsináltam és nem működik egyáltalán. Idézet: „...A BEKAPCSOLÁS gomb csak bekapcsolná a RESET gomb csak kikapcsolná.” Mivel ezek nyomógombok (érintőkapcsolók), ezért ez így nem fog működni. Egy kétállású, vagy billenőkapcsolóval viszont megoldható - az alaplapra menő nagy csoportcsatlakozón a zöld vezetéket kell valamelyik feketével összekapcsolni. A tápegység addig fog működni, amíg a kapcsoló zárva van. A hozzászólás módosítva: Nov 24, 2013
Már miért ne lehetne megoldani? Az esetek 90%-ában ezek a kapcsolók kis 2x3 lábas mikro nyomógombok. Két áramkörösek és van nyitó illetve záró kontaktusuk. Ezen okok miatt az egész megoldható 1db relével, semmi felesleges elektronika. Vagy ha kapuzgatni akarunk akkor jöhet az RS flip-flop.
Ezek a kis 2x3 lábas kapcsolók vannak nyomó, és reteszelődő kivitelben (egy nyomásra bekapcsol, újabb nyomásra kikapcsol). Semmi elektronika, relé, flip-flop nem kell hozzá - mindössze a 100 Ft-os kapcsolót kell kicserélni, ennél egyszerűbb, olcsóbb megoldás nincs.
(bár ha összetekeri, meg szétbontja a drótokat még kapcsoló sem kell hozzá!)
Sziasztok!
Az lenne a kérdésem, hogy 5 V-os és a 12V-os kimenet összeköthető, hogy 17V-ot kapjak az alábbi csatlakozón? A hozzászólás módosítva: Nov 20, 2015
Egy táp, szóval rövidzárlatot okoznál!!! Olvasd utána és tanuld meg!!
Zárlatokkal vigyázzál, mert ki tudja mit rejt belül! Lehet egy "bomba"
sziasztok! Tudna nekem valaki abban segíteni,hogy én géptápra szeretnék rákötni egy mac audia autós erősítőt, de annyi a gondom csak hogy az ébresztő szál kellene már csak. a táp az bírná. csak azt nem tudom hogy ami az alaplapra megy csati abból milyen szín kell nekem csak. A segítséget előre is köszönöm.
|
Bejelentkezés
Hirdetés |





Nekem úgy ment a tápom sokáig. Én +12 és a -12 voltot szedtem le, erősítő ment volna róla, ha sikerült volna megcsinálni úgy, hogy működjön (saját tervezésű erősítő, kevés alkatrésszel). De például időrelés kapcsoló is ment róla. 

