Fórum témák
» Több friss téma |
Elsősorban azt, hogy hova rakod a ládát. Minden centiméter számít!
És annak érdekében, hogy nagyon alacsony frekvenciákat is erőteljesen szóljon a dobozkat is így alakítgatom, és az erősítőt is e szerint állítom be. Mivel nálam minden házi gyártmány könnyen megoldom bárminek a konfigurálását. Pár napja vittem le egy arc-nak egy mélyládát mert ő úgy gondolta, hogy nem is olyan fontos az a házimozicuccához, több helyre is raktuk a ládát, és valóban szinte semmit nem csinált egy 40-es hangszóró a 16-os kis izék mellett. Ám végül megtaláltuk a megfelelő helyet a ládának és akkor bontotta a házat rendesen. (azóta elhatározta, hogy az első befektetése egy mélyláda lessz):yes: Kb 1 hónapja találtam ki egy láda típust. T alakban van 2 egyforma doboz egymásra erősítve, és azt kell mondjam nagyon jó! A mellékelt képen ezt látod. Azóta már van benne tölcsér is. A kis subládád azért szól jó mélyet mert az csak olyan frekvenciára van belőve (tehát jól meg van csinálva) megmondom őszintén hallottam már pár gyári mélyládát (PA) meg hangfalat.... ha ügyes az ember házilag sokkal jobb hangú ládát tud csinálni......
hat egy szobaban mert atviteli karakterisztika nem igy nez ki !!
Ezek jol atlagolt idealizalt atviteli gorbek , szimulacioja .( suketszobaban ) A realis , a szobadban tobb ponton felvett hangsav-gorbe lenne az erdekes , sot egy oszegzett "terkep" a nulla es a maximumok kulombozo frekvenciakon . En meregettem aztan meguntam , nem sokat tudok megallapitani a kapott meresekrol .Anyira bizonytalan az 50Hz koruli -alatti tartomany kiertekelese hogy az egesz dolog csak egy empirikus talalgatas lessz , .
No igen, de azzal szerintem mindenki tisztában van, hogy nem lehet úgy berendezni egy szobát, sőt egy csarnokot, vagy egy kültéri rendezvényt, hogy mindenhol pontosan egyfomra legye a hangzás. Én úgy rendeztem be, hogy itt ahol én ülök, nézem a filmet, hallgatom a zenét itt pont nagyon jó legyen. Az megint más, hogy ti mindent műszerrel akartok mérni, amikor:
1. Nem a műszer hallgatja a zenét. 2. Attól, hogy a műszer esetleg jót jelez még nem biztos, hogy az a valóban jó. 3. Akinek olyan bot füle van, hogy nem halja mikor a legjobb, annak teljesen mind1! Jaa és a bal oldali képen a zöld fehér csík az a mélyla aktív hangváltójának a karakterisztikája, és nincs átlagolva. A másik kék vonalakkal az meg a hangszóró átviteli görbéje a gyártó szerint. Én ezzel csak arra próbáltam mutatni, hogy hogyan oldom meg azt, hogy nagyon alacsony frekvenciákat is megszólaltasson!
Ezt modndom en is , ha helyzet fuggo es a szemelyes izles-erzekeles szabja meg akkor mindenki allitsa be ahogy jonak kepzeli .
A meresekkel esetleg tanulmanyozni lehetne hogy miert is tetszik egy vagy mas beallas, beallitas. ez a "szub" dolog igen furcsa , tulajdonkeppen nincs mivel lesugarozni az elvart nivot/ dinamikat , sokkal kisebb a nivo amit ki tudunk hozni de megis "nagynak" erezzuk a "semmihez" kepest(?) ez is psziho alapon. A szakirodalom azt tartja hogy a melyhang hianyat az agy nagyon jol kipotolja !! "odakepzeli" az elozo vagy talan a kepzelt/vart hangkep minta szerint. Mar emlitettem hogy van egy MAXBASS nevu soft progi ami a"szub harmonikusait " emeli es hozza fel az alaphang nelkul !! es az eredmeny meglepo az ember ugy erzi ott az alap is . Jatszadoztam vele mindenfele hangszoroval es hangfallal es tenyleg van hatasa. Vegul felhagytam a szuper "linearis" hangfalakkal, nem nagyon birom hasznalni othon mixeleshez igy inkabb linearis fulhalgatoval halgatom . Soha se voltam biztos hogy jo a hangszin beallitas ,nagyon helyzet es hangerofuggo a hangkep es ez becsap , pluszba egy lekevert zeneszam jol kell szoljon minden fele cuccon , a taskaradiotol a HIFI berendezesig. A "szub"-os zeneszamokat nem negyon lehet lehalgatni akarmin igy nem sokat ernek ,99% a halgatoknak nem rendelkezik ehez valo erosito berendezessel igy a muveszi erteke a psziho hatasa eltunik . Ezert a profi zene mixelok egy "szelesebb savu szub" hangot kevernek ki ami akarmin "szub"-kent szol . Eleg nehez dolog , nekem nem sikerult meg de az "acidplanet.com" -on halottam sok elektronikus zenet ahol a meylek fantasztikussan szolnak .Nem csak huhognak hanem jo "kover" erzekelhetoen morog vagy duborog. Az hiszem a mert gorbe atlagolva van . Amit en mertem szobaba annak mind "combfilter" karakterisztikaja van .allitsd nullara az atlagolast , vagy hasznalj mas analizatort . http://www3.ocn.ne.jp/~hanbei/eng-links.html 20,000 Watt Home Hi-Fi System gigantic horn speaker
Ez a szoba/teremakusztika engem is érdekel, ebből tanulnék még picit :help:
Szerintem is megérdemelne egy topikot ha lenne rá több érdeklődő ember akkor lehetne egyet nyitni szép dolgok ezek de ami szép általában az bonyolult is!
Hifi magazinom van itthon egy 15 darab körülbelül, és 1983-4 ezek az évekből...
Amit én mértem az az erősítő kiementén lévő elektromos jel
nincs az átlagolva, hanem végre sikerült ilyen frankóra megcsinálni. Nem a hang ami a szobában terjed, azt nemigazán tudom mérni mivel nincs hozzá megfelelő mikrofonom, de kíváncsiságból most megpróbálom a talpassal hátha lessz valami belőle
Nahh a talpassal ilyet mértem, és megmondom őszintén az alapján amit eddig bohóckodtam a jelgenerátorral nincs is messze a valóságtól!
"2méteres tölcsért 2fajta ember fog építeni. 1Őrült 2Hangosítani szeretne kis teljesítménnyel" EZ ÍGY IGAZ
Csak néha a kisteljesítmény nem elég egyre többet szeretnénk kihozni belőle és vagy duplázzák a ládát vagy más hangszórót vesznek bele de ez egy ördögi kör !Ha jól megnézzük lehet jobbanjárunk egy normális gyári ládával Nem kell szenvedni vele mire megcsinálod hangszórót választasz bele stb stb és a vége meg lehet az nem szól semmit !És akkor jön az idegösszeroppnást , mert egy gyári láda 5-10%al került volna többe
Viszont!
Én építettem egy "mélyládát", 20centis Videoton hangszóróval, és nagyon szépen szól. 50wattal lehet kb. terhelni, de azzal nagyon és kb. 2eFt-ból jött ki. oké, hogy ez nem tölcséres, a lényeg, hogy hasonló ládát ennek tízszereséből tudtam volna venni kb. És nem is biztos, hogy így szólna, vagy terhelhető lenne. Ráírnak sokféle adatot, de hogy abból mennyi igaz, azt sosem lehet tudni. Én nagyon nem szeretek zsákbamacskát venni, és amit te készítesz el, annak tudod a paramétereit!
Hiába a videoton az videoton. Volt amikor a magyarok jó cuccokat is tudtak csinálni!
Például tegnap mértem fater videoton erősítőjének a torzítását majdnem teljes kivezérlésen és bizony 0.01% alatt (!) volt! Azért ez is jelent valamit.
Van ilyen EQ soft , ami a szobaba elhelyezett ( sztereo) mikrofonok-tol kapott jelet analizalva automatikussan beallitja az EQ-t .Nem tudom hogy faziskorekciokat csinal e de arra emlekszem hogy volt mindenfele kijelzo ablaka .Aztan nezegettem hogy egyedul csuszkaltak az EQ allito gombjai .
"A" osztalyu triodas erositoknel a teljesitmenye kicsi igy a hangfal teljesitmenyet novelik a tolcseres "erositessel".
A tolcseres hangfal ( mintha a hiperbolikus a legkisebb torzitasu ) nagyon jo hatasfokkal es jo dinamikaval rendelkezik plusz jo iranykarakterisztikaja is van . Igy nagy terek hangositasahoz kitunoek . Hordozhato koncert felszerelesnel ki kell szamitani mi a jobb .sok kis ladat es sok erositot , vagy kevesebb nagy ladat es kevesebb erositot szallitani es felszerelni .Az emlitett tulajdonsagokat is figyelembe veve. Othonra az amatorok hobby-bol , kivancsisagbol epitenek tolcserest , keresve az idealis hangvisszaadast.
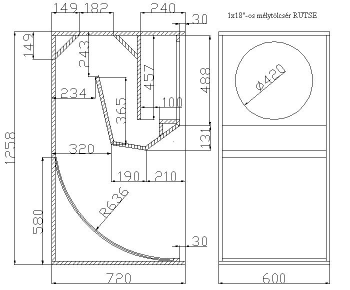
szia jol neznek ki a tervek, de jo mely jon-e majd ki belolle? szerinted hangositasra is jo? kulteri hangositasra akár?
Hello!
én is szeretnék építeni egy tölcséres ládát....1850 Horn és 18" superscooper horn között gondolkodom...szerintetek mejik lenne a jobb??...bulikra lenne...18"-as PRO szériás RH Sound lenne benne azért irom ide is mee a másik topicba nem válaszolnak
Van aki tudna választ adni Neked a kérdésedre, de ismerve Őt, valószínű hogy a helyesírásod miatt nem teszi ezt meg.
Nem látok egy tervet sem se linket így én sem tudok segíteni! Szúrj be valamit vagy küld el az email címemre és talán pár tanáccsal tudok segíteni.
ezekrol a tervekrol beszeltem, szerinted hangositasi celokra melyik lehet a legjobb?
elorre is koszi
szerinted a 4 hözzül melyik a legjobb?
Használj nagybetűket mondatkezdésre! szamóca
Igen elnézést nem néztem bocsánat.....
Helló!
Nos a 2 rutsche tervet látok megfelelő felfüggesztésű hangszóróval szépen szólnak! Mondhatni jó nagyot. Szép egyenletes mélyeket egyiktől sem várhatsz mert ahoz több méteres tölcsérnek kellene lenni. A kettes számú kép az már másabb töcsér az egy w tölcsér és 2 oldalt terhelt a zárt kamrában lévő levegő a hangszóród mebránját jobban visszafogja! Tehát jobban terhelheteő mint a rutschek esetében. Gondolom hangszóród az még nincsen megvéve ezért tedtél be 15" illetve 18" terveket. Amit tudok mondani hogy rutschákkal már volt ilyen méretbe tapasztalatom elég jók! Ha komolyabb hangnyomást akarsz elérni akkor érdemes egy w tölcsért nézned ami 2 oldalt terhelt de ami itt megadtál az méretekben nem túl nagy. Ez baj! Kérdés: Hány hz re akarsz lemenni? Ha elég az 50hz akkor jó a 15" os w tölcsér terv. Ha lejjeb akarsz menni 40hz környékére akkor válaszd a 18 az rutschet. Esetleg ha a méret nem lényeg akkor tudok adni egy durva w tölcsér rajzot amit én megépítettem és teszteltem is. Nagy termekbe szabadtrébe annak nem nagyon van párja.
Hello, nagyon érdekel a terv amirol beszéltél. Megmutatod a tervet?
Nagy a valószínűsége hogy a Big Gun. :yes:
Igen így van erre a tervre gondoltam!
Ha ezt megépíti valaki annak mély tartományba nem lesz panasza! Csak sérve.... azaz a tapasztalat azt mutatja én mire egymagam befejeztem a 2 ládát mondhatni kicsit megizmosodtam. Fől le állítgatni durva tényleg. Görgő az kötelező alá,meg 4-fogantyú +egy villás szállító eszközt sem árt építeni,ha nem mindig van segítséged.
Szia!
Hangosítási célokra mindenképpen könnyű kicsi láda kell és nem feltétlen a dübörgő sub hangok. PA tehát elég az 50-60Hz-es alsó határfrekvencia. Én mindenképp a W ládát építeném meg mivel azt könnyű pakolni és ha kiraksz belőle 4-et akkor jobb mély átvitele lesz mint a rusnyának. Én már építettem olyan linkelt W ládát de javaslom az elejében elhelyezni egy megfelelő méretű reflex csövet. Sok sikert.
Nem tudom, valahogy nekem nem jött be a W láda diszkóra, lehet csak az én véleményem, de valahogy csak püffögött, semmi igazi ütős mélye nem volt, ellentétben az R-300-asokkal, azok szépen zörögtek, valahogy úgy éreztem mintha a W inkább 80-90 Hz től fölfelé érezné jól magát, létezik ez?
Üdv.
Szia, te melyik w ládárol beszélsz? És azt se értem pontosan h '' és ha kiraksz belőle 4-et akkor jobb mély átvitele lesz mint a rusnyának'' ezzel azt akartad mondani, h 4 w nek lessz akkora hangja mint egy rutschenének?
szia szerinted melyik a legjobb mélyláda ha komoly hangeröt akarok elérni akár szabadtéren is?
|
Bejelentkezés
Hirdetés |






nincs az átlagolva, hanem végre sikerült ilyen frankóra megcsinálni. Nem a hang ami a szobában terjed, azt nemigazán tudom mérni mivel nincs hozzá megfelelő mikrofonom, de kíváncsiságból most megpróbálom a talpassal hátha lessz valami belőle 
Nem kell szenvedni vele mire megcsinálod hangszórót választasz bele stb stb és a vége meg lehet az nem szól semmit !




