Fórum témák
» Több friss téma |
Sziasztok segítség milyen anyagból kell csinálni a fejet.
köszi
Sziasztok üdvözlök minden kedves fórumozót ..
Barátaim már tavaly is olvasgattam a fórumot mert én is szeretnék építeni egy gépecskét itthon gyermek kori álmom egy ilyen masina. Mára már lett két fiam akik ugyan úgy szeretnének egy ilyen gépet és folyamatosan zaklatnak hogy apa mikor lesz kész az a hírős gép. Már vagy 2 szer át olvasgattam a hozászolásokat mert igazán érdekel a téma , azt szeretném kérni tőletek hogy ha valaki épített egy ilyen gépet, vagyis a fejet tökéletesre fejlesztette és ezt rajzzal és fotóval illusztrálná azt meg köszönném. andras99 fórumozó társunk vattacukorgépfeje tetszik kérdésem hogy hogyan működik ? Mert nem látom a foton és a rajzon, hogy a fej alján lenne szoknya már mint a lángot és a hőt össze fogná valami...
Úgy látom hogy a fórumozok folyamatosan be néznek az oldalra , de mivel nincs új hozászolás így nem is írnak semmit a témáról.
köbzoli is nem rég volt itt ahogy nézem a infóját ,szerintem a téma érdekel mindenkit és szeretném ha az oldal be indulna újra, mert szerintem mindenkinek van új és újabb tapasztalata..Mindenkinek előre is köszönöm Tisztelettel :Gyula
Üdv azt szeretném kérdezni hogy pb gázpalackról hogy tudnám melegíteni a fejet milyen szár kellene hozzá?
Sziasztok!
Nekem csak 0,6-os és 1.0 mm-es fúróim vannak szerintetek melyikkel lenne jobb a furatot csinálni a forgókehely oldalára ?
mi ugy csináltunk vattacukorgépet annó valaki vett egy komplett kommersz gépet elkértem a prospektusát és irtam a cégnek hogy az okos kis feleségem véletlen kidobta amikor leszedtem tisztitani és hogy küldjenek egy fejet és néhány száz ft-ért utánvétellel küldtek
Köszi a választ!,de már készen van a forgókehely ,csak a furatok hiányoznak körbe és kész ,nem szeretném elbazilikázni,hogy rossz furatokat teszek rá.A gyárin mekkorák lehetnek neked a furatok ?Nekem a fej alján kívűlről elektromos fűtőszál melegíti a fejet csúszógyűrűkön keresztűl táplálva !
Sziasztok!
Ezen a videón nagyon jól megfigyelhető egy elég gyors vattacukorgép fejének felépítése. Üdv.: andras99
Sziasztok ..
ma egész nap az oldalt nézegetem és azon voltam hogy megfelelő fejet sikerüljön össze hozni !!Nagyon sok variációt láttam de az a igazság hogy a laszlo04fórumozó társunk alkotót feje nyerte el a tetszésemet persze természetesen mindenki nagyon praktikusan meg oldotta és ötletesen mint pl :köbzolinekem sajnos csak egy olyan ötletem támadt persze nem az én fejemből pattant ki hanem itt ahol én lakom van egy búcsúba járó árus és annak van egy maszek gépje ami MTZ80 traktor dugattyúból van ki esztergáltatva.Ime néhány megtervezett ötletem ,légysziles segítsetek ki javítani ha minden vélemény érdekel mert én még eben tapasztalatlan vagyok
Na sikerült a végén felraknom ,nem jó formátumba voltak el mentve a képek .
Valakinek ötlete azt várom
És melyikre gondoltál ? mert 2 van ott!
mennyi legyen srácok a a fej fordulata 2000-3000 vagy egy pontos és rakni kel fordulatszám szabályzót is mert gondolom nem mindig kel hogy üveg hangon pörögjön a fej .. nagyon sok kérdésem van még de csak sorba :wave:
sziasztok én ujvagyok és segitséget kérek ha valaki tudna segiteni konkrétan
kedvet kaptam a gépkészitésre töletek mevan a gép csinálva rozsdamentesböl valami baj van a fejel a rajzotok után készült nagyábol az a probléma a kristálycukrot kirakja a szélére a kivágot lukakba körbe igy nemarad az aján hogy megolvadjon és csak az olvadékot vigye fel a lukakig a lukak 1mm-és8-10mm hoszuak mi rontotam el köszi csaba
Sziasztok. Na pontosan igy csinál az enyém is ami csak prototipus ,egy darabig jól működik aztán eldugja a lukakat. De fehér olvadatlan cukorral
Zoli neked menyire vált be a gép nem szarakszik mindig tökéletes szórja a vattát, van olyan mint egy vattacukros árusé ??? persze nem olyan finoman meg munkáltra gondoltam hanem csak hogy dolgozik e olyan szépen?????
Zoli ha van róla valami jó kis videód rakd már fel ok .
hogy milyen is lett a gép ,amúgy szoktad használni?
gyula74 a te lapos tetejü fejedet csináltam meg nálam az olvatlan kristálycukrot kiveri a bevágásra igy eldugitja és nem olvad meg mi lehet a hiba nemlehet hogy alul a sarokban van hagyva rádiusz és ez megemeli felfelé a centrifugélis erö miatt az esztergályosom unja a hülyeségeimet már kelene egy jo gyári fej méretezései pontosan pl.fotti tipusu köszi
Hát az előbb írtam pont ez a baj nekem alul nem volt rádiusz,és mégis eldugult. Szerintem a hőelosztással van a baj.A kivágásnál valamiért kihül,az enyém 1mm-es rozsdamentes lemezből volt.
De most jó lenne egy kis kedv csinálónak
Zoli nem tudod a kis masinát a napokba be röffenni és képekkel vagy videóval be mutatni.
lovaszc
Én még nem raktam össze a masinát de én úgy vélem hogy, a rádiusz a sarokba csak segít az olvadt cukornak a ki jutásra .Mert ahogy én nézegetem a fejeket láttam olyat ami szinte mint egy fél gömb belseje lenne mint pl :EZ itt
Még csak itt tartok az egésszel , még a be fűrészeléseket se csináltam meg ,mert fogalmam sincs hogy hogy lenne a legjobb .
Valahogy így gondoltam
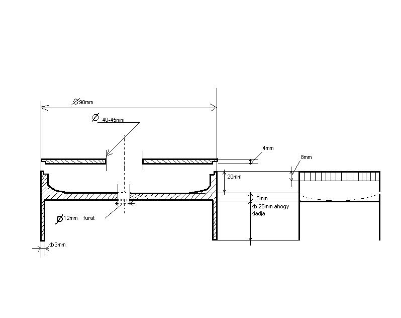
A képen van egy körkörös karcolás az azt jelzi hogy meddig kellene be fűrészelném hogy a belső szintöl 14 mm magosan legyen a befűrészelés alja
Gyula74
probáld beüzemelni minél elöbb mit csinál a tiéd kiváncsi vagyok rá ha nemjövök rá az enyém hibájára akkor lehet érdekel egy fej töled ha a tied tökéletesen üzemel várom a konkrét hibajavito profik válaszát
ilyen felyet csináltunk mi a baj vele valami jo ötlet köszi
Egy kicsit számomra nem át tekinthető, na most az első képen levőre rá húzod vagy rá rakod a harmadik képen látható kalapot???? :bummafejbe: .
Én "haladok" a továbbfejlesztéssel. Tegnap rendeltem meg egy-két dolgot, de már van új tengely, motor. Ami megmarad a régi az a gázégő. Ja, és az egésznek a háza egy olcsó fém polc. Ha megütöm az egyik oldalt, zörög, de majd rakok rá egy lécet merevítésnek. Sajnos a suli mellett nem nagyon van időm ezzel foglalkozni.
andras99
kiderült mi a hiba az enyimnél ,gyula 74 ,az elsö képre ráhuzom a harmadikat ráfogatam oldalt három csavaral ,a hiba a rozsdamentes hövezetésével van a vékony poháral "3kép" kevés hö megy fel a tetegyére
ma ráhusztam teljesen a lukak közepéig ,az aját levágtam csak 2cm hagytam a lángnak igy kisebb a höveszteség és lás csodát jön a vatacukor és nemrosz igaz mivel a fele kivágást lezártam igy lasab a tejesitménye de ithonra elég lesz most nekiálok majd a gázrendszernek mert a gázlámpa nem az igazi tul sok a hö akkor éget lesz a vatacukor ilyenkor az ize nem az igazi gyula 74 ,szerintem a negyedik fejed az jolesz a bevágásokat szerintem nemkel ferdére vágni a centrifugális erö ugyis kihoza ,afej belsejébe a rádiusz az jo csak nelegyen nagy
Örülök neki és van képed is
Én nem csináltam szemit mert sajnos nincs rá valóm most .De minden nap közelebb vagyok ahhoz hogy neki tudjak állni.Mivel hajtatod 12V os Autó fűtés motorral ,netán 220 Voltossal. Gázlámpa nem vált be ,én pedig ara gondoltam hogy abol lene a fűtés van azon |
Bejelentkezés
Hirdetés |








mennyi legyen srácok a a fej fordulata 2000-3000 vagy egy pontos






Én nem csináltam szemit mert sajnos nincs rá valóm most
.De minden nap közelebb vagyok ahhoz hogy neki tudjak állni.