Fórum témák
» Több friss téma |
Fórum » Kábeli zűrzavar, avagy a drótok, alkatrészek hatása a hangra
Témaindító: highand, idő: Aug 12, 2009
A téma átmenetileg fagyasztva lett, hozzászólni nem tudsz!
Ezt az Elmü weboldaláról ollóztam:
"Milyen tartományban szabványos a feszültség? A kisfeszültségű hálózat megkövetelt feszültségtartási jellemzőit az MSZ EN 50160:2001 "a közcélú elosztóhálózatokon szolgáltatott villamos energia feszültségjellemzői" c. szabvány 2. pontja tartalmazza. A hálózati frekvencia együttműködő szinkron csatlakozású hálózatoknál: 50 Hz ± 1% a hét 99,5% -ában és 50Hz +4% / -6% az idő 100% -ában A hálózati frekvencia együttműködő nem szinkron csatlakozású hálózatoknál (szigetüzem) 50 Hz ± 2% a hét 95%-ában és 50Hz ± 15% az idő 100%-ában A tápfeszültség nagysága négyvezetékes háromfázisú hálózatokban Un = 230V a fázis és a nullvezető között. (fázisfeszültség) A tápfeszültség változás (kiesés figyelmen kívül hagyva) 95% a hét bármely időszakába - a 10 perces átlagos effektív érték alapján - Un ± 10% értékű legyen. Hosszú tápvonalak esetében pedig Un +10% / -15% érték is megengedett. Gyors feszültségváltozás általában nem haladhatja meg, az Un ± 5% -os értéket, rövid időre elérheti viszont, az Un ± 10% -át. A tápfeszültség rövid idejű kimaradás évente 10...100 alkalom és 70% -ának időtartama kisebb lehet 1 másodpercnél. Néhány dokumentum csak az egy percet meghaladó időtartamú kimaradást tekinti rövid idejűnek" Ezen miért nem rugóznak ezek a "misztikus" emberek? Egy állandóan /nagy mértékben/ változó értékről van szó. Aki ilyen "rossz" tápfeszültséget használ azon tényleg csak nevetni lehet ha villanyórától az erősítőig lágyított kábellel érzi csak jól magát. Vagy van külön 50.00000Hz 230.00000ACV 10ppm pontos hi-fi előfizetés csomagja az áramszolgáltatóknak? ![]()
Ez még semmi, de mi van szerencsétlen Ujvilágban.
Ott eleve más hangokat kell hogy halljanak, hiszen csak 110V van a hálózatjaikban és ráadásul 60 Hz, amitöl eleve minden másképp bug a trafók meg eleve más impedanciákon dolgoznak....
Minap olvastam egy VLF (VeryLowFrequency) adásokkal foglalkozó oldalon: Idézet lent.
Röviden , amikor a lemezfelvételt készítették, akkor felvették egy ilyen VLF adó adását is a mester szalagra, amiről később az összes többi kiadott anyag készült. A stúdió drótjai szedték össze antennaként a jelet, a morzekód a mai napig ott lapul a lemezeken. Szerkesztve ! A hozzászólás módosítva: Okt 19, 2012
Idézet: „A stúdió drótjai szedték össze antennaként a jelet...” Ezt hol olvastad az altalad beidezett angol szovegben? Mert abban csak azt irtak, hogy valamelyik felveteli eszkoz nem volt megfeleloen arnyekolva ezert kerulhetett a zavarjel a felvetelre. A studioban levo kabelek altalaban arnyekolt kiviteluek (mar a '70-es evekben is azok voltak) raadasul a szimmetrikus jelatvitel miatt erzeketlenek az kozos modusu zavarokra amik esetlegesen a kabelekbol kerulnenek a keszulekekbe.
Ahol lemezeket szoktak felvenni, (stúdió) ott, vagy annak közelében nemigen szokás adóberendezéseket üzemeltetni, már az igen eltérő környezeti igének miatt sem. A stúdiók a lakott helyek közepén szoktak lenni (sicc), az adók meg nyílt szabad területen épülnek. (pusztában, mezőn, hegytetőn) Különösen igaz ez egy VLF adó esetében, ahol az antenna több, több tíz km hosszú is lehet, és a teljesítményük sem egetverő, mert a terjedés miatt nincs is szükség rá.
Ha az árnyékolt kábel szedi össze, akkor földhurok van, ami ellen jó tervezéssel védekeznek minden olyan helyen, amit stúdiónak neveznek. A hozzászólás módosítva: Okt 18, 2012
Akkor tényleg nem véletlen, hogy az amerikai zenék másképpen szólnak!
Lehet, ha ott halgatnám akkor tök gagyi lagzizene lenne...
Dolgoztam olyan stúdióban, ahol amikor elment a villamos, akkor leálltunk a munkával...
Na ezt sajnos a legritkább esetben lehet elérni (manapság már inkább) de régebben a studiok a nagyvárosok belvárosaiban voltak (Budapest, Bécs, London, New York stb.) ahol az isten sem tudta ki, hol és milyen adot meg egyébb szerkentyüt szerel fel vagy mikor vezeti be a tirisztoros/IGBT-s vezérlést az elektromos tömegközlekedésben..
Csak a 80-s években kezdtek elterjedni a tanyasi meg a hegyi studiók mifelénk is meg máshol is. Elektromos zavarok ellen aránylag könnyü jo védelmet csinálni, de egy kozeli villamos, vonat vagy repülötér bizony nem egy studiot/koncertermet könnyen tesz részben használhatatlanná. Ennek ellenére ott is születhettek remek felvételek.
Valóban, két külön dolog az akusztikus, és az elektromos zavarok elleni védekezés. Egyik sem könnyű, és főleg nem olcsó mulatság. Az MR stúdiói tulajdonképpen szobák a szobákban, a külső és belső falak között gyapot szigetelés van, teljesen körbevéve a belső szobát. (egyszer egy felújítás alkalmával volt szerencsém látni)
Az elektromos zavarok ellen a jól átgondolt árnyékolási, és földelési rendszer ad kellő védelmet. (híradástechnikai föld) A lakott területen belüli "adók" szerencsére általában nem nagy teljesítményűek, ezeket a szabványok, műszaki előírások, és az engedélyek azért legalábbis általában kordában tartják. Ezért fontosak az EMC előírások betartása, a békés egymásmellettélés érdekében. A többi, "ipari" zavar ennél jóval kisebb mértékű, (ennek mértékét is szabályozzák) és pl. a járművek mind a vezetett, mind a sugárzott zavarsugárzásának ellenőrzése a típusvizsgálat, és az engedélyezés része. (az elektromos autót építgetők legnagyobb bánatára) Azonban ezek a zavarok sokkal hamarább okoznak problémát a földfelszíni műsorsugárzás vételében, mint agy stúdió jól megkonstruált hangrendszerében. Persze léteznek olyan saját minden szaktudás nélkül összerakott stúdiónak nevezett "alkotások" ahol se tudást, se energiát, se pénzt nem fordítottak az ilyen "apróságokra", és csináltak egy stúdiót egy panelház 5. emeletén, aztán lőn csodálkozás. A hozzászólás módosítva: Okt 24, 2012
Most megint el lehetne beszélgetni sok mindenröl, mert annyi témát adtál. A ház a házban studio nem uj, már a háboru elött is épültek ilyenek. Aki valoban hangszigetelt termet akar, az mást nem igen tehet - vagy elmegy a tanyára.
Az EMC zaj viszont messze nem ugy van, söt egyre rosszabb (vagy rosszabbul mérik). Nagyon sokáig szerettem az autorádioban az AM adókat hallgatni (amig még adtak). Érdekes volt megfigyelni, hogy amint az ember átlépte az akkori vasfüggönyt kifelé a zavar egyre nagyobb lett. Manapság meg már nem is hallanál semmit az állitolag bemért, vizsgáztatott stb. jármüvek miatt. Ma már az 50 Hz-es hálozat is zavar - hiszen rámodulálnak mindenféle jelet. Régen ez is ismeretlen volt. Arról ne is beszéljünk, hogy mennyit zavarnak a modern "takarékos" világitotestek. Állitólag minden tipus átment egy idevágo vizsgán.... ![]() A másik meg az, hogy mindig akadt profi berendezés is, ami bizony zenélt, csak nem ugy ahogy a zenész/hangmérnök akarta. A mikrofonkábel fogta a közeli ado jeleit, a gitárerösitök dettó, szoval nem igen volt leányálom régen sem tiszta hangot varázsolni a szalagra.
Kacsa! Vazze, eszembe nem jutott volna.
![]() Neked meg ilyen forraszanyag kellene. A hozzászólás módosítva: Nov 11, 2012
Az AEM 600as panelek vannak nálam ilyennel forrasztva, mert kaptam egy tekercset amin van vagy 10méter, de azt mondta egy hozzáértő guru, hogy mindegy, mert a panel ónozott, és az nem jó a hangnak. Na bumm, ezt jól elcsesztem, szegény hang....
Ha ezt tudom aranyoztatom. Ja és a védőlakk is elrontja a hangot, aztat is mondta a guru.
Nem hinném, hogy ez a fajta forrasztás sokat befolyásolhat a hangon mert annak a folyasztószer maradványok és a szennyeződések és a forrasztásban kialakult oxidok úgyis keresztbe tesznek
. Nekem volt pár ügyfelem akik kimondottan folyasztószermentes forrasztást kértek, sőt volt olyan is aki kifizette a "clean-room" szerelés extra díját, mert tökéletes forrasztást akart a lehető legalacsonyabb szennyezettséggel. Mivel visszajáró vendégek voltak ezek a "kacsák" ezért nem mondtam a képükbe, hogy szerintem hülyeség az egész és inkább igyák el az erre szánt pénzüket. Bár ha szerintük jobban szól akkor biztos lehet benne valami hiszen a pénzes vevőnek mindig igaza van ![]() A hozzászólás módosítva: Nov 12, 2012
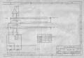
Egy egyéb fórumon vesézgették a kisjelű kábelek dolgait, ahol az egyik résztvevő beszélt az összekötő kábelekkel kapcsolatos eljárásáról.
Aktív kábelezésnek hívják, nem teljesen (egyáltalán) nem értem a lényegét, de állítólag néhány tízezres összekötő kábelt vált ki az eljárás. Ha segítene valaki felvilágosítani, mitül jó? ![]() A rajz nekem nem is szimetrikus a két csatornát, huzalok árnyékoltságát, bekötését tekintve, szóval opálüveges nekem némiképp.
Ez egy elég faramuci ál-szimmetrizáló. Lényege, hogy a jel, és a test is a belső erekben mennek. A köpenyre meg rávezetik az ér inverz jelét. A köpeny galvanikusan nem kapcsolódik a testre közvetlen. A test szálé meg totál a levegőben van. Hatékonyságáról nem tudok nyilatkozni.
A hozzászólás módosítva: Dec 14, 2012
Szia! A jelkábel harisnyája fázis és amplitúdó-azonos meghajtást kap, folyománya: a jelere nézve nincs kapacitív kábelterhelés.
A harisnya révén a jel és a test azonos RF védelmet élvez. Induktív közegben pedig minkét szálat (jel és test) azonos hatás éri, a keletkező hibajel nem képez különbséget a hasznos jelre nézve. Ezt a részét valaha összesodort érpárral oldottuk meg. A hozzászólás módosítva: Dec 14, 2012
Ezt a kapcsolást a műszeriparban úgy 60-70 éve alkalmazzák... A lényege az, hogy megszünteti a kábel jel/árnyékolás kapacitását, mivel az árnyékolást kis impedancián a hasznos jel feszültségére húzza... Ismerem ezt a kapcsolást
Egyébként az alkatrészek (ellenállások) hangjáról a véleményem (NEM, inkább a tapasztalatom)... Lényegében például,[sub][/sub] valahol egy anódmunkaellenállás olyasmi, mint az áramkimenetű DAC-chipnek az IV konverter... Bizonyos minőségi szintű erősítő felett már meghallani a minőségét. Nem kicsit
A csatolókondik... Főleg a végcső rácsán... Miért is csak DC csatolt csöveseket építek... Más...
Persze megvannak a hátulütői... De vannak, akik ezekkel együtt tudnak élni Idézet: „megszünteti a kábel jel/árnyékolás kapacitását” És vele együtt az árnyékolást is.
Mindenkinek köszönöm a segítségét.
Már érteni vélem, a belső ér feszültségét követi a műveleti erősítővel meghajtott árnyékolás és mivel nincs így potenciálkülönbség, kapacitás sem van. ![]() Az általam említett helyen is említék, hogy ez egy régi dolog, azonban a hangtechnikában komoly tízezreket is megspórolhat az ügyes kezű, mert nagyságrendekkel növekszik az átvitel minősége - olcsón... A kontroll is egyszerűnek tűnik, ki fogom próbálni, ha az építés alatti cuccaimon érzékelhető javulást hoz,rendszerbe állítom a dolgot. Csatoló kondik dolgában is kíváncsi vagyok,meg úgy egyáltalán...Bízom a minőségi különbségek számomra is észre vehetőek lesznek.
De most tényleg, több-száz méterre el akarod vinni a jelet, hogy foglalkozni kelljen a kapacitás tényével? Erre ott van a csavart érpár (írták már). Az egy méteres kábelen, amit csupán pár-száz milivoltal táplálsz, ugyan nagyságrendekben mekkora kapacitás jelentkezhet? Arról nem beszélve, hogy a köpeny semmilyen árnyékolást nem végez. Ha egy külső zavaró impulzus (villámlás, ívet húzó villanykapcsoló) megemeli a köpeny potenciálját, az a kapacitív elv hatására ugyan úgy rájut a belső érre, s nincs semmi, ami ezt kompenzálja. Ez kizáróan csak a szimmetrikus kábelezésnél történik meg.
Nem egyszerűbb lenne a stúdiótechnikában is bizonyított szimmetrikus kábelt használni? Csavart érpár + árnyékolás a földre kötve. Egy DAC-ot, RIAA-t alapból szimmetrikus kimenetűre kell építeni. A PP-s végfokoknál meg nincs szükség fázisfordításra. Egyébként, egy mezei UTP kábelen sok-száz méterre elvihető egy színes videojel, ami tudjuk igen nagy megaherczeken ketyeg. Nagyon is szemmel látható lenne, ha valamilyen torzulást szenvedne a jel. A hozzászólás módosítva: Dec 15, 2012
Nem is tudom hogy kezdjem.
![]() Szóval került egy jobbféle hangsugárzó hozzám. (USHER X-719) Voltak itthon "minőségibb" kanócaim. IC-ként egy Kácsa Silver Line szériájának szimmetrikus sztereó összekötő kábele,( tömör ezüstözött réz (SPC) 2 * 0,5 mm² vezetővel. Kétszeresen árnyékolt (Al-Mylar fólia és OFC réz harisnya), a két ér és a PVC köpeny közötti teret gyapotszálak töltik ki) dugók RP-412GT szolgált. Erölködő egy vöfö kettes, forrás egy QS szériás sunyi dörzsölő, a tesztlemez természetesen a Yello Touch-a volt. ![]() Először egy sima Somogyis 2,5mm2-es kábellel kötöttem össze a cajgot. Nem volt semmi különös szólt ahogy szólt. Aztán, bekötöttem egy Qed Original 2x1,5mm2 kábelt, egyik végén Nakamichi banán, másik végén Kácsa BP-013G villákkal. Hát babám, ha nem ültem volna, leülök. Olyan mélyek jöttek, hogy csak lestem. Felbuzdulva előszedtem egy Catharsis CE-SP-0069-es OFC 2.50mm2-est, lapos kivitel, szilikon borításban. Úgy eltűnt a mély, és megfakult a magas mint a huzat. Vissza a Qued-et. És vissza is álltak a sávszélek. Nos pl. a B&W 602S3-nál semmi változást nem hallottam, mikor cserélgettem a kanócokat. Ez számomra azt jelenti, hogy egy igencsak drága berendezésekből álló rendszernél valóban van a hangra gyakorolt hatása a kanócnak, bár érteni a mibenlétét a jelenségnek most sem értem, és magyarázni sem tudom, de hallom. Mindenesetre másokon is le fogom tesztelni, lehetőleg olyan gyaur fülűeken mint jó magam.
Üdv a táborban!
Én rongyra gyűrtem a diplomámat, amikor beletörődtem, hogy ez igenis létezik... Most fogsz kb. odaérni a gyors neutrínó hatáshoz, ha még ezekben a pillanatokban is tesztelsz. Azaz este 10 óra körül leromlik a hang, eltűnnek az ilyen különbségek és csak fél 2 körül jönnek vissza. A tesztelésre legjobb idő du. fél 4-től kb 6-ig. Agyrém. A hozzászólás módosítva: Dec 29, 2012
Akkor szoktam jót mosolyogni amikor leírják (és mereven ragaszkodnak is hozzá), hogy márpedig nem lehet különbség kondi és kondi között sem, mert ugyanakkora a kapacitásuk meg különben is. A kapacitásuk az tényleg ugyanakkora, csak teljesen más a formájuk, a méretük, más a dielektrikum stb...
A baj az, hogy keritésdrotot hasonlitgatsz ezüst ékszerhez.
Azt hittam, hogy legalább 40 éve köztudott (már a hajdani HFM is foglalkozott a témával - magyar nyelven, magyar olvasonak), hogy a hangszorokhoz, föleg a passzivokhoz és föleg a kis impedanciákhoz illik a jo, jobb - még jobb kábel (a bugyelláris a határérték). Hogy ezen feltételek teljesitése után melyik kütyü hogyan reagál, az már egy más kérdés. A jobban sikerült dolgoknál nem biztos, hogy különbséget fogsz hallani (romlást soha), az érzékenyebb belvilágú berendezések meg egyenesen felcsillannak, ha megkapják azt, amit a keritésdrót nem biztosit számukra.
Sziasztok!
Az a kérdésem, ha egy laptopot és erősítőt összekötök, szól-e majd úgy, hogy a laptopből 3,5mm jack és az erősítőbe meg a csatornába nagy jack(átalakítóval-kicsiből nagyot csinálva)? |
Bejelentkezés
Hirdetés |










