Fórum témák
» Több friss téma |
Fórum » Inverteres hegesztőtrafó
Pontossan nem tudom, oljan 85-95A-közé teszem.
Ha a veszteségeket figyelmen kívül hagyod,akkor a trafó feszültségáttételével fordítottan lesz arányos az áram átlagértéke.
Ha nem kalkulálunk veszteséggel, ez helytálló is. Hiszen az ívfeszültség 20-22V környékén van, az áram pl. 100A, akkor az 2000-2200VA látszólagos teljesítményre jön ki. Ha ebből visszaszámoljuk a hálózati feszültség csúcsértékét figyelembe véve(mert a pufferkondik erre töltődnek) kb. 8A-t kapunk. Persze ennél komplexebb azért a dolog, igen sok áramfelvételt befolyásoló tényezőt kihagytunk, de alapjaiban a matek ezt mutatja. De ez nem jelenti azt, hogy 200A terhelőáramnál 16A elég.
Helló
Csatlakoznék én is Boldog meghitt karácsonyt,és sikerekben(építési is ) gazdag új évet kívánok.
Helló
Az uc 2845-öt hol vetted,nem emlékszel véletlen?A macimban lecserélném az ic-ket,hogy hidegtűrő legyen kissé,de nem nagyon találok olyan helyet ahol mind a 4 tipust árulják ami nekem kell.Több helyről meg nem rendelnék a posta miatt.
A témákhoz kapcsolódva....
kérdezném, hogy ki tudja a galván ónozáshoz milyen összetételű elektrolit kell? Mielőtt a drága mod. urak kidobnának innen, akkor közlöm, hogy a többi helyen már olvasgatam remény és eredménytelenül. Meg aztán nyákot a maci építők is gyártanak, akár profi mínőségben is. A kémiai ónozó nem elég jó, ahogy azt a topikokban is állítják. Amúgy a foto eljárás jött be, és ahhoz meg dukálna a rendesen ónozott felület.
Így van ahogy mondod.Csak nekem mindenféleképp az áramváltón egy Kb értéket meg kell adnom a pic nek hogy tudja Kb hol tart.Majd éles próbánál lehet finomítani.4A bemenőre állítottam 50A kimenőt
A hozzászólás módosítva: Dec 24, 2012
Elektrolitikus horganyt csak egybefüggő felületre tudsz felvinni, mivel az egyik elektróda a horganyozandó felület, a másik pedig nagy tisztaságú fémhorgany . Ezt a módszert nyák horganyzására nem javaslom, mert a maratófürdők a horganyt igen intenzíven oldják(kb 20x gyorsabban mint a rezet)és amire észbe kapnál, már csak a nyoma maradna a maszkolásnak.Tehát mindenképpen olyan eljárás kell ami lehetővé teszi az utólagos horganyzást. A horganyfürdő pontos összetételére nem emlékszem, de az ünnepek után meg tudom kérdezni a volt galvános kollégáimtól.
Hááát, ha lelőnek sem tudom megmondani most. De nem a környékről jött az bztos.
Szia!
Keresd meg ebben a témában Gulasoft fórumtársunkat.Neki van fenn videója is .
Lehet, pont ezt a videót láttam, de nem emlékszem, hogy említésre került volna az összetétel...
Mindenkinek köszönöm a gyors választ, nem is gondoltam, hogy így karácsony napján már segítséget is kapok. Még egyszer köszönöm!!
Boldog Új Évet kívánok mindenkinek, hasznos és sikeres építést az Új évben!
Üdv!
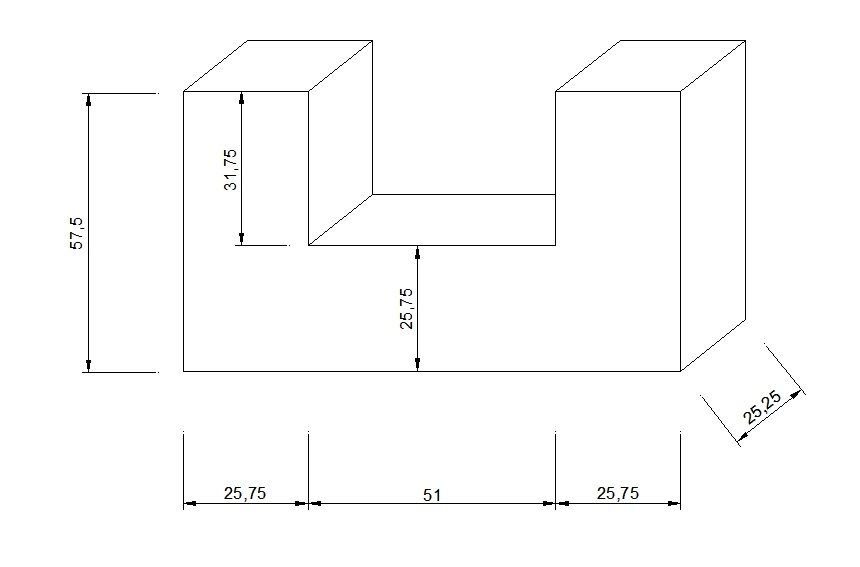
A két ünnep között elkezdetem olvasni a témát, foglalkoztat a gondolat, hogy belevágok egy berendezés megépítésébe. Nem vagyok teljesen járatlan kapcsolóüzemű tápegységek terén 2-3 kisebb teljesítményűt készítettem magamnak és évek óta üzemelnek megbízhatóan. Mivel az elején tartok a téma átolvasásának (és határozott szándékom, hogy végig is olvasom) ezért egyenlőre a Maci féle 130A-es kapcsolással szemezgetek (eddig jutottam a két ünnep között). Felmerült bennem egy-két kérdés. A transzformátor tekercselését viszonylag részletesen leírja Erdgab, ehhez kapcsolódik az első kérdésem Viszonylag könnyen hozzá tudok jutni flexibilis rézsínhez pl. 2m 13x3x0,5-ös méretű, gyakorlatilag 3db. 2m hosszú 13mm széles 0,5mm vastag réz szalag egy közös szigetelésben. Ebből egy szalagot egymásra tekerve a megfelelő szigetelő anyagot a menetek közé helyezésével tekercsként funkcionál. Mivel gyakorlatilag szalagról beszélünk ezért a felülete is nagy a skin hatás miatt ez gondolom előny. Primerre 1 db szalag elég ez 6,5mm2 keresztmetszet és úgy gondolom nem túl rossz tekercskitöltési tényezővel. Persze transzformátor és csévetest válogatja. A szekunderre mondjuk 20x1-es azaz 20mm2 szintén elfogadhatóan nagy felülettel vagy a maradék 13x0,5-ös megfelelő variálásával. Nem tudom van valakinek ezzel tapasztalata, érdemes vele foglalkozni? A második kérdésem a mellékletben található U magra vonatkozik, használható valamire? Mérete a rajzon látható, keresztmetszete szerintem elégséges ~650mm2. A rajta szereplő felirat alapján viszont nem tudok rá anyagjellemzőt (1F53C 5A2B), legalábbis ez alapján én nem találtam semmit. Van rá mód, hogy kiderítsem használható-e? Köszönöm Hegman
Fojtónak biztos hogy jó, de trafónak is ha bírja a frekit. Ha nem mész vele 28-30kHz fölé biztos hogy jó lesz, de lehet hogy magasabb frekin is. Ha tudod mérd meg az Al értékét, néha abból is kiderül valami.
Érdemes egyébként erre a célra összedobni egy kis félhidat, nem muszáj neki a hálózati feszről menni, mehet akár 40V-ról is. Aztán máris lehet kísérletezni a frekivel, gerjesztéssel stb. A hozzászólás módosítva: Jan 4, 2013
Helló
Primérnek szerintem nem igazán jó a réz szalag szerintem.Inkább csinálj egy sodratot ahogy a leírásban van.Apropó írás.Ha nem akarod feltétlen átnyálazni a 300 oldalt elég az utolsó 40-et is.Ebben szinte minden benne van az én szerencsétlenkedésemnek köszönhetően
Békés, Boldog - kapcsolásokban gazdag - Újesztendőt kívánok mindenkinek!
Lehet hogy szerinted nem jó primernek szalag,a gyári gép építők szerint meg jó ezért avval tekerik a primert is.Én is tekertem szalaggal primert szekundert is,az áram mind két oldalon áram.
Szerintem a skin hatás tekintetében az a lényeg, hogy a tömör kör keresztmetszettől minél jobban eltérjünk, mert a kör alakú anyagoknak a legkisebb a felülete ugyanakkora keresztmetszetű más alakú anyagokéhoz képest. Épp ezért jó a szalag formájú vezető.
Szervusztok!
Segítséget szeretnék kérni mert egy VIPer-es segédtáp kétvállra fektetett. A táp egy EXTOL 160-as gépben van. A gépben viszonylag sok alkatrészt kellett cserélni(végfok IGBT-k;snubber elemek;meghajtó optók;VIPer és a hozzá tartozó alkatrészek;segédtáp snubber alkatrészek)mert aggregátorról akartak vele hegeszteni. Miután minden alkatrészt kicseréltem, külső segédtápról indítva a gép megy, PWM kör működik, bár elég érdekes tulajdonsággal, de ez kapcsolástechnikai tulajdonság. Miután a szabályzókör élesztése rendben megtörtént, gondoltam csinálok egy toroidos próbát. A segédtáp kb. 40V-nál beindult, minden segédfeszültség rendben, VIPer tápfesz 13V, ez is rendben. A hálózati tápot tovább emeltem kb 120V-ig, minden OK. Kb.150V-nál a segédtáp megállt, a VIPer ; a 2.lábára kapcsolt 2,2k ellenállás és a VIPer tápon levő 18V-os zener elhalálozott. Alapos ellenőrzés után alkatrészcserék, újabb ellenőrzés, próba. Eredmény ugyan az. Segédtrafó kiforraszt, ellenőrzés, induktivitásmérés, szigetelésvizsgálat 1000V-al. Minden OK. Segédtáp snubberkondi szivárog, -csere; snubberdióda csere, hátha rossz, csak műszerrel mérve mutatja magát jónak. Új VIPer beépítve, újabb próba, minden jelalak, feszültségszint folyamatosan ellenőrizve. Minden rendben -150V-ig. Aztán újra elszáll a VIPer és a hozzátartozó alkatrészek. ![]() A gép kapcsolástechnikailag erősen hasonlít a TELWIN Tecnica 141-re, de nem egészen ugyan az. Az alaplapi kártya KENDE 80-100 típusnévre hallgat. Mellékelek egy rajzot, ami szinte teljes mértékben ugyan az, csak az alkatrész számozások mások. Ha valakinek van ötlete,hogy mit hagytam figyelmen kívül ne tartsa vissza magát, írja le. Minden építő ötletet szívesen olvasok.
Sziasztok,
Segítség,egy FET vizsgáló kapcsolásra lenne szükségem,mert már csak olyanok vannak amik voltak forrasztva és nem tudom,hogy melyik jó.
Nézd meg a viper szekunder, illetve segédtekercs oldalát. Vagy simán egy segédtekercsről megy a fesszabályozása, vagy a szekunderéről egy optón keresztül. Ezeken a helyeken a legkisebb hiba (kiszáradt elkó, visszáramos dióda stb.) és kész a baj. Mondjuk elvileg nem mehetne tönkre mert árammódú. Ha van szabályozható (pl. 0-tól 150-200V-ig) áramkorlátos tápod akkor próbáld arról elindítani, és figyeld az áramfelvételét egy analóg műszeren keresztül. Ha túláram van, a műszeren szépen látni ahogy ki-be kapcsolgat, ehhez már 40-60V DC elég. Van egy IC (TNY) ami ezek között a legjobb, csak annak a teljesítménye szerintem nem elég ide mert csak néhány W-os. Azt eddig nem tudtam tönkretenni, pedig kínoztam többféleképpen is.
Tessék. Ez egyszerű és nagyszerű. Vagy csináld meg a PIC-es tranyótesztert (van topikja), az minden adatot kiír róla (pl. N vagy P, melyik lába melyik, belső dióda nyitófesze).
Nézegetem a felrakott rajzodat,meg a gyári rajzát a vipernek,a szekunderről köss le mindent,próbáld meg hogy megy-e a táp.A gyári rajzon a visszacsatoláson nincs semmi terhelés,ezen meg a lágy índítás meg a venti is rajta van.Nem lehet hogy valamelyik túl terheli a vipert?
Ge Lee,A teljes hidon az igbt ken mekkora fesz kapcsolódik?Csak azért kérdem mert hozzá lehet jutni 330-360V igbt hez olcsón.Elvileg a teljes hidnál a kettő-kettőn a 310V van,elég lehet a 330-360V igbt?Az IRF740 400V tud akkor a 330V épp a határon lehet?
A hozzászólás módosítva: Jan 6, 2013
Teljes hídon a teljes bemenőfeszültség. 230 +10% 253V egyenirányítva 359V. + 10% tranziens, tehát 360V-os kapcsoló LEHET hogy egyes területeken működne, de ahol magasabb a hálózati feszültség átüthet.
|
Bejelentkezés
Hirdetés |




Boldog meghitt karácsonyt,és sikerekben(építési is












