Fórum témák
» Több friss téma |
Fórum » A műhely (bemutató topik, ahol az alkotások készülnek)
Témaindító: Müszi, idő: Okt 19, 2006
Témakörök:
Ez a műhelyünkről készült képek, leírások, mi miért oda került, hogy lehetne még jobb hozzászólások témája.
Mutasd meg batran es ne legyen miatta rossz erzesed. Engem mindig a szemely erdekel aki a muhelyt hasznalja. A tobbi csak szinhaz. Sok dolgot megkonnyit egy agyon felszerelt muhely de a szakit nem helyettesiti! Hidd el verzek minden iranybol minden nap ha analog elektronika kerul elem. Es itt sokan akiknek meg a tiedhez hasonlo muhelyuk sincs lehet (biztos), hogy megesznek engem is ezerszer ha analog aramkorokrol kell eszmeket felvonultatni. Ezert sem akartam mutogatni a muhelyem mert nem szerettem volna azt, hogy mas muszereszeknek emiatt legyen rossz erzese vagy akar csak picit is "szegyelne" a muhelyet (viszont szerettem volna akkor is velemenyeket hallani). Kar lenne mert sok sok sok sok peldat vettem masoktol. Sok negativ peldat is ami nyilvan ugyan olyan pozitiv hatast ert el az en muhelyemmel kapcsolatban. Amit pedig nem szaba elfelejteni, hogy abban az esetben ha a parom nem toleralna azt, hogy munka utan 2 orat minden nap a muhelyem tokeletesitesevel es takaritasaval toltok idestova 4 eve akkor eselyem sem lenne...
A hozzászólás módosítva: Jan 16, 2015
Viccnek szántam, egyáltalán nem szégyellem, ilyen műhelyem van. Már nincs a másik asztalon amúgy ekkora rendetlenség, összetakarítottam és azóta készült pár kis elektronika rajta. Ha szégyellném akkor nem mutattam volna meg. Az asztalon a polcok, a legtöbb készülék mind az én kezem munkája. Kicsit csálé mind, de saját. Már rengetegszer volt átrendezve, most már kezd kialakulni a (bútorok szempontjából) végleges forma. A te műhelyed már az az igazi profi helység, amiről mindenki álmodik.
Mostani műhelyem. Nos nem szégyenkezek, épp a "csodát" alakítom át, ma pihenőnap volt. Rendrakás elkezdve de még nem 100% a beköltözés. Van itt lézer, maró és készül egy eszterga. A maró (kókányolás) kilométerórája már nagyon ki van, sokat ment. Elektronikai rész nincs jelenleg, vagyis van egy forrasztó és egy analóg multiméter meg egy dvm ami segít. Építeni munka mellett nem nagyon van idő, és mit ? Nincs mit szóval megy a forgácsolgatás inkább.
Teendők listája két gép vázában, mindegyik gép helyi megvilágításában levegőrendszerrel ellátásában kimerül, vakolni és festeni is kell, sőt a lézer új burkolata is vár összerakásra. Elsődleges hogy menjen az eszterga meg legyen váza és külső burkolata, hűtésrendszere, szán kenése és szán burkolata, szennylehúzója illetve köszörű is kapjon vázat. És hogy ne tétlenkedjek egy nem játék ám picike cserélős főorsó is vár átnézésre, aztán elektronika neki és egy komolyabb nem könnyűfém alapú váz. Jelenlegi eszterga állapot egy sebtében összerakott sürgető munka miatt kellett, a kerekeket elfelejtem róla, sokkal jobban fog üzemelni ha nem én tekerem, főleg mert lustaság fél egészség. Inkább pötyögök 3 sort, de azért tekerni is élvezetes egy jó gépet, hát ez nem az. A hozzászólás módosítva: Jan 16, 2015
Nekiálltam takarítani, pakolni és rendet rakni.
De csendben azért unalmas... Köszönet az ingyenes felajánlásokért (és bizonyítékként, hogy felhasználásra is kerülnek) : - Kálmán (másik, nem granpa ) a dobozokért (jó, azért kozmetikai hibái vannak);- Sebi tápegység (ámbár újra kellett tekercselni); - Mineral (autórádió, CD-t még mindig nem játszik le).
Szóval, itt készült az órám, ami a falon van
![]() Azért azt az esztergát elfogadnám, még akkor is, ha septiben raktad össze!
Masszívnak látszik.
Hogy tudjam, hogy mit hová tegyek és melyik lyuk miért van
De mégis mi ez? Mert szépnek szép, de mire használsz egy lyukas ülőkét?
A hozzászólás módosítva: Márc 15, 2015
Ha nem tévedek régebben volt szó egy felsőmaróról asztal alá építve, vagy annak házi verziója. Nekem ez ugrik be.
Sima körfűrészalátét. Hasonló van nekem is.
Eredetileg hokedli volt, most bővült pár funkcióval:
- Pont belefér alulra a hegesztő trafó. - Marógépet alulról lehet rögziteni és az asztalon lehet szépen vezetni a munkadarabot (és nem kap bele annyira könnyen). - Szúrófűrészt is lehet alulról rögziteni és két kézzel lehet vezetni az anyagot. - Köszőrűt rá lehet csavarozni. - Gyorsdarabolót az asztalával rá lehet csavarral rögziteni. - Mobil munkapadot is rá lehet csavarozni. - Persze ülni is lehet rajta (miután levettük a marógépet ).Praktikusan néhány lyukkal, körmös anyával és Teschauer csavarral nagyon kényelmes és biztonságos munkahelyet lehet kialakitani... Ami még nincs rajta: Egy konnektor és kapcsoló, amivel a marógépet és fűrészt kényelmesen ki/be lehet kapcsolni.
sziasztok
végre én is megmutathatom a műhelyem.Nemrég lett kész a burkolás, festés, villanyszerelés.A pincénkben van,ami jó mert nyáron is kellemesen hűs.A szomszéd helyiségben kazánház van, így télen meg meleg. ![]() A szortimenteket nemrég vettem, nagyjából már belaktam őket.Van pár szekrényem, szépen elférek egyelőre.A kábeles net csatlakozás mindig kevés volt, ezért raktam fel egy 8 portos switch-et, az elég lesz. Van 3 fázisom is, néha szükség lehet rá.Még egy leválasztó trafót majd szerzek, az még hiányzik, illetve majd még "menet közben" alakul hogy mire lesz szükség.
Remek!
A hozzászólás módosítva: Márc 18, 2015
Remekül fest! Nem kényelmetlen a teli elejű asztalhoz ülni? Esetleg, valami irányított fényt a munkaterület közvetlenebb megvilágításához érdemes lenne beszerezni/fabrikálni.
Ez szép műhely, igényes kivitel, nyári hűs, téli fűt jó dolog. A szekrény teteje asztalnak nem lesz jó, mert a lábakat nem lehet asztal alá tenni széken ülve. Oldalt ülve a derekad fog fájni.
És a megvilágítás mint mikrokapcsoló is mondta ha már külső fény nincs, kevés lesz. A hozzászólás módosítva: Márc 18, 2015
A képeken nem látszik, de van ablak a helyiségen, igaz nem túl nagy (90x60-as), és pont a hátam mögött, de azért némi természetes fény is van.A képeket este csináltam,és nem sikerültek valami jól, a valóságban bőven van fény.Egy 2x58W-os rácsos fénycső lámpatest van felül,ez csak az asztal megvilágítását szolgálja.Illetve van két mennyezeti lámpa is, de ezeket nem is használom bütykölés közben.A falakat, mennyezetet is a fény érdekében hagytam fehéren.De majd alakul ez is, lehet hogy a szortimentek aljára teszek LED csíkokat, így az asztalra világít közvetlenül, és a szememet sem bántja.
A szekrény ajtajai levehetőek, és még csak most költöztem be ide,majd meglátom útban lesznek-e, vagy átülök a másik asztalhoz.
Nem gondoltál még arra, hogy megcseréld a szekrényt és az asztalt? Túl azon, hogy a polcos részt ki tudod használni az asztal lapja alatt is, a műszerek is látótávolságra kerülnek. A tárolószekrény berendezésénél a bal oldali ajtó mögé ritkábban használatos cuccokat tennék. (már ha a háromajtósnak ott kell maradnia).
Üdv.: PP A hozzászólás módosítva: Márc 19, 2015
Egy tartót készítettem a műhelybe a monitornak ne az asztalon legyen.
Szia!
Látom Aldi féle szortimentet használsz... Én csak ajánlani tudom, ár/érték arányban remek termék (ekkora méretben műanyag szortimentek mindenütt csak drágábbak voltak). A feliratozásához pedig ajánlom figyelmedbe ezt az írásom: Bővebben: Link
Köszönöm mindenkinek az elismerő szavakat.
![]() @bbb Igen, Aldi-s szortimentek, tényleg jó áron voltak, és jó a minőségük.
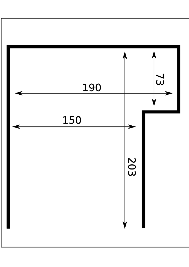
Sziasztok! Abban a szerencsés helyzetben vagyok hogy lehetőségem van kialakítani a társasház tárolójában egy kisebb műhelyt, de mielőtt átköltöznék az étkezőasztalról egy nagyobb térbe szeretném kikérni a véleményeteket, hogy miként lehetne a legjobban és a legpraktikusabban megvalósítani a rendelkezésre álló helyiségben.
Csatolok egy vázlatrajzot és egy fotót is a helyszínről, hogy jobban el lehessen képzelni a miliőt (az ablak keleti tájolású). Teljesen kipakolnám a szobát, szóval az alaprajz méreteivel lehet gondolkozni. A legnagyobb problémát az jelenti, a jobb felső sarokban lévő kis beugrót, hogyan lehetne a legjobban kihasználni. A műszerekre és a felszerelésekre tekintve nincsen nagy géppark, mivel csöves erősítők javításával, barkácsolásával foglalkozok és ezt szeretném kicsit magasabb szintre vinni az új környezetben. Szóval multiméterek, pákák, szkóp, jelgenerátor, labortáp és a szokásos csavarhúzó-fogó-csipesz szentháromság - meg persze alkatrészek. Szasszikat, dobozokat nem tervezek itt csinálni - szóval semmilyen komolyabb, nehezebb gépem nincsen egyedül, ami még van és mozgatható az egy laptop, amit használok főleg rajzok és netezés miatt. Kinek milyen ötlete, meglátása lenne hogyan lehetne a leghasznosabban berendezni? Köszi előre is! András A hozzászólás módosítva: Ápr 2, 2015
Hello!
Én így rendezném be,mert az asztal közvetlenül kap fényt és nappal talán még világítás sem kell.
Szia!
A jobb felső sarokba (a terven) polcokat tennék, mellé közvetlenül aztalt, de úgy hogy az asztal lapja beérjen a falig, vagy akár teljes 190-es szélességben (mintha egy polc meghosszabítása lenne.) Kis helyen megfelelően elhelyezett polcok nagyon praktikusak tudnak lenni. A polcok távolságát kb 30-40 cm-re választanám, bár attól is függ mit akarsz rátenni. A szemközti falra is lehet tenni polcokat.
Annyi még, hogy a bal oldalon van egy régi konvektor és a hozzá tartozó gázvezeték (amikről nem tudom üzemelnek-e egyáltalán), amit nem lehet mozgatni és belezavarhatnak a képletbe.
Pár tegnapi kép a műhelyemről és a Főnökről
|
Bejelentkezés
Hirdetés |










) a dobozokért (jó, azért kozmetikai hibái vannak);





















