Fórum témák
» Több friss téma |
Fórum » 230V/400V-os áramfejlesztők
Témaindító: oregharcos, idő: Jún 19, 2007
Témakörök:
Üdvözlet mindenkinek,a kérdésem az lenne van egy aszinkron motorom 3 fázisú abból lehet aggregátort csinálni ha robbanó motorral meghajtom ? köszi a hozzáértőknek, kérem csak azok válaszoljanak.Oszkár
Jó napot kívánok!
Visszaolvasás során láttam, hogy szóba került a firman spg 2500 típusú áramfejesztő de nem derült ki számomra, hogy meg szabad-e venni? Tudom, hogy nem egy "elit" márka, de most egy barátom örökölt egy ilyen típusú gépet és el akarja adni. Én vevő lennék rá, de nem tudom mennyit érhet (kb. 3-4 éves, túl sokat nem használhatták). Ezeknek mennyi az új ára?Egyáltalán érdemes lehet egy "noname" áramfejlesztőért pénzt adni? Ha valakinek van tapasztalata vele és megosztaná velem, azt megköszönném! Köszönettel:Norbert
Van tapasztalat - de nem túl jó. Vettünk egy 6kW-os noname generátort, aminek besültek a szelepei kb 1 hónap után.
Értem. Köszönöm a választ.
A kérdés, hogy mekkora az a 3 fázisú motor,illetve milyen kapcsolású. Amelyik motor üzemszerűen delta kapcsolású, az alkalmatlan arra hogy 400/231V-ot lehessen vele előállítani. Csak csillag kapcsolású motor jöhet számításba, és a kondikat -ami a gerjesztést csinálja deltába kötve kell a 3 fázis közé bekötni. 4kW-hoz 3x50µF-os kondi kell, és legalább 450V-os. A hajtómotor teljesítménye kb. 20%-al nagyobb legyen, mint az a teljesítmény amivel a generátort terhelni szeretnéd. A motor mindenképpen fordulatszám stabilizált legyen, mert ha nem az, akkor a terhelés csökkenésekor túlpörög és durrognak a kondik a túlfeszültségtől.
Sziasztok!
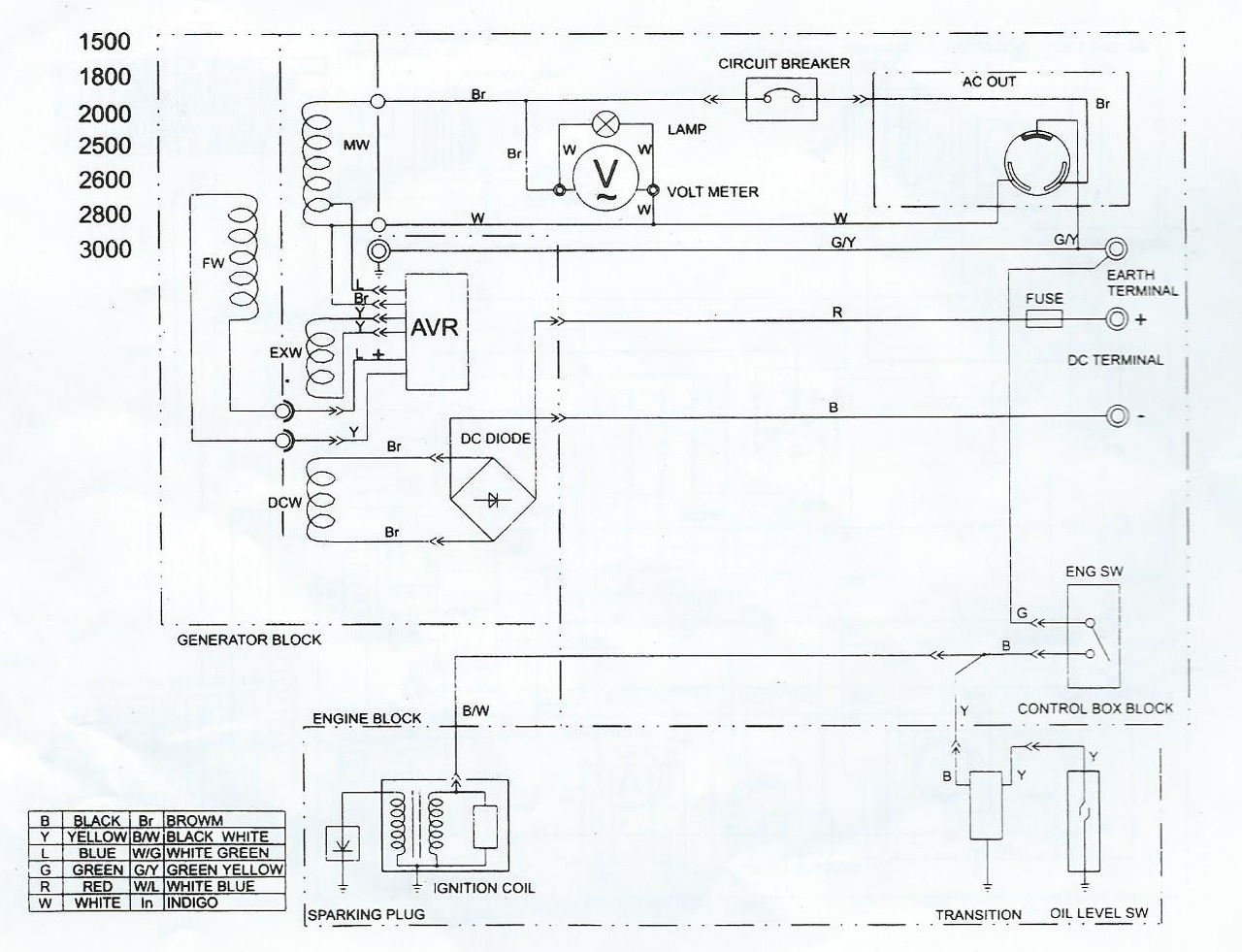
Segítséget szeretnék kérni, remélem jó fórumba írok. Van 1 a képen látható önindítós aggregátor. Ezzel kapcsolatos lenne a kérdésem. Az indítókulcs szerkezetéhez 4 vezeték megy. 1. +12V az akkuról, 2. test a fémszerkezethez csavarozva, 3. feltételezem az önindító motor és a 4. pedig a másik oldalon az aggregátorba megy, gőzöm nincs, hogy mire szolgál. A kérdésem az lenne, hogy tud-e segíteni nekem valaki abban, hogy hogy is működik ez az egész pontosan. "ON" állásban berántó zsinórral is lehet indtani. A segítséget előre is köszönöm.
Feltételezés.
Kikapcsolva: motor gyújtása összekötve a "földel", nincs megszakítás így nincs gyújtás, szikra Bekapcsolva: a fenti összeköttetés megszakítva Start: akku plusz továbbítva az indítómotor behúzójához
Más helyről is ezt hallattam.
Szereztem rajzot róla, de az akku, és az indítómotor nem szerepel rajta ![]() Mérés is történt. Az akkut leakasztva azt mérték, hogy start állásban az akku fesz rövidrezár az indítómotorral, ami normális, viszont a titokzatos 4. pontot is ráköti az akkura. Ez elképzelhető? OFF állásban viszont egyik pont sincs rövidrárban a másikkal. Ezért nem is értjük a működését, vagy vmit elszúrtunk
Működik? Akkor nem kell bántani.
Lehetséges így is a dolog. Kikapcsolva írod minden megszakítva. ON a motorra menő gyújtás kábelra kapcsolja az akut, akkumulátoros gyújtás esetén érthető, nem ajánlatos ebben az állapotban tartani, mert leürítheti az akut, de ezt ellenőrizni kell mit is csinál. Startban kapcsolja az indítómotort, meg a gyújtást. Ebben az esetben többlet a test. Az sem kizárt, hogy alapból mágneses gyújtású, de startban átkapcsolt akkumulátoros gyújtásra, hogy erősebb szikra legyen, így van értelme a 4 drótnak. Valahogy kell neki az akut is tölteni. Előzőleg a megszakítóval párhuzamosan kötött kapcsolóra gondoltam, de ezek szerint soros.
Az akkut a főgenerátorba tekert 12V AC tekercs tölti egy graetz kockán keresztül. Gyújtásnál az akkunak nincs szerepe, mivel mágnesgyújtású az összes ilyen motor. A gyújtáskapcsoló az egy érdekes állat, mivel még nem találkoztam olyannal, hogy az összes rászegecselt érintkezőnek lett volna szerepe, ráadásul a fene tudja hányféle van belőle.
Szia!
Esetleg megnézhetnéd, hogy hová is megy az a 4. vezeték a gépen.
Szia!
EVIG SH, SHX generátorhoz tudok adni szkennelt gépkönyvet, ha még szükséged van rá. Érdekelne, hogy ki segített a gerjesztéssel kapcsolatban, mert mostanában egyre többen találnak meg SH, SHX és SBX típusokkal, de nem sokat tudok segíteni még úgy sem, hogy megvan a gépkönyv. Gerjesztő fesz és áram... Két igen fontos tényező, a megfelelő gerjesztő elektronika kiválasztásához. Sajnos ezek nem derülnek ki a gépkönyvből.
Sziasztok.
Végigolvastam a topikot, mert keresek információt az itt is felemlegetett HAD-16 dízel aggregátorról. Hozzám került javításra egy, mert bár kevés üzemóra van benne, de a védelmi áramkörét tönkretette valószínűleg egy feszültséglökés. Ezt kis vakarózás után sikerült javítani. Ez a rész a kapcsolótáblából kihúzható része. Gyakorlatilag Fi-relé szerű működést valósít meg. Okulásképp az utókornak, ha ilyen helyzet lenne, leírom. Jelenség, hogy a dobozban lévő panelen, kiég vagy kiolvad egy 1,5kOhm - os 5Wattos ellenállás, Eddig tapasztalt oka a vele sorosan lévő AEG-250B1000 graetz megbetegszik, ezért langyos üzemből forróra vált. Ezért kiolvad, és a egységben lévő relé elenged, így a szinkron generátor legerjed. (Vészhelyzet esetére lehet manuális működésre is bírni a generátort, bár ekkor a védelem amit a segédföld áramkör adna, az odalesz. Relét kitámasztva" működésre bírható.) Ez a áramkör, nem felügyel semmi mást, csak az felgerjesztést adó zöld gombot teszi öntartóvá, és ha áram folyna a föld felé, akkor leoldja az öntartást. Azért írom le, mert működés visszafejtése ezt adta. És a további, de újként jelentkező hibajelenséghez valószínűleg nincs köze. Nos a javítás után, 7 órai kemény üzem közben ismét megadta magát ezen a panelen lévő alkatrész. Valószínűleg az egyik fázis, folyamatos - szakaszos túlterhelése következményeként valami más is elhalálozott, de már gerjesztő áramkörben. Ami meglehetősen összetett, és sajnos rajz nélkül nehezen átlátható. De nagyobbik bajként az egész kapcsoló-táblát, és bakelit szendvicspanel - szerelést szét kell bontani ahhoz, hogy jobban nézelődni illetve méricskélni lehessen. Szóval egy rajz, és valójában adatok mit hol miért kellene mérni... Viszonylag gyakorinak mondható áramfejlesztő ez, így reménykedem, hogy van megosztható infója valakinek. Menetközben megnéztem a gerjesztés kiváltására ajánlott weboldal termékeit, hát nem olcsóak, de ez lenne a kisebb baj, hanem az, hogy nem lehet telefonálás nélkül megtudni, vajon adaptálható -e ez: Bővebben: Link HAD-16 gerjesztőáramköre helyett. Mert a felmerült hibajelenség a következő: Felgerjedés után nem éri el a kívánt feszültséget még terhelés nélkül sem, terhelés hatására működik tovább, de a termelt feszültség jelentősen megzuhan. Így a földáram védelem mellett a gerjesztésért felelős áramkörökben is tönkrement valami, a bakelit szendvicspanelen akad pár félvezető, például ASZ18 pnp germánium tranzisztor...Gyanum erre terelődött, de még nem mértem ki idő hiányában. Meg komolyan szét kell kapnom a szerkezetet. A benne lévő EVIG szinkron generátor, nem szénkefés csúszógyűrűs, hanem ránézésre egy forgó transzformátor adja át a gerjesztő áramot a forgórésznek. Ha valaki tud, kérem segítsen, bármilyen infó jól jön. Köszönöm. (Bocsánat a hosszért.)
Visszaolvasva, látom mit felejtettem ki említeni: Akad a kapcsolótábla mélyén egy kondenzátor csoport is, az azonosítására szolgáló papír a felületükről lefoszlott rég, így nem látható, hogy miféle szerzetek ezek. (Az oldalajtón lévő block-vázlat is erre a sorsra jutott.) Három vezeték kandikál ki belőlük, és első olvasatra vagy hét darab is van benne. Állapotuk, ránézésre is rossznak mondható. Gyakorlatilag az egész szerkezet korához képest jó állapotban van, üzemóra 30 körüli. Csak bizonyos részeit nem ilyen mértékű túlterhelésre képezték ki.
A feltétlenül megmentendő kategóriát képezi, a maga 3x400V / 29A terhelhetőségével.
Bár az említett típust nem ismerem, de a leírásod alapján forgódiódás gerjesztésű lehet a gép, ha a forgórész tekercselt, és nincs csúszógyűrű. A fórgórészen van 2 (4)db dióda, es ezek közül ha valamelyik elszáll, akkor az általad leírthoz hasonló anomália léphet fel. Tehát a fórgórész diódáit kell megvizsgálni. Az a bizonyos fiók valóban a földzárlat védelmet szolgálja több-kevesebb sikerrel, az általam eddig tapasztalt meghibásodás inkább kontakthiba - jellegű volt. Az a bizonyos kondenzátorcsoport adja a gép alapgerjesztését, enélkül szintén működésképtelen a masina. A kondik delta kapcsolásban vannak, és a generátor fáziskapcsaira vannak kötve-ha jól gondolom.
A hozzászólás módosítva: Máj 9, 2015
Köszönöm, a gyors reagálásod. Amennyire belepillantottam a csúszógyűrűk helyett egy tekercselt komplexumot láttam, pár kerámia ellenállással, diódáknak ott nincs nyoma, majd készítek róla képet is... A gerjesztést három barna vezetéken viszi oda, a állórésznek meg mind a hat tekercsvége feljön szép egyszínű vezetékekkel, sajnos a többi részére is ez a jellemző. Így címkézhetek, ha kibontom szerkezetet.
Olvasom, a kondikról írt módosításod, igen valószínű, hogy így lehet. Sőt, lehet magyarázat arra jelenségre, hogy többnyire az akku - gerjesztés gombot kell megnyomni, ahhoz, hogy felgerjedjen a generátor. Mert a normál gerjesztés gombra, alapból már nem reagál. Csak ha előtte épp gerjedt volt. A hozzászólás módosítva: Máj 9, 2015
Hát igen, az "ókorban" nem sokat foglalkoztak a vezetékek megkülönböztetésével, aki szervizelte, az kapott kiképzést a javítás mikéntjéről. Akkor jársz a legjobban, ha pontról pontra kirajzolod, sokkal áttekinthetőbb lesz az egész, és a működés elvéről is kapsz képet. Ezeknek a régi gépeknek a gerjesztése és működése nem volt egyszerű, aki tervezte bizonyosan nagyon értette a villamos gépek működésének a legapróbb részleteit is. Néhány őskövületet javítottam már, és bizony komoly hasznát vettem a javítások során annak hogy anno a technikumban villamos gépek szakon végeztem. Megpróbálok valamiféle infót az ominózus típusról begyűjteni, és ha sikerül akkor újból jelentkezem.
Igen, az biztos, hogy ebben valójában több gépismeret van, mint a mai kondenzátor kifáradós világunkban. Bár baklövésnek tartom a pnp germánium alkalmazását, még ha 35 éves is a berendezés. Bár lehet, hogy nem volt jobb. De ha nem terhelik túl, akkor valószínűleg még negyven évet ketyeghetett volna hiba nélkül. Nos, sajnos errefelé kevés az ilyen képzettségű szakember, magam sem vagyok ilyen. De ebből sokat fogok tanulni erről. Bár az alapokat nem ezen lehet elsajátítani, arra valók a tankönyvek, és tanárok.. A technika valószínűleg több kivitelben létezett, kapcsolószekrényen GS M 3-20/400H szerepel.
Köszönöm, hogy segítesz. A hozzászólás módosítva: Máj 9, 2015
Nos kicsit haladtam vele. Kibontottam a szekrényt, és elkezdem megismerni és feltérképezni. Lesz belőle valami. készítettem rajzot, bár még azt rendezni kell, hogy jobban átlátható legyen. Benne lévő transzformátorok - áramváltók adatai is megvannak. A gerjesztést vezérlő áramkörben kettő ASz18 dolgozik, egyik a meghajtó, másik a power eszköz. Környezetükben minden alkatrész hibátlan, de pár diódát és a tranzisztorokat ki kellett forrasztanom, hogy mérni lehessen. Minden hibátlan, de az meghajtó ASz18, azon gyanús adatokat közöl az alkatrészvizsgáló. Igaz kinézetre a TO-3 tokozás mindkettő, de a kalap kivitele eltér, nos 545 bétát mutat, és diódát is jelez a műszer, de felismeri helyes bekötés szerint, struktúra szerint, meg a nyitófeszültség is a jellemző tartományon belül van. Míg a másik az, 23 bétát mutat ez meg jóval hihetőbb. E-képpen gyanús a tranzisztor.
Lefényképeztem generátor gerjesztés felőli végét, már amennyit látni lehet belőle. A hozzászólás módosítva: Máj 10, 2015
Akad még kép, de nem szemetelem tele a topikot, csak még kettőt
![]() Jut eszembe, a kondenzátoros szekciót is lefényképeztem, ha valakit érdekel, akkor felteszem majd azt is, de így első vizsgálatra, csillagban vannak kapcsolva, igaz ezek három kivezetéses kondik, és generátor kimenet a sárgákon megy bele, feketéken távozik, zöldek meg a csillagpontba kapcsolódnak. Sárga - fekete meg vezet, kapacitást még nem mértem. A hozzászólás módosítva: Máj 10, 2015
Köszönöm a képeket, sokat segítettek a működési elv feltérképezésében. A gépről készült fotók alapján ez egy gerjesztőgépes aggregátornak tűnik, ahol a baloldali képen látható egység (DSCF2463) a gerjesztőgép, a jobboldali pedig maga a generátor.A működése a következő: A baloldali gerjesztőgép állórészét kell gerjeszteni DC feszültséggel,a forgórészében keletkezett váltóáram egy egyenirányítón keresztül a főgenerátor forgórésztekercseiben hoz létre a gerjesztéssel arányos mágneses teret, ezáltal indukálódik a főgenerátor állórészében feszültség. A szabályozása nagy valószínűséggel mágneses erősítős kialakítású, a mágneses erősítő gerjesztését végzi a germánium tranzisztoros erősítőfokozat. Germánium tranzisztorok vizsgálatára a mai modern alkatrészvizsgálók alkalmatlanok, mert bizonyosan rossz adatokat fognak adni a germánium struktúra miatt. A germánium tranyók szivárgóárama,zaja sokkal nagyobb, a rajtuk eső feszültség viszont kisebb mint a szilicium tranyók esetében. Emiatt egy alapvetően szilicium eszközökre tervezett alkatrészvizsgáló nem ismeri fel,vagy hibás adatokat mutat az egyébként akár jól működő tranyó esetén is. Ezeket egyedileg lehet csak vizsgálni, kiforrasztott állapotban, esetleg összedobni hozzá egy tesztáramkört valamelyik '70-es évekbeli szakkönyv vagy Rádiótechnika évkönyvben fellelhető kapcsolás alapján, ami kifejezetten germánium eszközökhöz készült. A forgórészt mindenképpen vedd ki, a két forgórész egység közt kell lenni egyenirányítónak, nem tudom elképzelni másként ezt a gépet. Egyébként nem gondolom hogy a meghibásodás túlterhelés következménye lenne, én inkább az alkatrészek öregedésével hoznám kapcsolatba a problémát. Természetesen a túlterhelés-különösen ha tartós- sietteti az öregedést. A Ganz által gyártott generátorok simán elviselik a 15-20%-os túlterhelést akár tartósan is, a katonai kivitel pedig akár 50%-ot is 1 óra időtartamig, ha a hűtőlevegő hőmérséklete nem magasabb 25 foknál. Ezt az infót attól az embertől kaptam, akinek oroszlánrésze volt e generátorok tervezésében. Ha kirajzoltad az egészet, sokkal több infód lesz a működési elvet illetően, a rajz ismeretében már könnyebb lesz e "rejtvényt" megfejteni.
Igen, szó szerint így működik. Kis tükörrel a diódákat is láthatóvá tettem, de mérni összeszerelt állapotban sajnos nem nagyon lehet, ahogy látom. Mert szűk a hely, és tekercsek közé van kapcsolva... Bár szűk hely lenne a kisebb gond, a dízel motor, többnyire mindig ott áll le, a tengelyét meg nem lehet megforgatni csak úgy, pedig egyesével ki tudnám mérni ha a talpából kicsavaroznám.
Szétszedni az egészet meg rettenet, nem óhajtanám kívánni még az ellenségemnek sem. Titkon bízok benne, hogy nem azok a diódák haltak el. Gyakorlatilag végeztem a lényegi részek kirajzolásával, bár még mindig skicc szerű, de a működés már átlátható. Az ASZ18 -ak beszerzése elég kritikus, és mint öreg germánium alkatrész, így nem is bízok még a működésükben sem. Ezért feltett szándékom, kicserélni PNP-szilíciumra, még-ha meg is kell igazítani egy két alkatrészt ezért. Az öregedésbe egészen biztos, hogy besegített az utóbbi alkalom, mert a max 29 Amper helyett egyik fázison 40-45A is ugrált, mindez 7 órán át, mígnem legerjedt, kiolvadt a Ev. panelen 1.5K 5Watt ellenállás túlfesz miatti graetz zárlattól. Ez nem először történt meg már vele. Körülmények pontosan azonosak voltak. Én már csak a hibánál jelentem meg, de most ez a hiba azzal párosult, hogy nem tudott már manuális indítás ellenére kellő feszültségig gerjednie üresjárat ellenére. Bár rossz jelként a feszültség állításra reagált, de nem eleget. Ez azt jelentheti, hogy a potméterhez kapcsolt tranzisztoros áramkör próbált cselekedni, így lehet, hogy jó, és az alkatrészek kiméregetése is ezt támasztja alá, egy tranzisztor kivételével. Elébb még írtam, hogy a gerjesztő vezetékek száma 3 , de ez 4 darab, csak már nem javítottam az írást. Két független tekercs áramkör lakozik ott, egyik tekercsen az áram-visszacsatolást végzik, a másik tekercsen meg feszültségre szabályoznak. A tranzisztoros rész a feszültségre szabályzáshoz van csak köze. Az áramszabályzós tekercsáramkör indításnál, többfunkciós, akkugerjesztés esetén ott ad mezőt. Mezei felgerjesztésnél, a BE gomb alkalmával ott rövid zár van addig, míg a EV. - dobozban a relé öntartóvá nem válik a hálózati feszültség megjelenése hatására illetve ig. Mondjuk ez is első alkalommal eléget billegőnek a vezeték kötése a relé belsejében, de mostani alkalommal túlélte. máshol keletkezett a hiba. A gazdája villanymester, de finomabb részek dolgaival nem kíván foglalkozni... Értetlenül áll kissé a helyzet és az eredmény előtt. Pedig tönkretehetetlen dolgok nem léteznek. Még a motorikus rész akkumulátor párhuzam - soros kapcsolója is feszegetett volt, nem párhuzamosította a két akkut. Ha sikeresen szalonképes kézi rajz formába rendezem a nyert információt, akkor felteszem majd ide, ebben benne van majd a EV-doboz is, meg a generátor belső tekercseinek - diódáinak kivételével a gerjesztés - szabályzás lényegi része. A sallangot, a műszerek kötéseit, kapcsolóját nem rajzolgattam, mert felesleges. Működésben nem fontos.
Rendben, várom a rajzot, aztán az alapján továbbgondoljuk a dolgot.
A hozzászólás módosítva: Máj 12, 2015
Meglesz majd, ma délután ellenőrzöm még egyszer, elvégzem az alkatrész cseréket, kimérem a kondikat, összeszerelem, és próba üresjáratban, meg kisebb terheléssel. hogy lássam mi történt. Ezután állok neki kultúráltabban átrajzolni a skicceimet. Hogy legyen tárgyalási alap hozzá. Csak az időm legyen elég rá.
A kevés idő ellenére megvagyok a 1.0 rajzommal, csatolom. Ellenőriztem, hibát többedjére sem találtam a rajzon. Talán hiánypótló lesz, hogy hogyan is vannak ezek megbütykölve. Valójában, nem bonyolultabb mint a szokol rádió
Most olvasom csak, hogy amit ide írtam szándékolt sorrendként, az nem jött össze. Még holnap se lesz időm jobban foglalkozni vele. De a rajzokkal nem akartam adós maradni.
Légyszíves tömörítsd egy fájlba a 3db képet, mert így nekem nem megy az A4 méretű nyomtatás. Annyit azért mondanák, hogy a generátor 3 fázis tekercseinek a bekötése egészen biztosan nem helyes, mert a szabályos bekötés szerint a tekercsvégek: U-X;V-Y;W-Z. De feltehetőleg nem ez a probléma.
Megpróbáltam, de így ebédidő alatt nem sikerült egyesíteni, de PDF - be átkonvertáltam, így egyesével mérethelyesen kinyomtatható. Én sem voltam meggyőződve, hogy jól van ez így, bár nem látszott egyértelműen, hogy nem turkáltak -e előttem. Ezzel a bekötéssel, valójában hibamentesen ment eddig.
Köszi, így már rendben van. Ma este lesz talán időm átnézni, ha már érthető akkor írok.
Ma jutott rá időm, hogy ismét foglalkozzak vele. Kicseréltem a tranzisztorokat, de gyakorlatilag nem lett jobb, így a generátor forgórészében lakozó diódák felé fordultam, jókora segítséggel, kézi főtengely forgatással, egyesével kicsavarozgatva kimeregettem. Persze a legutolsó és a legrosszabb helyen lévő dióda volt kidurranva. Olyannyira, hogy az üvegbeöntésből kilötyögősödött a katódja. SKN20/12 típusúak lakozék benne. Kapott egy ránézésre nagyobbat, GD70/40 -et, ennek állt megfelelően a kivezetése
...Hát nem volt egyszerű menet, kritikán aluli a szerelhetősége, annak ellenére, hogy van elég szerelő ablakmérete a generátornak. Elő kellett venni a nőgyógyász kezeket... Ha a diódákat a hűtőjében kifelé szerelték volna bele, a hűtőtönkbe vágott menettel, akkor egészen könnyű lenne a cseréjük. Nos, csere után megtáltosodott az egész, kicsit korrigálni kellett a feszültségen, és mondhatni jól működik. Bár annyi megfigyelhető, hogy most már kicsit hullámzik a kimenő feszültség, mintha lengne a szabályozási kör. Valószínűleg a beépített szilícium alkatrészeknek köszönhetően, mert cserén kívül más módosítás nem esett. A generátorra kapcsolt kondenzátor csoport, az erősen átvezet, (470Ohm körül) kapacitásuk az majdnem zéró. Szóval lenne még munka rajta. Nos jelentősebben megterhelni nem tudtam, bár 2.2KW motor, csak kettő fázissal indulva 20-20 Ampert berántott, persze csak pár másodpercig mert nem akartam megégetni a motort. |
Bejelentkezés
Hirdetés |







Sajnos ezek nem derülnek ki a gépkönyvből. 







