Fórum témák
» Több friss téma |
Én is vacilláltam a gépvásárlásnál. A végén egy Iweld és az Alfaweld maradt a "versenyben"(miután egy BLM digitális is kiesett).
Tudásuk 99%-ban megegyezik, árkülönbség kevesebb, mint 10%. Az Iweld súlyban épp csak a fele az alfának! Nem hiszem, hogy közel fele súlyban képesek rendesen összerakni ugyan azt a teljesítményt, tudást... A hozzászólás módosítva: Márc 25, 2018
Most azon gondolkozom hogy amit néztem awis gép az márkán belül a legalja és inkább vennék azért az árért egy mma-sat. Félek ugyanis nehogy kispórolják az anyagot a belépőkategóriából, és két szék közül a földre üljek. Tehát meglenne az mma inverter és azt ha oda jutok föltuningolnám awira. Találtam egy rajzot amiből szerintem a vezérlés megoldható lenne egyedül a hf gyújtás probléma: hogy készítsem el, hogy iktassam be az áramkörbe hogy ne okozzak galibát a készülékben! ?
![]()
Legjobban jársz, ha buherálás helyett veszel egy komplett HF-es AWI-s gépet. ~6 évvel ezelőtt vettem egy totál névtelent. Kiállítási példány volt, kissé sérült csomagolással. Volt egy garanciális javítás, mert nem jött a gáz. Adtak egy új munkakábelt. Újra előjött a hiba. A gázszelep reléje "pontosan" 24 V-os volt. Ha hajszállal alá esett a feszültség, nem húzott be.
![]() Csere óta semmi gond nem volt vele. Nem sokat próbálgattam, a szomszédnak szüksége volt egyre (maszek lakatos volt). -Én úgyse használom ki, nyúzzad! 5 évig ipari körülmények között napi használatban nem volt vele többet semmi hiba. Sorozatban gyártotta a rozsdamentes borostartályokat, réz üstöket fedővel ( ), tepsiket, kéménybélést, ...AWI-val 250, MMA-ban 200 A volt az adatlapon. Néha hegesztettünk vele pálcával is, nagyon komoly. Tavaly visszakaptam, azóta nem is használtam. Eladni nem akarom.
Szerintem amit Phile80 mond érdemes megfogadni!!
"Van akinek a megbízhatóság, megfelelő szervizháttér, vagy csupán az ár jelenti a jobbat. Alfaweld gép ingyen sem kellene..." De ez csak az én véleményem...
Nem csak, ez Phile80 véleménye is!
egyébként a megbízhatóság nekem is fontos szempont ezért gondolkodom azon is hogy egy kissebb tudású gépet vegyek ugyanannyiért ami cserébe talán minőségibb.![]() Alfaweldről egyébként neked is rossz tapasztalatod van?
Mint írtam "totál noném". Semmiből nem lehet kideríteni a gyártóját.
TIG 250 néven ezernyi van a neten. "Model:" és "Nummer" mezők üresek. A "Nummer" legalább arra utal, hogy német megrendelésre készült vagy német tulajdonú cég gyártotta. Ennyi. ![]() Az adattáblán ezeken kívül csak technikai adatok szerepelnek. Néhány ezek közül: 230V, 6,3 kW, 24,2 A. 160 A 60%, 124 A 100 %. Mint más távol-keleti (PRC) gépeken, de sajnos akár hazai gépet is említhetnék a '80-as évekből, a névben szereplő szám nem közelít a hegesztőáramhoz. ![]() Az adattáblát korábban nem is nézegettem. Adtak hozzá egy angol nyelvű füzetecskét, a korábban említett adatok abban szerepelnek. A potméteren a skálán 250 az utolsó szám. ![]() A füzetecskében sem szerepel semmi, ami a gyártóra utalna. A hozzászólás módosítva: Márc 26, 2018
A 160 A 60 % legalább bíztató adat. CO2 gépeken szokott lenni 160 A 15 %-os adat.
Akkor ez egy kicsit zsákbamacska volt de végülis jól jártál vele
Családban van egy Gorilla Iweld MMA gép ami még nem hegesztett el fél doboz elektródát, de már cseréltem benne IGBT-ket, mert ívfogáskor repült el a négyből kettő.
A jó hír, hogy javítható volt. Amúgy nincs tapasztalatom viszont, Phile javítja őket, szóval ő tud egy két dolgot róluk. Ha vennék, akkor egy jobb kategóriás, drágább gépet vennék használtan, és nem egy új gyengébb minőséget! Nálam a szempont, hogy javítható legyen házon belül, mezei alkatrészekből..
Ez is érdekes mert az iweldről meg ódákat zeng mindenki
Iweldet is néztem egyébként ![]() http://www.hegesztestechnika-webaruhaz.hu/iweld-arc-160-mini-invert...o.html 2 év gari koppintós awi csak akkor már ha ennyi akkor inkább lincoln az azért csak nagyobb név igaz kicsit gyengébb viszont a minimum áram nem 20tól van ganem 5től és 3m munkakábellel plusz külön kapcsoló az awihoz.
Ez egy sima MMA inverter, de ha olvasnád a privát üzeneteidet lehet előrébb lennél...
Sziasztok! Problémàval fordulok hozzàtok, 2014 òta hasznàlok napi szinten egy USR digital tig 160 as gépet, ès most olyan hiba lèpett fel, hogy a gèp tig üzemmódban van, ennek ellenère ha hozzâèr a wolfram az anyaghoz, begyujt mintha mma ban lenne. Az üzemmód kapcsolo ki lett cserélve. A hiba akkor is fennâll ha a tig munkakâbel kapcsolócsatija le van hùzva, tehàt a munkakàbelt kizàrtam. A gondom az, hogy elvittem egy helyi szerelohoz, aki 2 nap agyalàs utàn mèg nem talâlta meg a hiba forràsàt. Hozzâ kell tenni hogy tig üzemmodban van, az a rèsze mukodik, tehàt begyujt, argon jön, de ha elengedem a kapcsolot, gàzt elzàrja, ív marad. Olyan mintha ezt az mma üzemodot nem tudna kikapcsolni. Ne kövezzetek meg, èn nem èrtek az elektronikàhoz, csupàn vègso elkeseredèsemben írtam nektek. Hàtha valaki tud okosat mondani hol keresse a hibàt a szerelom! Vàlaszokat elore is koszonom!
Akkor biztos nem relé indítja az invertert, hanem tranzisztor vagy FET. Meg kell keresni.
Átjövök ide, másik csoportban nem volt interakció.
Szóval hozzájutottam egy Alfaweld Pegasus 160 készülékhez. Amint látom ez más neveken is gyártották, úgy mint: Freetig ITIG 160. Viszont kapcsolási rajzot nem találtam hozzá, ami nem ártana. Most működik rendesen, da van egy dolog amit már most sem értek.
Bizonyára azért nem ír senki, mert legalább százszor le lett itt írva, hogy kép nélkül nem nagyon tudunk segíteni. Ezekhez a kínai gépekhez név szerint nem létezik rajz, viszont vannak rajzok, amik 50 féle nevű gépekhez jók. Látni kell a belsejét, de még akkor sem biztos, hogy lesz rajz hozzá. A hivatalos szerviznek (már ha van ilyen) sincs sok esetben.
A hozzászólás módosítva: Okt 15, 2018
Sziasztok!
A képeken látható AWI hegesztő készülékről keresnék kapcsolási rajzot, vagy kezelési könyvet. A hibája a gépnek, hogy TIG üzemmódban nem lehet mindig ívet fogni, MMA üzemmódban hiba nélkül működik.
Ez ~20 éves magyar gép? Akkor biztos akad hozzá rajz is előbb-utóbb.
![]() Lehet, hogy bátortalan voltam, talán a 30 évhez jobban közelít.
Igen, szerintem is ez egy Trakis gép. A neten semmit nem találok, pláne ha harminc éves szerkezet.
Sziasztok!
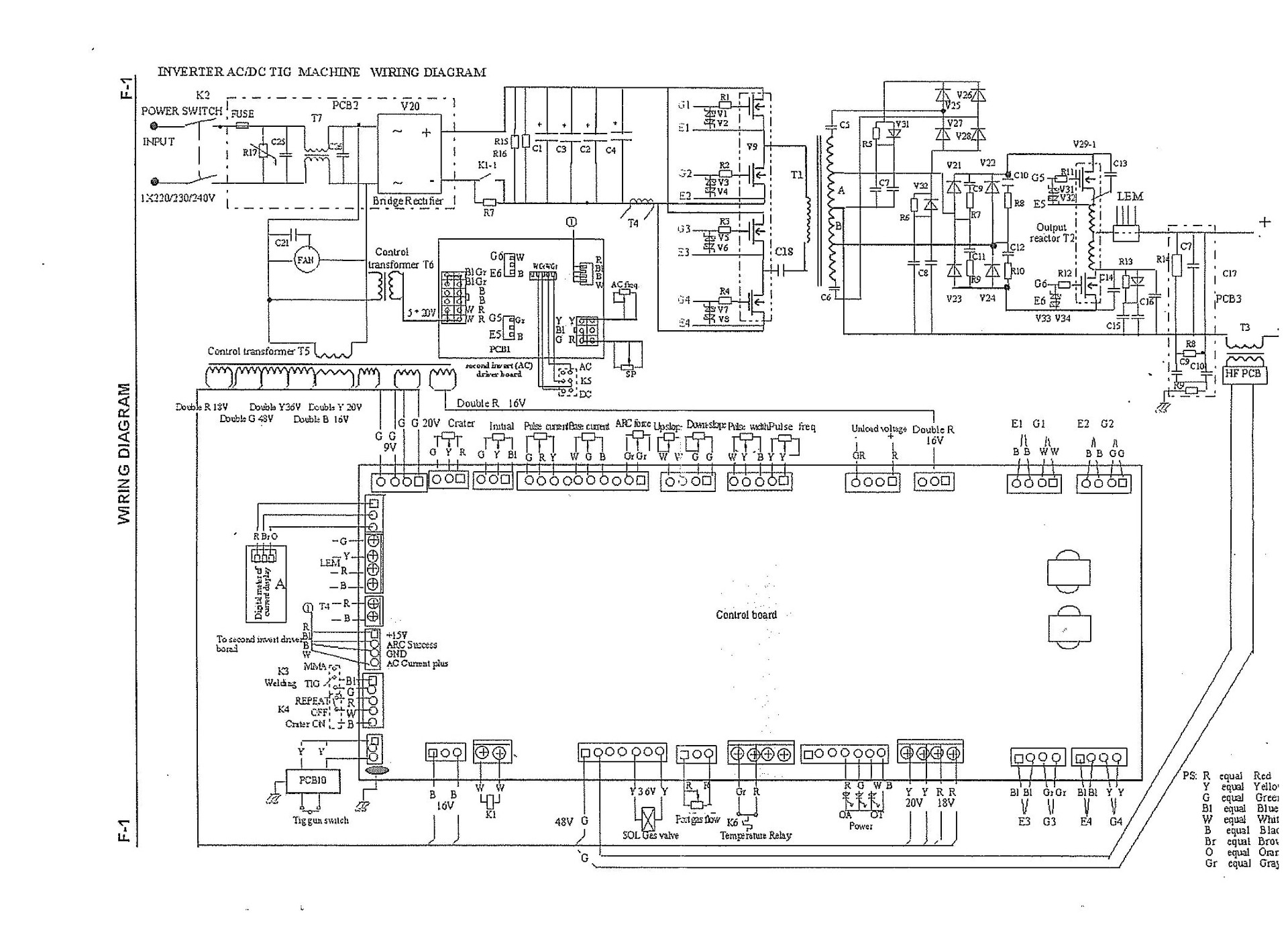
Üdvözlök mindenkit. Végigolvasva ezt a topik -ot meg az inverteres hegesztő építőset is rengeteg dolgot tanultam. Habár régóta javítok mobiltelefonokat, és különböző elektronikákat, eddig ekkora inverter nem került a kezem közé javítási céljából. Most viszont vettem egy Freetig Ac/Dc Tig 200e névre keresztelt gépet. Amit a Felzen Groupp gyártatott természetesen kínában. A kérdésem az lenne valakinek van hozzá esetleg rajza, vagy valami információja, mert a vezérlő panelt elnézve ez a kínaiak WSME 200 vezérlője, és ez az impulzusmódtól kezdve mindent tud, csak az én gépemen nincs minden potméter beépítve. Még a csatlakozók is rajta vannak a vezérlő panelen. Szeretném kibővíteni az összes funkcióra a gépet, csak egykét potméter értékében nem vagyok biztos. Ha valaki tudna segíteni minden infót szívesen fogadnék.
Még annyi, hogy rengeteget kerestem a neten és egy francia fórumon is írták, hogy kibővitették és működtek a funkciók, de nem írtak konkrétumokat. Meg azon agyaltam, hogy ha bekötöm a potmétert az Ac frekvencia beállítására, ami a franciák szerint 100 Hz re van fixszálva, konkrétan a potméter bemeneti csatija forrasztással át van hidalva, ez a kimeneti inverternek okozhat e problémát? Úgy értem lehet e különbség a fix és az állítható frekvenciás inverterek között? Valaki hozzáértő véleményére nagyon kíváncsi lennék mielőtt kísérleteznék. Hozzátartozik hogy ahány hasonló gépről látok fotót, látszólag ugyan az van benne mint az enyémben, csak több kezelőszervvel ellátva.
Ezt a vezetékezési rajzot találtam hozzá. Minden segítséget előre is köszönök.
Amit kívülről állítani tudsz, az nem az inverter frekvenciája, hanem alumínium hegesztésnél a +- váltogatási frekvenciája. A kitöltési tényező lényegesebb, mint a frekvencia. Gondolom, a tiednél azon se lehet állítani, csak majd az utólag beiktatott potméterrel.
Talán akad valaki, aki az értékeket is tudja. ![]() A francia fórumon értéket nem írtak? A hozzászólás módosítva: Nov 30, 2018
Igen igazad van az Ac frekvenciára gondoltam. Az Ac balance az állítható a gépemen, csak ha már az pulse módot impulzus frekvenciát, meg a kitöltést úgymond aktiválom akkor gondoltam már legyen fullos a gép. Sajnos a Franciák nem írták az értéket, valaki már kérdezte, de rég nem válaszolt aki írta.
Köszi a kiigazítást. Bízom benne valaki tudja mekkora poti kellene bele. A WMSE 200 hoz sem találtam olyan rajzot amin lenne értéke a potmétereknek.
Hali. Kellemes ünnepet kivánok.
Én csak egy lakatos vagyok,és épp ezért kérdezék. Van Mitech AC-DC 200P gépem. Minden funkciója jól működik. Károsodhat e a gépem,ha igy használnám : Tig /=áram,az Awi kijövet fölé csatolnám az MMA elektródafogós kábelom. Erre fogatnék egy mikrókapcsolót,ez hasonlóan inditaná gépet,mint az awi pisztoly. Mindezt az elektróda érintés nélküli gyújtására szeretném. A Cell,és Bázikus elektródák nehezenn gyújthatók újra. Szerinted a gép károsodhat e belül ? Előre is kössz,ha válaszolsz. Természetesen az Awi kábel nincs felcsavarva. Gondoltam,ha Tig módban a wolfram is kéri a 80-120A-akkor ugyanez az áram kell hogy működjön hosszútávonn is elektródával!?Ha netán potikat állitani kéne,te hova tekernéd a gázutánfolyást(lefutási idő),és oxidtörést?
Az elv működőképes, de az elektróda fogó nem biztos, hogy szigetel annyira, hogy a nagyfesz indítás ne üssön át rajta. A gépben kárt ezzel nem tudsz tenni, csak a fogó ami kritikus...
Másik témában már jórészt mindent megválaszoltak, két helyre meg nem illik betenni ugyanazt a kérdést.
Amivel itt több.: AWI helyett MMA hegesztés ívfeszültség igénye magasabbb. ~20%-kal alacsonyabb áramnál veszel ki azonos teljesítményt a gépből. A gépen van adatlap "áramok-bekapcsolási idők". Minden áramértékből leveszel 20 %-ot, annyival terhelheted pálcás hegesztéssel. Enyémen pl. 250 A-t írtak AWI-hoz, 200-at MMA-hoz (15% BI). Mivel otthon nem olajvezeték csövet hegesztünk automatával 24/24 órában, ezért a fele bőven elég, alkalmanként a 3/4-e. Nálad MMA-ban ~160 A a csúcs, 120-130 A-rel nyugodtan terhelheted amennyire pálcával, kézzel tudod. A nagyfesz. gyújtás használata megkönnyíti a Cell és bázikus elektródák gyújtását, a géped nem fog károsodni. Kell is, mert ha a gépeden nincs gyárilag MMA mód, az üresjárati feszültség amúgy is alacsonyabb, mint egy kifejezetten MMA-hoz készült inverternél. Gázutánfolyás, oxidtörés értelmetlen funkció MMA hegesztésnél. A palackot lezárhatod, a beállításokat nem érdemes eltekergetni. Ha visszaváltasz AWI-ra, legalább minden a helyén lesz. DC-ben fogsz hegeszteni (Cell- bázikusnál nem sok értelme van az AC-nek, ha van DC-d), semmi mást nem kell állítanod, csak az áramot. A hozzászólás módosítva: Dec 25, 2018
|
Bejelentkezés
Hirdetés |









), tepsiket, kéménybélést, ...
egyébként a megbízhatóság nekem is fontos szempont ezért gondolkodom azon is hogy egy kissebb tudású gépet vegyek ugyanannyiért ami cserébe talán minőségibb.












