Fórum témák
» Több friss téma |
Fórum » Westen 240 Fi gázkazán hiba
Szia,
nem vagyok elektroműszerész, sem villanyszerelő, ez igaz. De azért ha egy képen megjelölik, hogy ezt a csatlakozót nézd meg, jó-e, az megy. Értelemszerűen áramtalanítás után.Mert ha valóban csak egy érintkezési hiba miatt bolodul meg a kazán amikor rendesen össze van rakva, nem szeretnék feleslegesen egy új panelra kiszórni 50-60.000 ft-ot. Köszi!
Megint jó hírem van. Nem a panelen keresendő. Ezért nem találod rajta...
Nem tudom máshogy leírni. az égéstérben van elktróda.. alján drót megy egy nagyfesz trafóra... Tényleg nem tudom mashogy leírni...
Szia,
Ajjaj ![]() Olyan sokat nem nyitogattuk a kazánt, konkrétan nagyon is keveset, csak a szezon kezdeti karbantartások miatt. Ezt a hibát a nyár közepén kezdte el játszadozni amikor a közelben nem volt kazán nyitogatás, szerelés, karbantartás. Elmondom a kazán szerelőnek mit javasolsz, Ő majd megnézi Nem nyúlkálok bele, tényleg em értek hozzá ennyire.Köszi a tippet!
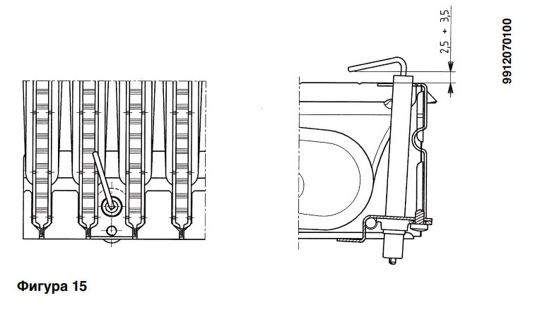
Szia! A kazánod és a lángőr elektródája, képekben ez így néz ki, hogy képben legyél.
Kedves fórumtagok!
Westen boyler 280i típusú gázkazán Győr környékén, esetleg valaki tud segíteni? Sajnos egér dolgozott benne, a szerelő próbált kétszer panelt cserélni nem működött, többet nem tud tenni, szerinte kuka. Magam nem állok neki, esélytelen, leginkább szakembert keresek, akár a fórumost is aki tenne egy próbát. köszi
Köszönöm! Megnézem este. Így azt hiszem képben vagyok.
Több mint egy hete le van nyitva az előlap a panellel (burkolat rajta persze) és hiba nélkül teszi a dolgát a kazán. Nem tudom ha visszazárnám azonnal meghasalna-e.... Lehet amikor visszazáródik az előlap akkor mozdul el a kábel vagy kábelek és lesz érintkezési hiba... A panelt végigmérte egy szaki kb 1 hónapja, kicserélt rajta pár ellenállást amit úgy látott/mért hogy kell és egy teszt padon ment is rendesen.
Szép napot. Szeretnék segítséget kérni... Már 5 év alatt legalább 5 kazános volt nálunk. Az egy dolog, hogy mind lehúzott... no comment
240 fi cirkóm van. Pl: olyat csinál, hogy be van állítva 39 fokra a melegvíz... Kiengedek mondjuk egy kád vizet és kiírja a cirkón hogy 70-90 fokra felfűtötte a vizet... Azt mondták a szerelők hogy jó ez így... Biztos...??? Kérdem én akkor minek állítom be 39 fokra??? A másik, azt pont ma csinálta, a termosztát 22 fokon van a lakásban 23,5 fok van... Ergo a fűtés nem megy. És biztos nem ment, mert megnéztem. A raditátorok viszont melegek... Pedig csak melegvizet használtunk... Ez hogy lehet...? Köszi a segítséget... A hozzászólás módosítva: Okt 2, 2019
Első kérdésedre a válasz, hogy a 240Fi a műszeren nem a HMV hőfokot írja, hanem az előremenő vízét, a primer hőcserélőn. Azt a cirkó a kis körön bekeringeti a HMV hőcserélőbe. Ez adja majd a kívánt HMV hőfokot. Jó így. Semmi baja.
Másik kérdés: a váltószelep átenged, a kis vízkörből részben bekering a melegvíz a radiátor körbe. A váltószelep tömítései csereérettek. Esetleg a membrán lyukas.. vagy a rudazat szorul. Szét kell szedni a váltószelepet, és felújítani.. De javaslom, ne úgy kezd a 6. Szerelővel a beszélgetést, hogy már hányan át akartak verni nem biztos, hogy mind át akar... Csak lehet, nem tiszta, amit mond... Kérdezz...
Szia,
Megtaláltam VIM képei alapján, hogy mire gondolsz. Szépen rajta voltak a kábelek. Egyenként lehúztam a csatlakozókat, megtakarítgattam (módjával) és visszadugtam őket (ügyelve, hogy oda menjen ahonnan lejött). Lenyitott előlappal továbbra is szépen dolgozik a kazán immár 2 hete. Vissza merjem zárni az előlapot?
Mi baj lehet... Maximum lenyitod
![]() Amire még gondolok, hogy felcsukva valamelyik kábel nem csúszik be mikrokapcsoló alá? Illetve a potik lábai ki szeretnek törni panelból, és kontakt hibáhiz vezet.. de nem ezzel a típusú elektronikával. Itt lehet, hogy a potik lábai kontaktosak.. ha még csinálja, próbát megér a csere.. az tud feszülni.. a nyák nem engedi, törik az ellenállás testről a kivezetés.
Köszönöm a segítséget...
Szia,
Csütörtökön megjött az új panel, de gondoltam visszahajtom a kazán előlapját, egy utolsó tesztre mielőtt kicserélem a panelt. Vasárnap este van, a kazán szépen teszi a dolgát. Ilyenkor mi van? Az új panelt ami 0 percet volt használva, még pár napig visszaveszik. De lassan abban sem vagyok biztos hogy a panel a ludas. Legyen tartaléknak egy panel itthon? Ha kell tuti Karácsonykor fog kelleni.
Szia!
Most erre mit mondjak? Nekem 2 komplett felújított 240Fi van a kazánházban. Baj esetén 4 hollandi, meg a gáz átköt... De ez az én marhaságom...Ha a panel csinálja, csak nagy tömegű alkatrész lehet forrasztas hibás... Nincs benne irányérzékeny elem... Ott valami kábel kontaktos, vagy beszorul valahova... Én erre tippelek látatlanba...
Szia,
Nehéz ügy ![]() Amikor a cirkuszt csinálta legutóbb, a panelen lévő csatlakozókat, kábeleket átmozgattam (áram lekapcs persze), utána is folytatta a hisztit. Lenyitva az előlapot viszont ment jól. Legutóbb azt a két kábelt néztem meg amit írtál is. Azóta lenyitva, felzárva megy. Lehet kellene egy villanyszerelő aki végigméri a kábeleket....
Szia,
A kazán továbbra is remekül megy. Mik a tipikus jelei egy panel hibának? Köszönöm!
Bármi...
Üdvözlök Mindenkit!
Van egy Baxi Slim gázkazánom (sógornőmé), ami nem gyújt be. A gázszerelő szerint a vezérlőpanel a hibás ami egy honeywell CS0137. A panelt átnéztem, a gyújtáshoz menő csatlakozón nem tudok mérni feszültséget. A kapcsoló relé behúzó tekercsén sem tudtam mérni a 48V-ot (reset utáni induláskor). Lenne valakinek erről a panelról kapcsolási rajza? Köszönöm.
Rajz reménytelen.. felejtsd el.. de pontosan mi történik? Indulna a cirkó, termosztát zár. Szivattyú indul. És ezt követően?
Ritka, én még nem láttam olyat, amikor az elektronika nem gyújt.. már vezérlés szinten sem. A perifériák ok? Feltételek adottak? Kinyit a gázszelep, dől a gáz, és nem gyújt?!?
Ez nem cirkó hanem álló kazán. Reszetelés után a szivattyú elindul. Gáz szagot nem lehet érezni. A relék kapcsolgatnak. A gyújtó elektronikához menő 3 vezeték közül kettő között mérek 4V feszültséget 2-3 másodpercig. Szerintem ekkor kellene kinyitnia a gázt, és szikráztatni a gyújtót. Ezt a gyújtó elektronikát próbára kicserélte a szerelő aki nézte. Lehet valami feltétel hiányzik ami miatt nincs meg a kellő feszültség.
Hát.. az biztos. Hisz amíg nem nyit a gázszelep, minek szikráztatna..
Sorrend: szivattyú indul. Áramlaskapcsoló érzékli, nyit. Elektronika szellőzetőt kapcsol turbósnál. Simánál vár. Kb 5 sec, szelep nyit. Moduláló tekercs teljes gőz. Szikráztat, lángot var a lángőr. Nincs, akkor szikráztat, stb. Majd vagy megy, vagy hibára áll. Ha megy, a langméretet, langőrt teszteli, fel le szabályoz, majd fűt. Lehetséges okok: a szivattyú nem szállít eleget. Levegős, vagy kapacitás szegény az üzemi kondi benne. Ha jó, és az áramlas érzékelő kapcsoló is mechanikusan kapcsol, vagyis a kis pöcs nyomja a kapcsolót, kiemelkedik, akkor lehet rossz a kapcsoló, ki kell mérni. Ha jó, akkor lehet NTC hiba, azt hiszi, hogy forró a kazán, nem kell fűteni, keringetni kell csak. Ha az sem, akkor a hőfok beállító poti is lehet rossz, kitörve a nyákból pl.. és azt hiszi, hogy a kazánon beállított hőfok megvan, nem kell fűteni, elég meleg a víz... Ha van hibára állás, mikor, pontosan milyen módon?
Ma újra előjött a hiba melegvíz fűtésnél. Mire odaértem a víz hőfok lehetett már annyi a sok rövid fűtés után, hogy nem kellett több melegvíz.
Gondoltam teszt, hogy valóban rossz és mehet a panel csere, eltekertem maxra a melegvíz hőfok gombot. És újra megy a kazán. Lehet a melegvíz hőfok potméter szórakozik? Tud ilyet produkálni?
Tud. Írtam is feljebb már nem egyszer...
Igazad van. Bocs.
Cserélhető? (Nem értek hozzá )
Persze. De lehet, csak a lábai vannak kitörve a panelből..
Ma ismét átnéztem a kazánt és a feltételeket, szerintem rendben. Találtam hozzá összeállítási rajzot. A biztonsági termosztát, a füst termosztát zárt, áramlás érzékelőt nem találtam. A fűtési szonda (NTC) értéke 10,8 kohm. A gázszelepre menő 4 vezetéken (A1 csati) nincs feszültség (innen megy a gyújtás is). A gázszelepen lévő érzékelő értéke 20 ohm körüli (nem tudom mi a szerepe). A képen bekarikáztam.
Reszeteléskor a szivattyú elindul, a relék meghúznak, majd 2-3 sec elengednek. Az A1 csatira feszültséget kapcsoló relé kontaktusára megjön a feszültség, majd elmegy. A relé behúzó tekercsére nem érkezik feszültség.
Szia!
Ezt a rajzot még nem láttam. De hasznos. Köszi. Viszont valahol kell lenni valaminek, amiből tudja, hogy van víz, és az mozog is... Üres kazántestre csak nem gyújt rá. Fényképezd már le a belét. Gázszelepen 2 tekercs van. A szelep, ami nyit-zár, illetve egyoduláló tekercs a lángmérethez... Azt PWM jellel kergeti.
Itt az egész doksija. A gyújtó elektronikáról nem írnak semmit csak, hogy hogyan álljanak a jamperok. Az elektronikára kötött szivattyúk utókeringési idejét lehet megadni, de úgy vettem ki az olvasatból, hogy szivattyú nélkül forgalmazzák a kazánt.
A hozzászólás módosítva: Okt 11, 2019
Azt írja a doksija, hogy fázis érzékeny. Ez nem függhet össze a feszültség hiányával?
Valamelyik nap ismét átnézem, addig fűtenek fával (és még jó az idő). Sajnos még mindig nem tudni a vezérlő panel, vagy valami periféria okozza a hibát.
Szia!
A fázis érzékenység arra vonatkozik, hogy ionizációs lángőr van benne. A védőföldhöz képest nézi a láng meglétét. Ha fordítva van bekötve a fázis/nulla, nem tud lángot érzékelni. Begyújt, majd megáll. Hibára kiáll. De begyújt... |
Bejelentkezés
Hirdetés |




Értelemszerűen áramtalanítás után.

Nem nyúlkálok bele, tényleg em értek hozzá ennyire.



