Fórum témák
» Több friss téma |
Nem tudom jól értem e, elképzelhető, hogy a hőmegfutás miatt áll le a kazánod? Ha igen, egy tippet tudok adni én is, de ez szigorúan csak feltételezés lesz.
Nálam a hőcserélő adta meg magát, elkezdett csepegni. A gyári hőcserélő 80-90 pénzbe került volna, így az felejtős volt. Tesómmal úgy oldottuk meg, hogy kivágtuk a hőcserélőből a lyukas csövet, leforrasztottuk a végeit. Így tulajdonképpen leszűkítettünk egy ágat a hőcserélőben, mert eredetileg párhuzamosan van két ág. Mikor csak gyenge fűtés kell, akkor nem nagyon van probléma. De mikor rendesen be kell fűteni, akkor elkezdett olyat csinálni, hogy a beállított hőmérsékletet túllőtte, és megállt a kazán. Pár perc múlva ugyan újra indult, de mivel sokszor megállt, a víz konkrétan nem melegedet fel a kívánt hőfokra, de ahogy a kilépő víz elérte a hőmérsékleti vészleállítási küszöbszintet, máris leállt a fűtés. Mire rájöttem mi a baja, hát lett pár ősz hajszálam nekem is. Tulajdonképpen a problémám az, hogy a fűtéskör vízáramlása le van fojtva az átalakítás miatt. Azaz a lassan áramló víz miatt a kazánban lévő víz hamar túlforr, így folyton leáll. Én úgy oldottam meg, hogy kissé a gáznyomáson csökkentettem, így nem melegít annyira, hogy túl tudjon forrni. Ami ebből a te esetedre vonatkoztatható, vajon nem az van nálad is, hogy nem kering a víz elég gyorsan? Lehet hogy szivattyút cseréltél, de ha a radiátorok el vannak dugulva, főleg ha vas lemez radiátor van, simán lerakódhat benne iszap, ami úgy lekorlátozza az átfolyást, hogy előjön a probléma. Régi vascső szintén lehet ilyen. Esetleg a radiátorok leszerelése, és átmosása javíthat a vízáramláson. Természetesen ha valami újabb korszerű pl alu radiátorok vannak, azok nem hinném hogy okoznának ilyen problémát. De egyébként a hőcserélő dugulás is tud ilyen gondot okozni szerintem. Nos ez egy kis agymenés volt részemről, ha gondolod kihámozhatsz belőle némi információt, és eldöntöd, hogy van e benne számodra használható vagy nem. Ui.: Így utólag a lyukas csőt már úgy orvosolnám, hogy a kivágott csövet nem ledugózom, hanem egy sima rézcsövet forrasztanék bele, így megmarad a két párhuzamos ág mint gyárilag, legfeljebb a cserecsövön a hőfelvevő lamellák nem lennének rajta. Viszont a vízáramlás egyáltalán nem lenne korlátozva. Egy ilyen hőcserélőről van szó. A hozzászólás módosítva: Nov 21, 2023
Hmm. Ha a füst termosztátról lehúzom a csatlakozót és visszadugom, akkor újra begyújt a kazán és működik tovább.
Ha a vésztermosztáttal csinálom ugyanezt, akkor utána csak a reset gomb után indul tovább a kazán, de pl sima áramtalanítás nem segít. Igen, a sarus részek szegecseltek a termosztáton, azt nem tudom, hogy sorban vannak-e kötve, ebbe nem mentem bele. Viszont ha érintkezési probléma van, akkor ez miért olyan, hogy hol megjelenik, hol nem? Nem változik semmi. Ez nem egy mozgó rendszer, mint egy autó, ahol rázkódnak a csatlakozók/vezetékek, itt minden mozdulatlan. Mégis reset után megy tovább... Kéményt eddig minden évben jöttek ellenőrizni ( idén először nem jöttek) és nem találtak benne semmi problémát. Bele is nézett a kéményseprő, nem csak úgy rámondta. Az utóbbi időben (1évben), nem volt a kazánon burkolat a sok szerelgetés/próbálgatás miatt, ez sem nagyon változtatott a dolgon, mindegy, hogy fent van a burkolat vagy nincs, a hiba elő tudott jönni.
A hőtágulás/zsugorodás is tud érdekes kontakthibákat produkálni.
Nem kell hozzá mozgó rázkódó rendszer.
Köszi a tippet és a hozzászólást!
Ez felmerült már egyébként, az áramlásérzékelő esetén, hogy biztos az a gond, mert rosszul érzékel vagy pont azt érzékeli, hogy nem folyik a víz eléggé... Nade a rendszerben nincs áramlásérzékelő, tehát nem is tud hibát generálni. A rendszer maga bár régi, de nem vascsöves, mindenhol réz(és műanyag)csövek vannak, amennyit látni legalábbis, mert minden a falban megy. Ennek ellenére felmerült a rendszer tisztítása, idén a padlófűtési kört tisztíttattam ki, ez egy külön hőcserélőn csatlakozik a fűtési körhöz, tehát egy zárt rendszer, szinte semmi kosz nem volt benne, cserébe elég drága beavatkozás volt. Jelenleg nincs is csatlakozási lehetőség és szerelni kéne ahhoz, hogy át tudják mosni a többit, így ezt elnapoltuk majd fűtési szezon utánra. Ettől függetlenül, a radiátorok hamar felmelegszenek, talán 1olyan van aminél nem egyenletes a hőelosztás. De mivel gyors a vízáramlás, nem gondolnám, hogy valahol akár dugulás lenne. Ami viszont fura és nem áll össze, hogy a HMV kör, ami egy HMV tárolót melegít, az egy viszonylag rövid kör. Abban pont, hogy hamar körbeér a forró víz, ergo hamar le is kéne kapcsolni valamelyik termosztátnak sőőt akkor konkrétan a fő termosztátnak - és itt jön az, hogy sztem emiatt nincsenek sorba kötve - mert a kazán van, hogy leállítja az égést, ha már elég meleg a víz, de a szivattyú még keringeti, aztán ha kell megint alágyújt. A HMV esetén ez elég sűrűn van, mivel rövid a csőszakasz a fűtéshez képest. A fűtés esetében, pont hogy sokáig kell várni, mire körbeér a víz, a HMV-hez képest. Lehet, hogy pl a hőcserélőben túlmelegszik a víz és leold a vésztermosztát, ugyanakkor még a főtermosztát szerint "hideg" még a víz? Nehezen tudom elképzelni... én is csak gondolkodom. Ez a legnagyobb bajom, hogy sem előidézni nem tudom, sem hibakódok nincsenek vagy bármi debuggolási mód. Sajna ez a panel nem rendelkezik Opentherm interface-l. Egyszerűen semmi. Megmondom őszintén, amikor végleg bekrepált, kicsit örültem is a panelcserének, hogy végre megállt úgy, hogy nem megy tovább, aztán nem is volt gond kb 2hónapig... Már sokszor gondoltam rá, hogy kidobom a bánatba, de akármelyik gépészes boltban jártam, mindenki azt mondta, hogy semelyik mai kazán nem fog elmenni feleennyit sem mint ez, ráadásul az újakhoz a garancia miatt kötelező szervízeltetni is drága pénzért. És leginkább a kéménybélelési árak sem hangzanak túl jól...
Esetleg azt eljátszhatod, hogy kizársz teljesen egy radiátort, és nézed elő jön -e a hiba.
Aztán kizársz kettőt, hármat, és így tovább egyesével. Ha az a baja, hogy lassú keringés miatt forr túl (vagy csak ezt hiszi a hőbizti), egyre hamarabb fogja ugyan azt a hibát produkálni és leállni.
Valójában a radiátorok fele le van zárva
![]() De megpróbálom, hogy kinyitom mindet és úgy játszok velük, de igazából a kazán szempontjából nem kéne, hogy különbséget tegyen, nem? Csakhogy ha ez így lenne, akkor a HMV melegítésnél mindig lekapcsolna, hiszen az a kör sokkal rövidebb bár azt nem tudom, hogy leadja-e olyan gyorsan a hőt... Mondjuk a visszatérő ágra tudok tenni egy hőmérőszenzort és tudom monitorozni a visszatérő hőfokot, az lehet segít. De amúgy ha túl forró a visszatérő víz, akkor- simán le kéne kapcsolnia, nem? Aztán amikor lehül víz, akkor meg ismét alágyújt, egészen addig amíg fűtési igény van.
A HMV egy szelepen át van melegítve, ott nem a termosztát kapcsol le, hanem vagy a HMV kört melegíti, vagy a radiátor kört. Ha a HMV már elég meleg, visszakapcsol a radiátor körre, de nem a kazán áll le.
A kazán akkor áll le, ha a szobatermosztát kikapcsolja, vagy ahogy írod, eléri a beállított vízhőfokot. A keringető szivattyú általában késleltetve van, az már csak a lángoltás után 2-5 perccel áll le, hogy a hőcserélőből még kinyomja a meleg vizet. És amit én mondok, akkor nem a visszatérő víz a túl forró, hanem a hőcserélőben a kimenő csövön lévő hőbiztosíték old ki, mert lassú a keringés. A bejövő oldalon ilyenkor még alig van meleg víz, nálam pl 40°C -nál tovább nem is tudott melegedni, mert máris leállt. Pontosabban a kimenő ágon felszaladt 90°C környékére, mert a bejövő oldalon alig-alig jött befelé a hideg víz, így túlmelegedés miatt állt le folyton. Gyakorlatilag nálam a radiátorokban meg sem fordult a víz rendesen, annyira le volt fojtva. A hozzászólás módosítva: Nov 21, 2023
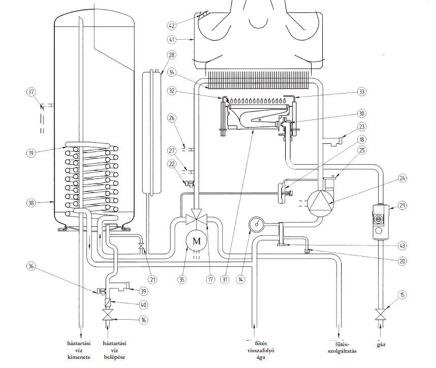
"Régi motoros" már említette is előzőleg a gáznyomást amire én azt mondanám, hogy a modulációval lehetnek problémák ha a "vizes" részen nincs áramlási akadály. A panelról mégis jó lenne egy képet közölnöd, hogy mik is vannak relézve ezen a panelen. A háromutú szelep az szerintem ilyen lehet, mert a többit amit ajánlanak, hogy tudja kezelni a vezérlő azok keverőszelepesek. Ami még nem világos a számomra az az, hogy a vezérlő honnan tudja, hogy HMV vételezés történik ha nincs áramlásérzékelő? Talán a bojler szondájának az értékéből. A vezérlőpanel rajza a HC-hez a bojlerszondát és a szelepmozgató motort adja meg opcionálisan. Hogy van bekötve a bojler köre a szeleppel a fűtési körre és egyáltalán a kezelőszervek a kazán előlapján hogy néznek ki? Jó lenne látni az egészet.
Nálam nincs olyan, hogy a kazán kapcsolgatna a HMV vagy a fűtő kör között. A kazán mindig a szobatermosztát lábán kapja a jelet.
Viszont lehet, hogy igazad van, megpróbálom azt, hogy ha megint kezd leállni, akkor kinyitom a többi radiátort is. Viszont 2 dolog ami ennek ellentmond szerintem: 1) Mondjuk ez nem változtat azon a tényen, hogy amikor januárban kicseréltem a panelt, akkor utána 1.5-2hónapig jó volt és nem állt le egyszer sem. Más nem változott. 2) Most visszakerestem, hogy a panelhalál előtti és utáni napokban milyen hőfokok voltak és a kimenő vízhőfok mármint ami a kazánból kijön, az 47.8°C Mondjuk ez még nem jelenti azt, hogy közvetlen a hőcserélőnél ennél nem volt több. A vésztermosztát 100°C-on kapcsol. Más. A kazánban lévő szivattyún van 3 sebességfokozat. Most a maxon van. Ezen érdemes lenne változtatni?
Csinálhatok képeket, persze, kicsit később lesz rá lehetőségem.
Sokmindent megválaszolhat az, hogy ezek nincsenek rákötve a panelre. Van egy külön lévő saját panelem, ami vezérli a 3utú szelepet (ez egy ESBE motoros szelep, nem keverő, itt nincs rá szükség) és méri a hőfokokat, többek közt a HMV hőfokát. A vezérlőm a kazánpanelnek a szobatermosztát bemenetére van kötve, ezzel kapcsolom be/ki a kazánt és szintén a vezérlő dönti el, hogy HMV kell vagy fűtés. A kazánpanelen a HMV hőfok tekerő az minimumra le van tekerve, így a kazánvezérlő szemszögéből soha nem akarna sem HMV-t csinálni sem szelepet mozgatni, csakis fűteni.
Sziasztok!
Glube hozzászólására válaszolok ugyan, de valójában inkább egy tapasztalatomat szeretném veletek megosztani, így fűtés szezon kezdetén. Hátha más is belefut és könnyebben megtalálja a hiba okát. A kazánom típusa: Radiant RBS mini 24kW Előzmény: Hosszú évek óta használom már ezt a kazánt (talán 2016) és mindig szépen működött, apróbb hibáktól eltekintve. Történt egyszer 2020 Novemberében, hogy a ház átépítésre került. Új szóba, új tető és szigetelés. Ennek következtében ennek a turbós kazánnak a kéményét már nem lehetett oldalra kivezetni. Az engedélyezésnél valami szabályzatra hivatkoztak, de az épület geometriai változásai miatt sem volt már megoldható. Ezért át lett alakítva felfelé mint a hagyományos kémények. És a következmény: Hideg párás időben , leginkább éjszakánként kicsapódik a pára a kémény belsejében. ( Az eső ellen már a sapkáját megnöveltem) Nyilván korábban is megtette, de mivel akkor vízszintesen állt a kémény , kifolyt belőle. Most viszont szépen vissza csorog a kémény ventilátorába. És ha sikeresen eléri a presostat alsó csövét , akkor már nem képes a presostat érzékelni a ventilátor működését, és a kazán letilt. Megoldás: Egyenlőre nem találtam korrekt megoldást, de nem adtam fel. Jelenleg a hidegebb idő beálltával 2-3 hetente egy alkalommal előfordul. Ilyenkor manuálisan leengedem a vizet a ventilátorból és minden szépen megy tovább. Valami megoldást kell majd találni, hogy a víz tudjon magától távozni úgy, hogy az égéstermék semmi esetre se jusson vissza a lakásba. A hozzászólás módosítva: Nov 22, 2023
A kondenzációs kazánoknál lévő megoldás nem lehet jó? Csak arra kell figyelned hogy a szifonban mindig legyen víz, az elzárja az égéstermék útját.
Hasonlóra gondoltam én is, csak át kell kicsit alakítani a ventilátor házát, mert ugye ezen nincs eredetileg leeresztő.
Amit építettél vezérlőt az teljesen független a kazán vezérlőjétől. Azt honnan tudja a vezérlőd, hogy mikor kell üzemmódot váltani és az akkor felhalmozott többlet hőt lekeringetni? Az igaz, hogy a fűtésnek lassú gyújtással és alacson modulációjú teljesítménnyel kellene indulnia minden egyes induláskor. Ezt nem tudom, hogy a kazán vezérlőpaneljén kell e jumperelni vagy nem. Ha mindig nagy lángal indul a főégő a gyújtás után akkor előfordulhat, hogy megfut a hőmérséklet a hőcserélőn vagy ennyi idő után a klixonok "elfáradnak", mert nem állandó ki-be kapcsolásra vannak tervezve. A vizes rész bekötésére a gyári megoldások így néznek ki, hogy párhuzamosan vannak kötve a fűtési körre. Az elektromos szelep vezérlésre két példa is van ezekhez.
A vezérlő nem tudja, hogy mit keringessen a kazán, ahogy egy analóg szobai termosztát sem tudja és nem is feladata ezt tudni. Ezt oldja meg a kazán vezérlő.
Én azt vettem észre, hogy ha jön fűtési/HMV igény, akkor a kazán beindítja a keringetőszivattyút, utána begyújt max lángon, majd ha kell, akkor csökkenti a gázlángot (ez a típus nem olyan régi, hogy ne tudja a gázmodulációt). Aztán ha már elég meleg a víz a bejövő ágon(gondolom), akkor vagy visszamodulál vagy lekapcsol ÉS a keringető szivattyú az forog továbbra is. Ha megszűnik a fűtési/HMV igény, akkor lekapcsolja az égést ÉS tovább járatja a szivattyút egy ideig, azt nem tudom meddig, nem vártam még ki sosem. Viszont abban igazad lehet, hogy túlszalad a hőmérséklet a hőcserélőnél, de akkor ezt miért nem csinálja mindig? Mitől függ, hogy heti 1x vagy napi 10x áll le? Egyébként gondolkodtam ezen amit mondtál és igenis van benne ráció és nagyon köszönöm ezt az ötletet, mert eddig erre nem gondoltam. Amint ismét működni fog a kazán (kell még némi vizes szerelés), kipróbálom, hogy megnyitok több radiátort.
A leállások, hogy helyileg túlmelegszik lehet a kémény huzata átmenetileg nem kielégítő pl. közös kéménybe van elvezetve több lakás készüléke vagy szeles napokon a légáralás beledolgozik a kéménybe ill. nem tud szabadon távozni a füstgáz. A kazán légszükséglete nem kielégítő ha nincs biztosítva számára a megfelelő légköbméter. A gázszelepnek is lehet hibája, hogy nem megfelelő nyomáson gyújt be vagy a maximális teljesítmény is el van állítódva. Ha megvan "rossz panel" arról mutathatnál képet, hogy milyen elrendezésűek a funkcionális relék esetleg fel is vannak iratozva. Amit találtam panelt ehhez a készülékhez azon lehet a fűtési teljesítményt állítani egy külön potméterrel ami a HMV hőmérsékletét gombbal állítható potmétere mellett van (fel is van iratozva). Radiátort hiába nyitsz ki többet vagy zársz el, azzal nem volna szabad előfordulnia túlmelegedésnek, mert a fűtési NTC-nek ezt le kellene közölnie a vezérlővel ami pedig lemodulálna ha jól működik. Az is előfordulhat, hogy kissé "magas" a gázszelepen a kezdő nyomás értéke és ezt nem tudják megfelelően kezelni a továbbiakban a moduláló tekercsek. Ha erőteljesen gyújt be a főégő az szerintem nem jó, mert a fűtés az lassú gyújtással és alacsony modulációval indul nem úgy mint a HMV ami teljes terheléssel indul, nagy lánggal.
Hello! Nem ismerem az SBE szelepet. De az nem fordulhat elő, (mivel az Ő automatikája váltja át), hogy átváltás közben lecsökken v. megszűnik az áramlás és ezért van túlhevülés?
Szervusz! A "független" elektronika amit épített a kérdező ehhez a bojlerhez nemtudom, hogy miért van függetlenítve, hiszen a kazán tudna kezelni egy forróvíztárolót ha a kazánvezérlő megfelelő pontjaira lenne applikálva azok elektromos részei (szelepmotor és a bojler termosztát). Ez a "márka" nem bőbeszédű a készülékeiről, legalábbis erről nagyon hiányos az információ, így amit hasonló olasz készülékeknél alkalmaznak szelepvezérlést azt kerestem meg mindkét típushoz. Az egyik az rugóvisszatérítős a másik tisztán elektromos minkét irány amit a bojlerszonda kapcsol. A talán lehet okot adó a túlmelegedésre amiket felsoroltam de a "hiba" véletlenszerűsége elég zavaró ebben az egészben. Amit leír a gyújtással kapcsolatban, hogy az hogyan indul, nekem nem hangzik jól ha egy modulációs kazán (mert ha még olyan is, hogy kettő-három fokozatban állít nyomást a gázszelepen, nem folyamatos a moduláció) nagy teljesítménnyel indul majd lemodulál a megfelelő szintre.
A hozzászólás módosítva: Nov 23, 2023
Lehet, hogy csak a begyújtás miatt teszi, vagy hogy hamarabb fűtsön. De sem egy ábra, mi hol van, hol/hogy van a hőcserélő, stb. Így azért találgatás az egész. Mert én csak a logikát keresem a működésbe és lehet megzavarja az általa kiegészített "okosság". A hiba pedig a kettő "interferenciája", azért tűnik véletlennek. És talán azért nem ciklikus, mert van fűtés is olykor.
De ez csak logikai spekuláció..
Idézet: „Mitől függ, hogy heti 1x vagy napi 10x áll le?” Nálam pl attól függött, hogy a házban milyen hőmérséklet volt alapból. Amíg hűvösebb volt, ritkábban volt vészleállás, mert hidegebb volt a visszatérő víz. Ahogy emelkedett a hőmérséklet a házban, annál melegebb volt a visszatérő víz is, így a túlforrás is gyakrabban jött elő, és ezzel a vészleállás is. Ui.: Mindebben az volt a szép, hogy ez bizony a kinti hőmérséklettől is függ(ött) valamennyire. A hozzászólás módosítva: Nov 24, 2023
Idézet: „...ami pedig lemodulálna ha jól működik.” Esetemben ezzel az volt a probléma, hogy a hiszterézis +5 fok gyárilag, amit állítani nem lehet. Ez még nem is volna baj, de a reakcióidő a gáz lemodulálására eszetlenül lassú, kb 5 perc ahogy figyeltem. Tehát hiába akarna lemodulálni, ha már rég késő. Azaz beállítottam pl 65°C -ot, addig ment 100% -al. Amint túllépte 1-2-3 fokkal, igazából reakció sem volt még. 4-5 fok túllépésnél kezdett lefelé szabályozni, csak akkor már késő volt, és mikor elérte a 70°C -ot, még akkor is 50%-on ment, mikor ott már rég minimum modulációval kellett volna mennie. De természetesen ilyenkor már megtörtént a vészleállás. Sőt, ha én programozom, 2-3 fokos túllövésnél is már inkább minimumon kéne menni, mert ugye az már sok a beállított hőmérséklethez képest. És ahogy esik visszafelé, utána lehet rá szabályozni nyugodtan, de ez nem így van leprogramozva, legalább is az én kazánomban. Ha én egy minőségellenőr vagyok, ki sem engedem a gyárból, mert azt mondom, hogy ez egy szoftverbug. A hozzászólás módosítva: Nov 24, 2023
Sziasztok!
Van egy Saunier Duval Ecosy F28 AS gázkészülékem, amiben vezérlőpanelt cseréltem. A két panel eltérő működést produkál a kazán a ventilátor s.05 és a szivattyú utókeringtetés s.07 paramétereiben. Lásd a mellékelt jegyzőkönyvet. Tud esetleg valaki abban segíteni, hogyan lehet ezen a panelen a szivattyú utókeringtetés S.07 és a gyakori indítás blokkolási periodusán S.08 változtatni? A beüzemelési útmutató csak a 96 –os felhasználói menüt ismerteti. A 35-ös belépési kóddal lehet a szervizes menübe lépni. Fellelhető valami leírás, mit állít a COD23 –COD64 tartomány? A panelen szereplő sorozatszám 0020028434. Köszönöm a segítséget. A hozzászólás módosítva: Nov 28, 2023
Moderátor által szerkesztve
Sziasztok!
Segítséget szeretnék kérni beállításban. Van egy egy éves Duval semiatek condens 24kw kombi kazán, Előtte egy duval 6kw elektromos kazán volt használatban szintén egy évig még mindig rendszerben van,(neha bekapcsolom hogy ne ragadjon le stb csak egy kis infó ) Mikor be lett szerelve kapott egy qomputherm wifis termosztátot (ez volt kéznél és be uzemelve) Akkor a szerelő fülembe ültette a bogarat hogy van hozzá időjárás követő termosztát ami hozzá való. Na addig rágtam magam, megvettem külső szenzor. Minden kiépítve. Működik is rendesen kommunikál e-busszal. Mutatja külső hőmérsékletet is. Mivel ilyen esetben nem lehet állítani az előre menő víz hőmérsékletet A kazán sokat kapcsol ki-be veletlen vettem észre. Mert kazánházban van a kazán. Pl. Időzónás beállítás van. 21:30 tól 5:30 ig 21 fok ezután 22fok Épp ott voltam amikor át állt 22 fokra, szépen bekapcsol majd el éri előremenő hőmérsékletet és és le kapcsol, ahogy hűl vissza az előremenő utána bekapcsol ismét mert még ugyanugy 21fok van a helyiségben. És ezt addig csinálja amíg el nem éri a 22 fokot. Laikus vagyok ezen a téren fém-autó ipari munkás vagyok. Szerelő aki ismerősöm azt mondja ez ilyen. Ugye az előremenő hőmérsékletet a külső hőmérő határozza meg amit nem lehet állítani, szerintem túl nagy teljesítményű a kazán, vagy kevés a szivattyú fordulat.. szerintem... Igy gondolom hogy, ezen kellene állítani. 70m2 a ház szigetelt, 4 radiátor van 22k 800,800,1200,1200. Mit gondoltok? Ui. Az elektromos kazán is azt hiszem csak 3 vagy 4kw ra volt állítva Köszönöm szépen előre is segítséget.
Erre én is kíváncsi vagyok, nekem az isotwin csinálja. Én levettem 4-re a teljesítményszabályozást, de nem vagyok elégedett....
Jó estét mindenkinek!
Van egy Honeywell CS0116C-LS panel, amiben elégett a nagy.fesz gyújtó primer körében lévő fojtó és az értékét nem tudom pontosan azonosítani: az érték sávok 4 és 7, de a szorzó lehet 1, 2 vagy 3 is (a megbarnult szín alapján). A nyák pozíciószáma R78. Ha valakinél van ilyen panel, esetleg rajz hozzá, kérem segítsen a helyes érték meghatározásában. A segítséget előre is köszönöm! Imi
Én ez alapján ha kinagyítom akkor Citrom Lila Narancs Arany azt mondanám, 47kΩ...
A hozzászólás módosítva: Nov 25, 2023
Windows-os gépen már megettem volna de telefonon .... nem megy ez nekem.
....dógozok. A hozzászólás módosítva: Nov 25, 2023
Még lehet piros esetén 4,7kΩ is.
Pirosnak én azt nagyon halványnak látom. Az RL3 relé mellett van piros gyűrűs ellenállás.
De majd Imi eldönti mit lát. A hozzászólás módosítva: Nov 26, 2023
|
Bejelentkezés
Hirdetés |












