Fórum témák
» Több friss téma |
Fórum » Autóelektronika
Témaindító: sufni-tunning, idő: Ápr 19, 2008
Témakörök:
Nálam a generátor egyik diódája zárlatolt akkor csinálta ezt (komplett diódahíd csere megoldotta)
Köszönöm szépen a válaszod.
Tehát csak időnként volt zárlatos? Pont ilyen volt a hibajelenség, hogy alapjában jó volt, majd gondolt egyet, és átment tök zárlatba? Nem vitatkozok, csak kérdezek. Tudom, elektronikában bármi lehetséges. Ilyen is. ![]() Lehet benne valami, mert külön is lehet kapni, generátor nélkül. Jobban körüljárom, hogy rengeteg verzió közül, a jót rendeljem. A hozzászólás módosítva: Aug 19, 2024
Szia! Az izzítás reléje nem lehet hibás?
Eltöltöttem a problémával pár órát. A követlezőt tapasztaltam:
- Megnéztem a youtube-on fellelhető videókat és a Haynes leírást is megnéztem a generátor cseréről. Pofon egyszerű. Rájöttem, hogy a fél autót szét kell hozzá szedni, és a pajszeres ékszíj visszatétel is több, mint érdekes. Én ezzel nem tudok megbírkózni. - A részletes elektromos kapcsolási rajzot is letöltöttem, de nem tudok rajta eligazodni, nem áll rá a szemem. - A műszerfal középső információs kijelzője öt perc várakozás után is világított. A rádió, a pedálviágítás és a többi fogyasztó szép lassan elcsendesült, de ez a viágítás nem. Az áramfelvétel 605mA volt nyugalmi állapotban. Ez megfelel 1-2 db izzónak. Ez nagyon sok, de nem annyi, hogy leszívja az akkut 1-2 óra alatt. Tehát az időszakos generátorhiba simán benne van. Mennyi idő után kellene lekapcsolni az információs kijelző világításnak? Eddig nem nézegettem, ezért nem tudom. Ha valaki elvállalná a javítást, vagy van ötlete, hogy melyik szerelőhöz kellene vinnem, kérem írja meg, akár magánban. Két szakemberről már lepattantam. ![]() Előre is köszönöm.
Szia!
Köszönöm az ötletet. Hogy őszinte legyek, ez volt az első gondolatom ma. Viszont kaqkk kolléga javaslata, és pláne a sikeres javítása, más irányba terelt. Mivel én is szegről-végről elektromos embernek tartom magam (bár egyre kevésbé gyakorlom a szakmát), tudom, hogy ilyen megfoghatatlan és józan paraszti ésszel felfoghatatlan hibák igenis vannak. Megpróbálok utána nézni, hogy ez a relé hol van? Mégiscsak egyszerűbb lenne ezt cserélni, mint a generátort kiszedni (gondolom). Ha nem jön össze, akkor a követlező lépés lesz a generátor javíttatása.
Nincs a közelben DC lakatfogó? Azzal viszonylag gyorsan utána lehetne járni, mi lopja az áramot.
Nekem ugyan 2008-as van és 1.6 benzin. A középső kijelző elalszik néhány perc után, de újra feléled úgy 10-15 perc után kis időre. Ilyenkor még a belső légzsaluk motorjait is megmozgatja( hallani) . De utána "csönd". Ezek ilyenek. Ahogy nézem a kapcsolási rajzot, nem sok ilyen nagy fogyasztó van, ami egy óra alatt lemerítheti. Izzítás, esetleg üzemanyag szűrő fűtése, vagy első + hátsó szélvédő fűtés ( bár ilyen időben azt nem kapcsolod be) . Az izzítás szerintem többet fogyaszt, 10A töltéssel nem menne 6V-ig sem a fesz. A szűrőfűtés esetleg? Ki kellene venni a reléjét és próbálni anélkül. Vagy ülésfűtés? Bár azt észrevennéd.
Sajnos nincs. De szívesen beruháznék egyre, ha látnék esélyt rá, hogy megtalálom vele a hibát.
Azaz igazság, hogy eddig jószerivel a motorház tetőt sem nagyon nyitottam ki. Tegnap néztem bele először jobban, amikor a generátor kiszerelését fontolgattam. Aztán rájöttem, hogy nem tudom kivenni. Illetve kitudnám, de... A másik probléma, az az időszakos hiba. Mint írtam, most éppen nem vesz fel akkora áramot, ami ilyen gyorsan leszívná az akksit. Hónapokig jól működött, mikor váratlanul ismét előjött a hiba. Még az a szerencse, hogy nem valahol vidéken történt, ahol se akksi töltő, se idő rá, de még egy multiméter sincs az embernél. Valószínűleg nagyon sokba fog kerülni ez a javítás, mert a totál sötétben tapogatózok. Kicserélek (vagy kicseréltetek) benne ezt-azt, de nem lehete benne biztos, hogy sikerült a javítás.
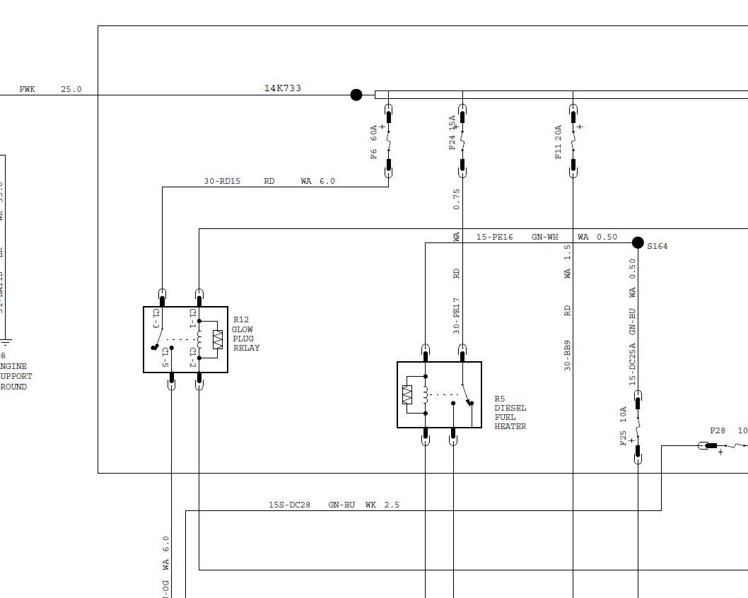
Nagyon köszönöm a rajzot. Hajnal óta kezdem magam beleásni a kapcsolási rajzokba. Ezt az "autóelektronika stílust" meg kell szokni / tanulni.
Igazából nem tudom, hogy mennyi idő alatt meríti le az akksit. Volt, hogy de.11 órakot még mentem vele, és du.4 órakor már csak 2 Voltra maradt benne. A legutóbb, este leálltam vele, és reggelre szintén 2 voltra lemerült. Azt nem tudom, hogy valójában mennyi idő alatt érte el ezt a feszültséget. Úgy látom, Te a 2,0 literest mellékelted. Nekem csak 1,6 van. Mi a különbség? Az, hogy a 2,0 literest gyártották relés kivitelben is (amiről képet adtál) és "elektronikus relével" is (FET-el, külön-Külön szabályoznak minden gyertyát). Az 1,6-ost csak FET-es "relével" gyártották (a rendelkezésemre álló rajz szerint). Ebből két dolog következhet: - Elvileg egy izzítógyertya is működhet, ami ugye csak negyed áramot vesz fel az egyszerre kapcsolt négyhez képest. - Rendkívül kicsi az esélye, hogy ez az egy bekapcsolva maradjon, mert ahhoz kell, hogy a vezérlő elektronika is működjön. Ráadásul, csak időnként... A leállítás funkció nálam >5,5 Amperrel indul. Hallom a zsalukat, meg akármit mozogni, majd szépen lekapcsolja a többi fogyasztót is (pedálvilágítás, rádió, stb). De a középső információs kijelzőt nem! Legalábbis 5-6 percig biztosan nem. Ez fix 600mA áramfelvételt okoz. Ma megvárom, hogy akármikor lekapcsolja-e? Mondjuk 5 percenként ránézek. Az ablakfűtést biztosan nem kapcsoltam be. (Meg amúgy is kedves lenne tőle, ha lekapcsolná magától, ha kiszállok az autóból. ) A szűrőfűtő esélyes lehet. Azt tényleg csak egy relé kapcsolja. Holnap veszek pár relét, és ha már lesz cseredarabom, akkor "roncsolásos vizsgálattal" megnézem, hogy vajon a fűtőrelé összeéghetett-e (időszakosan)? A hozzászólás módosítva: Aug 20, 2024
Akár kölcsön is adnám, ha megígéred, hogy visszahozod.
Kollégában megbízok, Bókay kerti HE találkozón ottfelejtettem a főzésnél a piros lavórt, hiánytalanul átvehettem nála (nem nyúlta le).
Kezdésnek az akkut megméretném, mivel a mélykisülés jó eséllyel megölte…
A Fordnál van Battery Management System, amit akkucsere után is resetelni kell. Nálad nem volt akkucsere, de egy egyszerű művelet, én megpróbálnám, hátha helyreáll a rendszer. Lehet, hogy alapból az akkud is gyengélkedik (nem írtad mennyi idős), szerintem nem ártana azt is kiméretni és lehet ez a BMS is megbolondult.
Bővebben: Link Bővebben: Link
Az a 2 voltos akku feszültség rémisztően alacsony, tuti hogy már csak ellensúlynak jó az akku egy régi típusú terménymérlegen. Amíg abból nincs egy bivaly erős új vagy használt de tuti hibátlan, kár méregetni és cserélgetni, annál már egy intelligens töltő kirakná neked a kuka jelzést
Nagyon szépen köszönöm, de biztos, hogy nálam menne tönkre.
![]() Eddig még bármit kölcsönadtam, hibásan hozták vissza (ha egyáltalán visszahozták). Félek, ez velem sem lenne másképp. Találtam egy olyat, hogy 8,6eFt+áfa+szállítás. 400A-ig mér AC + DC (adapter). Biztosan nem egy laborműszer, de nem is az a cél. Lehet, hogy az életben most az egyszer használnám. Kérdés, hogy megtalálnám-e vele a hibát?
Biztosan összetévesztesz valakivel, mert:
- én valóban a szomszéd kerületben kakom, de még sosem voltam HE találkozón - ha ott lettem volna, biztosan nem adom vissza a piros lavórodat. Megtartottam volna ereklyének. ![]() Köszönm szépen a bizalmat.
Nem ölte meg. A legelső alkalommal, amikor először ezt csinálta (kb. egy éve) azonnal mentem, és vettem egy másik akkut. A régit ott hagytam az akkusnál. Hiba volt. Szerintem annak se volt semmi baja, de szintén azt gondoltam, hogy ilyen mélykisütés után nincs élet. Volt. Még télen sem volt az új akkuval probléma (miután az is kisült 2 Voltra).
Most szintén feltudtam tölteni (mint írtam korábban) és pöccre indult a kocsi. Azt nem állítom, hogy direkt használt neki, de pillanatnyilag nem ez a fő problémám.
Köszi, de nem gondolom.
Amit linkeltél, az szerintem a Ford Focus III-ra vonatkozik. Ez csak Ford Focus II. Ennél elég a rádió kódot beírni akku csere után (legalábbis eddig ezt tapasztaltam).
Mint írtam, 3 órás töltés után, pöccre indult. Igaz, most nyáron. Ez az akku egy éves sincs. Ha veszek is új akkut, csak az után, hogyha sikerült a valódi hibát megtalálni és kijavítani. Különben nincs értelme az új akkunak.
A hozzászólás módosítva: Aug 21, 2024
Hát akkor nem kölcsönadja, hanem elmegy mérni hozzád. Ha jól látom, egy kerületben laktok
Egy mérésért (ha máskor nem használsz olyat) kar megvenni.
Ooopsz! Még az irányítószám is stimmel. Talán az utca is. Lehet, hogy szomszédok vagyunk?!
![]() A saját testvéremtől sem kérnék ilyet, hogy jöjjön el mérni, mert nem tudom, hogy mennyi időbe telik. Percek? Órák? Napok? Viszont ezek után (ha nem túl drága műszerről van szó) lehet, hogy mégis élnék a gáláns felajánlással.
Nem azt írtam, hogy látatlanba cseréld, hanem, hogy méresd meg egy szakműhelyben.
Dehát összehozhattok egy mérésekkel összekötött sörözést talán
![]() Jó, más szerszámával csalánverek, de talan összehozható. De: nem kényszerítek én senkit sem. Csak ötlet volt.... A hozzászólás módosítva: Aug 21, 2024
Egy ilyenféle
De személyes adatokat nem adunk meg, nyilvánosan.
Sziasztok! Adott egy épített terepjáró, hütő hátu.Eddig egy Merci hütőm volt Golf 4 klíma ventivel (40A relé 30A bizti) és egy Mazda 323 ventivel (30A relé 60A főbizti) . Golf kapcsolóról üzemelt (kapcsoló előtt 10A bizti), a másik gyújtás után már pörgött. Ezzel a konfival ősztől tavaszig tökéletesen működött. Most kapott egy Transporter T4 hűtőt a ventilátorokkal együtt. Viszont a kapcsolt venti biztije(30A) egyből elköszön, a másik az megy csak a fix pozitív és a kapcsolt vezeték is melegszik, a relé(30A) háza meg is olvadt. Próbáltam úgy, hogy direkt az aksiról kap mindent az új 40A relé, fix pozitív biztosítva 30A biztivel. Kapcsolót felkapcsolom egyből elköszön a bizti(30A). Viszont ha rakok be 2db 30A akkor megy a venti, fix szál bizti előtt és után is forró, meg az is ami megy a reléről a ventire. Régi ventivel vagy lámpával semmi baja a 40a relének vagy a veztékeinek 30A biztivel. A vezetékek keresztmetszete 4mm, saruzva forrasztva szigetelve! Golf venti Spal VA09-AP8/C-27S Mazda Denso 122750-1722 Transporer T4 2.4 dízel venti ezekről semmi adatom nincs! Valakienk valami ötlet? Remélem érthető amit írtam!
Köszönöm szépen a felajánlást, de ahogy nézem, nem is tudom, hol férnék hozzá a vezetékhez a lakatfogóval? Egyelőre nem is veszek.
A személyes adatok nem kerültek ki, tekintve, hogy a település és az irányítószám benne van a profilunkban, azaz, nyilvánosnak mondható. Ennél közelebbi adat (név, cím, egyéb) nem lett megemlítve, mivel nem is ismerjük. (Persze, ha magánban megadod, akkor egy-két sörre a vendégem vagy. ) Viszont vettem két relét. Az izzítógyertyához és az üzemanyagfűtéshez is. Eddig 10,773 Ft volt a költség. Az alábbi kép az izzító gyertya relé képe. Amikor kivettem, normálisan működött, de a kép alapján, eltudom róla képzelni, hogy időnként összeragadhatott. Meglátjuk. Ha a hiba ismét előjön, akkor a következő lépés kaqkk javaslata: az egyenirányító csere. Az már húzósabb lesz, mert a munkadíj legalább 50e lesz. De azért legyünk pozitívak! ![]() Az elmúlt 10 percben szépen tartotta a 12,27 Voltot az akku, és az információs kijelző is elsötétült. Mindenkinek nagyon köszönöm a segítséget! Nick név szerint: kaqkk, VIM, Bakman, Tomi111, Gafly, SzervízMacska, Gabtronic, villanyipi, szs és persze Hutty.
Szeretnék elnézést kérni. Időközben letöltöttem, még egy rajzot, és azon az Mk II 1,6 literes TDCI-ben is relé kapcsolja az izzítógyertyát, nem elektronika. Az enyémben is ilyen relé van. Szerintem, végül ugyan azt a rajzot néztük, csak engem megzavart, hogy a rajzszámból, vagy egyéb jelölésből nekem nem derül ki, hogy az adott kapcsolás végül melyik motorszámú kocsiba lett beépítve?
Köszönöm a segítséged! Egyelőre relécsere lett a vége.
Kicseréltem a ventiket, másik fajta T4re. Helyszínen 25A biztivel kipróbáltuk jó volt nem pukkant el. Haza hoztam berakom relé elé 25A bizti pár perc után leolvadt a műanyag. A relé és a bizti (fix pozitív) közötti vezetek meleg meg a relé is. Ugyan úgy 4mm vezeték. Hol a hiba??
|
Bejelentkezés
Hirdetés |






Rájöttem, hogy a fél autót szét kell hozzá szedni, és a pajszeres ékszíj visszatétel is több, mint érdekes. 

) A szűrőfűtő esélyes lehet. Azt tényleg csak egy relé kapcsolja. Holnap veszek pár relét, és ha már lesz cseredarabom, akkor "roncsolásos vizsgálattal" megnézem, hogy vajon a fűtőrelé összeéghetett-e (időszakosan)?


De azért legyünk pozitívak!


