Fórum témák
» Több friss téma |
Fórum » Hangsugárzó építés, javítás - miértek, hogyanok
Témaindító: csonthulye, idő: Dec 10, 2005
Témakörök:
Eltérő akusztikai elhelyezés volt az oka.
Megcseréltem és most a másik tűnik hangosabbnak.
Tannoy M1 magashoz van mérese vkinek ? Az érzékenysége és váltási frekvencia érdekelne.
Kösz
Itt találsz mérést: Bővebben: Link
A hozzászólás módosítva: Szept 26, 2015
Nem a frekvencia az érdekes, az 3,5kHz fölötti.
Az a fontos, hogyan váltják a többi hangszóróval együtt.Illetve ezek a mérések süllyesztve érvényesek.
Félúton tartva, nagyjából "összekalapáltam" a két frontsugárzó dobozát. Az előlap kissé meg van döntve, és a magassugárzó süllyesztve van (ezt a konstrukciót, és a doboz méreteit szakértői tanács alapján választottam).
A doboz előlapjának külső élét valamilyen formában le akarom törni, de tanácstalan vagyok milyen fazont célszerű kialakítani. Szívesen fogadnék javaslatokat.
Rádiuszmaróval két hosszabbik oldalról. Vagy minden frontélről.
Ránézésre kezdek félni. Remélem, nincs miért. Igaz nem én hallgatom. .)
Mi zavarja a szemed? Elmondod konkrétabban?
No.Elkészültek nekem is a szubládáim.Most r 300 dörög bennük,40 hz től már szépen rázza a gatyót
- Az "r 300" micsoda?
- Mit jelent a 40 Hz-es határ? Te mit értesz ezen? - Csak oldalnézeti méretezést látok. Szemből mik a méretek? - A doboz elemeinek rögzítésénél hornyokat látok (a képen az éleken látszik, de gondolom a lapokban is megvan ez a horony). Ebbe idegen anyagból, valamilyen alakos illesztőelem kerül? Hallottam már ilyesmiről, de még elképzelni sem tudom, hogy a lap részbe hogyan lehet eltalálni, hogy minden horony éppen a helyén legyen. Eltérő véleményeket hallok a dobozoldalak csavarozását illetően. Sőt még a gyártók is néha éppen erényként emelik ki, ha egy doboz még csavarozással is erősítve van.
Az r 300 az szerintem Reflex 15R300 akar lenni.
40 hz nél már dörget azt jelenti ott már szép az átvitele egészen pontosan 120 hz ig bezárólag.(itt vágom aktívan).Lamellózva (halacskázva) vannak a dobozok enyvezve,nagyon stabilak,nem kell bele csavar sem.Az r 300 alatt a Reflex cég r 300 as hangszóróját értettem.Egyébként nem egy hangszóró válogatós a láda és valóban hatalmas kiemelése van mélytartományban amit már csak a topládák tetőznek
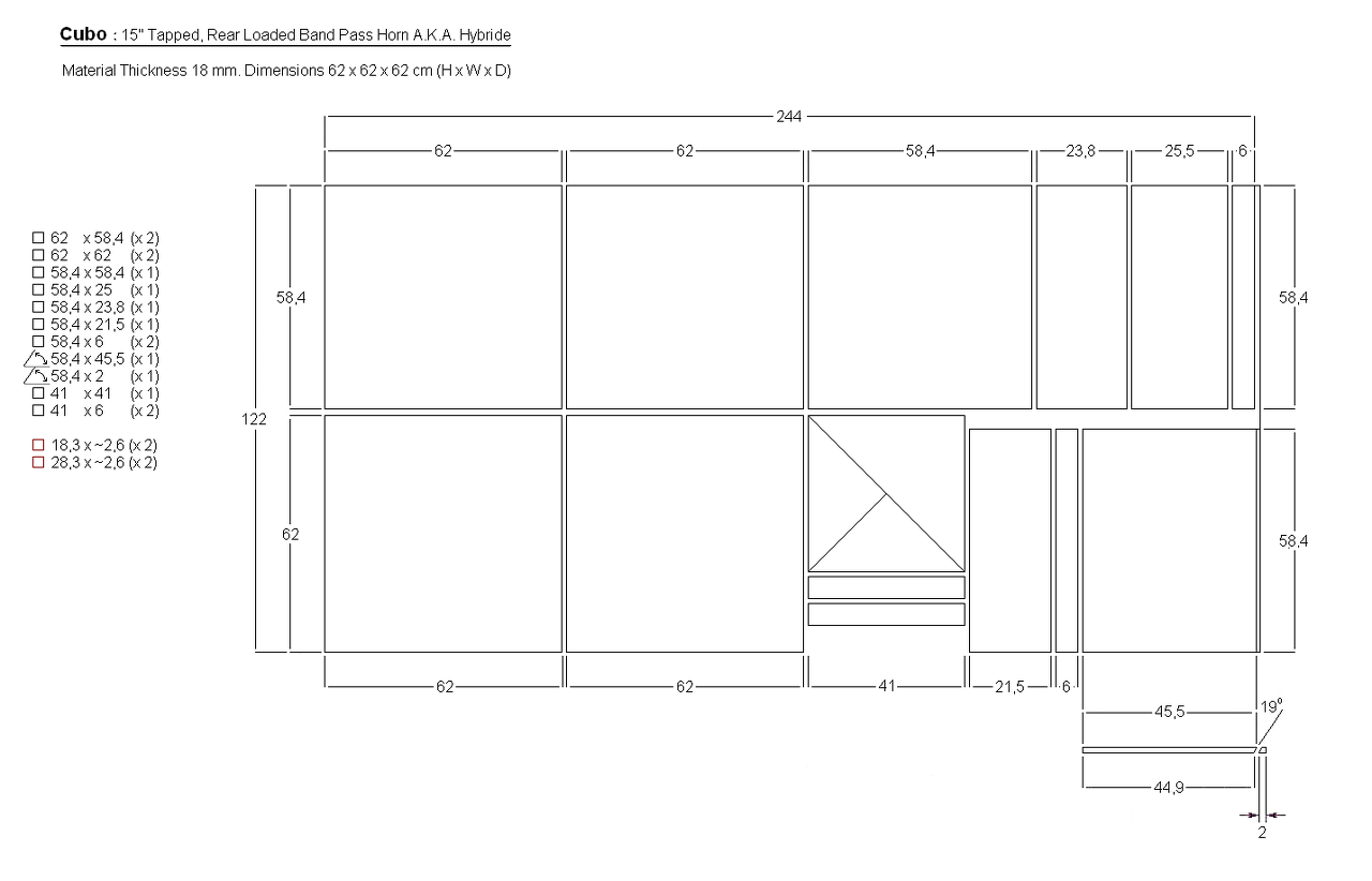
Már megkapták a kerekeket is,egyenlőre csak passzív váltó fityeg rajtuk majd aktívan váltom ha élesbe viszem őket buliba És igen a lapokban is ott a horony. Méreteket lásd kiterítve a mellékletben.Idegen anyag nincs. A hozzászólás módosítva: Szept 27, 2015
Csak lehet, hogy az az átvitel már nem fér bele a szabványba az erősítések-kioltások miatt. Hangoskodni biztos nagyon jó. A hozzászólás módosítva: Szept 27, 2015
P László!Ez biztos hogy nem szobába való!
Mit jelent hogy sok a lyuk? Úgy érted illő lenne a széleket valami tőmítő anyaggal is kihúzni belül? Nem fúj ki sehol! Ahol meg igen ott pontosan ez a cél De ha tanácsot adsz hogy lehetne jobbá tenni szívesen várom válaszod Esetleg csillapítóanyaggal stb.Amúgy nagyon stabil lett nem lötyög nem rezonál a láda maga. A hozzászólás módosítva: Szept 27, 2015
Próbáltalak kérni, hogy legyél világosan érthető. Sajnos én nem tudok a bujtatott célzások labirintusában tájékozódni.
Ebben lesz két párhuzamosan kötött mélyközép, és egy magas. Ez durván 3 db, sugárzó, és ehhez ennyi lyukat is vágtam. Ha elmondod mi zavar, szívesen olvasom a gondolatodat.
Félreérted. Alkotónak válaszolt, nem neked.
Arra utal gondolom, hogy két mélyközepet alkalmazol, D'Appolito elrendezésben.
Vannak buktatók amire oda kell figyelni a tervezésekor, megvalósításkor. Eggyel egyszerűbb, de majd kifejti. (előbb-utóbb )
Nem akarok akadékoskodni, de magam is éppen SZUB-ot építek, ezért nézegettem a hangszórókat hozzá, különös tekintettel néhány paraméterre (végül -ajánlásra- ezt választottam). A Te típusod -ha jól látom-, nem egy hangszórót jelöl, hanem egy komplett 3 utas dobozt. De milyen a hangszóró?
R300
A hozzászólás módosítva: Szept 27, 2015
Reflex R 300
Előszeretettel használták,használják szub ládákhoz lásd reflex rtb 600.Az újakba már beyma k 200 vagy hasonló került,de semmivel sem jobb mint az r 300 ezt tanúsíthatom!Alátámasztandó azzal is hogy akkusztikailag nem éppen jól kialakított klubban is megállta a helyét r 300 al szerelt rtb 600,vagy r 300 akkal szerelt cubo 15" os verziója rengeteg akkusztikai kioltással végül középre tolva tölcsérek kifelé fordítva, utóbbi jóval nagyobb hangnyomást produkált tisztább dögösebb hangzással a várt tartományokban ami mindenkinek szubjektív,ugye a zenétől is függ műsortól,és elvárásoktól...egyébként az r 300 jól érzi magát más tölcsérben is lásd youtube link:Videó. A hozzászólás módosítva: Szept 27, 2015
Számomra nagyon megbízható tanácsadóm volt, aki a tervezés sok-sok részletét átvállalta tőlem. Ténylegesen lemértük a hangszórókat (itt is köszönöm Reloop közreműködését), és ebből kiindulva, a BassBOX programmal történtek a szimulációk (és még gondolom sok egyébbel is).
Pl. számomra érdekes volt, hogy tizedmilliméter pontossággal megadta nekem a szakértőm, a két mély-közép távolságát. Ez még nem is okozott gondot, de mivel a két előlapi sík 4-4°-ban meg van döntve, így már nem olyan könnyű eldönteni a membrán tengelyének melyik pontján álljon be a távolság. Végül, önkényesen úgy döntöttem, a gumiperem aljának síkjában lesz az előírt méret. Nem mellékesen, magam is próbálok felnőni a feladathoz, és elolvastam sok-sok ajánlott irodalmat, sőt esély van arra is, hogy magam is képes leszek az egyszerűbb hangszóróméréseket elvégezni (szintén jelentős külső segítséget igénybe véve a kezdeti lépéseknél). Most már egyértelmű számomra, hogy a témához kapcsolódó elméleti tudás csak részben áldás, és nem kis részben átok is egyben. Egészen hamar kiderül, hogy szinte minden apróságra van már elméleti háttér, és sokat tudunk a hatások előnyéről meg hátrányáról. De még csak utalás sincs arra, mi fontos, és mi nem, pedig a hatások KIZÁRÓLAG egymás rovására érvényesíthetőek. Tehát továbbra is állítom, az igazán jó hangképet eltalálni, sokkal inkább művészet (és szerencse), mint pontosan tervezhető paraméterek összessége. Megkockáztatom, a tervezés csak a durva tévedésektől óv meg minket, de e finomságok fárasztó kísérletezgetés során adhatóak csak hozzá.
Így igaz!
A hozzászólás módosítva: Szept 27, 2015
Köszönöm, megnézegettem. Valóban jók a paraméterei, és a helyette ajánlott beszerezhető alternatíva (ez az), szintén remek választásnak tűnik.
A Beymával rossz tapasztalatom még sosem volt,kitűnő választás!Remek minőségi hangszórók.
A hangsugárzó-építés, valóban egy elképesztően összetett dolog, annak ellenére, hogy a naivabbak számára milyen egyszerűnek tűnhet. (fogsz egy dobozt, oszt vágsz rá egy nyílást) Minél többet tudsz meg annál több bizonytalanság gyötör.
![]() Valóban úgy van, hogy elméleti tudás, gyakorlati kísérletezés, mérések tömkelege, (kiértékelése) egymásra hatások, hangszórók, és paramétereik, környezeti akusztika ismerete stb. szükséges egy jó hangsugárzó építéséhez. Vagy másol az ember egy már kikísérletezettet. |
Bejelentkezés
Hirdetés |





Az a fontos, hogyan váltják a többi hangszóróval együtt.



És igen a lapokban is ott a horony. Méreteket lásd kiterítve a mellékletben.Idegen anyag nincs. 


