Fórum témák
» Több friss téma |
Fórum » PLC kérdések
Témaindító: Thomas10100, idő: Nov 12, 2005
Idézet: „A sörösüveg oszlopok érzékelése a feladat.” Mondtam már! Nem kel foglalkozni az oszlop érzékeléssel! Az a lényeg hogy meg legyen a 5x4 (vagy akármennyi) üveg... -Rekeszfogó elenged egy rekeszt -induktívok meglátják a sort amiben van sör, beírnak 1. memória területre -a sor eltűnik az induktívok előtt -> lefutó él után pici időzítés, memória terület léptetés -induktívok meglátják a következő sort amiben van sör, beírnak 2. memória területre -a sor eltűnik az induktívok előtt -> lefutó él után pici időzítés, megint memória terület léptetés ... ezt így minden sor esetében! -opto jelez, hogy elment a rekesz: memória területeken lévő számok összeadása, vizsgálata, ha megfelelő akkor mehet tovább, ha nem egy kilökés. -memória területek törlése, új rekesz beengedése. Mivel csináltam már ilyet a valóságban is, arra kell figyelni, hogy mechanikusan megoldott legyen hogy csak 1 rekesz haladjon át a rekeszmegfogón! Azaz kialakuljon a rekeszek közt egy akkora távolság, hogy megfogható legyen következő. Ezt fékezett görgővel szokták megoldani, ami a megfogó előtt a 2. rekesz alatt kell hogy legyen. Így az első rekesz jobban fog gyorsulni. Ezt a programot kb 50-100eFt értékben meg lehet írni, még a hibakezeléssel is(kb 1-2 óra, plusz esetleg helyszíni teszt, finomításokkal). Ha Omron lenne a célhardver már unalomból is megírtam volna Aki C-ben szokott dolgozni, annak lehet hogy a "létra" gondolkozás hirtelen komplikált. Újabb plc-ben már lehet akár C-ben is megírni funkció blokkot A hozzászólás módosítva: Nov 14, 2021
Idézet: „viszont egy tömb vagy mátrix változó létrehozása” Minek az?? Ez nem C! Itt nem kell foglalni memória területet! Tengernyi szónyi terület van már készen! Megfelelő utasításokkal olvashatóak, írhatóak törölhetőek, akár bitenként is! A hozzászólás módosítva: Nov 14, 2021
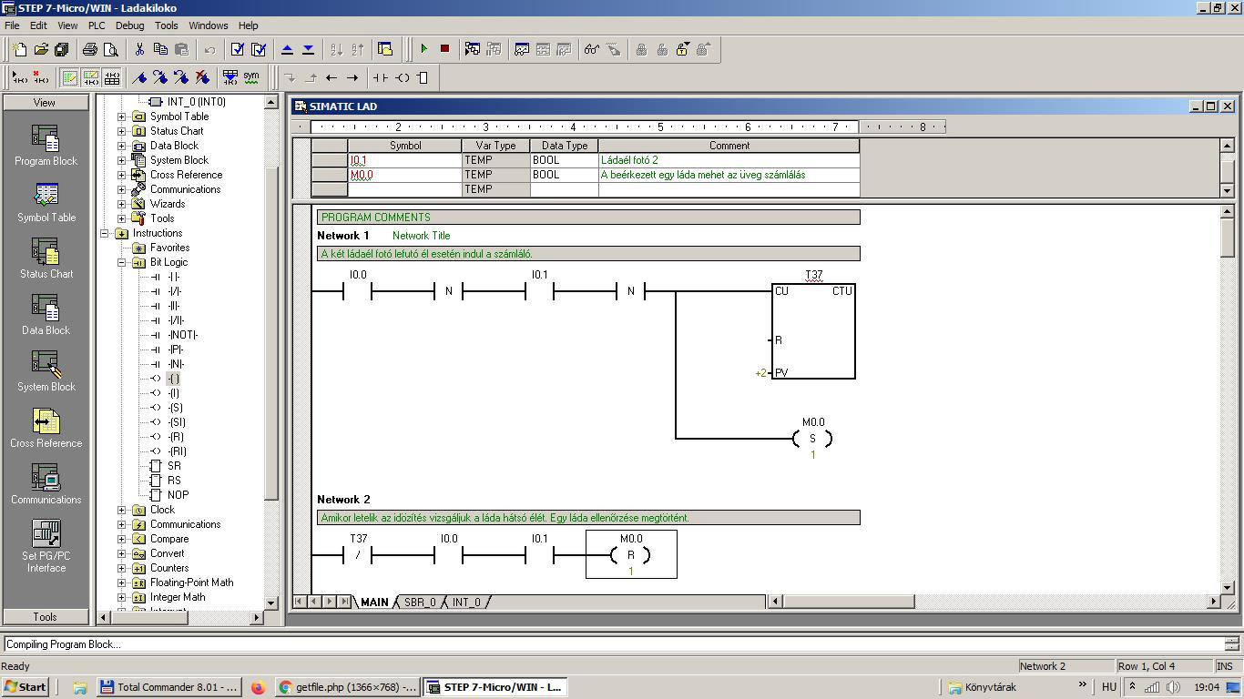
Köszi a választ mindkettőtöknek. Közben neki álltam a programozásnak ez így jó lehet? A beérkező rekesz 2db ládaél fotót figyelem ha lefutás megtörtént indul egy 200msec időzítés, valamint egy merkel 1-re vált. Eközben lehet az üvegeket vizsgálni (ez még sehol nincs). Amikor letelt az időzítés akkor ismét nézhető a ládaél, várjuk hogy rekesz elhagyja a vizsgálót. A merkelt 0 ra állítjuk ha ez megtörtént.
Én itt engedlek el!
Nem azért mert nincs kedvem tovább segíteni, hanem azért mert teljes a sötétség a Siemens vizeken! Másrészt nem tudom mit akarsz most megvalósítani...
Főleg akkor jó az ilyen szitu, ha őt alkalmazza egy cég amiért fizetést kap.
A PLC programozás (is) hasonló a zongorázáshoz vagy a sakkozáshoz vagy a nyelvtanuláshoz.
A PLC programban az utasításokat (és sok minden mást is), a zongorázásban a billentyűket, a sakkban a bábukat, az idegen nyelvben a szavakat kell megfelelő időben és sorrendben alkalmazni. A többi csak gyakorlás kérdése .
Minden segítőkészség megvan bennem!
Én is kapok segítséget, pl ma is aky87-től, mert hardverkonfigba elvesztem. De mivel nincs itthon Siemens, aminek egy egyszerű oka van, illetve én csak Omronon dolgoztam eddig, ezért siemens gondolkozásmódját nem ismerem. Amit lerajzolt azon nem megyek el... Omronban így nézne ki egy felfutó élre differenciált bemenet és a D10000 memória terület 0 bitjére való írás ebből kellene annyi, amennyi üveg van egy sorban. Illetve kell még egy kis csavar mert léptetni kell mondjuk a D területet, hogy a következő sort a D10001-re írja
Sok gyártó kínál okos és önállóan (!) működő kamera olvasókat (például Omron, Keyence, Cognex - ezeket használjuk mi).
Én így alkalmaznám (pl kartonban 30 darab 2D kód olvasása egy fényképpel): - kamera felülről nézi az egész rekeszt; - optoérzékelő (továbbra sem fotó ) jelez PLC-nek a rekesz elejét detektálva;- PLC triggert ad kamerának fotózáshoz; - kamera jelet küld PLC -be -> 0, ha 24 kupakot lát (PNP logikánál), 1, ha nem 24 kupakot lát. Kell még PLC-be kamera kész (ready) jel, hogy kamera munkára kész (nincs pl táp probléma...). A kamerát vagy PC-n (etherneten vagy USB-n) állítod be vagy a saját HMI-n (Human Machine Interface = kezelő). Távolról akár terméket (rekesztípust, pl 24, 20, 12 üveges) is válthatsz. Majdnem betettem ide képeket, de reklám lenne. Bármelyiket megkeresed, segítenek tanáccsal, próbakészülékkel is. A feladatod nem speciális, egy szakértőnek (mint akár dB_Thunder :bow ujjgyakorlat, ti meg fizessetek, mint a katonatiszt és nem lesz gondotok a hiányos rekeszek detektálásával. A hozzászólás módosítva: Nov 14, 2021
Pontosan, ma már a "gépi látás" mindennapos az autóiparban, mi is mindent Checker-kel nézünk, igaz nem olcsó (több ezer euro) de ha jól van beállítva, akkor könnyen lehet programot/job-ot váltani, nem kell szenzort átszerelni... Sajnos ez a jövő, ha tetszik a megrendelőnek, ha nem, vagy marad a kínlódás, az állásidő meg ketyeg, vagy a vevői reklamáció, és akkor hamar visszajön a befektetés.
Nem plc programozóként alkalmaznak a cégnél illetve nem ezért fizetnek, mert akkor már éhen haltam volna. Lényegében érdekel a téma sajnos elegendő időm nincs rá, hogy beleássam magam mélyen és csak ezzel foglalkozzak.
Köszi a segítségedet sokat segítettél hasonló elképzelésem volt nekem is a dologról, a megerősítéseddel szerintem működni fog.
Szia erről kamerakép elemzésről tudnál valamit írni érdekelne, hogyan történik, pixelenként színeket figyel? Gondolom van hozzá fejlesztő szoftver amivel lehet programozni?
Nem konkrétan az itt említett megoldással, hanem egy sokkal régebbi, kb. 20 éves technológiával dolgoztam. Amúgy végtelenül egyszerű a megoldás, akkor még PC-n futott, ma már az se kell hozzá. A lényeg, hogy van egy kamera, ami egy adott pillanatban készít egy képet. A képernyőn ki lehet jelölni ablakokat, akkor még csak négyszögeket, szinte bármennyit. Ezeknek volt egy azonosítójuk és hozzá rendelve egy fényesség érték. Minden egyes "lövésnél" adott egy listát, hogy mely azonosító átlagolt fényesség értéke van a megadott érték alatt vagy fölött. Ezzel 100%-osan lehetett detektálni, hogy egy tárgy ott van-e a helyén vagy nincs. És még csak nagy felbontású kamera se kellett hozzá, csak jól kellett tudni megválasztani a négyszögeket.
Koszi. Ezt a fényesség érték meghatározást milyen szoftverrel oldották meg? A fényesség érték gondolom a kép pixelek színéből generálódik, illetve sötét tárgyak esetén is működik?
Nekem is van hasonló fejlesztésű rendszerem rasperry-re pythonban, neg pc-re C# nyelven, egy adott terület alatt kiolvassa a pixelek RGB értékét, ami alapján el lehet dönteni mi van ott, van mikor elég a 3 értékből csak egy szürkes kálával számolni.
Köszönöm akkor ez is megoldás lehet.
Üdv. Régebben a Győri COCA-COLA gyárban dolgoztam. Nálunk nem kellett azt ellenőrizni, hogy a rekeszekben benne van-e a kívánt mennyiségű palack. Ennek egyszerű oka volt, olyan stabil volt a töltő gép utáni berakó gép, hogy az soha nem fordulhatott elő, hogy egy rekeszbe hiányosan rakott volna. A gépsor neve REF-PET sor volt, egy óra alatt 24 ezer másfél literes palackot töltött meg, ezek vissza válthatóak voltak, a gépsort a Német KRONES cég szállította. Több gépen is voltak olyan újítások, amit a Német cég tulajdonosának a szabadalma volt. Ilyen volt a töltő gép utáni berakó gép is, meg a sor elejénél volt gép, ami a rekeszekből menet közben kivette az összes palackot és letette ezeket úgy a szalagpályára, hogy egy palack se dőlt el, figyelemmel arra, hogy a szalagpálya sebessége nem állandó. Volt a gépsorunkon egy szagló gép is, ami ellenőrizte, hogy otthon a palackba ki mit töltött bele, és ha nem oda való anyag volt, akkor azt kidobta a gép és ment a palack a darálóba. Kémiai elektrolumineszcencia elvén működött ez a szagló gép. Esetedben én először azt vizsgálnám meg, a berakó gép miért nem működik megfelelően, mert utána nem lehet palack hiányos rekesz. Nálunk csak a sor végén volt számolva a komplett raklap száma, és a hetente gyártott mennyiségek után automatikusan számolva volt, hogy egy villamos szekrényben pl egy mágneskapcsoló hol tart a működési számoknál, ha megközelítette a gyárilag előírt kapcsolási számot, akkor azt tervszerűen még az előtt lecseréltük, hogy az meghibásodott volna. Szinte soha nem volt e miatt sor állásunk, tervszerű hiba megelőző volt a karbantartási rendszerünk.
Szia István. A PLC programozásnál az egyik legfontosabb, hogy a feladat legyen korrekten megfogalmazva, a skicc legyen pontos. Az érzékelők elhelyezése és a rekeszek is legyenek ábrázolva oldalt és felül nézetben is. A programozónak mindent tudnia kell, a kampós adagolásról, meg a rekesz ellenőrzőnek mit kell csinálnia, a rekeszben lévő palackokat meg kell számolnia, és a napi gyártás megkezdésétől a műszak végéig összesíteni a palack darab számot, és pluszban ha az egyik rekeszben palack hiány van, akkor azt a rekeszt az ellenőrző gép után félre kell sorolni stb stb. Mi történik a hiányos rekesszel? Kézzel tele rakják, majd az ellenőrző után egyszerűen csak besorolják? A kampós adagolónál, írtad, hogy mikor az felemelkedik, akkor egy időzítő letelte után megy vissza, megfogva a második rekeszt. Mivel ferde a görgős pálya, nem látni azt, hogy amikor megindulnak a rekeszek a lejtőn, akkor az elöl lévő rekesz mennyire tud eltávolodni az utána következőtől, így mivel mi ezt nem látjuk, nem tudni hogy az adagolásnál megfelelő-e az időzítő alkalmazása? A gyakorlatban azt szokták csinálni, hogy az első rekeszt adagolásnál ha az el tud szakadni az utána lévőtől, akkor egy érzékelővel nézik a pontos pozíciót, ha ezt elérte az első rekesz, akkor zár a kampós megállító. A skiccre a rekeszeket is pontosan be kell rajzolni oldal nézetben. Írták már mások is, a rekesz felett vannak vízszintesen az induktív érzékelők, ezzel nézed hogy az üvegek benne vannak-e? A rekeszről kell felülnézeti skicc is. Az is érdekes lehet, hogy a soron csak egyféle termék megy, vagy több féle, mert ez sem mindegy. Legjobb lenne, ha fotó vagy videó lenne a feladatról így többet lehet segíteni. A program készítését csak ezek után szabad elkezdeni. Azt is tudni kell, mi van a hiányos rekesz kilökése után, esetleg a pálya rekeszekkel feltelhet-e, vagy csak akkor adagolunk, ha van szabad hely? stb. Arra is lehetőleg törekedni kell a gyárakban, hogy a termelő soron ne legyenek fekete sötét gépek vagy egységek, amit nem ismerünk teljes-körűen, mert ha csak egy is van ilyen, akkor egy hibánál megáll az egész sor. Ezért nem szoktak a komolyabb cégek pl S7 300 és S7 400-as PLC-knél kisebb pl S7 200-as PLC-t sem berakni a sorba. Az S7 200-as PLC-t csak kisebb feladatokra szokták alkalmazni. Sajnos vannak helyek gyárak, ahol ezekkel nem foglalkoznak, találkoztam olyannal is, ahol egy üzemben addig amíg német tulajdonban volt, addig csak Siemens PLC-k voltak, szinte a teljes paletta, majd mikor a cég Amerikai tulajdonba került, elkezdtek behozni Angliából minden fajta régi gépet. Ma legalább 7-8 féle PLC van az üzemben. Csak abba nem gondolt bele senki, hogy akkor ezeket a PLC-ket vagy gépeket majd ki fogja egy hibánál javítani. PLC programok, kábelek stb.
Sziasztok!
Dolgozom egy ideje egy PLC programon. Egy Mitsubishi FX1N a használni kívánt PLC. Az a gondom, hogy szeretnék egyszerre 2 db AB phase Enkódert használni, de sanos csak 1-et tudok. Erre szeretnék egy megoldást találni. A két jeladó egyszerre fog nekem jelet küldeni, mert mindig együtt mozognak, de midig változó, hogy mennyit. Köszönöm a válaszokat előre is!
Szia!
Nem vagyok ismerős a szóban forgó PLC-vel kapcsolatban. Amit láttam, hogy az első bemeneteket (talán az első 6-t) lehet gyors bemenetekként használni. Szoftverben viszont csak 1-szer lehet használni az enkóderhez való modult. Egyszerű megoldást nem látok. Ha külső hardverrel a kódadók jeléből készítesz előre és hátra számláló impulzus sorozatokat, akkor akár 3 db kódadót is fel tudhatsz dolgozni SPD szoftver modulokkal. Létezik ehhez cél IC, illetve korábban amikor nekem kellett ilyen, akkor egy PIC-kel valósítottam meg a megfelelő szintillesztő áramkörökkel kiegészítve. Esetleg ha nagyon alacsony a kódadók frekvenciája, akkor elképzelhető, hogy szoftveresen is létrehozható egy kódadó modulnak megfelelő számláló. És persze választhatsz egy másik, erre alkalmas PLC-t.
Sziasztok
Segitség kellene egy omron fh kamera softverben . Amire szükségem lenne az FZ/FH/FJ-XXX Ver.5.72 2017/06/16 . Sajnos az újabb verzió ami letölthető nem kezeli.Esetleg valakinek meglenne ? Előre is köszönöm.
Sziasztok
A step7 basic programnak mekkora a gépigénye? Vennék egy kezdő kit-et tanulásra csak nem tudom hogy a laptopom mivel nem mai, bírná a tia portált vagy sem Köszi!
Parancsolj Bővebben: Link
Sima Classic Step7 bármin elmegy. Tia Portal-hoz minimum 16GB ram ajánlott, a 32-től az igazi.
Van valakinek esetleg hozzá oktatói segédlet így a bonyolultabb paramcsokhoz, műveletekhez? Keresgéltem de eddig még nem nagyon találtam.
Illetve a hol érdemes letölteni / megszerezni a programot hozzá? Köszönöm!
Van egy Kinco HP043-20DT hmi+plc ezt kötném össze Kinco CV20-4t frekvenciaváltóval, modbus kommunikációval. Start-stop megy modbus-ról, csak a frekvenciabeállítás nem.
Valaki tudja, hogyan kell? Előre is köszönöm!
Sziasztok!
Kérdésem lenne, hozzájutottam SIEMENS LOGO! 8 tipusú mini PLC k hez, 12/24 V os és 230V os alap készülékekhez és a hozzájuk tartozó expander modulokhoz. Kérdésem lenne, hogy milyen szoftvert kell hozzá vásárolni? A datashettjében benne van hogy ajánlatos a 8.xx verziókat használni. Illetve milyen USB data / programozó /download kábel kell hozzá, mert látok 180 EUR ért is meg 15 EUR ért is... Nem szeretnék félrenyúlni és potyára használhatatlan szoftvert és adatkábel rendelgetni hozzájuk. Van valaki aki képben van ezzel a tipussal? Ilyenem van: ez specko 21/24 V os de van 230VRCE tipus is. meg az expander modulok hozzájuk. https://www.google.com/search?tbm=shop&q=siemens%20logo!&sx...461474 Köszi előre is.
Nem ajánlom a Logot-t, az APB PLC-k sokkal jobb, szintén kapukkal kell megrajzolni a vezérlést, sokkal többet tud, annyira nem drága a használt logóhoz képest, és a szoftver ingyenesen letölthető, míg a logóhoz fizetős, jó van feltört is de.
|
Bejelentkezés
Hirdetés |




Aki C-ben szokott dolgozni, annak lehet hogy a "létra" gondolkozás hirtelen komplikált. Újabb plc-ben már lehet akár C-ben is megírni funkció blokkot 

. 
) jelez PLC-nek a rekesz elejét detektálva;
és nem lesz gondotok a hiányos rekeszek detektálásával. 





