Fórum témák
» Több friss téma |
Igen. nem földkábelről volt szó. A mérőhőz nincs semmi köze az egésznek és nem is írtam hogy hava visszük.Csak az elosztóba van földelés.Szerintem elbeszélűnk egymás mellet. Nem pék vagyok.
Na mindegy de a vezetékek száma nem kettő nem négy nem is hat hanem hét három fázis +vezérelt
Nagyon jó!
ÉS ezt a FAM vizsgát hol lehet megszerezni!
Csináltam egy villanyszerelési előtervet.
A villanyóránál lenne a 3 fázisú fi-relé. A lakásban pedig egy 18 részes kismegszakító szekrény. A pincében lenne leütve 3 méter mélyen a földelő szonda. Innen jönne a kismegszakító dobozhoz a védőföld. A főzőlap 3 fázisú bekötésben lenne 0 vezető nélkül, így az kikerüli a fi-relét. Szerintetek tervezzem tovább, vagy már ez is úgy rossza, ahogyan van?
A FI relét is az elosztóba tedd, sok későbbi bosszúságtól kíméled meg magad. Attól még a tűzhelyt teheted eléje.
Szerintem igen. De én nem értek a szakmához. A fáziselosztásokon lehetne javítani,pl. a szobák külön fázison, így ha fázis hiány lesz lesz áramod a másikba.Én a hűtőt is a fi elé kötném. Hiba esetén nem olvad le.
Főzőlapnak szerintem mindenképpen kell a nullavezető, én legalábbis nem láttam még olyat, ami szimmetrikusan terhelte volna a három fázist és normálisan működne nullavezető nélkül.
Szia!
Elmondanád, hogy miért pont a főzőlapot nem akarod kihagyni a FI védelméből?
Rossz!
- A földelést a PEN szétválasztási pontjába kell kötni! - A 3 fázisú sütő/főzőlap-nak kell a nulla! - A FI -ből semmiképp ne hagyd ki a főzőlapot! ( EPH -t, túlfeszültségvédelmet csinálsz? )
Sziasztok
még egyszer megkérdezném, eddig ugyanis senki nem válaszolt. Ismertek valahol egy jo WEB oldalt ahol modern (szép) fali szerelvények (kapcsolok, stekkerek stb.) kaphatok. Föleg olyanokat keresek, amik meg vannak világitva a sötétben. (tipus, márka elég lenne)
EPH-t fogok csinálni. Az EPH a pincében lesz, erre lesz rákötve a gázkazán, vődővezető stb.
Túlfesz védelmet is szeretnék. Abból lehet kapni 3 fázisú sínre szerelhető kivitelt? Ennek még nem jártam utána. Ez a főzőlapot a mellékelt képen lehet bekötni. Ott nincs szó nullavezetőről. Ezért gondoltam, hogy kihagyom a fi-reléből. Gyakorlatilag a kismegszakító szekrénynél fog szétválni a PEN, és a PE jön a pincéből, az N-pedig megy majd tovább. Vélemyény?
Ez alapján tényleg nem kell nullavezető. Viszont a nullavezetőt mindenképpen vezesd oda a főzőlap csatlakozási pontjáig.
A nullavezető jelenlétének vagy hiányának semmi köze a FI relén átvezetéshez vagy át nem vezetéshez. Mindent vezess át a FI relén, csak az említett hűtő kihagyását érdemes megfontolni.
Agyisten, fürdős kérdésedre kérdéssel válaszolnék, ha kiold a kismegszakítód izzót kell-e cserélned? E14-es vagy E27-es a foglalatod?
E14-es izzók ha kiégnek az esetek nagy százalékéban zárlatosak lesznek, az izzóban lévő biztosító szál okozza a problémát, tenni ellene nem lehet semmit, mert ez KÍNAI Mondanám használj jó minőségű izzót, de olyan nem létezik (már), esetleg más fényforrás keresése, kompakt, LED izzó segíthet a gondon. Ha mégsem.....
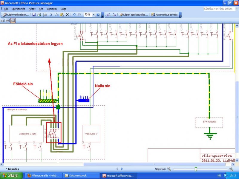
Szia! Nem akartam túlzottan összefirkálni a rajzodat, csak a lényeget próbáltam meg berajzolni rajta. Az FI relé a lakáselosztóban legyen a könnyebb hibaelhárítás végett. A Nulla sín és a Földelő sín is itt kapjon helyet.Minden fogyasztó az FI utáni szakaszról kapjon táplálást! A villanytűzhely az felvet néhány kérdést. A kombi tűzhely sem tud kevesebbet és nem kell neki akkora teljesítmény. A tervezésről csak annyit, hogy amíg képlékeny a dolog, addig mindent lehet és azt még most kell kigondolni hogy legyen. Az automaták terhelésre való szétosztása, pusztán valószínűségi alapon is történhet úgy, hogy mely fogyasztókat használsz legtöbbet egyazon időben rendszeresen és ez ne haladja meg a főautomata áramát fázisonként. A Nullát minden fogyasztóhoz oda kell vinni a Nulla síntől. Kerülendő a gerincről való lecsatlakozás! A Földelést szintén. A földelőszonda pincéből való leverése nem biztos, hogy jó ötlet, mert ha a talaj mélyebb része kemény és nagy ellenállású, sikertelen lesz a telepítése. Inkább kettő rövid szonda (2m), mint egy hosszú aminek a vége nagy ellenállású talajba fúródik.
"Szia!
Elmondanád, hogy miért pont a főzőlapot nem akarod kihagyni a FI védelméből?" Elcsesztem! Miért a főzőlapot akarod kihagyni!
Én nem akaok ebbe belpofázni, de szerintem ezen a rajzon a 3 fázisnál is 230V-van a fázisok között! Nálunk meg 400V-van ám a fázisok között! Vigyázat!
Ha nem egy háromfázisú FI relét használ akkor már nem "kompatibilis" ,viszont egy háromfázisút használ akkor egy csepp víz bárhol, egy komplett ház működőképességét megbénítja.(esetleg fázisonként egy egyfázisú + egy háromfázisú a háromfázisú szerkezeteknek. volna a legkorrektebb,legdrágább)
Ha ezen a táblázaton valami egyértelmű akkor az az hogy nem egyértelmű.(az alsó részben egyébként szerepel a 400V is.de hogy az mire vonatkozik? no az a nagy kérdés)
Én a hűtőt sem hagynám ki , inkább felszerelnék a hűtőknek egy második FI-t. ( Ha vannak kültéri aljzatok és/vagy fogyasztók, azoknak pedig egy harmadikat :- ) )
Szia, tennél fel linket a főzőlapodról? nem tetszik valami a képen...
Bocs, látom másnak is szemet szúrt!
A főzőlap még nincs meg. Jobban rákerestem a neten. Úgy látom, hogy a többsége a főzőlapoknak kétfázisú, így akkor nyugodtan beköthetem a fi-relébe.
Azért választottam 3 fázisú fi-relét, hogy a műhelyben a 3 fázisú motornál ne legyen fáziskimaradás., és esetleg az ne menjen tönkre. De lehet módosítom a tervet. Akkor az sokkal konkrétabb lenne, ha 5 1fázisú fi-relét rakok a lakásba és a műhely felé fog majd később menni a háromfázisú. Az 5 fi-relé pedig: 3db a 3 fázisra 1db a hűtőnek 1db a bojlernek Ebben az esetben mi történik a főzőlappal, ha 1 fázis kimarad? Gondolom semmi, csak nem működik. A hűtő fi-reléje lehetne olyan is, amiben benne van a kismegszakító?
A FI relé nem véd a fáziskimaradás ellen.
A tűzhelyhez vidd oda a nullát is mert később szügség lehet rá.
Így sem az igazi!
A minimum, ami még kielégíti a védelmet az 1 db. 3 fázisú FI. Nem kell és nem is ajánlott az 1 fázisú, csak akkor, és ott, ahol a nulla vezetőt minden esetben kihúzod az elosztótól, és arra nem kötsz más fogyasztót, különben a 3 fázisú hálózaton az 1 fázisú fi relék tréfás meglepetésekkel szolgálhatnak. A javaslatom, hogy ülj le egy szakemberrel és részletesen beszéld meg vele az igényeidet! Én így csinálnám: - 1 db 3 fázisú FI a kültéri aljzatoknak - 1 db. 3 fázisú FI a vizes helységekbe - 1 db 3 fázisú FI a hűtőnek és/vagy egyéb kritikus fogyasztónak. A műhelyt teljesen külön vezetékezném! Odavinnék a mérőtől egy fővezetéket és a műhelyben alakítanék ki egy kiselosztót. A motornak motorvédő kell nem FI! Ennyi egy átlag házba elegendő! A kültéri FI-t , szerintem, ne 30mA-esre válaszd, hanem 100mA-es típust tegyél be. Természetesen lehet kismegszakítóval egybeépített FI-t szerelni, de nem biztos, hogy érdemes.
A plombabontási engedélyt a munka megkezdése előtt 8 nappal kel elfaxolni az illetékes áramszolgáltatóhoz, szerepel rajta a munka megkezdésének és várható elvégzésének az ídőpontja. Ezidő alatt ha akarnak kijönnek és ellenőriznek ( minden rendben van-e), ha nem akkor a plombát a regisztrált szerelő távolítja el. A munkavégzés után jön az áramszolgáltató és ellenőriz és plombál (zárópecsétet elhelyez).
Az áramszolgáltató szervezi a saját dolgozói és az alvállalkozói részére ( szerintem) és ha külsös vagy igazolni kell valamennyi gyakorlatot is.
Ha a főzőlap kétfázisú ,akkor is háromfázisú FI kell hozzá.
Sziszatok!
"A kültéri FI-t , szerintem, ne 30mA-esre válaszd, hanem 100mA-es típust tegyél be." Bocs, de ezt kifejtenéd bővebben!
Kültéren, az időjárástól függő nedves környezet, kioldhatja az érzékenyebb FI-t szigetelési probléma nélkül is.
|
Bejelentkezés
Hirdetés |








