Fórum témák
» Több friss téma |
Nem értem minek használsz JPEG-et. SD kártya (most adaptálom az NXPs progit ST-re SDIO módban), és lehet tolni a BMP-t. Egyszerű mint a lejtő, és sokkal kevesebb a hibalehetőség. Az SD kártya meg megbírja az adatmennyiséget.
Azt ítrák 4-6 hét amíg megérkezik.
Most hozta a futár. ek-tm4c1294xl Nem mondom, hogy szép, de eddig jól muzsikál. 663Mb a csomag hozzá 8| A hozzászólás módosítva: Márc 21, 2014
Sziasztok!
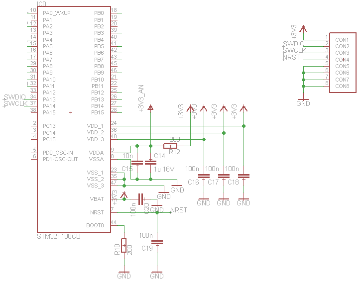
A segítségeteket szeretném kérni. Adott egy STM32F100-assal épült panel. A programozói felület SWD lenne. Azért csak "lenne", mert nem teszi a dolgát. A programozóm egy ST-Link/V2, fejlesztői környezet a Keil uVision. A projekten belül, a debugger beállításainál látja a programozó a magot, de a programot már nem sikerül a flash-be betöltenie. Találkoztatok már ilyesmivel? (jó flash "térkép" van kiválasztva) A lényeges bekötéseket láthatjátok a csatolt ábrán. A boot lábak közül csak a 0-ás van GND-re húzva, ez elvileg elég ahhoz, hogy a fő memóriaterületről induljon a kontroller. Természetesen minden VDD és VSS láb be van kötve, ilyesmi hibák után már kutattam. Ha valakinek van valami ötlete, akkor kérném, hogy ne fogja vissza magát ![]() Előre is köszi!
Ad valami hibaüzenetet?
A programozó interfész SWD-re van állítva? Be tudnád tenni a programozó beállításait képként?
Igen, ad...Hogy nem tud csatlakozni, ennyi. Sajnos nem tudom bemásolni, mert nincs itt nálam a panel, így nem tudom most generálni a hibát.
Igen, SWD-re van állítva. Ha nem arra lenne állítva, akkor nem is látná az uC debugger felületét/modulját.
Ár tudod küldeni a projektet?
Nincs nálam, de összedobhatok egy olyan projektet, mint amivel próbálkoztam...Pár perc. Amúgy sem volt semmi hasznos kód benne, mert csak azt akartam megnézni, hogy megy-e az uC írása.
Csatoltam. Hátha találsz benne valamit.
Mindent rendben találtam benne.
Nincs F1-es chip-em, de F0-val kipróbáltam, és letölti a programot rá. Hardver összeállítás? (a mellékelt "rajzon" túlmenően...)
Köszi, hogy megnézted!
![]() Sajnos ez céges diplomamunka lesz, köt a titoktartás, így csak a kontroller specifikus részt raknám fel, a többi úgysem sok vizet zavar A kapcs. rajzon az NRST-n és az SWDIO-n lévő felhúzás, illetve az SWCLK-n lévő lehúzás nincs rajta, azok utólag lettek felforrasztva.Keresgéltem fórumokon, de nem sok hasznosat találtam, csak ilyen kézrátétes, csodatevős javulásokba futottam, semmi olyan, ami megmagyarázható megoldás lenne. Furcsa a fennálló hiba számomra, mert az st-link látja a debug felületét a kontrollernek, innentől meg ötletem sincs, hogy mi lehet a hiba. Még arra gondoltam, hogy az NRST-én lévő 100nF miatt előbb kezdené meg a kommunikációt, mint ahogy a lábon felfutna VDD-re a jelszint, de nem...A kommunikáció megkezdése előtt már magasban van az NRST, szóval ez is kizárva.
SWDIO SWCLK hova van bekötve? (az pont lemaradt)
Esetleg próbáld meg ST-Link Utility programmal kiolvasni a flash tartalmát, hogy azzal megy-e. Merre laksz? A hozzászólás módosítva: Márc 27, 2014
Hopp...bizony az lemaradt
Csatoltam a javított ábrát. Igen próbáltam, azzal se látja a kontrollert sajnos. Székesfehérvár közelében, szóval nem éppen arrafelé, mint Te A hozzászólás módosítva: Márc 27, 2014
Minden jól van bekötve... nincs már igazán tippem.
Tápot kap az IC? Milyen programozóról megy? (valami discovery kit, vagy ST-link) IC tuti jó? Könnyű ezeket félig kinyírni.
Hát köszi azért, hogy foglalkoztál vele!
Igen, kap. Mértem is, meg néztem szkópon is, hogy nem esik-e le véletlen, amíg próbálok csatlakozni, de stabilan megvan a táp a lábakon. ST-Link/V2-ről. Ott is ellenőriztem többször, hogy jó lábakat vezettem-e ki, meg szkópon is jónak tűntek a dolgok. Na, az IC egy jó kérdés...Majd megnézek egy másik panelt is, hátha tényleg az szállt el, de valahogy ennek kevés esélyét látom, de egy próbát megérhet a dolog.
Megoldódott a probléma. Kipróbáltam, hogy az F100-as dev.board-ról használom az SWD-t és láss csodát, minden gond nélkül megy a programozás/debugolás. Lehet valami driver probléma lehet vagy esetleg régebbi debug interface van az F100-asokban és így van valamilyen kompatibilitási probléma, mert ha jól tudom, akkor a dev.boardon még valami korábbi verziójú SWD van.
Cypress akció:
1. Free worldwide priority shipping (sajnos, a fejlesztői kártyákra ez nem vonatkozik) 2. Időkorlátos akció: CY8C4245AXI-483, CY8C4245LQI-483, CY8C4245PVI-482 (PSOC4 Cortex-M0 maggal) $1 áron kapható (amúgy $2.4 - $2.5 volna)
Hi!
Találkozott már valaki olyannal hogy az SDRAM pont egy bizonyos idő után, elveszíti ami benne található? Ez az idő kb 35s. Maga a chip az LPC1788, az SDRAM az egy Samsunk mobile SDRAM, az SDRAM setup meg totál "gyári". De a saját setup-om is ezt csinálja... ![]() Ötlet? Tapasztalat?
Dinamikus RAM akkor felejt, ha zajos a tapja, vagy nincs frissitve.
Táp egy dugasz táp, 12V utána egy LM2976 gyári step-down panel, maga az LPC1788 panel is gyári a HOTMCU-tól. A frissítés meg egy érdekes dolog, mert egyfelől hardverből kellene mennie, másfelől ms alatt felejt tudtommal, nem 35 másodperc alatt nem? Egyszer csak szép lassan alulról felfelé, eltűnik a kép ami az SDRAM-ból megy és fekete lesz a kép.
Tap zaj alatt en chip tapjara gondoltam, nem a panelera. 100+ MHz-rol beszelunk. Itt mar az sem mindegy, hogy a RAM chip tap labaihoz milyen kozel vannak a hidegito kondik (100nF tipikusan minden VDD-VSS parhoz) De nyilvan rendben van, ha gyarilag rajta van a panelon a RAM is.
A frissitest az SDRAM kontroller vegzi, de neked kell felprogramoznod, hogy mikent tegye, ha nem tevedek. De, ha folyamatosan olvas belole az LCD terito modul, akkor az frissiti. Egyebkent meg nem biztos, hogy ms alatt felejt, sokszor masodpercekig is megmarad az adat. De ez elegge RAM fuggo. Viszont az alulrol felfele feketedes, az inkabb valami sw-es problemara emlekeztet, mintsem memoria hibara. Pl. amikor a stack tulcsordul, az eppen a vegetol az eleje fele tolti fel a RAM-ot. De ennyibol nem lehet megmondani, hogy mi a problema.
Hi!
A fentről lefelé-t úgy értettem hogy felső memória tartományból kezd el veszni az adat egészen a 0xA0000000-ig az SDRAM kezdő címéig. Bár amilyen komótosan 3s alatt veszik el belőle 384k egy darab 800x480 kép el tudom képzelni hogy a szivárgás már a legelején megtörténik a 256MB memóriában. A vicc hogy az init gyári, és volt hogy egy egész éjszakát volt bekapcsolva és nem volt gond. Kikapcsoltam, két hétig a sarokban, majd újra be, és a probléma ugyan ez... SW probléma meg attól izgi hogy se hard fault se semmi... Majd még átnézem az FSMC regisztereit is, egy biztos hogy az M3 mag nem fagy ki, minden megy a maga útján, csak éppen egy amnéziás SRAMből nem tud dolgozni.
Forrás? Nagyot én is tudok mondani: pl 1554335788755. Ez egy nagy szám...
És kicsit is: 0,00000000000000005433. Ez meg egy kis szám.
Sziasztok,
azt szeretném kérdezni, miután megleptem magam egy STM32F4 discovery-vel, hogy a 32kb-os toolchain(p. KEIL) korlátot azt mennyire hamar lehet kinőni? Köszi Attila
Nagyon hamar!
Tul. képen csak arra jó, hogy a kezdeti lépéseket megtanuld. Nagyon sok példaalkalmazást találsz bennük, amin gyakorolhatsz, ismerkedhetsz. Ezért meg könnyítik az első lépéseket. (Szerintem e téren a legjobb az „Atollic TrueSTUDIO”) Amit tudok ingyenes IDE: Code::Blocks, CoIde.
Hát 32kb tényleg nem sokra elég, de szerencsére az ingyenes Keil-ben 32KB a méretkorlát.
Ez már nem olyan kevés, grafikus menü és még pár alap funkció elfér benne. Az én javaslatom inkább Em::Blocks
Sziasztok!
Szeretnék az STM32F4-el nagyobb kijelzőt használni, eddig 7 inch-es volt rajta SSD1963-al, de sajna az alkalmazás miatt kellene a nagyobb (jobban lássák, nem a felbontás miatt). Az a helyzet, hogy 7 inch-esnél nagyobbat nem találtam, csak olyat ami LVDS jeleket kér. Tud valaki megoldást az LVDS kezelésre? Vagy SSD1963 hrllyett olyat amire lehet LVDS kijelzőt tenni. Esetleg forrást, ahol lehet paralel rgb kijelzőt kapni? Sajnos most találták ki, hogy a 7-es nem lesz elég. Nem tudom, miért csak 7"-ig van kijelző.
Monitor VGA-n keresztül a meglévő touchpad-os kijelző mellé? Sokkal egyszerűbb és olcsóbb, mint a 7"-nál nagyobb kijelző. A nagyobbak 10 coll-osak és drágák, a még nagyobbak sokkal drágábbak.
Persze ez nem gond, ha a büdzséd milliós nagyságrendű.
Én ajánlanám ezt:
uVGA-III 4D SYSTEMS VGA Graphics Controller Module for QVGA/VGA/WVGA LCD Bővebben: Link Bemenet: SPI Kimenet: VGA A többi infót megtalálod a Google-val. Könnyen programozható (Kész C forráskód). Bármilyen Monitorhoz csatlakoztathatod.
Monitor nem rossz, de touch is kell és a touch-os monitorok, meg drágák, és a touch elvesz egy USB-t is.
A4D system cucc, az nem tetszik, gyakorlatilag nekem már meg van a saját UI-m és nem akarok még plusz szoftvereket, venni, amivel egy gpu-t programozok, ráadásul mivel az zárt rendszer rájuk vagyok utalva. Még tallózok, mert szerintem valamék gyártónak lennie kell LVD-s meghajtójának, valamivel csak meghajtják azokat az lcd-ket is. Esetleg gondolkodtam a beagle boardon is, de azt nem ismerem, nekem az a lényeg, hogy jópár soros port kell, bár nem tudom arra mivel tudok programot írni. |
Bejelentkezés
Hirdetés |













