Fórum témák

» Több friss téma
Fórum » Erősítő probléma
 
Témaindító: proksa1, idő: Márc 15, 2006
Témakörök:
Lapozás: OK   59 / 85
(#) real95 hozzászólása Nov 28, 2015 /
 
Sziasztok, kérnék egy kis segítséget, van egy ak- 901 Teli, erősítőm, amikor rá dugom a pendrive-et vagy a sd kártyát akkor bug meg éles nyikorgó hangót adki meg közbe megy a zene, mi lehet a baj?
(#) Musicface válasza eyess hozzászólására (») Nov 30, 2015 /
 
Így van, de olyat csak 50V-ban találok csak.
(#) NewDon hozzászólása Dec 4, 2015 /
 
Sziasztok!

Nem rég jutottam hozzá egy AIWA AX-7400 tip. vintage rádióerősítőhöz.
http://www.radiomuseum.org/r/aiwa_stereo_receiver_ax_7400.html

Nem egy mai darab, viszont szépen működik mindene, külsőre szinte makulátlan. Üröm az örömben, hogy kikapcsolás után 5-10 mp-el magától újra bekapcsolódik úgy, hogy a világítások szépen lassan felgyúlnak kb 80%-ig és elkezd szólni. Ha lehúzom a hálózatról és visszadugom, nem indul magától, csak újra bekapcs-kikapcs után megint.

Találkozott valaki hasonló problémával? A mechanikus főkapcsoló mellett még a relére gyanakszom, de nem tudom ennél a modellnél hogy van megoldva, még nem kezdtem el belemászni.

Viszonylag amatőr vagyok a témában, hogy érdemes végigvini a hibakeresést?

Előre is köszönöm!
(#) mineral válasza NewDon hozzászólására (») Dec 4, 2015 /
 
Érdekes egy hiba. A rajz szerint Aiwa kapcsoló választja le a hálózatról. Esetleg a szűrőkondenzátorok szivárognának? Vedd le őket és úgy próbáld meg.

névtelen.JPG
    
(#) NewDon hozzászólása Dec 4, 2015 /
 
Köszi a gyors választ! Meg fogom nézni, remélem hogy csak ennyi a kínja. A képen nehezen kivehető, jól látom hogy 0.1uf-os kondenzátor ír minkét ágon? Ha esetleg cserélnem kell.

Köszi!
(#) Musicface hozzászólása Dec 16, 2015 /
 
Sziasztok!
Kis help kellene!
Ezt a kondit kellene lecserélnem, csakhogy ez 4 lábú, ilyet nem találok sehol sem, a csere kondi meg csak 2. Akkor most ez, hogy is lenne?
(#) Musicface válasza Musicface hozzászólására (») Dec 16, 2015 /
 
Mert bizonytalan vagyok kissé.
Rámérni rátudtam, értékeket tudtam leolvasni róla, tehát akkor mégsem lehet hibás?
Mert hiba gyökere ott van, hogy egyik fele szól megfelelően az erősítőnek, a másik nem.
Potmétereket is átvizsgáltam, lecseréltem újra, de még mindig fent áll a probléma.
Már nem tudom, hol lehet a gond.
(#) djcaveman válasza Musicface hozzászólására (») Dec 16, 2015 /
 
Szia.
Milyen típusú erősítő? Hogyan jelentkezett a hiba? Az hogy az egyik oldala nem működik, biztosan nem a puffer kondenzátor cseréje fogja a problémát a másik oldalon megoldani.
(#) Musicface válasza djcaveman hozzászólására (») Dec 16, 2015 /
 
Egy Sony TA AX500 típusú stereo erősítő.
Úgy, hogy az egyik oldala megfelelően szól, a másik pedig halk.
(#) djcaveman válasza Musicface hozzászólására (») Dec 17, 2015 /
 
Az a kondenzátor amit lefényképeztél, az a tápegység része. Ha azt kiveszed akkor az általad jónak ítélt oldal sem fog megfelelően működni. Milyen érték van ráírva? 15000µF 56V ? Nagyobb hangerőnél a halk oldal nem torzít ?
(#) fecameca válasza Musicface hozzászólására (») Dec 17, 2015 /
 
Akkor nem sokat cserélhettél, ha ilyet még nem láttál. Annak a kondinak 3 lába testen van, és amelyik nincs egyforma távol a többitől, az a +. A 2 lábúak bilinccsel vannak rögzítve, és vezetékkel bekötve. Ez a fajta meg nyák.-ba való. Kollégának egyébként igaza van, ettől nem lehet halk, valami csatoló konditól esetleg. De ha torz, vagy búg, akkor még akár a végfok is el lehet szállva.
(#) 13_Balu50 hozzászólása Dec 20, 2015 /
 
Sziasztok!
Ott járok, hogy a denon erősitő müködik, jól szó,l szép hangja van, vált bemeneteket is, csak a kijelzőt nem tudom beüzemelni. Nem tudom, hogy a meghajtó IC rossz-e vagy a kijelzője. Az ic egy 64 lábu TMP47C670n . Amennyiben az 1 lába megkapja a Vkk -24 V os feszültséget betilt a védelem. Nem hiszem hogy cserélni fogom, annyit már nem ér meg, csak a kivácsi vagyok.
(#) 13_Balu50 válasza 13_Balu50 hozzászólására (») Dec 20, 2015 /
 
Egy kis segítség, itt a kapcsolási rajz ezen részlete, hogy jobban érthető legyen, és a segítőkész fórumtársak jobban képben legyenek. Biztos hogy ítt van a gubanc, mert az R424 (470R) ellenállást, a ZD 406 (HZS27-2 zéner diódát) , ilyen nem volt 24 V/1W ost raktam bele.és a TR416 (2SA1015) tranzisztort cserélnem kellett. Aztén beállt a -24 V feszültség csak azonnal füteni kezdett az R424 es ellenállás és pár másosperc után kattant a relé és betiltott. A fenti IC 1 lábához vezető részt egy átkötésnél elvágtam, azóta müködik az erősitő, nem melegszik az ellenállás, csak nem megy a kijelző. Ezért nálam okosabbak segítségét kérném. A hiba az IC-ben lehet vagy inkább a kijelzőben vagy máshol is.Ja és a C603-C604 kondenzátort kiforasztottam újat kapott az se hibás.
Előre is köszönöm , ha valaki tudna segíteni.
(#) 13_Balu50 válasza 13_Balu50 hozzászólására (») Dec 23, 2015 /
 
Moderátor Urnak !
Úgy látom senki sem reagál rá, több napja, azért megkérném a moderátor urat, hogy innen az utolsó két hozzászólásomat, az "erősitő mindig "-be ha lehetséges emelje már át.
(#) steelbird válasza 13_Balu50 hozzászólására (») Dec 23, 2015 /
 
Látja itt is, aki a témában szokott olvasgatni, de ha nincs ötlet, akkor nem ír, nem tud rá mit reagálni. A rajz részlet (nálam) pedig így néz ki, most néztem meg.
(#) 13_Balu50 válasza steelbird hozzászólására (») Dec 23, 2015 /
 
Mindegy, azért megpróbálnám, ha nem lehetséges az áttétel kérem törölje és én felrakom az "erősitő mindig" be , le van mentve.
(#) tyukesz hozzászólása Jan 30, 2016 /
 
Sziasztok. Még új vagyok az elektronikában, és segítségre lenne szükségem egy szakértőtől!

Van nekem otthon egy JVC AX-F1 GD típusú erősítőm. Az vele a gond hogy nem erősít. Van egy source selector elől és ha hátul rácsatlakoztatom a bemeneteket megfelelően akkor az van hogy ha az erősítőt felhúzom maximumra akkor kezdek el hallani valamit a hangfalban, de nagyon halkan.
Mi lehet a gond vele? Szétszedtem, ránéztem, de semmi rosszat nem találtam, minden rendjén volt.
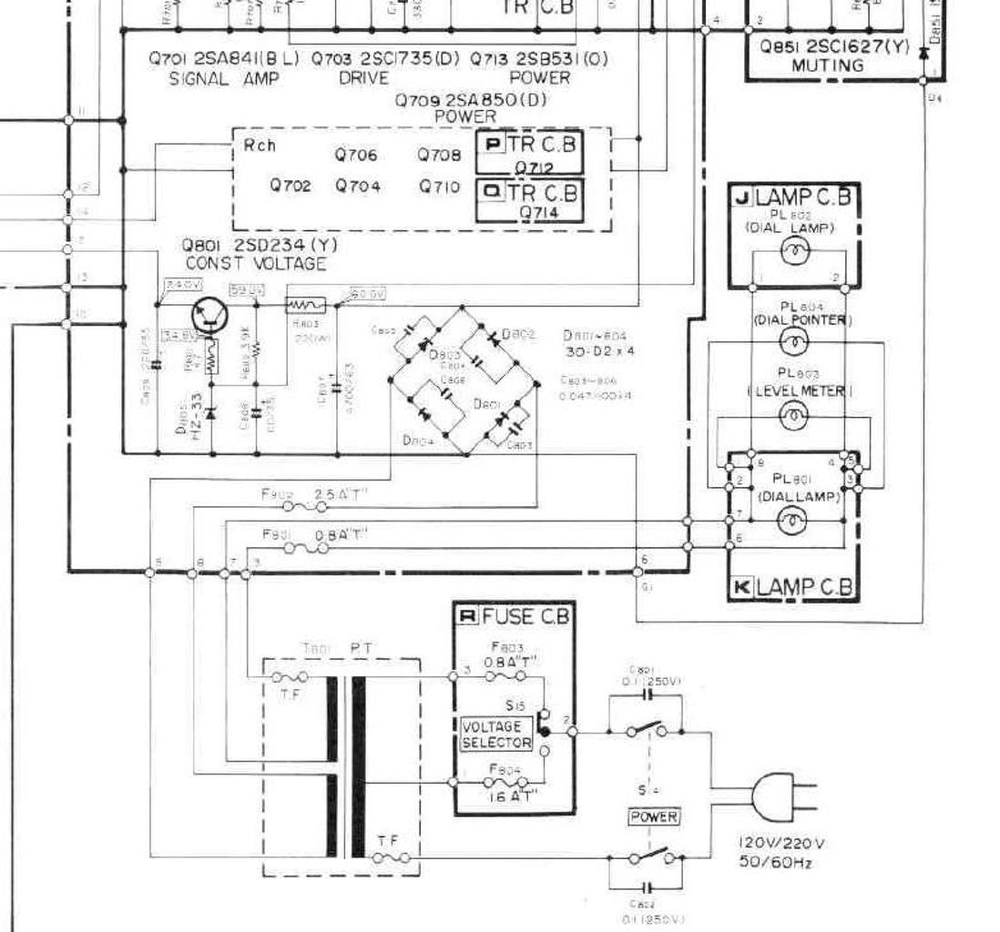
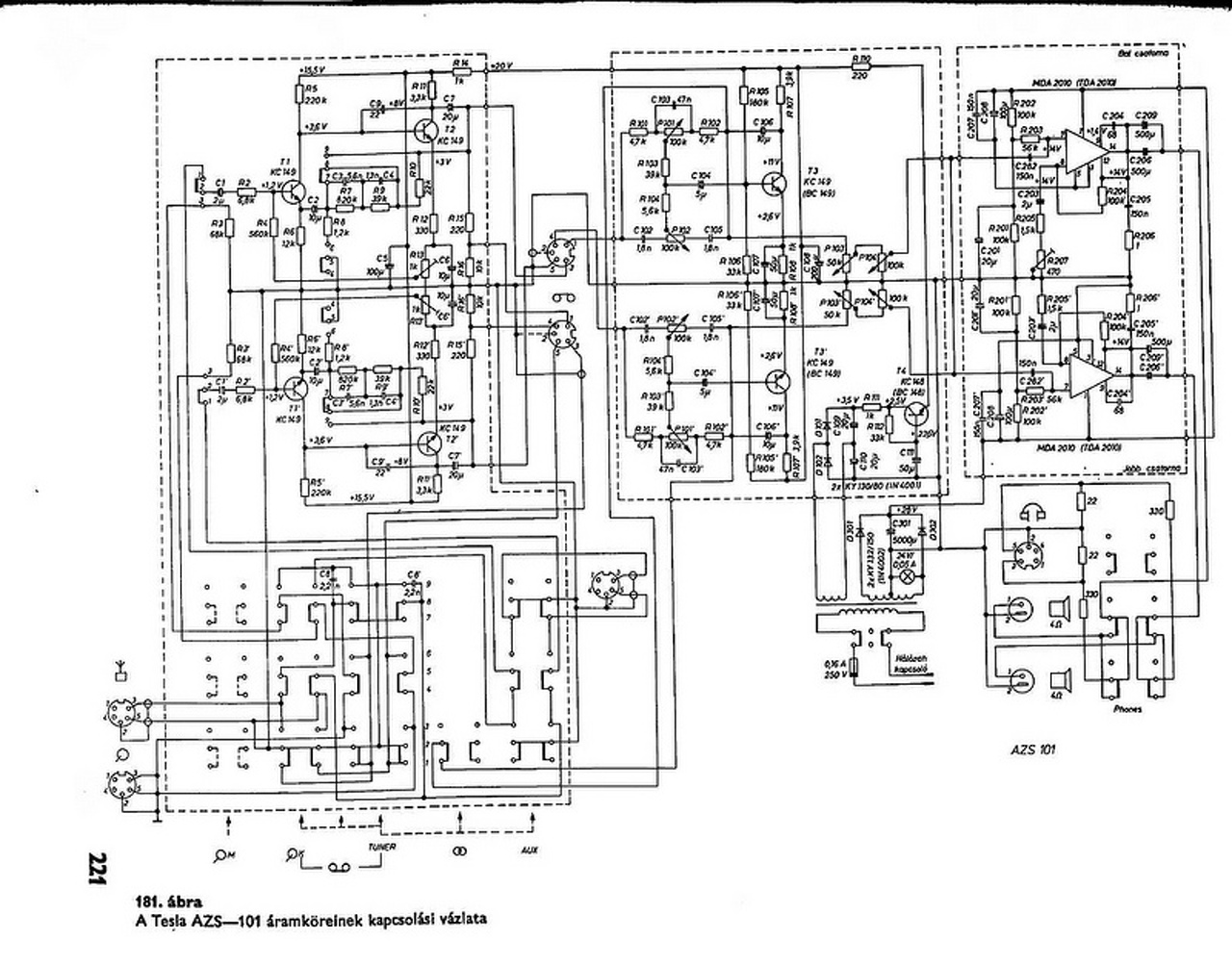
(#) Papmacska hozzászólása Feb 14, 2016 /
 
Üdv. Segítségre volna szükségem. Van egy Tesla AZS-101 erősítőm ami nem szólt. Kiment belőle a trafó. Most kicseréltem az egész belsejét. Trafó , szabályzó rész potméterekkel együtt végfok panellal együtt. Egy pár percig szólt rendesen csak a potik recsegtek egy kicsi. Befújtam konttakt sprével utána vissza kapcsolva csak búg! A bal teljes hangerőn a jobb csak halkan. Mellékelek egy kapcsolási rajzot róla.
(#) reloop válasza Papmacska hozzászólására (») Feb 14, 2016 /
 
Üdv! Nézd meg a vezetékeket, hátha nem érintkezik az árnyékolás!
(#) Papmacska válasza reloop hozzászólására (») Feb 14, 2016 /
 
Köszönöm.
(#) sky84 hozzászólása Feb 25, 2016 /
 
sziasztok(!)
valaki tudna nekem segíteni?
2sc3851 és 2sc3851a -nak mit lehet berakni helyettesítőnek?
nightline pro400 erősítőben van(.)
vagy esetleg kapcsolási rajzot tudna valaki?
A hozzászólás módosítva: Feb 25, 2016
(#) mindenes válasza sky84 hozzászólására (») Feb 25, 2016 /
 
A felső linkek egyikére kattintva találhatsz helyettesítőt Bővebben: Link
(#) Udvari Zsombor hozzászólása Márc 4, 2016 /
 
Tud valaki segíteni (ha jó helyen járok)? Egy mono erősítőn dolgozom, és nem találom, hogy hova kell kötni a hangjelet. Kérem, hogy jelöljétek be a fotón...
(#) 13_Balu50 válasza Udvari Zsombor hozzászólására (») Márc 4, 2016 /
 
Szia!
Ha az IC TBA 810-es akkor a bemenete a 8 lábon kell hogy legyen,. Azon van egy kondenzátor és annak túlsó felére valószinüleg.Ha jól látom az IC 8 lába az első kép bal felső sarkán található. Ahol van egy pont az az 1 láb onnan kezdődik 1-8 ig.
A hozzászólás módosítva: Márc 4, 2016
(#) Udvari Zsombor hozzászólása Márc 4, 2016 /
 
Ööö, melyik láb az 1-es, és merre kell számolni?

IMG_2265B.jpg
    
(#) 13_Balu50 válasza Udvari Zsombor hozzászólására (») Márc 4, 2016 /
 
Valószinüleg, a kép szerint az IC jobb alsó sarkán az utolsó láb, kivéve ha fordítva nyomták rá a bélyegzőt. Midjár felrakok egy kapcsolást abból ki igazodsz.

TBA810 IC.jpg
    
(#) reloop válasza Udvari Zsombor hozzászólására (») Márc 4, 2016 /
 
Szia! Ha beírod a google-ba az IC típusát könnyen találsz hozzá adatlapot: Bővebben: Link
(#) 13_Balu50 válasza 13_Balu50 hozzászólására (») Márc 4, 2016 /
 
Tehát a kimenet a 12 lábon van, ennek és a rajznak ismeretében eltudod dönteni melyik a 8 láb. A bemenetet ott kell keresni.
(#) 13_Balu50 válasza Udvari Zsombor hozzászólására (») Márc 4, 2016 /
 
Az IC 1 lába általában az IC bal alsó sarkában szokott lenni, tehát a 8 lab a jobb alsó sarkán van, de nem bíztos, mivel nem látható a pont.
(#) Udvari Zsombor válasza 13_Balu50 hozzászólására (») Márc 4, 2016 /
 
Nem "nem látható a pont", hanem fel sincs festve...
A lábakat meg kérem, hogy inkább jelöljétek be a képen, mert sikerült belekavarodnom...
A hozzászólás módosítva: Márc 4, 2016
Következő: »»   59 / 85
Bejelentkezés

Belépés

Hirdetés
XDT.hu
Az oldalon sütiket használunk a helyes működéshez. Bővebb információt az adatvédelmi szabályzatban olvashatsz. Megértettem