Fórum témák
» Több friss téma |
Fórum » Hangsugárzó építés, javítás - miértek, hogyanok
Témaindító: csonthulye, idő: Dec 10, 2005
Témakörök:
Helló! Szeretnék venni 2db mélynyomót 25 centiset! Azt szeretném kérni hogy segítsetek hogy melyik 25 centis hangszóró éri meg a legjobban kb. 5ezer forint körül!!Légyszi MINDENKI írja meg tapasztalatait gondolatait!!!
Ja, és még azt is hogy kinek mi a véleménye az új Vidi hangszórókról, nekem eddig mindenki azt mondta hogy nagyon jók <---erről is véleményt légyszi Előre is köszi!! (linkek sem ártanának) >
Elegendő egyetlen helyre feltenni a kérdésedet, lehetőleg a legmegfelelőbb topikban!
Fórumszabályzat XVIII. pontja!
Készíts 3 négyszögletes 'alagutat' a doboz aljára. Most nem ugrik be ,hogy melyik doboboznál volt ilyen ,de nekem tetszett.
Keresem...
Bővebben: Link
Hangolása az alagutakra helyezett fedlap hosszával lehetséges, tehát az alagutak végi érik a doboz alját.
Szia.
Igen ez nekem is tetszetős megoldás bárhol. De most pont olyan ládába kell reflex nyílás,aminek csak a hátulján és annak közepén lehet elhelyezni a kivágást. Egyéb esetben én is ezt a szögletest ajánlom,aki kérdezi. Csak most nem jó ![]()
Sziasztok.:kalap: Az lenne a kérdésem hogy, a Pioneer TS-W308 D2 hangszórót lehet reflex nyílásos ládába beszerelni? Mert a gyártó az írja hogy zárt rendszerű,és gyárilag zárt dobozt lehet venni hozzá!
Nem biztos hogy merevebb, a felfüggesztésnek nincs köze hozzá, a T-S paraméterek arányán múlik a dolog, magas jósági tényezők, és nagy kiemelés kell hozzá mélytartományban, hogy freeairnek nevezzük.
Ez biztos nem igaz így, mert a teslák a gyenge mágnesük miatt inkább csak kiemeltek 70Hz körnéykén, és valódi mélytartományuk nem volt, míg a DC2550-nek 40Hz-nél volt az alsó határfrekije, csak a rossz hangváltó miatt tűnt mélyben kevsebbnek.
A membrán anyagának nincs köze hozzá ebben az esetben, de szerintem legalábbis nem szép és nem pontos a Teslák, TVM-ek mélye.
Tapasztalat, hogy olyan mint a többi SAL, egész más a valóságban mint az adalapon. De egy 100 liter körüli zártban egész tűrhetően viselkedik, és az alsó határfreki sem rossz.
Pedig zártban pont akörül van ahogy a program számolja....
Ha megírod, mire szeretnéd használni, akkor talán tudok segíteni..
Idézet: „csak a rossz hangváltó miatt tűnt mélyben kevsebbnek.” Én nem nagyon értek hozzá, úgyhogy simán lehet hogy hülyeséget írtam.. Ezek szerint a Tesla hsz mélye inkább csak többnek tűnt akkor - most már ezt is tudom Egyébként úgy látom elég otthonosan mozogsz a témában, így kérdeznék is egyet, de ezt már egy másik topicban, mivel inkább oda való.
hello...
meg uj vagyok es mindenhol kerestem de nem kaptam sehol pontos temat erol milyen kepletet vagy mivel lehet kiszamolni hogy mekora doboz kell egy hangszoronak lvalszotokat elore is koszonom
Lenne egy olyan kérdésem hogy a reflex csöveket hogykell hangolni? Hogykell kiszámolni milyen átmérőjű és mélységű cső kell? Kombinálni szeretnék egy tölcséres ládát és egy reflex ládát
Hali!
Szerintem ugyanúgy kell csinálni, mint egy sima reflexdoboznál. Méregetni kell az impedanciamenetet és ha (közel) egyforma az alsó és felső csúcs, akkor evileg jó. A tervezőprogramok, pl JBL speakershop, elég jól megsaccolják a csövek méretét.
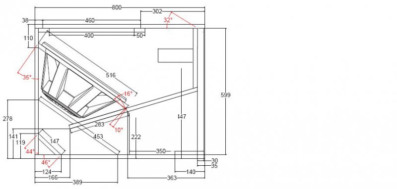
Mi a véleményed a mellékelt tervről?
Nem tudok róla véleményt mondani... ezeken a rajzokon sem nagyon igazodom ki. Fénykép nincs róla? Ez valami gyári doboznak a rajza?
Igazábol ezt én alakitottam igy egy másik gyári tervből amit szintén mellékeltem!
Csak az nem tiszta nekem , hogy ha nem vagy tisztában a reflex doboz hangolással ,akkor hogyan tudsz egy gyári terven módosítani?
Amint látod méreteket nem irtam ez csak egy ötlet lett volna ezért kérdeztem hogyan kell kiszámolni!
Sziasztok!
Zenéléssel foglalkozom nagyon régóta, de nem igazán van pénzem egy normális Stúdió monitor hangfalra. Google-el keresgéltem, de nem találtam semmit. Az volna a kérdésem, hogy tud-e valaki egy jó S.M. hangfalról írni nekem, hogy milyen hangszóróknak kell benne lennie, milyen méretű dobozkával, milyen freki tartományú hangszórók legyenek benne stb. stb. ami csak lényeges. Lehet, naív kisfiú vagyok, hogy kapok erre választ, de próbálkozni lehet, az még ingyen van ![]()
Sziasztok. Valaki megmondaná hogy egy Szél:50cm/Mag:40cm/Mély:45cm láda hány literes?? Előre is köszönöm!
Szia! 90 liter, mínusz a falvastagság.
Szia! Köszi a válasz! Kívülről mértem! 2 cm-es póztorjából van.
67,9L
18mm-es lesz az pontosan.
dm-ben kell a három élt (szélesség *magasság*mélység) összeszoroznod.
Rendben! Nagyon szépen köszönöm mindenkinek a segítséget!!!
|
Bejelentkezés
Hirdetés |




> 
Egyébként úgy látom elég otthonosan mozogsz a témában, így kérdeznék is egyet, de ezt már 

