Fórum témák
» Több friss téma |
DC-DC konverter a "keresőszó" az ebay en ...
Pentódás tápÉpített már valaki pentódával tápegységet? A fetnek valami nyűgje volt mert nem szabályzott. Na akkor próbáljuk ki csővel. A Magyari könyvben trióda van de az bőven 50mA alatt tud. Én max 100mA-ig használnám.
Bekötöd a segédrácsot az anódra és trióda lesz belőle. Én anno PL500-ból csináltam, 0..300V/300mA-t. Az ugyan sugártetróda..
Tápegység meghibásodásSziasztok!A kültéri kamerát egy a képeken látható ESM-51200-2 típusú kapcsoló táppal (230 VAC-5VDC) táplálom. Most meghibásodott. A 4,7µF-os kondi volt gyanús, de kiforrasztva és kimérve mégis jónak mértem. Ezután a tekercset vettem ki. Itt nem mértem szakadást. Mi egyéb szokott még meghibásodni? Az a kis lapos zöld elem nem tudom micsoda. Köszönöm előre is a segítségeteket!
Gyanúsítható még fekete izé, kettőnél több lábbal...
Tekercset (lánykori nevén transzformátor) miért operáltad ki?
Nos, ez nem így működik. Attól, hogy szakadás vagy zárlatot keresünk, még nem derül ki, hogy egy kapcsitáp egy chipes áramköre működik e. Ha nem okvetlen kihívást érzel a javításban, akkor egy usb kimenetű telefon töltővel többre mész. Egy kapcsitáp az a kategória, ahol leválasztó trafó, oszcilloszkóp, 0-30 között szabályozható legalább 2 csatornás labortáp, valamint a kapcsitápok lelki világának ismerete nélkül nagyon csak próbálkozás a javítási kísérlet.
A hozzászólás módosítva: Aug 30, 2025
Ellenállásméréshez nem kell kivenni a trafót. A 4,7µF-on mekkora feszültséget (DC) mérsz?
A hozzászólás módosítva: Aug 30, 2025
Gyakorlatilag semmit. 0,4 mV-t. Ahogy kiderült nem vagyok profi elektromos ember, de egy-két dolgot már megjavítottam, csak olyanokat, amiről látszott, hogy rossz (pl. kondicserék). Azért gondoltam, hogy ha van tipikus hiba, amit ki tudok cserélni, akkor rápróbálok.
Egyébként meg kuka.
Ha nincs ott feszültség akkor, amikor a bemenete 230V-ra van kapcsolva, akkor szakadás van a bemeneten. Át kellene mérni az áram útjában lévő alkatrészeket.
A bemenete faék egyszerű. A hálózat direktben rákerül egy graetz egyenirányítóra, aminek a kimenetén egy 400V-os kondi van. Ha azon nem mérsz feszültséget, akkor a bemeneti körben van szakadás. Vagy a graetz diódái mentek át szakadásba, vagy a 230V nem jut el az egyenirányítóig.
Ezeket simán tudod mérni egy multiméterrel. A multiméterrel a graetz-ben levő diódákat is egyenként meg tudod mérni dióda mérési állásban. A hozzászólás módosítva: Aug 31, 2025
A 400 V-os kondin 319 V-t mérek. Tehát a diódák jók. Az 50 V-os, szintén 4,7 µF-os kondin viszont már nem mérek feszültséget.
Az már a kimeneti oldal lesz. Nagy valószínűséggel a konverter IC szállhatott el.
Le tudod olvasni a típusát? Valószínűleg beszerezhető, de lehet hogy jobban jársz egy 5V-os dugasztáp megvételével.
Köszönöm. Én is úgy gondoltam, hogy veszek egy újat. Köszönöm a segítséget.
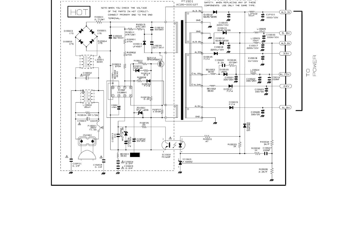
Sony SLV-D910NSziasztok!Egy kis segítséget szeretnék kérni. Van egy Sony SLV-D910N DVD-VHS lejátszóm, aminek a tápjában zárlatos lett a MOSFET. Cseréltem a tranyót és a biztit, viszont a trafó szekunder oldalán semmilyen feszültség nem jelent meg utána. A primer oldalon földhöz képest mérek 60-63VDC-t. Már nem zárlatos, viszont mégse üzemel. A tranyó környékén kimértem az alkatrészeket. Elkókat is kimértem. Optocsatolót kicseréltem. Merre keresgéljek még? Köszönöm a segítséget előre is!
Szia!
Ez így eléggé pongyola: "A primer oldalon földhöz képest mérek 60-63VDC-t." A graetz után az elkón ( 82 µF 400 v ) hány voltot mérsz? A fet source ellenállás alsó végén ( gnd ) és az elkó + között (meg)van-e sacc 320 DC V? A fet source ellenállás ( 0R33 2 W ) nem szakadt-e? Az ic indító ellenállás kör ( 270k.....) nem szakadt-e? Ezek után még van jópár mérni való.
Csak leválasztó transzformátor használatával méregesd!
Primeroldal feszültségeit a 82u negatív pontjához képest kell értelmezni! FET zárlat esetén a R15F 0,33R ellenállás is megszakadt, ellenőrizd. Primer oldali diódákat is érdemes kimérni. Alkatrészek cseréjét követően 230V 40-60W izzót érdemes sorosan bekötni, további meghibásodás elkerülése végett.
Persze, de az elkó mérés már kiszűri ( 1 változat ).
Idézet: „"A primer oldalon földhöz képest mérek 60-63VDC-t." ” Ez mem szűrte ki, bármi lehet...
Közel egyidőben írtunk, nem láttam a hozzászólásod.
Bocsánat, hogy csak most reagálok. Kimértem, amiket írtatok. Megvannak a feszültségek és az ellenállásoknál is névértéket mértem. Plusz kimértem a többi kondit és diódát is, azok is névértéken vannak. Az IC viszont nem kap feszültséget. Nem mérek semmit a Vcc lábán.
Ha jól tudom az IC vezérli a MOSFET-et?! A hozzászólás módosítva: Szept 22, 2025
Hello!
Ha nem mérsz az Ic-nél tápot (6-7-lába), akkor a következő gondok lehetnek: - R1SR01..03 közül valamelyik szakadt. - ZDSS1 zéner zárlatos. - C1SF02 kondi zárlatos vagy kapacitás vesztes. - IC1 meghibásodott. - Zárlat van a szekunder oldalon, ezért nem tud felépülni a táp. A táp a következőképpen indul: A táp bekapcsolásakor, a 3db 270k-on keresztül töltődik a 33µF-os kondi. Amikor a kondi feszültsége eléri az Ic felső küszöbfeszültségét, beindul az Ic. Megjelenik a trafó tekercseken a váltófeszültség. A D1SF02 dióda a 47 ohm-on keresztül töltve tartja a 33µF-os kondit és működik a táp. Ha a dióda nem tudja feltölteni a kondit, mert nem működik a táp, akkor a 33µF energiáját felemészti az Ic és az alsó küszöbfeszültségen leáll az Ic. Néhány Ic ezt párszor elpróbálja, (újra töltődik a 33uF) majd véglegesen leáll a táp Ic.
Folytattad tovább a pontatlan beírásodat: "megvannak a feszültségek..."
Akkor kicsit részletesebben: - gnd-82 µF sacc 320 V DC megvan-e? ( A 2R7 hiba annyira primitív lenne..) Ha igen... - a fet drainjén hány voltot mérsz? ( sacc 320 V DC megvan-e? ...ha nem megy a táp! ) - a 2. 270k alatt hány voltot mérsz? 100 V környéke van-e? Ebből is következtethetsz arra, hogy legalább az a 2 darab nem szakadt-e. Ezek után és az előzményeket figyelembe véve a fet elvihette az ic-t is. A többi alkatrészt is lehetne "zárlatra" tesztelni, oda 230 bemenő sem kell.
Jogos! Szóval a 82µF-on 317VDC mérek. A FET drain lábán szintén 317VDC. A 2. 270k alatt 101V-ot mérek. Viszont a 3. 270k után nem mérek semmit, ami az IC 6-os lábára megy. Ezeket a 270k ellenállásokat korábban már kiforrasztottam, megmértem és mindegyik jó volt ellenállásértékre.
Akkor nagy eséllyel cseréld az IC-t.
A FET gate lábainál mérted az ellenállásokat, mindegyiket? Üdv. M. A hozzászólás módosítva: Szept 23, 2025
Igen, mértem azokat az ellenállásokat is, jók. Akkor rendelek IC-t valahonnan, mert ilyenem nincs itthon. Addig is köszönöm a segítséget mindenkinek! Jelentkezek, ha kicseréltem.
Elkészült. Viszont hajlok afelé, hogy egy stabilizátor kerüljön utána. Tudtok javasolni valami egyszerű megoldást? PL504-ből építettem fel.
|
Bejelentkezés
Hirdetés |
















